회원첫작품_춘천시 건강생활지원센터 2023.5
Chuncheon City Health Life Support Center


2020년 초 개업 5년차, 특별한 일이 없어 절박한 마음에 아들과 함께한 설계공모로 당선된 춘천시건강생활지원센터는 6개월의 설계와 15개월의 설계의도구현업무를 통해 완성됐다. 업무 내내 좋은 건축물을 만들기 위해서는 훌륭한 심사위원, 건축주, 협력사, 시공사가 있어야 한다는 생각이 들었다. 어려움도 많았지만 자연건축과 전통건축융합이라는 설계개념과 디자인 의도대로 90% 이상 실현된 첫 작품이다. 일부 아쉬운 점도 있었지만 참여한 모든 분들께 감사 인사를 드리고 싶다.
건축물 디자인
향촌, 즉 시골의 마을처럼 다정다감하고 고향의 푸근한 마음을 느낄 수 있는, ‘자연’과 ‘사람’ 그리고 ‘문화’가 있는 ‘춘천시 건강생활지원센터’를 만들고자 했다.
주변 환경
주위 환경과 조화를 이루는 스카이라인에 맞는 매스 계획을 하였으며, 지붕의 수평적 반복과 변화의 리듬감을 부여해 전통건축 기와집의 중첩된 이미지를 현대화된 디자인으로 구현했다.
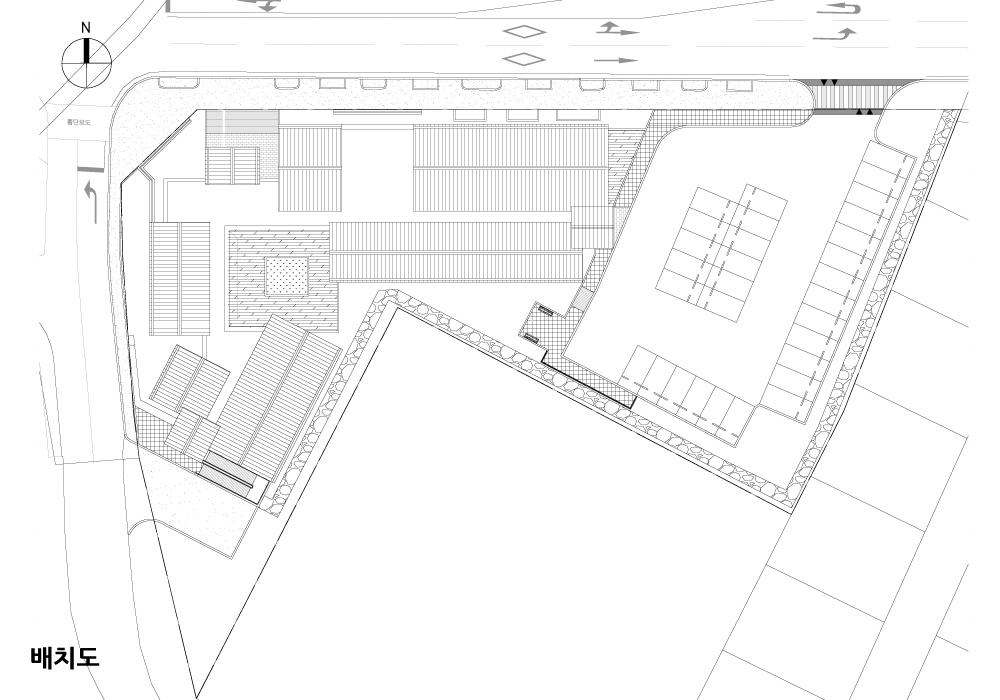
계획의 주안점
대지 주변은 1~2층 내외의 농촌주택들이 다수를 차지하며, 논과 밭을 경작하는 준 도시화된 마을이다. 지역 시민 누구나 쉽게 접근할 수 있게 모든 시설을 1층으로 배치했고, ‘실외 건강사업’을 할 수 있는 행복마당, 중정마당, 텃밭마당, 야외 행사마당 등 공공성을 갖춘 소·중·대 ‘실외 건강사업 마당’을 계획했다. 건강생활 지원센터 운영에서 제일 중요한 점은 지역주민과 지자체 공무원이 협의하여 운영하고 사용하는 ‘주민참여형 지역보건 의료기관’이라는 것이다. 공무원 이용시과 농번기나 토·일 주말 등 ‘24시간 지역주민 이용시간’을 계획해 보안과 화장실 사용 등 정상근무 동선과 24시간 지역주민 동선을 분리하여 지역 시민들이 언제나 즐겨 찾는, ‘기능’에 맞는 건강생활 지원센터를 만들고자 했다.
평면계획
중정을 중심으로 지역시민 누구나 쉽게 접근할 수 있게 모든 시설을 1층에 배치했다. 대강당은 에어로빅, 기구댄스 등 지역주민이 24시간 사용하므로, 주차장과 부출입구로 별도 구분하여 부분 사용이 가능하게 했고, 대강당 창문은 폴딩도어로 설계하여, 필요 시에 건강체조 등 실외건강사업에 확장 대응할 수 있도록 설계했다.
입면계획
집의 모양을 모티브로 친근하고 안정되고 중첩된 형태로 입면을 계획했으며, 모듈, 재료, 형태, 색상을 통일하여 일관성, 상징성, 통일성이 가미된 디자인을 했다.
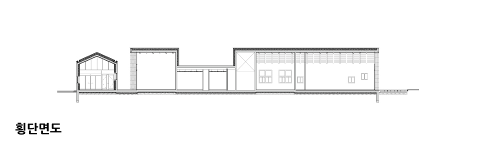
단면계획
기둥, 보구조가 아닌 단순한 집모양 콘크리트 옹벽 구조물로, 로이삼중유리 또는 외부단열재 위에 고갱화이트벽돌 지붕 징크판넬로 설계하여 심플한 디자인과 단열 및 누수 등 에너지절약과 유지관리성을 상승시켰다. 또한 내부 천장에는 전통건축의 서까래와 편백나무를 지붕면에 맞게 인테리어해 근무자에게 친근감 및 공간감을 향상시켰으며, 근무자의 건강을 배려했다.


In early 2020, as a fifth-year business owner with no particular events to speak of, I entered a design competition with my son in a desperate attempt to find work. Our design for the Chuncheon City Health Living Support Center was chosen, and after 6 months of design work and 15 months of tool implementation, we were able to complete the project. Throughout the process, I realized that in order to create a great building, we needed excellent judges, clients, collaborators, and construction companies. Despite the many difficulties we faced, this was our first project where more than 90% of our design intentions for natural and traditional architectural fusion were realized. Although there were some regrets, I would like to express my gratitude to everyone who participated in the project.
Architecture Design
We aimed to create a "Chuncheon Health Living Support Center" that embodies the warmth and comfort of a rural village, where people can feel a sense of nature and culture. Our design concept was to integrate "nature," "people," and "culture" in a way that is loving and kind-hearted, reminiscent of one's hometown.
Surrounding Environment
The goal was to create a "Chuncheon City Health Living Support Center" that would evoke the warm feelings of a rural village and allow visitors to feel the harmony between nature, people, and culture. The mass plan was designed to fit in with the surrounding skyline and give a sense of rhythm and variation with the horizontal repetition of the roof, which is a modern interpretation of the stacked image of traditional Korean tiled-roof houses.
Design Focus
The main focus of the plan was to create the 'Chuncheon City Health Living Support Center' that would embody the warmth of a countryside village, where nature, people, and culture coexist in harmony. The surrounding area is a semi-urbanized village where 1-2 story rural houses and farmland dominate. To make the facility easily accessible to all local citizens, all facilities were located on the first floor, and various public outdoor health promotion spaces, such as a Happy Yard, a Courtyard, a Vegetable Garden Yard, and an Outdoor Event Yard, were planned. The most important aspect of the center's operation is that it is a "resident-participating community health and medical facility" that is operated and used in consultation with local residents and government officials. To create a health living support center that fits its purpose and is always popular with local residents, the plan included a 24-hour use time for local residents, including regular working hours and a separate path for 24-hour local resident use to ensure security and bathroom use, etc.
Floor Plan
All facilities were placed on the first floor to make them easily accessible for local residents, with the central courtyard serving as the focal point. The main auditorium, which is used for activities such as aerobics and fitness, is open 24 hours a day, so it has a separate parking lot and entrance to allow partial use. The windows of the main auditorium were designed with folding doors to enable expansion and adaptation for outdoor health activities such as health exercises when needed.
Elevation Plan
The design of the building facade was planned with a friendly, stable, and layered form motif inspired by a house. The design achieves consistency, symbolism, and unity through the unification of modules, materials, forms, and colors.
Section Plan
The building was designed with a simple concrete retaining wall structure, rather than columns and beams, and a single-pitched zinc panel roof on top of a reinforced triple glass or external insulation material, with high-ganghwa white brick walls. This design achieves a simple and minimalist aesthetic while also improving energy efficiency and maintenance by enhancing insulation and preventing leaks. Additionally, the interior ceiling was designed with traditional architectural rafters and Korean white pine trees to match the roof and enhance the workers' sense of familiarity and spaciousness, with a focus on promoting their health.










| 춘천시 건강생활지원센터 설계자 | 심재군 _ (주)더드림종합건축사사무소 건축주 | 춘천시 보건소 감리자 | 최태용 _ 최건축사사무소 시공사 | 김관호·전춘우 _ 이인개발(주) 설계팀 | 최상용, 정민철, 진한용 설계의도 구현 | (주)더드림종합건축사사무소 대지위치 | 강원도 춘천시 우두하리길 21 주요용도 | 제1종 근린생활시설 대지면적 | 3,391.00㎡ 건축면적 | 983.91㎡ 연면적 | 983.91㎡ 건폐율 | 29.01% 용적률 | 29.01% 규모 | 1F 구조 | 철근콘크리트구조 외부마감재 | 고갱화이트벽돌, 징크판넬, 전통담장 내부마감재 | 친환경 수성페인트, 편백나무 설계기간 | 2020. 01 - 2020. 12 공사기간 | 2021. 02 - 2022. 05 사진 | 심재군 _ (주)더드림종합건축사사무소 구조분야 | (주)코아구조기술사사무소 기계설비분야 | (주)오성이앤씨 전기분야 | (주)오성이앤씨 소방분야 | (주)오성이앤씨 |
Chuncheon City Health Life Support Center Architect | Shim, Jaekun _ TheDream Architects & Associates Client | Chuncheon City Health Center Supervisor | Choi, Tae yong _ Choi Architects Construction | LEEIN Development Project team | Choi, Sangyong / Jeoung, Mincheol / Jin, Hanyong Design intention realization | TheDream Architects & Associates Location | 21, Uduhari-gil, Chuncheon, Gangwon-do, Korea Program | Category 1 Neighborhood Living Facilities Site area | 3,391.00㎡ Building area | 983.91㎡ Gross floor area | 983.91㎡ Building to land ratio | 29.01% Floor area ratio | 29.01% Building scope | 1F Structure | RC Exterior finishing | Gauguin white brick, Traditional fence Interior finishing | Eco-friendly water-based paint, Cypress tree Design period | Jan. 2020 - Dec. 2020 Construction period | Feb. 2021 - May 2022 Photograph | Shim, Jaekun _ TheDream Architects & Associates Structural engineer | Core Structural Engineers Mechanical engineer | Oseong E&C Electrical engineer | Oseong E&C Fire engineer | Oseong E&C |
