캄보디아 이온몰 3호점 2024.4
AEON MALL MEAN CHEY, CAMBODIA

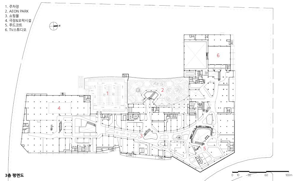
캄보디아 이온몰 3호점은 캄보디아의 수도인 프놈펜 남측에 위치한 캄보디아 내 세 번째 이온몰(AEON Mall)이자, 캄보디아에서 가장 큰 규모의 복합 쇼핑몰이다. 상업시설과 체험 공간, 문화 및 금융 시설을 포함하고 있으며 260개의 테넌트(tenant) 공간으로 구성돼 있다. ‘에듀테인먼트(교육+오락)’를 콘셉트로 약 250개 상점이 입주했고, 열대 기후로 인해 야외 활동이 제한된 만큼 고객을 내부로 최대한 유입하도록 계획했다. 또한 25미터 높이의 스카이 브릿지와 스카이 슬라이더 등을 이용해 현지에서는 접하기 어려운 특별한 경험을 제공한다. 편도 500미터가 넘는 내부 전체를 유선형의 인테리어로 구성하고, 스카이 돔은 삼각형 패턴의 커튼 월로 마감했다. 외부는 더블스킨 펀치드 메탈 패널로 계획해 낮에는 독창적인 외관을, 밤에는 화려한 조명이 아름다운 경관을 연출한다. 구조는 포스트 텐션 공법(강철이나 섬유 강화 재료를 콘크리트 구조물에 압축하고 구조물이 완성된 후 강철을 고정시켜 압축을 유지하는 방식)을 적용해 구조물의 강도와 내구성을 향상시켰다. 또한 설계사가 시공 초기부터 현장에 상주해 디자인을 수정하며 시공하는 ‘디자인 빌드(DESIGN BUILD)’ 방식으로 작업을 진행했다. 더불어 모든 도서는 BIM 설계와 영문 도서 작성을 원칙으로 해외 설계사에서 작성된 계획안 또한 간삼건축이 BIM으로 전환 설계하고, VE 설계와 더불어 현장 CA 업무도 담당했다. 간삼건축만의 전문성을 바탕으로 한 투 트랙(2 TRACK) 전략으로 대규모 해외 프로젝트를 효과적으로 공기 단축하고, 상업시설의 전문적인 설계 노하우로 성공적으로 사업을 완수했다.


The AEON Mall 3 in Cambodia, situated south of Phnom Penh, is the third AEON Mall in the country and the largest mixed-use shopping complex in Cambodia. It houses commercial facilities, experiential spaces, cultural, and financial services, with spaces for 260 tenants. With the concept of “edutainment” (education + entertainment), around 250 stores are housed within, designed to maximize customer inflow, especially considering the limited outdoor activities due to the tropical climate. Unique experiences uncommon in the region, such as a 25-meter high Sky Bridge and Sky Slider, are highlights of the mall.
The mall’s interior stretches over 500 meters in one direction, featuring streamlined interiors, while the sky dome is finished with a triangular pattern curtain wall. The exterior is designed with double-skin punched metal panels, creating a distinctive appearance during the day and a spectacular lighting display at night. The structure’s strength and durability are enhanced by applying the post-tensioning technique, which compresses steel or fiber-reinforced materials into the concrete structure and maintains compression after the structure is completed.
Furthermore, the project was carried out using a “Design Build” approach, where the design firm was present on-site from the early stages of construction to make design adjustments during the building process. All documentation followed the principle of BIM design and was prepared in English, with overseas plans also converted into BIM by Gansam Architects & Partners. Additionally, Gansam was responsible for VE (Value Engineering) design and on site Construction Administration (CA) tasks. Utilizing a two-track strategy based on Gansam’s expertise allowed for effective shortening of the project timeline and successful completion of this large-scale international project with their commercial facility design know-how.








| 캄보디아 이온몰 3호점 설계자 | 김태성 _ (주)간삼건축종합건축사사무소 공동설계(인테리어 및 MD) | SEMBA Corporation (일본) 건축주 | 이온몰 캄보디아 법인 감리자 | (주)창조종합건축사사무소 시공사 | (주)현대엔지니어링 설계팀 | 김태완, 서호직, 권혁석, 허상범, 김보영, 이승희, 임형식, 신영호, 양여중, 신지연, 우준희, 민지혜 설계의도 구현 | (주)간삼건축종합건축사사무소 대지위치 | Phum Prek Talong 3, Sangkat Chak Angre Krom, Khan Mean Chey, Phnom Penh, Cambodia. 주요용도 | 판매시설(복합상업시설) 대지면적 | 173,998㎡ 건축면적 | 71,901㎡ 연면적 | 219,075㎡ 건폐율 | 41.32% 용적률 | 125.91% 규모 | 5F 구조 | 철근콘크리트 구조, 포스트텐션 구조, 철골 구조 외부마감재 | 알루미늄글라스커튼월, 알루미늄복합패널 내부마감재 | 인조석재타일, 포세린타일, 플라스틱인조석재, 페인트, 알루미늄복합패널 설계기간 | 2020. 04 - 2023. 03 공사기간 | 2020. 08 - 2022. 12 사진 | (주)현대엔지니어링 구조분야 | (주)아이스트 기계설비분야 | SHINRYO 전기분야 | FUJIFUROKAWA 소방분야 | (주)한일엠이씨 토목분야 | (주)진영컨설턴트 인테리어 | (주)국보디자인 |
AEON MALL MEAN CHEY, CAMBODIA Architect | Kim, Taesung _ Gansam Co., Ltd Collaborative design(Interior & MD) | SEMBA Corporation (JAPAN) Client | AEON MALL Cambodia Supervisor | Chang-Jo Architects Inc. Construction | HYUNDAI ENGINEERING Co., Ltd Project team | Kim, Taewan / Seo, Hojik / Kwon, Hyuksuk / Heo, Sangbeom / Kim, Boyoung / Lee, Seunghui / Lim, Hyoungshik / Shin, Youngho / Yang Yeojoong / Shin, jiyeon / Woo, Junhee / Min, Jeehye Design intention realization | Gansam Co., Ltd Location | Phum Prek Talong 3, Sangkat Chak Angre Krom, Khan Mean Chey, Phnom Penh, Cambodia. Program | Commercial facility Site area | 173,998㎡ Building area | 71,901㎡ Gross floor area | 219,075㎡ Building to land ratio | 41.32% Floor area ratio | 125.91% Building scope | 5F Structure | RC, Post Tension Structure, Steel Structure Exterior finishing | AL Glass Curtain Wall, AL Panel Interior finishing | Artificial Stone Tile , Polished Tichical Porcelain Tile, Recycle Plastic Artificial Wood, Recycle Paint, Laminated Glass, Aluminum Composite Panel (hair line) Design period | Apr. 2020 - Mar. 2023 Construction period | Aug. 2020 - Dec. 2022 Photograph | HYUNDAI ENGINEERING Co., Ltd Structural engineer | I’ST Structural Engineering Group Mechanical engineer | SHINRYO Electrical engineer | FUJIFUROKAWA Fire engineer | Hanil Consultants Civil & Infra Structure | Jin Young Consultants Interior Design | KUKBO Design |
