광혜원 커피숍 ‘카페 그레이나인’ 2018.05
CAFE GRAY 9

다양한 감각을 만족시키는 공간
대지는 진천 광혜원 행정관청이 자리잡은 상업지구이다. 북측 인근에 아파트와 공원이 자리하고 있지만, 주변의 상권이 발전되지 않아서 다가구주택 등이 자리 잡아가고 있는 대지에, 카페를 짓고 싶다며 건축주 한가족이 찾아왔다.
대지에는 조립식 건축물이 한 채 자리잡고 있었고, 좌측중앙에 벚나무 한 그루가 심어져 있었다. 택지개발로 구성된 정사각형의 대지는 네모와 동그라미 하나를 기호로 남겨주었다. 평면 대지의 특성상 내부공간을 위한 프로그램을 최대한 고려해야 했다.
대지의 벚나무를 중심으로 ㄷ자 배치하고 일본풍의 중정을 중심으로 내부의 시야를 수직, 수평적으로 트이도록 계획했다. 특히 중정의 벚나무와 접한 3면의 벽체를 폴딩도어로 개방면서 외부와 내부의 모호한 경계를 만들었다. 넓은 창으로 인해 공간을 외부에서 내부로, 내부에서 외부로 끌어들이고 있다.
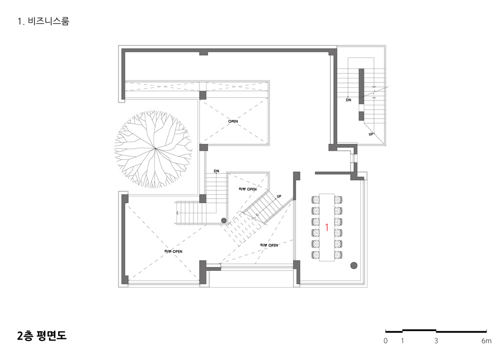
내부공간을 입체적으로 만들기위해 계단을 1층부터 3층까지 오픈된 곳에 설치했다. 1층에서 2층으로 오르는 계단을 진입하면 공간의 다양함을 느낄 수 있다. 중공의 계단을 오르며 2층에 다다르는 동안 벚나무의 향내로 후각적 즐거움을 제공한다. 2층의 주공간은 커피숍이며 아담한 유리매스로 구획된 2층 높이의 특별실이 마련되어 있다. 3층으로 오르는 계단은 사선으로 디자인돼 건물 전체의 수직, 수평적 공간의 범위를 한번에 느낄 수 있다. 곳곳에 설치된 창은 관류되는 빛과 내부로 스며드는 풍경에 의해 시각적 풍부함을 더해 줄 것이다.
‘커피’라는 매개는 사람과 사람을 잇는 모티브이자 문화이다.
커피를 중앙에 놓고 시간을 보내는 단순한 활동공간은 들어오는 사람들에게 힐링을 제공해야 한다. 딱딱한 일상에 잠시나마 쉴 수 있는 정신적 휴식을 주기 때문이다. 마주한 탁자에서는 지난 추억이나 희망이 이야기된다. 사용자의 기대심리를 이끌어 올려야 한다는 점이 카페의 중요한 포인트이다. 인테리어의 분위기나 장소적 이점도 중요하지만 이용자들의 관계성을 심리적으로 잘 상상해야 한다. ‘보다. 듣다. 쉬다. 걷다. 먹다’같은 단순한 동사를, 형용하여 공간에 표현해야 한다.
훔쳐 보다. 관통해 보다. 조용히 듣다. 관심있게 들린다. 재미있는 공간을 걷다. 공간을 놀랍도록 오르다. 편안히 쉬다. 조용히 쉴 수 있다. 맛있게 먹다 등 아이디어를 구성하여 공간의 스토리를 구상하고 동선을 꾸며야 한다.

Spaces that satisfy various senses
The site is a commercial district where the administrative office of Gwanghyewon, Jincheon is located. The owner family wanted to build a cafe on the site where multi-family houses, etc. are being located because the surrounding business district didn’t developed although apartments and parks are located near the north side.
There was a prefabricated building on the site, and one cherry tree was planted in the center of the left side. The square land made by land development left a square and a circle as a symbol. Due to the nature of the flat ground, I had to consider the program for the inner space as much as possible.
‘ㄷ’ shaped layout was planned around the cherry tree of the site, and the inside view was arranged vertically and horizontally centering on a Japanese style courtyard. Especially, the three sides of the wall facing the cherry tree of the courtyard were opened with a folding door, creating a vague boundary between the outside and the inside. Because of the wide window, the space is drawn from outside to inside, and from inside to outside.
In order to make the interior space three-dimensional, the stairs were installed from the first floor to the third floor. You can feel the diversity of space by entering the stairs going from the first floor to the second floor. Climbing up the hollow stairs, you can enjoy olfactory pleasure from the smell of cherry trees while reaching the second floor. The main space on the second floor is a coffee shop, and there is a two-story special room divided into a small glass mass. The staircase that goes up to the third floor is designed as an oblique line, so you can feel the vertical and horizontal space of the whole building at once. The windows that are installed everywhere will add visual richness to the light and landscape that permeates into the interior.
The medium of 'coffee' is the motif and culture that connects people.
A simple activity space that spends time with coffee in the center should provide healing for incoming people. Because it gives a spiritual rest that allows you to rest for a while in a hard day. On the table you are facing, memories and hopes are told. The key point of the cafe is that it should lead users' expectation. The atmosphere of the interior or the advantages of the place is important, but imagining the relationship of the users psychologically is essential. Such simple verbs as 'See. Listen. Rest. Walk. Eat’ should be expressed in space.
Steal a look. Look through it. Listen quietly. It sounds interesting. Walk in a fun space. Climb up a space amazingly. Relax comfortably. Can rest quietly. By conceiving these ideas, it needs to conceive a space story and make a movement line.












| 광혜원 커피숍 ‘카페 그레이나인’ 설계자 ┃ 이진경 KIRA _ 신공간 건축사사무소 건축주 | 윤태석 감리자 | 이진경 _ 신공간 건축사사무소 시공사 | 김광식 _ 신공간건설 설계팀 | 김지석, 김수진 대지위치 | 충청북도 진천군 광혜원면 화랑2길 15 주요용도 | 근린생활시설(휴게음식점, 사무소) 대지면적 | 276.00㎡ 건축면적 | 162.84㎡ 연면적 | 320.47㎡ 건폐율 | 59.00% 용적률 | 116.11% 규모 | 지상 3층 구조 | 철근콘크리트조 외부마감재 | 노출콘크리트, 스터코, THK24 로이복층유리 내부마감재 | 노출콘크리트, 락카, 포세린타일, 대리석, 구로철판 설계기간 | 2016. 07 ~ 2016. 10 공사기간 | 2016. 10 ~ 2017. 06 사진 | 이진경 구조분야 : 연우구조 기계설비분야 : CK엔지니어링 전기분야 : 미래이앤지 소방분야 : 일양플랜트 |
CAFE GRAY 9 Architect | Lee, Jinkyeong _ Neospace architects Client | Yoon, Taeseok Supervisor | Lee, Jinkyeong _ Neospace architects Construction | Kim, Gwangsik _ Neospace construct Project team | Kim, Jisuck / Kim, Sujin Location | 15, Hwarang2-gil, Gwanghyewon-myeon, Jincheon-gun, Chungcheongbuk-do, Korea Program | Neighbourhood living facility Site area | 276.00㎡ Building area | 162.84㎡ Gross floor area | 320.47㎡ Building to land ratio | 59.00% Floor area ratio | 116.11% Building scope | 3F Structure | RC Exterior finishing | Exposed concrete, Stucco, Low-e paired glass Interior finishing | Exposed concrete, Lacquer, Porcelain tile, Marble, HR steel Design period | Jul. 2016 ~ Oct. 2016 Construction period | Oct. 2016 ~ Jun. 2017 Photograph | Lee, Jinkyeong Structural engineer | Yeunwoo eng Mechanical engineer | CK eng Electrical engineer | Mirae eng Fire engineer | Il Yang Plant |