카페루브시 2024.6
cafe Louveci

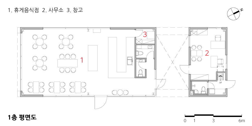
카페 루브시는 광주 본촌동에 자리한다. 이 지역은 대도시이지만 드물게도 넓은 논밭과 우뚝 솟은 산이 한눈에 들어오는 풍경을 자랑한다. 건축주는 이곳에서 사람들이 여유롭게 쉴 수 있는 공간과 최고의 커피를 제공하고자 했다. 두 동으로 이뤄진 카페 루브시는 로스터즈에서 원두를 로스팅한 후 카페에서 이를 사용하는 시스템을 구축해 최상의 커피를 제공한다.
카페 루브시
카페 루브시의 디자인은 알프레드 시슬레의 작품 ‘루브시엔느의 눈’에서 영감을 받았다. 이는 초기 인상주의의 대표적인 작품으로, 겨울 햇빛 아래 루브시엔느 마을의 모습을 통해 차분하고 신비로운 느낌을 전달한다. 이러한 중의적인 감성을 디자인에 반영하기 위해 차가운 금속의 느낌을 흰색으로 따뜻하게 표현하고, 골의 라인을 지붕과 벽에 맞춰 반복미와 통일감을 부여했다. 또한, 로스터즈 측면의 창은 박공모양으로 디자인하여 카페와의 조화를 이끌어내며, 마당을 향해 정면성을 부여했다.
매스와 매스 사이에 활기를 넣다
건축에서 마당은 무한한 가능성을 지닌 공간으로 여겨진다. 카페와 로스터스는 같은 대지에서 커피의 생산과 판매가 이뤄지며 서로 연계된다. 그 사이를 잔디마당이 채운다. 이 공간은 카페와 로스터스 사이의 축과 넓은 논밭과 산의 자연의 축이 교차하는 곳에 위치해 무한한 에너지를 품고 있다. 가족들은 아이들과 함께 뛰어놀고, 연인들이나 혼자 오는 손님들도 넓은 들판을 바라보며 기분을 전환할 수 있다. 또한, 이 공간은 차후 다양한 문화적 프로그램을 실시할 수 있는 잠재력을 갖고 있다.


‘Cafe Louveci’ is located in Bonchon-dong, Gwangju. Although this area is a metropolitan area, it boasts a rare landscape of wide rice fields and towering mountains visible at a glance. The owner aimed to provide a space where people can relax and enjoy the finest coffee. ‘Cafe Louveci’, consisting of two buildings, has established a system where coffee beans are roasted at the roastery and then used at the cafe to provide the best coffee.
Cafe Louveci
‘Cafe Louveci’ design draws inspiration from Alfred Sisley’s artwork ‘Snow at Louveciennes.’ This piece is a representative work of early Impressionism, conveying a serene and mystical feeling through the view of Louveciennes village under the winter sunlight. To reflect such ambiguous sentiment in the design, the cold metal feeling is warmly expressed in white, and the lines of the roof and walls are aligned with the essence of repetition and unity. Additionally, the windows on the roastery side are designed in a perforated pattern to harmonize with the cafe and give frontal emphasis toward the courtyard.
Injecting vitality between masses
In architecture, a courtyard is considered a space with endless possibilities. The cafe and roastery are interconnected, as they both produce and sell coffee on the same site. Filling the space between them is a grassy lawn. Positioned at the intersection of the axes of the cafe and roastery and the wide rice fields and mountains, this space exudes boundless energy. Families can play with their children, while couples or solo visitors can change their mood by gazing at the expansive fields. Moreover, this space has the potential for various cultural programs in the future.




| 카페루브시 설계자 | 소상용 _ 소아키 건축사사무소 건축주 | 서채원 _ 루브시 감리자 | 소아키 건축사사무소 시공사 | 이현철 _ (주)디엠산업개발 설계팀 | 황인우 대지위치 | 광주광역시 북구 하서로 587-2 주요용도 | 제1종근린생활시설 대지면적 | 657.00㎡ 건축면적 | 130.32㎡ 연면적 | 158.40㎡ 건폐율 | 19.84% 용적률 | 24.11% 규모 | 2F 구조 | 일반철골구조 외부마감재 | 징크 강판 내부마감재 | 바닥 - 콘트리트 폴리싱 벽 - 석고보드 위 지정도장 천장 - 지정도장 설계기간 | 2022. 08 - 2023. 01 공사기간 | 2023. 05 - 2023. 11 사진 | 송기호 구조분야 | (주)에이펙스 기계설비·전기·소방분야 | (주)팔마이엔지 |
cafe Louveci Architect | So, Sangyong _ SOAKI ARCHITECTURE OFFICE Client | Seo, Chaewon _ Louveci Supervisor | SOAKI ARCHITECTURE OFFICE Construction | Lee, Hyunchol _ DM Industrial Development Co. Project team | Hwang, Inwoo Location | 587-2, Haseo-ro, Buk-gu, Gwangju, Korea Program | Cafe, Office Site area | 657.00㎡ Building area | 130.32㎡ Gross floor area | 158.40㎡ Building to land ratio | 19.84% Floor area ratio | 24.11% Building scope | 2F Structure | Steel construction Exterior finishing | Zinc Interior finishing | Floor _ Concrete Polishing wall _ Designated painting on gypsum board Ceiling _ Designated painting Design period | Aug. 2022 - Jan. 2023 Construction period | May 2023 - Nov. 2023 Photograph | Song, Giho Structural engineer | Apex partners Mechanical·Electrical·Fire engineer | Palma Eng |
