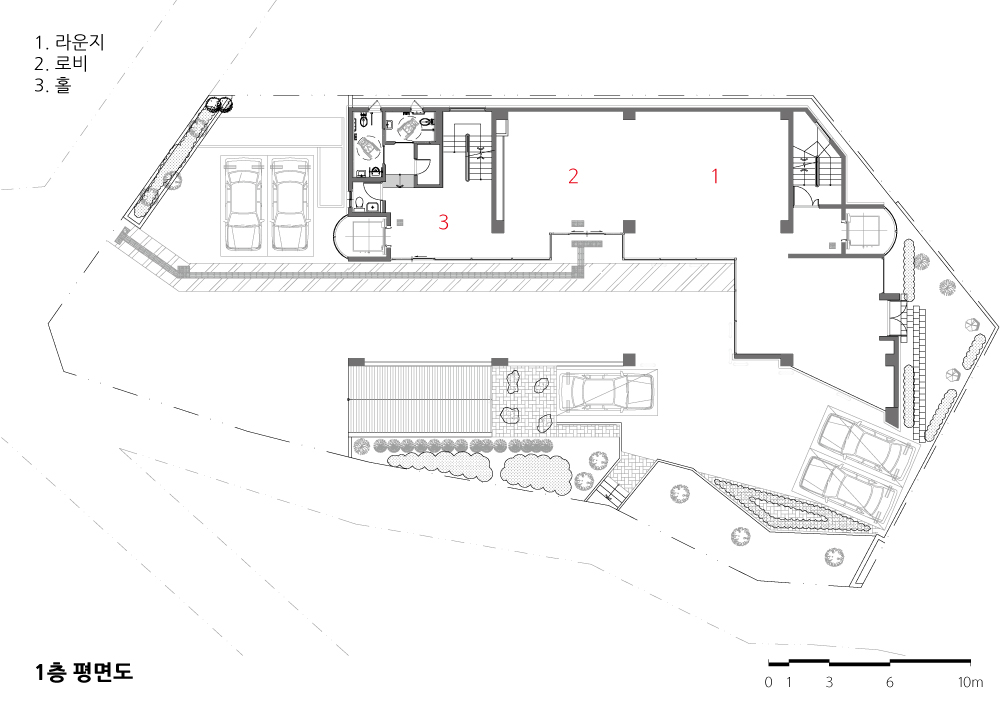
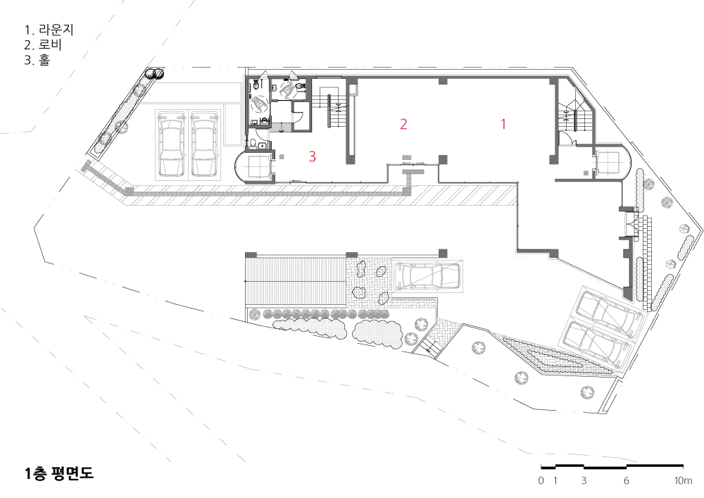
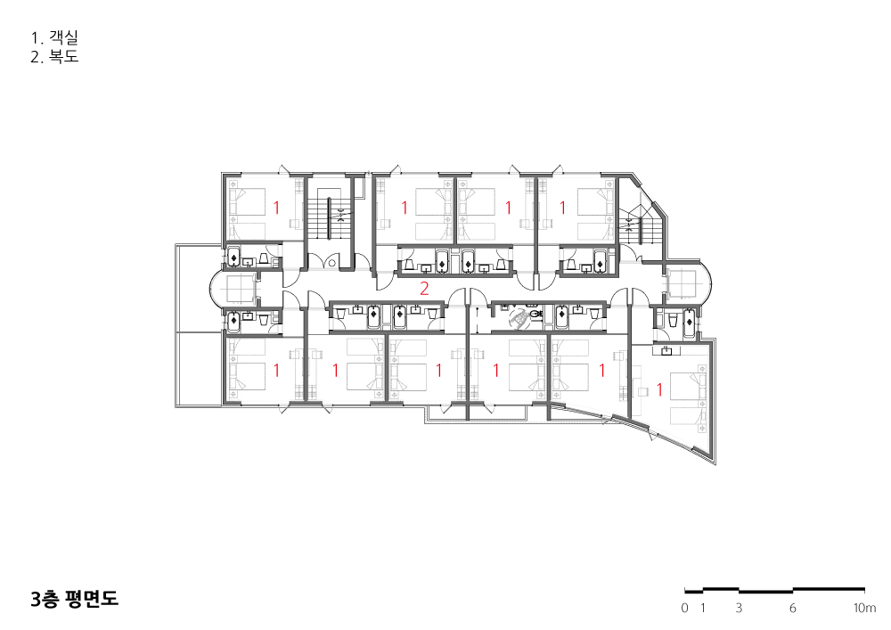
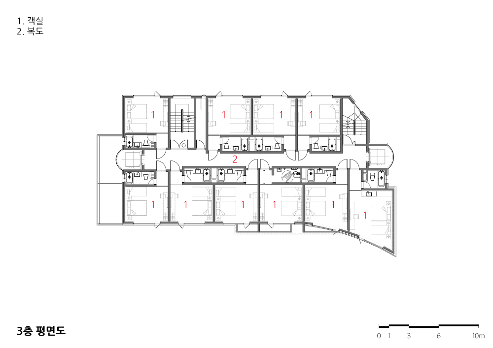
호텔 포레 프리미어 2018.10
HOTEL FORET PREMIER

리모델링이라는 구조적 제약과 함께 역동적인 이미지를 전달하기 위해서 물성은 매우 가벼운 금속판의 변형으로 이루어져 있다. 하늘과 마주한 얇은 띠는 구조체의 벽면으로부터 자유롭게 분리되어 변주되고 있어서, 빛과 그림자의 변화를 수시로 표출시킨다. 백색의 반사체가 이곳을 주변과 완전히 분리시키고, 그림자의 깊이가 변화할 때 이곳에 온 이유가 자연을 체험하기 위해 서라는 것을 일깨워 준다.
기존 창문은 그대로 주고 창문 주위는 유리와 비슷한 색을 선정하여 창문의 모습이 되도록 사라 지면서 배경이 되도록 하였다. 고동색의 밴드와 백색의 밴드의 교차이미지는 창문이 객체로 인 지되던 기존 입면에서 기능을 숨기고 밴드자체가 됨으로써, 무대의 막이나 방안의 커튼과 같이 대상이 되기보다는 중성화되기 위한 조절이다.

The variations of extremely light metal plates are the overall theme of the materiality. They carry dynamic image of the project regardless of the restrictions by the nature of the project, remodeling. The metal bands are varying far from the actual exterior of the building. They are continuously interacting with the sky by reflecting the changes of light and shadow. Once the visitors notice the white bands are intensifying natural features around the site, they figure out that they visit here because they want to be part of the nature.
By matching the tone of colors of windows and wall around them, the windows are no longer individual but parts of the background. White steel straps between window rows unify shape of the mass, which had varied by floorto floor. Those straps amplify image ofthe background even further. The juxtaposition of these dark brown (widow rows) and white straps is the process of neutralization of windows. Formerly, they were considered as isolated objects in the elevation. Now, they become part of juxtaposing bands and neutralized, as if curtain of the stage and curtain of room.







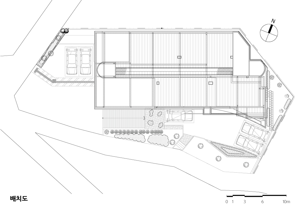
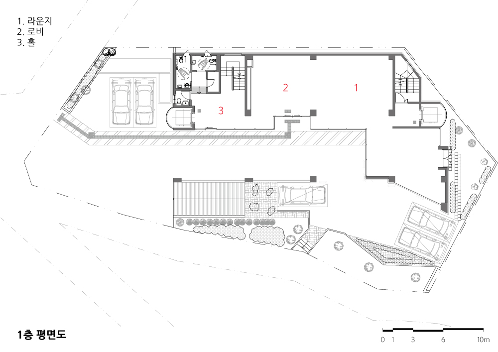
| 호텔 포레 프리미어 설계자 ┃ 노휘 KIRA ┃ 디디스튜디오 건축사사무소 건축주 | 신재원 감리자 | 황석규 _ (주)보고건축사사무소 시공사 | 박성출 _ 가우디 종합건설 설계팀 | 이강국, 허승정 대지위치 | 부산광역시 해운대해변로265번길 13-20 주요용도 | 호텔 대지면적 | 789.51㎡ 건축면적 | 343.52㎡ 연면적 | 3,081.32㎡ 건폐율 | 43.51% 용적률 | 338.49% 규모 | 지하 1층, 지상 9층 구조 | 철근콘크리트조 + 철골조 외부마감재 | 알루미늄 시스템 패널 내부마감재 | 수성페인트, 인테리어 벽지 설계기간 | 2016. 02 ~ 2016. 10 공사기간 | 2017. 12 ~ 2018. 02 사진 | 정광식 전문기술협력 구조분야 : (주)베이스구조시술사무소 기계설비분야 : (주)한빛디엔에스 전기분야 : (주)한빛디엔에스 소방분야 : (주)정찬이엔지 |
HOTEL FORET PREMIER Architect | Roh, Hwi _ DiDi STUDIO Architecture Client | Sin, Jaewon Supervisor | Hwang, Sukkyu _ Bogo Architecture Construction | Park, Sung-chul _ Gaudi Construction Co. Project team | Lee, Kangkook / Heo, Seungjeong Location | 13-20, Haeundaehaebyeon-ro 265beongil, Haeundae-gu, Busan, Korea Program | Hotel Site area | 789.51㎡ Building area | 343.52㎡ Gross floor area | 3,081.32㎡ Building to land ratio | 43.51% Floor area ratio | 338.49% Building scope | B1F - 9F Structure | RC + SC Exterior finishing | AXIL system panel Interior finishing | Water paint, Interior wallpapers Design period | Feb. 2016 ~ Oct. 2016 Construction period | Dec. 2017 ~ Feb. 2018 Photograph | Jeong, Kwangsik Structural engineer | Base Structural Technology Co. Mechanical engineer | Han Bit Engineering Co. Electrical engineer | Han Bit Engineering Co. Fire engineer | Jung Chan Engineering Co. |