연신내 타오 호텔 2018.10
Hotel TAO

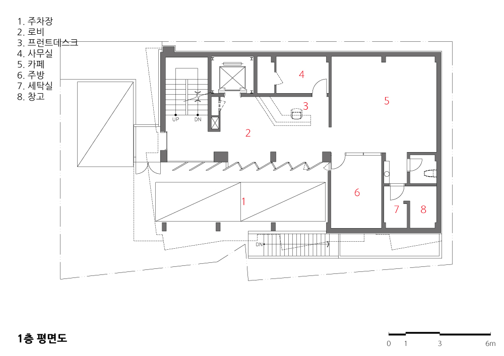
연신내 상업지구에 위치한 본 건물은 30년 정도 된 낡은 모텔로 운영중이었다. 본 프로젝트는 외국인 관광객들의 급증으로 인하여 부족한 호텔 수요에 부응하기 위하여 기존 모텔을 리모델링 하고 1개 층 증축하여 관광호텔로 만드는 작업이다. 상업지역 특성 상 인접 건 물과 2m 내외의 이격거리로 인하여 프라이버시가 심각하게 침해되고 있었고, 객실 또한 작고 열악했으며, 구조적인 불안정성이 파악되었다. 단순한 기존 객실 크기를 재조정하여 넓이와 높 이가 다른 공간의 다양성을 확보했으며, 안정적인 구조를 위해 구조보강 작업이 진행됐다. 특히 프라이버시를 해결하는 전략으로 외벽을 공간화했다. 기존 외벽을 기울이면서 창문 방향을 틀 었다. 새로 발생한 외벽 공간에 컴퓨터 등 가구를 설치하여 가구들을 정리했으며, 틀어진 외벽 을 통해 역동적인 형태의 외관을 가진 건물이 되었다. 내부 복도 벽 또한 틀어진 외벽과 같은 방 향으로 틀어서 각 객실의 출입을 원활하게 만들었으며, 벽의 컬러를 구분하여 다양한 풍경을 시 도했다.

This building, which is located in the commercial district of Yeonsinnae, was operated as an old motel and is about 30 years old.
This project is to remodel the existing motel and to build one more floor to make it a tourist hotel in order to meet the lack of hotel demand due to the surge of foreign tourists. Due to the characteristics of the commercial area, the privacy was seriously infringed by the distance of about 2m from the adjacent building, the rooms were small and poor in addition to structural instability. By simply re-adjusting the size of the existing rooms, diversity of spaces with different widths and heights has been ensured, and structural reinforcement work has been carried out for a stable structure. Especially, I made a space of the exterior wall as a strategy to solve privacy. I tilted the existing exterior wall and turned the direction of windows. In the new exterior wall space, furniture such as computer was installed and the furniture was arranged, and it became a building with a dynamic appearance through a distorted outer wall. The interior corridor wall was also turned in the same direction as the outer wall, which made it easier to access each room. I tried different scenes by separating the colors of the wall.









| 연신내 타오 호텔 설계자 ┃ 강현석 KIRA ┃ 이응 건축사사무소 건축주 | (주)려원 감 리자 | 강현석 _ 이응 건축사사무소 시공사 | 일오건설 주식회사 설계팀 | 김지영 대지위치 | 서울특별시 은평구 통일로 863-24 주요용도 | 관광숙박시설 대지면적 | 308.40㎡ 건축면적 | 168.76㎡ 연면적 | 987.47㎡ 건폐율 | 54.72% 용적률 | 251.02% 규모 | 지하 1층, 지상5층 구조 | 철근콘크리트조, 철골조 외부마감재 | 압축시멘트보드 내부마감재 | 비닐계 페인트, 벽지 설계기간 | 2015. 12 ~ 2016. 08 공사기간 | 2016. 08 ~ 2017. 01 사진 | 강현석 전문기술협력 구조분야 : (주)이도 구조엔지니어링 기계설비분야 : 중앙 엔지니어링 전기분야 : 중앙 엔지니어링 소방분야 : 중앙 엔지니어링 |
Hotel TAO Architect | Kang, Hyeonseok _ Ieung Architects Client | Ryeowon CO., LTD. Supervisor | Kang, Hyeonseok _ Ieung Architects Construction | ILO Construction CO., LTD. Project team | Kim, Jiyeong Location | 863-24, Tongil-ro, Eunpyeong-gu, Seoul, Korea Program | Hotel Site area | 308.40㎡ Building area | 168.76㎡ Gross floor area | 987.47㎡ Building to land ratio | 54.72% Floor area ratio | 251.02% Building scope | B1F - 5F Structure | RC+ST Exterior finishing | Compressed cement board Interior finishing | Vinyl paint, Wallpaper Design period | Dec. 2015 ~ Aug. 2016 Construction period | Aug. 2016 ~ Jan. 2017 Photograph | Kang, Hyeonseok Structural engineer | YIDO Structure ENG. CO., LTD. Mechanical engineer | JACO Electrical engineer | JACO Fire engineer | JACO |