스테이비 호텔 2019.3
HOTEL STAY B

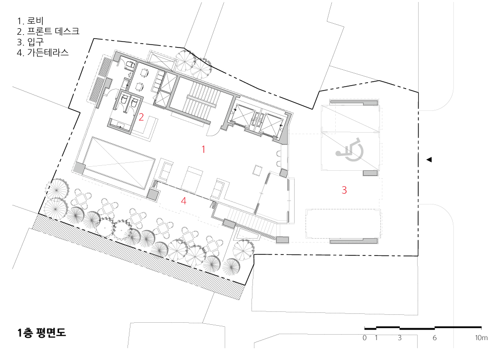
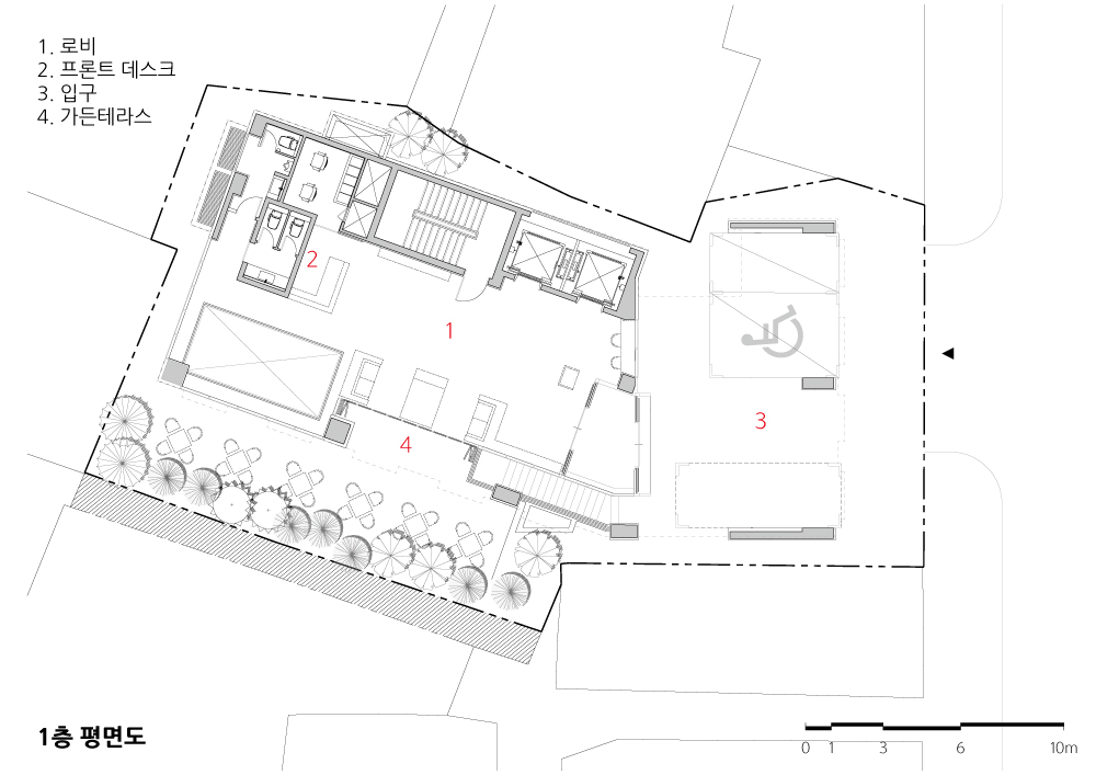
스테이비 호텔은 명동 한복판의 대지에 위치하 고 있다. 특징이라면 해당 대지가 매우 불규칙 한데, 이는 결국 건물 역시 마찬가지로 불규칙 한 모양을 띠는 데 주요한 영향을 주었다.
본 프로젝트의 주안점은 크게 두 가지였다. 첫 번째는 작은 필지에 작아 보이지 않는 건물을 올리는 일이었으며, 두 번째는 ‘돌출된 창문’을 설계하는 것이었다. 전자와 관련하여, 크지 않 은 필지의 규모와 달리 보행로에서 1층 로비로 들어가는 입구까지의 거리가 제법 된다. 마치 큰 호텔을 들어가는 듯한 기분을 자아낸다.
작아보이지 않는다고 해서 단지 용적률을 최대 치로 채웠다는 말은 아니다. 그보다는 불필요한 공간의 쓰임새나 장식을 최소화하고, 건물의 정 체성을 화려하게 알리기보다는 다소 무덤덤하 게 드러낸다는 점이다.
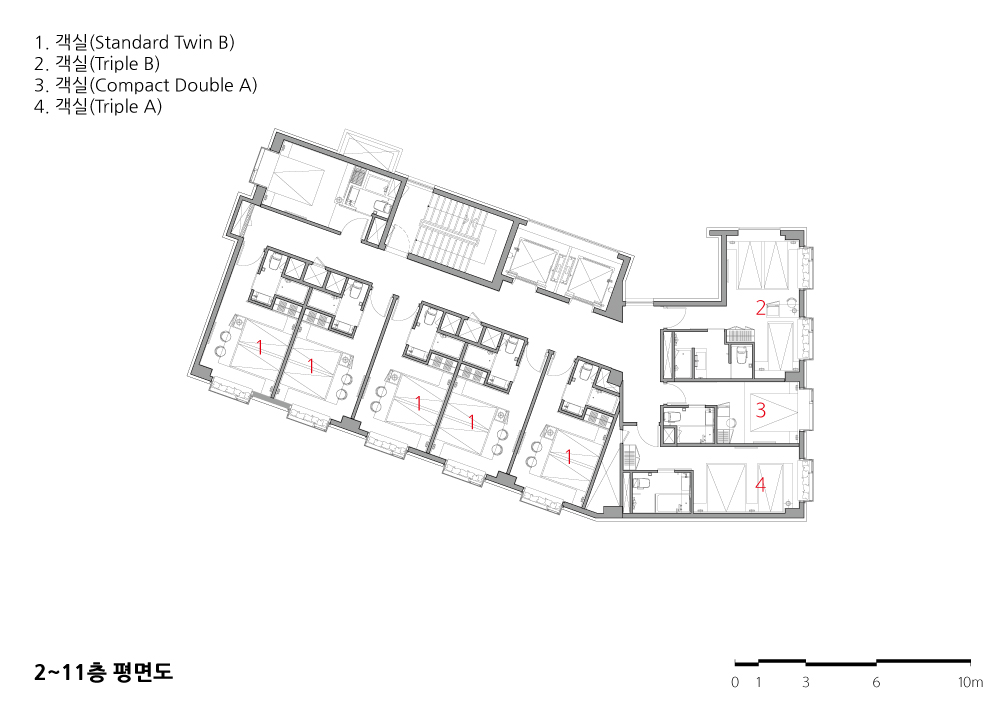
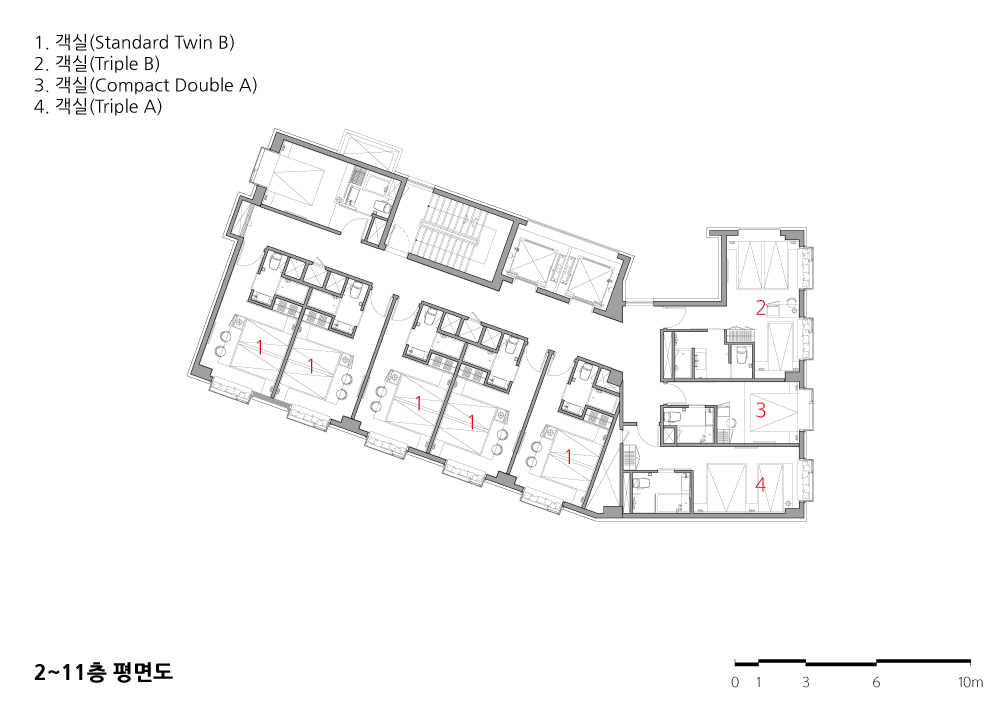
한편 밖에서 보는 돌출된 창문은 실내 공간의 쓰임새로 볼 때에는 앉고 누울 수 있는 휴식과 조망의 공간이기도 하다. 해외여행을 많이 다녔 는데, 생각보다 돌출 창문이 있는 경우는 거의 없었고, 그에 따라 창문에서 할 수 있는 행위란 제한적이었다. 충무로호텔의 돌출 창문에서는 3명이 충분히 앉을 수 있으며, 혼자서는 발을 쭉 뻗고 창가에 기대서 앉을 수 있다. 이제는 관광 명소가 된 명동에서 창은 그 이상의 의미로 다 가오지 않을까? 실용성을 고민했지만, 결과는 그 이상으로 나타났다.
화려한 아시아의 허브 서울에서 자신을 화려하 게 드러내는 것도 가능하겠지만, 거리를 두는 듯 또한 그렇지 않은 듯 관계를 맺는 제스처 역 시 한 방법일 것이다.

Stay B Hotel is located in the center of Myeong-dong. It is characterized by its very irregular site, which ultimately has a major influence on the irregular shape of the building.
There were two key points of this project. The first was to build a building that didn’t look small on a small site, and the second was to design a "prominent window." Regarding the former, the distance is a little far from the walkway to the entrance to the lobby on the first floor, unlike the size of the small site. It is like entering a big hotel.
Just because it doesn’t look small doesn’t mean that it merely maximizes floor area ratio. Rather, it minimizes the use and decoration of unnecessary space, and reveals the building's identity in a calm manner instead of expressing splendidly.
On the other hand, the prominent window seen from the outside is the space of rest and view that you can sit and lie in terms of the use of indoor space. We often traveled overseas, but there were fewer prominent windows than we thought, and accordingly the actions available in windows were limited. The prominent window of the Chungmuro Hotel is big enough for 3 people to sit, and one person can sit against the window alone. In Myeong-dong which has become a tourist attraction, isn’t a window more than that? We were worried about practicality, but the result was more than that.
It would be possible to reveal yourself showily in Seoul, a hub of splendid Asia, but a gesture of building a relationship that seems to put - or not - some distance would also be one of the ways.







| 스테이비 호텔 설계자 _ Architect. 최동규 _ Choi, Dong gyu (주)서인 종합건축사사무소 _ Seoinn Design Group 건축주 | 정홍덕 _ 주식회사 청산물산 감리자 | 최동규 _ (주)서인 종합건축사사무소 시공사 | (주)보미종합건설 설계팀 | 최유철 대지위치 | 서울특별시 중구 충무로 23-1호 외 1필지 주요용도 | 관광숙박시설(관광호텔) 대지면적 | 481.65㎡ 건축면적 | 274.00㎡ 연면적 | 3,383.64㎡ 건폐율 | 56.89% 용적률 | 597.89% 규모 | 지하2층, 지상12층 구조 | 철근콘크리트구조 외부마감재 | ZINC판넬, AL타공판넬, 화강석 내부마감재 | 자기질타일, 수성페인트, 구로철판, 노출콘크리트 위 페인트 설계기간 | 2012. 09 ~ 2013. 07 공사기간 | 2013. 08 ~ 2015. 02 사진 | 채수옥 전문기술협력 구조분야 : (주)환구조 기계설비분야 : (주)맥엔드엠이씨 전기분야 : (주)대경전기설계사무소 |
HOTEL STAY B Client | Jeong, Hongdeok Supervisor | Choi, Dong gyu _ Seoinn Design Group Construction | BOMI Engineering & Construction Project team | Choi, Yoocheol Location | 23-1, Chungmu-ro, Jung-gu, Seoul, Korea Program | Hotels Site area | 481.65㎡ Building area | 274.00㎡ Gross floor area | 3,383.64㎡ Building to land ratio | 56.89% Floor area ratio | 597.89% Building scope | B2F - 12F Structure | RC Exterior finishing | Zinc Panel, AL Panel with holes, Stone Interior finishing | Porcelain Tile, Vinyl paint, iron plate, painting on concrete Design period | 2012. 09 ~ 2013. 07 Construction period | 2013. 08 ~ 2015. 02 Photograph | Chae, Soouk Structural engineer | Hwan Structural Engineers Mechanical engineer | MAC N MEC Engineering Electrical engineer | Daekyung Electric |