빛들의 교회 2018.01
Church of Lights

대구광역시 외곽의 새로 개발되고 있는 옥포면 본리리에 위치한 ‘빛들의 교회’는 젊은 목사님의 애정 어린 관심 속에서 개척교회로 시작한 프로젝트로 작은 규모의 예배당이다.
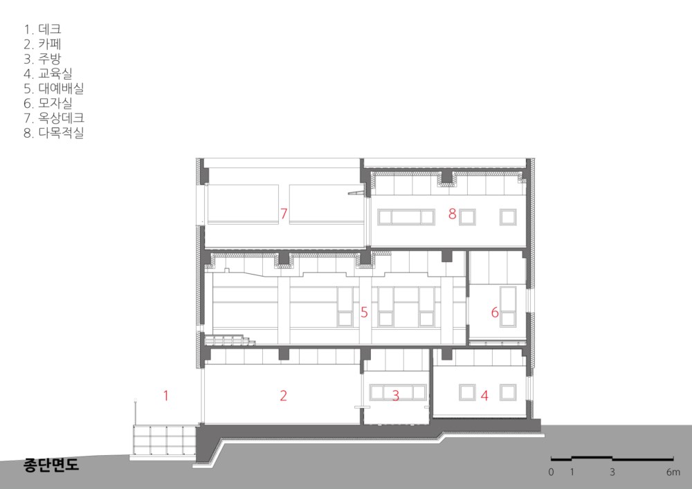
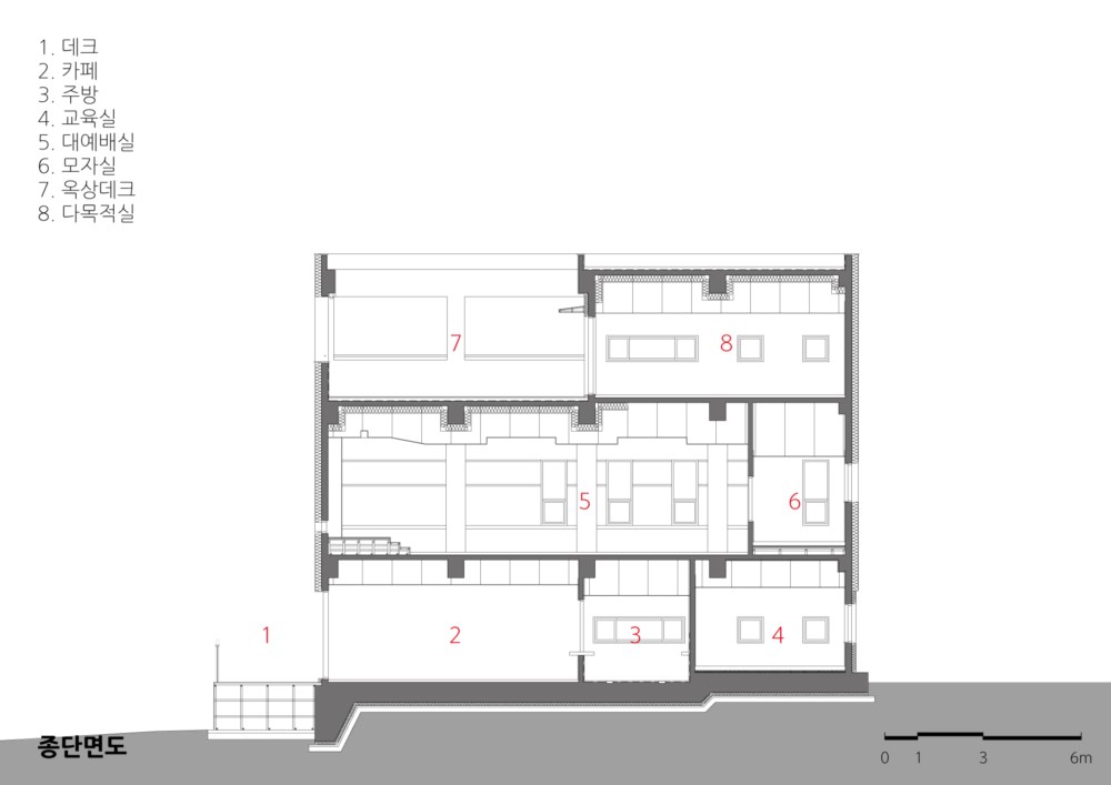
건축주의 요구사항은 두 가지로, 1층 카페가 부지 바로 옆의 어린이 공원과 연계되었으면 하는 것과 지척의 중부내륙고속도로지선에서 건축물을 알아보기 쉬워야 한다는 것이었다.
그에 따라 1층 바닥 레벨을 공원레벨과 동일하게 하여 카페에 앉아 공원에서 뛰어노는 아이들을 잘 볼 수 있도록 했고, 카페 앞 데크에서 공원으로 바로 연결될 수 있도록 했다.
또한 십자가 탑으로 주변과 고속도로에서도 교회가 있음을 알 수 있도록 했다.
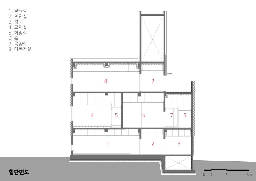
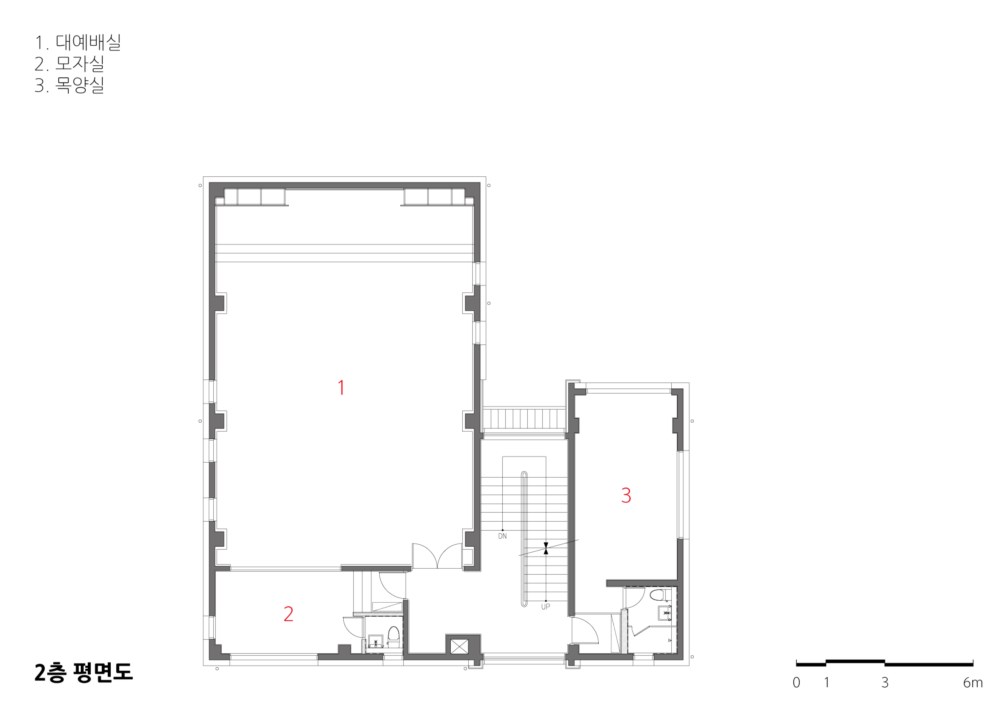
평범한 재료와 단순한 형태로 스스로를 낮추어 주변 풍경에 녹아들어 주민들의 이용에도 거부감이 없도록 했고, 지상부터 옥상까지 여러 위계의 외부공간을 두어 교회의 다양한 프로그램 활용이 가능하도록 했다.
작은 직사각형의 땅이지만 진입부에 최대한의 마당을 확보했고 자연스럽게 빛이 떨어지는 듯한 창문과 종탑의 조명 등으로 어두운 밤에도 사람들의 호기심을 자극한다.
‘드러내지 않되 기억에 남는 교회’가 되어 교인뿐만 아니라 주민들에게도 편안한 공간으로 안식을 찾을 수 있는 쉼터가 되기를 바란다.

The 'Church of Lights', located in Bolli-ri, Okpo-myeon which is a new development area in the outskirts of Daegu Metropolitan City, is a small-scale church that started to be constructed with a young pastor’s affectionate interest.
One of the client’s requirements was that the first floor cafe should be linked with the children's park next to the site, and that the building should be recognizable from the branch line of Central Region Expressway. As a result, the ground level on the first floor was the same as the park level so that people in the cafe could watch children running in the park while sitting in the cafe, and the deck in front of cafe was linked directly to the park. In addition, the cross tower also made it possible to recognize the presence of the church both on the highway and its surroundings.
With ordinary materials and simple forms, the church lowered itself to harmonize with its surrounding scenery so that the residents could naturally use. The church was designed to utilize its various programs due to various hierarchical outer spaces from the ground up to the roof. Although it is a small rectangular land, this church secures the maximum space of yard at the entrance and stimulates the curiosity of people even in the dark night, thanks to the windows and bell tower with lights that seem to fall naturally.
I hope that it will become ‘a church not to be revealed but to be remembered', so that it will be a shelter to find rest as a comfortable space not only for the church members but also for the residents.














| 빛들의 교회 설계자 | 이시홍 KIRA _ 창시 건축사사무소 건축주 | 신용근 감리자 | 김상기 _ 건축사사무소 휴먼아크 시공사 | 신용근 설계팀 | 김성은, 이성민, 류정환 대지위치 | 대구광역시 달성군 옥포면 비슬로447길 25-5 주요용도 | 종교집회장 대지면적 | 490.10㎡ 건축면적 | 204.20㎡ 연면적 | 494.50㎡ 건폐율 | 41.66% 용적률 | 100.91% 규모 | 지상 3층 구조 | 철근콘크리트조 외부마감재 | 스터코, 현무암 내부마감재 | 수성페인트 설계기간 | 2017. 03 ~ 2017. 06 공사기간 | 2017. 06 ~ 2017. 11 사진 | 창시 건축사사무소 구조분야 : 창시 건축사사무소 기계설비분야 : 한국기연 전기분야 : (주)뉴한국설계감리 소방분야 : 한국기연, (주)뉴한국설계감리 |
Church of Lights Architect | Lee, Sihong _ Changsi Architects Client | Shin, Yonggeun Supervisor | Kim, Sanggi _ Humanarc Architects Construction | Shin, Yonggeun Project team | Kim, Seongeun / Lee, Seongmin / Ryu, Jeonghwan Location | 25-5, Biseul-ro 447-gil, Okpo-myeon, Dalseong-gun, Daegu, Korea Program | Church Site area | 490.10㎡ Building area | 204.20㎡ Gross floor area | 494.50㎡ Building to land ratio | 41.66% Floor area ratio | 100.91% Building scope | 3F Structure | RC Exterior finishing | Stuc-O, Basalt Interior finishing | Water paint Design period | Mar. 2017 ~ Jun. 2017 Construction period | Jun. 2017 ~ Nov. 2017 Photograph | Changsi Architects Structural engineer | Changsi Architects Mechanical engineer | Hanguk System Electrical engineer | New-Hanguk Eng. Co. Fire engineer | Hanguk System / New-Hanguk Eng. Co. |