3/1(일삶)빌딩 2019.5
3/1 Building

성수동 _ 아주 오래된 미래
일과 삶의 공생
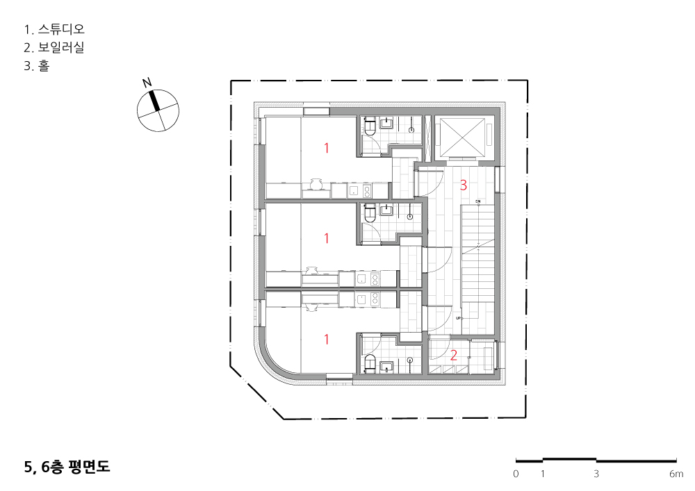
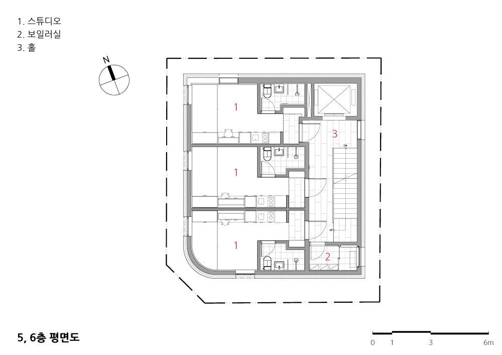
성수동 3/1(일삶) 빌딩은 중공업 지역인 성수동에서는 찾아보기 힘든 좁은 골 목 주택가에 위치해 있다. 골목을 조금만 벗어나도 여전히 다양한 종류의 공장 들이 끊임없이 돌아가고 있는 이색적인 곳이다. 자본주의의 가치에 밀려 많은 공장들이 도시 외곽으로 사라지는 요즘에도 이 곳은 여전히 일과 삶이 경계 없 이 공존하며 활기 있는 건강한 도시 풍경을 만들고 있다. 일삶 빌딩 역시 성수 동의 도시 풍경처럼 일과 삶이 함께하는 장소이다. 저층의 상업시설과 고층의 원룸형 주거시설이 복합된 건물이다. 이러한 프로그램의 혼합으로 낮과 밤의 다른 사용자들은 좁은 대지의 협소한 공간들을 효율적으로 공유할 수 있다.
거꾸로 커지는 매스
3/1(일삶) 빌딩이 들어서 있는 성수동의 연무장7가길은 전면에 발코니를 가 진 3층 규모의 비슷한 모습의 다가구 주택이 줄지어 서 있는 곳이다. 서울의 노 후화된 여느 주택가의 모습과 크게 다르지 않지만, 이 곳은 최대 용적률 400% 개발이 가능한 중공업 지역이다. 골목에 새롭게 지어지는 건물들은 7∼8층 이 상으로 좁은 골목길을 점점 답답하게 메워버릴 것이다. 3/1(일삶) 빌딩은 아 래로 작아지는 행태로 좁은 골목길을 수직적으로 확장시켜준다. 저층을 비워 내면서 주변 건물과의 거리를 기존보다 넓혀주어 기존 이웃의 프라이버시 침 해를 최소화하고 골목을 지나는 사람들에게 여유로운 풍경을 제공하고자 했다. 동네의 모습이 바뀌어가는 시작이 되는 3/1(일삶) 빌딩의 고민들이 앞으로 변화될 건물들에도 공유되길 기대한다.
성수동의 기억
지하철 2호선을 타고 내려다보는 성수동은 크고 작은 붉은 벽돌 건물들이 혼재 된 모습니다. 3/1(일삶)빌딩은 기존의 도시 맥락에서 이질적인 형태의 건물이 지만 재료를 통해 과거의 기억을 담고 기존 주변 건물과의 조화를 이루고자 한 다. 과거의 재료를 이용하지만 새로운 프로그램을 고려하여 기존과는 다른 방 식으로 조적하고자 했다. 두 가지 서로 다른 프로그램의 공존이 입면에서도 드 러날 수 있도록 벽돌 쌓기의 밀도를 다르게 했다. 저층의 상업시설은 이중외피 의 커튼월로 계획하여 다소 좁은 실내 공간의 개방감을 극대화하고 고층의 주 거 시설은 향후 주변 시설과의 시각적인 간섭을 고려하여 창 계획을 최소화했 다. 벽돌의 다양한 쌓기 방식으로 기존의 막힌 벽들은 빛을 받아들일 수 있도록 열리는 동시에 주변 이웃들의 삶이 지키질 수 있도록 스크린의 역할을 한다.

Seongsu-dong _ Ancient Futures
Symbiosis of Work and Life
Seongsu-dong 3/1 Building is located in a narrow residential area which is hard to find in heavy industry areas. When you walk few steps away from the narrow street, you will see various types of running factories. While many factories are transferred to outskirts of the city due to capitalistic values, Seongsu-dong still provides active and health cityscape where work and life exist together without boundary. Like Seongsu-dong’s cityscape, 3/1 Building is a place where work and life exist together. 3/1 Building is a composite building with commercial facilities in the lower floors and studio apartments in upper floors. With such composite building, different users at day time and night time can effectively share confined space in the small site.
Upside Down Mass
3/1 Building is located in Yeonmujang 7ga-gil, Sengsu-dong and you will see the lines of similar three-story multi-household houses with balcony on the façade. Although they are similar to other old residential areas in Seoul, Seongsu-dong is a heavy industry area with floor area ratio of up to 400%. The newly built buildings in the street have more than 7 to 8 floors and they will be stuffing the narrow street.
On the other hand, 3/1 Building has a upside down structure and the lower floor is smaller than the upper floor. Such structure vertically expands the narrow street. The smaller lower floors widen the distance between the surrounding buildings to minimize the invasion of neighbor’s privacy and to provide the relaxed scenery to people walking on the street. We hope such features of 3/1 Building would be also shared in other buildings in Seongsu-dong.
Memory of Seongsu-dong
When you look down at Seongsu-dong from Subway Line 2, you will notice that small and large red brick buildings are mixed in Seongsu-dong. Although 3/1 Building has a shape different from other urban contexts, 3/1 Building tries to reflect the past memory through materials and be in harmony with surrounding buildings. Although 3/1 Building uses the past material, the building considers about the new program and build bricks in a unique way. To express the co-existence of two different programs, 3/1 Building has a different density in laying brinks. The commercial areas in the lower floors are designed with double-skin curtain wall to maximize the sense of openness in relatively narrow indoor space. Also, the residential areas in the upper floors have less windows in consideration of visual interference from surrounding buildings. Such brickwork acts as a screen which allows the light to come inside the building while protecting the privacy of the neighbors.








| 3/1(일삶)빌딩 설계자 _ Architect. 김미희 _ Kim, Mihee 소수 건축사사무소 _ SOSU Architects 건축주 | 이건철 감리자 | 소수 건축사사무소 시공사 | 수림종합건설(주) 설계팀 | 고석홍, 황예슬, 박윤선, 김선아, 양형원 대지위치 | 서울특별시 성동구 연무장7가길 7 주요용도 | 근린생활시설 + 다가구주택 대지면적 | 138.02㎡ 건축면적 | 82.46㎡ 연면적 | 477.55㎡ 건폐율 | 59.74% 용적률 | 346% 규모 | 지상 7층 구조 | 철근콘크리트조 외부마감재 | 치장벽돌(삼한씨원 _ SH3205 미장토담) 내부마감재 | 바닥-원목형 합판마루 / 벽·천장-천연벽지 마감 설계기간 | 2017. 04 ~ 2017. 09 공사기간 | 2017. 09 ~ 2018. 10 사진 | 노경 전문기술협력 구조분야 : 터구조(주) 기계설비분야 : (주)건창기술단 전기분야 : (주)엘림전설 소방분야 : (주)엘림전설 |
3/1 Building Client | Lee, Geoncheol Supervisor | SOSU Architects Construction | SOO RIM Consturction Project team | Go, Seokhong / Hwang, Yeseul / Park, Yunsun / Kim, Seona / Yang, Hyeongwon Location | 7, Yeonmujang 7ga-gil, Seongdong-gu, Seoul, Korea Program | Commercial Facilities + Multi-Household House Site area | 138.02㎡ Building area | 82.46㎡ Gross floor area | 477.55㎡ Building to land ratio | 59.74% Floor area ratio | 346% Building scope | 7F Structure | RC Exterior finishing | Brick Interior finishing | Wood flooring, Wallpaper Design period | Apr. 2017 ~ Sep. 2017 Construction period | Sep. 2017 ~ Oct. 2018 Photograph | Roh, Kyung Structural engineer | THEKUJO Mechanical engineer | Kunchang Engineering Electrical engineer | Ellim Engineering Fire engineer | Ellim Engineering |
