화순 만연산 치유의 숲 치유센터 2019.7
MOUNTAIN MANYEON HEALING CENTER

프롤로그
자연을 즐기며 자연의 일부가 되고 자연의 지형을 최대한 활용한 치유센터 현대인의 긴장감, 스트레스에서 벗어나 만연산 치유의 숲에서 자연과 어우러 져서 여유롭게 힐링 할 수 있는 공간 계획
계획의 방향
소통_Communication
자연과 교감하는 치유센터 내 외부가 소통하는 평면계획
친환경성_Environment Friendly
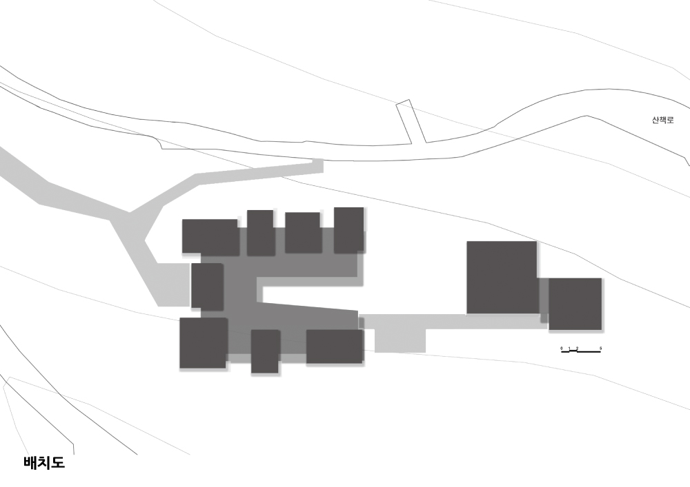
절성토 최소, 남향배치, 바람길 조성 자연속으로 건축이 들어가다
오감을 깨우는 치유의 숲 치유센터
아름다운 만연산 치유의 숲은 ‘시각’을 깨우고, 싱그러운 풀내음과 달콤한 꽃 향기가 ‘후각’을 건드린다. 그리고 맑고 청량한 물과 바람소리가 ‘청각’을 두드 리고, 여유로움 속 향긋한 차 한잔이 ‘미각’을 깨우며, 숲 사이로 뻗어 나온 따 뜻한 햇살이 ‘촉각’을 일으킨다.
풍경으로의 건축
풍경은 건축을 담고, 건축은 풍경을 담는다. 자연에서 바라본 건축과 건축물 내부에서 바라본 건축 자연은 내외부의 상호 교감과 어울림으로 하나의 풍경이 된다.

Prologue
A healing center that enjoys nature, becomes a part of nature, and makes full use of natural features.
A space plan that can relax and heal in harmony with nature in the healing forest of Manyeonsan where modern people are free from their tension and stress.
Direction of Plan
Communication
A healing center that interacts with nature A floor plan where the interior and the exterior communicate with each other
Environment Friendly
Minimum of cut embankment, southfacing, and construction of wind path Architecture goes into nature
Healing Center in Healing Forest to Awaken Five Senses
The beautiful healing forest of Manyeonsan wakes up a sense of ‘sight', and the scent of fresh grass and the sweet floral scent awakens ‘smell'. And the clear and clean water and wind sound touches ‘hearing', a cup of fragrant tea in relaxation wakes up the ‘taste', and warm sunlight showing through the forests arouses ‘touch'
Architecture as a Landscape
Landscape contains architecture, and architecture contains landscape.
Architecture viewed from nature and architecture nature seen from the inside of architecture becomes a landscape through interaction and harmony between the interior and the exterior.





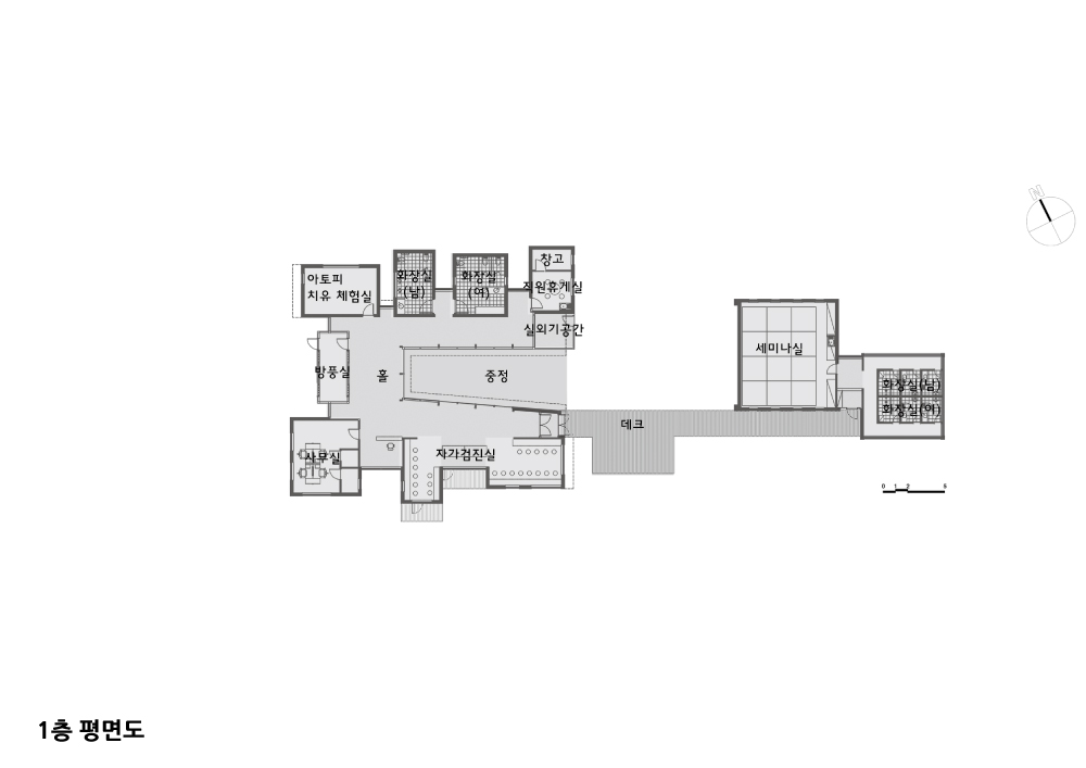
| 화순 만연산 치유의 숲 치유센터 설계자 _ Architect. 이순미 _ Lee, Soonme (주)건축사사무소 미가온 _ MIGAON Architects 건축주 | 전라남도 화순군 감리자 | (주)삼진 건축사사무소 시공사 | 서안종합건설 설계팀 | 강현창, 신민주, 조가영, 임권욱 대지위치 | 전라남도 화순군 화순읍 동구리 산 181-3 주요용도 | 마을공동시설 대지면적 | 4,871.00㎡ 건축면적 | 430.17㎡ 연면적 | 425.37㎡ 건폐율 | 8.83% 용적률 | 8.73% 규모 | 지상 1층 구조 | 중목구조 외부마감재 | 목재(이뻬)마감, 티타늄징크, 43mm 로이삼중유리시스템 내부마감재 | 자작나무합판(EO 등급) , 편백나무(무절점) 설계기간 | 2015. 05 ~ 2015. 08 공사기간 | 2016. 06 ~ 2017. 06 사진 | 조성진 전문기술협력 구조분야 : 도화건축구조 기계설비분야 : (주)지아이 엔지니어링 전기분야 : 청안 ENG / 소방분야 : (주)한길 이앤씨 |
MOUNTAIN MANYEON HEALING CENTER Client | Hwasun-gun Supervisor | Architecture SAMJIN Construction | SEOAN Construction Project team | Kang, Hyunchang / Sin, Minju / Cho, Gayoung / Lim, Gwonuk Location | San 181-3, Dongu-ri, Hwasun-eup, Hwasun-gun, Jeollanam-do, Korea Program | Community facility Site area | 4,871.00㎡ Building area | 430.17㎡ Gross floor area | 425.37㎡ Building to land ratio | 8.83% Floor area ratio | 8.73% Building scope | 1F Structure | Heavy Wood structure Exterior finishing | Western red ceder, Metal Panel, 43mm Lew-e Triple Glass System Interior finishing | Veneer of birch , Retinispora Design period | May 2015 ~ Aug. 2015 Construction period | Jun. 2016 ~ Jun. 2017 Photograph | Jo, Seongjin Structural engineer | DOHWA Mechanical engineer | G.I Engineering Electrical engineer | CHENG AN ENG Fire engineer | HANGIL ENC |
