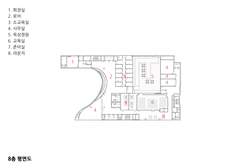
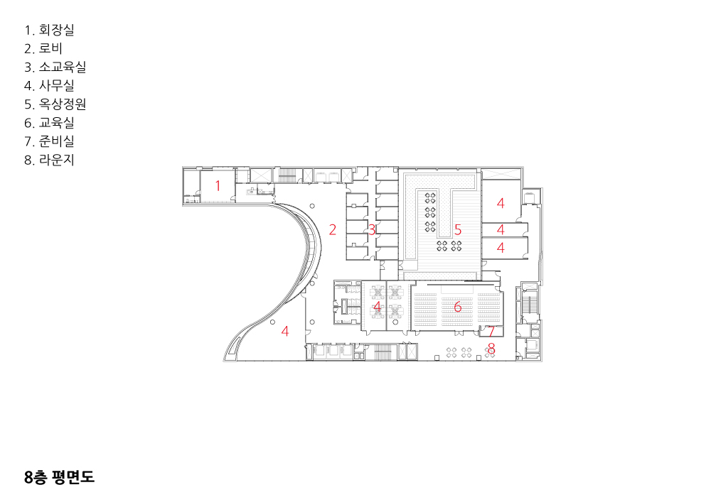
새문안교회 2020.3
Saemoonan Church

이웃사랑의 공공장소로서
새문안교회
한국 개신교 최초의 교회로 설립된 새문안교회가 132주년을 맞으며 광화문 신문로에 새 교회당을 건축했다. 하늘을 향해 두 팔을 펼친 듯 어머니 품의 형상이다. 새문안교회는 ①한국 개신교회 어머니 교회로서의 역사성 ②하늘나라를 향해 열린 문의 상징성 ③그리스도를 빛으로 표현하는 공간성 ④세례와 화목의 의미로서 수공간 제시라는 뚜렷한 네 개의 교회건축 테마를 기본지침으로 제시했다.
새문안교회 건축에서 인습적 첨탑은 하늘로 열린 부드러운 곡면 효과로 대체 되었고, 과도한 장식들은 단순하고 추상적인 표현으로 변환되었다. 그리고 통상의 긴 회랑 형식으로 엄숙한 공간 분위기를 조성하기보다는 부채꼴의 예배실 평면으로, 신도 상호 간의 역동적인 참여를 독려하는 새 시대적 예배공간을 제시하고 있다.
세계 어디에서도 찾아볼 수 없는 교회건축 타이폴로지인 움푹한 정면과 휜 아치형 게이트가 조성하는 새문안로의 마당은, 수도원적 폐쇄성을 지닌 경건한 예배공간을 지향하기보다 이웃을 향해 교회를 열어서 시민들의 실질적 휴식처가 되기를 바라는 의도다. 그리고 로비를 관통하며 세종문화회관 쪽으로의 연속적 소통을 꾀한 부분 역시 교회의 개방성을 잘 보여주는 면이다. 여기에 기존 벽돌 교회를 축소해서 역사를 추억하게 하는 작은 예배실 또한 적극적으로 개방된 문화공간으로 쓰이게 될 것이다.

Saemoonan Church as a public place of Loving Neighbors
Established as the first Korean protestant church, Saemoonan Church constructed a new church on Sinmunno, Gwanghwamun, celebrating its 132nd anniversary. The shape resembles a mother's arms stretched out toward the sky. Saemoonan Church proposed four distinct church construction themes as basic guidelines; ① the historicity as the mother church of Korean protestant churches, ② the symbolism of doors open to heaven ③ the spatiality of expressing Christ as light, and ④ presenting a water space as a meaning of baptism and harmony.
In the construction of Saemoonan Church, the conventional spire was replaced by a soft curved effect that is open to the sky, and the excessive ornaments were converted into simple and abstract expressions. Furthermore, instead of creating a solemn spatial atmosphere with the common long corridor form, a new periodic worship space was proposed with a fan-shaped chapel plane that encourages the dynamic participation between believers.
The yard of Saemunan-ro created by the hollow front and bent arch gate, which are church architecture typologies that cannot be found anywhere else in the world, is intended to become a practical resting place of citizens by opening the church to neighbors rather than pursuing a reverent worship space with a closed nature like a monastery. The fact that a continuous communication was plotted through the lobby towards the Sejong Center for the Performing Arts also illustrates the openness of the church. Here, the small chapel as well, which will bring back the history by downscaling the existing brick church, will be used as an actively open cultural space.








| 새문안교회 설계자 | 최동규, 이은석_(주)서인 종합건축사사무소,경희대학교(프랑스 건축사) 건축주 | 새문안교회 시공사 | 씨제이건설(주) 설계팀 | 강대석, 최일종, 안철수, 최유철, 정동조, 주효진, 김동오, 김민경, 이동준, 정승용, 채진범, 함가혜, 정용운, 류덕호 대지위치 | 서울특별시 종로구 새문안로 97 주요용도 | 종교시설 대지면적 | 4,219.20㎡ 건축면적 | 2,452.90㎡ 연면적 | 31,909.57㎡ 건폐율 | 58.14% 용적률 | 379.91% 규모 | 지하 6층, 지상 13층 구조 | 철골철근콘크리트조 외부마감재 | 사비석마감 설계기간 | 2010. 07 ~ 2019. 03 공사기간 | 2015. 07 ~ 2019. 03 사진 | 임준영 전문기술협력 - CM감리 : 한미글로벌(주) - 구조분야 : 환구조 / (주)더나은구조 - 기계설비분야 : 우원설비 / (주)멕엔드엠이씨 - 전기분야 (주)대경전기 - 소방분야 : (주)건창기술단 |
Saemoonan Church Architect | Choi, Dongkyu / Lee, Eunseok_SEOINN DESIGN GROUP,Kyunghee Univ. Client | Saemoonan Church Construction | CJ Engineering & Construction Co., Ltd. Project team | Kang, Daeseok / Choi, Iljong / Ahn, Cheolsu / Alex, Yoocheol / Jeong, Dongjo / Joo, Hyojin / Kim, Dongoh / Kim, Minkyung / Lee, Dongjun / Jeong, Seungyong / Chae, Jinbeom / Ham, Gahye / Jeong, Yongwun / Ryu, Deokho Location | 97, Saemunan-ro, Jongno-gu, Seoul Program | Religious facility Site area | 4,219.20㎡ Building area | 2,452.90㎡ Gross floor area | 31,909.57㎡ Building to land ratio | 58.14% Floor area ratio | 379.91% Building scope | B6 - 13F Structure | SRC Exterior finishing | Yellow Granite Design period | Jul. 2010 ~ Mar. 2019 Construction period | Jul. 2015 ~ Mar. 2019 Photograph | Lim, Juneyoung CM Supervisor | HanmiGlobal Co., LTD. Structural engineer | Hwan Structural Engineers / The Naeun Structural Engineering Co., ltd. Mechanical engineer | Mac&MEC Electrical engineer | Daekyung Electric Fire engineer | Kunchang Engineering |
