원불교 소태산 기념관 2020.6
Won-Buddhism Sotaesan Memorial Hall

도형화된 일원상에 영감을 받아 원불교의 교리 이념을 건축에 담고자 했다. 가장 단순하고 친근한 사각형과 원형을 골랐다. 정육면체는 사람, 솥 형태의 반구는 소통하는 우주를 상징한다. 사람과 우주가 합쳐진, 궁극적 진리를 닮은 중생을 표현하기 위해서 이 두 형태를 태극의 띠로 묶어놓은 듯이 디자인했다. 이로써 원불교 소태산 기념관이 생명이 움트는 새로운 터전, 새 시대를 맞이하는 새로운 마음임을 드러내고자 했다.
유동인구가 많은 복합시설은 현충로변에 뒀다. 반면 정적인 종교시설은 시각적 상징성이 극대화될 수 있도록 한강변에 배치했다. 원불교의 정체성이 드러나고 향후 랜드마크의 역할까지 할 것으로 기대했기 때문이다. 입체적인 옥외 동선은 한강으로 연결되는데 이는 한강과 남산의 풍경을 즐기면서 원불교의 교리(비움의 길)를 감상하거나 명상(명상공간)할 수 있도록, 즉 건축적으로 원불교와 주변을 잇는 소통의 장을 마련한 것이다.

Inspired by the figured Il-Won-Sang, we tried to incorporate Won Buddhism's doctrine into architecture in the simplest and most familiar square and circular form. The form of a cube represents human, and the hemisphere in the form of a pot represents the universe that communicates and contains. The two forms are designed in a form that binds the taiji belt, so that the human and the universe merge. Through the ultimate truth, the spirit of regeneration is intended to represent symbolism as a memorial to the Buddhist temple of Sotaesan, a place where the spirit of rebirth comes to life on a new ground, with a new heart, in a new era.
Arrangement of complex facilities with a large floating population on the side of Hyeonchung-ro and religious facilities as a static space along the Han River to maximize visual symbolism comes from an active interpretation of the site that expected the identity of Won Buddhism and the role of landmark. In addition, while the three-dimensional outdoor circulation leading to the Han River enjoys the scenery of the Han River and Namsan, the 'A way of Emptying', engraving the doctrine of Won Buddhism, is connected to the 'meditation space,' a healing space, so as to give meaning to become a place of architectural communication unique to Won Buddhism.







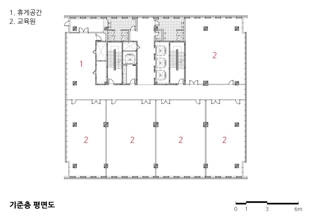
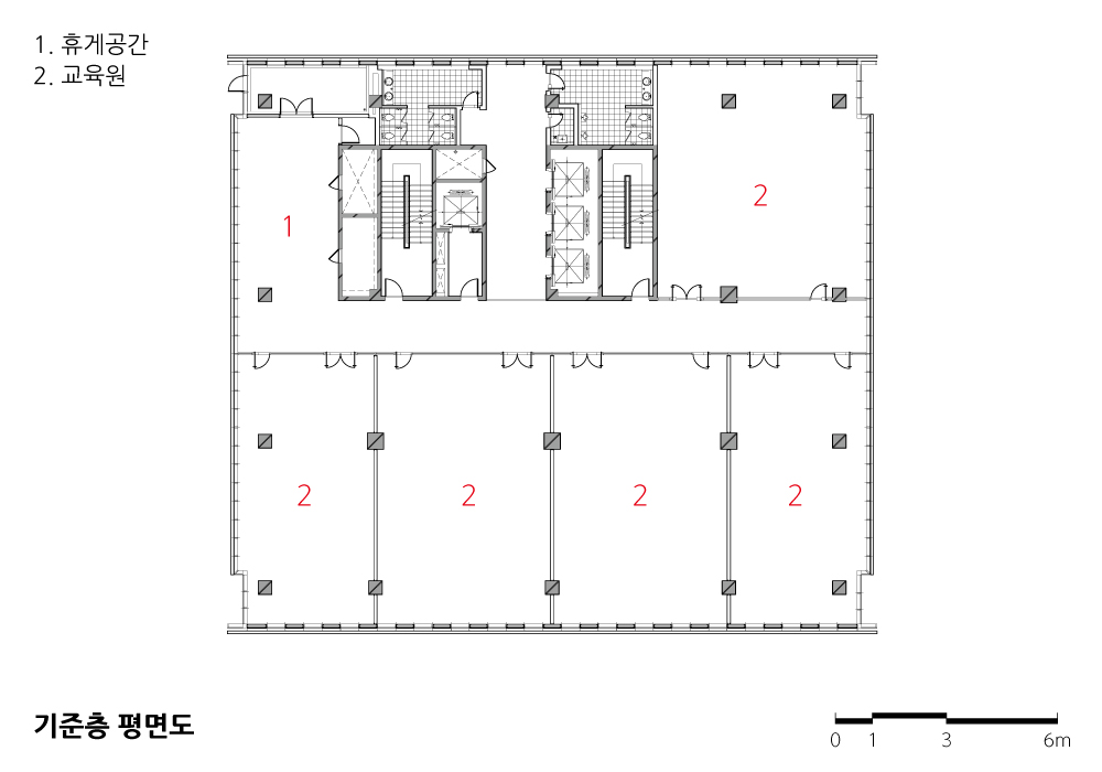
| 원불교 소태산 기념관 설계자 | 노형래_(주)건정 종합건축사사무소 건축주 | (재)원불교 감리자 | (주)전인CM 시공사 | 요진건설산업 설계팀 | 고종준, 김원중, 이종규 대지위치 | 서울특별시 동작구 현충로 75 주요용도 | 종교시설 대지면적 | 5,826.00㎡ 건축면적 | 3,050.04㎡ 연면적 | 26,300.75㎡ 건폐율 | 52.35% 용적률 | 202.79% 규모 | 지하 4층, 지상 10층 구조 | 철근콘크리트조, 철골철근콘크리트조 외부마감재 | 테라코타패널, 테라코타루버, 금속패널, 로이복층유리 내부마감재 | 친환경수성페인트, 타일, 흡음텍스 등 설계기간 | 2015. 6 ~ 2017. 4 공사기간 | 2017. 5 ~ 2019. 9 사진 | 채수옥 전문기술협력 - 구조분야 : (주)한울구조안전기술사사무소 - 기계설비분야 : (주)한국전기설계감리기술단 - 전기분야 : 세종종합기술(주) - 소방분야 : (주)한석소방이엔씨 |
Won-Buddhism Sotaesan Memorial Hall Architect | Roh, Heoungrae_ Kunjung Architects & Engineers Client | Won-Buddhism Supervisor | JeoninCM Construction | YOJIN Construction & Engineering Project team | Ko, Jongjun / Kim, Wonjoong / Lee, Jongkyu Location | 75 Hyeonchung-ro, Dongjak-gu, Seoul, Korea Program | Religious facilities Site area | 5,826.00㎡ Building area | 3,050.04㎡ Gross floor area | 26,300.75㎡ Building to land ratio | 52.35% Floor area ratio | 202.79% Building scope | B4F - 10F Structure | RC, SRC Exterior finishing | Terracota panel, Terracotta louver, Metal panel, Low-E paired glass Interior finishing | Water-based paint, Tile, sound-absorbing-tex Design period | 2015. 6 ~ 2017. 4 Construction period | 2017. 5 ~ 2019. 9 Photograph | Chae, Suok Structural engineer | Hanwul Structure Engineering Mechanical engineer | Korea Elec Design Super Engineering Electrical engineer | SeJong General Technique Corp Fire engineer | Hanseok Fire Protection Engineering |
