환경시설주변지역 주민공동이용시설 _ 2022. 2
2023. 2. 17. 09:08ㆍ회원작품 | Projects/Competition
Community Facilities for residents in the Areas around Environmental Infrastructures

새로운 일상을 위한 동네 거점 만들기
_ Next Platform
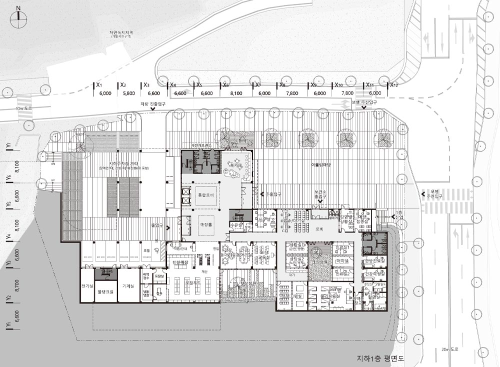
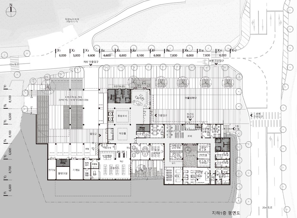
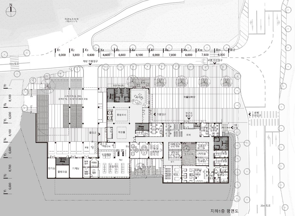
대지는 건폐율 20%, 대지 고저차가 5~8미터인 경사지형이다.
건폐율과 넓은 대지 조건을 적극적으로 이용하여 기존 지형을 건축 내외부와 엮는 대지의 건축화를 제안하였다. 건축과 외부가 접하는 면이 넓어지고 다양한 레벨에서의 접근이 쉬운 마당으로 디자인된 랜드스케이프 플랫폼은 복합용도로 구성된 시설의 접근 편의성과 일상의 확장으로 자연스러운 만남이 많아지는 마을의 새로운 공공허브이다.
3개 레벨의 건축화된 대지는 각 층과 바로 연결되고, 지면과 접하는 시설의 환경성을 위해 지형을 이용한 크기와 깊이가 다른 선큰 정원을 각 레벨에 계획하고 프로그램을 연계하였다. 각 플랫폼과 직접 연결된 지상 매스는 정연한 형태로 계획하고, 각 레벨과 만나는 부분을 오픈하는 볼륨 디자인으로 깊이감 있고 담백한 입면으로 구성하였다.
지형의 건축화, 건축의 지형화
_ Architectural Topography
지형을 대체한 비움과 채움의 랜드스케이프로 구성된 건축과 대지의 정연한 수평적 결합은 지역만의 독창적 열린 랜드마크이며, 내·외부 공간이 서로 짝을 이루면서 이어지는 공간의 연속성은 건축과 지형의 경계를 모호하게 한다. 모든 층이 1층화 되는 이 경계의 느슨함을 통해 일상의 부분으로, 누구나 편안하게 공공서비스를 이용할 수 있는 새로운 장소로 구축하고자 한다.







| 환경시설주변지역 주민공동이용시설 _ 2022. 2 설계자 _ 천용수_(주)아리건축사사무소 발주자 대전광역시 건설관리본부 설계팀 강래현, 조성완, 김준영, 김성주, 김경록 대지위치 대전광역시 유성구 봉산동 823번지 일원, 지구단위계획구역 주용도 제1종 근린생활시설(보건지소, 근린형체육시설, 생활문화센터, 주민공동이용시설 등) 대지면적 4,950.90㎡ 건축면적 980.33㎡ 연면적 4,933.71㎡ 건폐율 19.80% 용적률 58.44% 규모 지하 1층 - 지상 3층 구조 철근콘크리트구조 마감 석재패널(화강석), 치장벽돌(와이드) |
'회원작품 | Projects > Competition' 카테고리의 다른 글
| 가락시장 현대화사업 도매권역 2공구 채소1동 및 수산동 건립 _ 2022. 2 2022.4 (0) | 2023.02.18 |
|---|---|
| 세화숨비빌레파크 _ 2021. 10 (0) | 2023.02.17 |
| 국립디지털문화유산센터 국제설계공모 _ 2022. 2 (0) | 2023.02.16 |
| 인천 남동 혁신성장센터 _ 2022. 2 (0) | 2023.02.16 |
| [설계공모] 해운대호텔 2022.1 (0) | 2023.02.15 |