2023. 2. 18. 09:16ㆍ카테고리 없음
SOSDA

소스다가 자리잡은 곳은 전주시 덕진구에 조성되는 신도시로 군부대 이전으로 만들어졌으며, 에코시티라 불린다.
이곳 단독주택 필지에 지어지는 대부분의 건축물은 상가+주택의 형태를 갖는다. 지구단위의 영향으로 지붕면의 일정 부분을 박공 지붕 형태로 해야 하며, 최대 3가구까지만 계획이 가능하다.
아파트의 장점을 십분 활용하던 가족에게 다가구주택이라는 다른 형태의 주거로의 변경은 많은 부분 포기해야 하는 점이 있다는 것을 부부는 받아들이고 있었지만, 그 부분을 최소화해주는 것이 우리의 역할이지 않을까 생각했다.
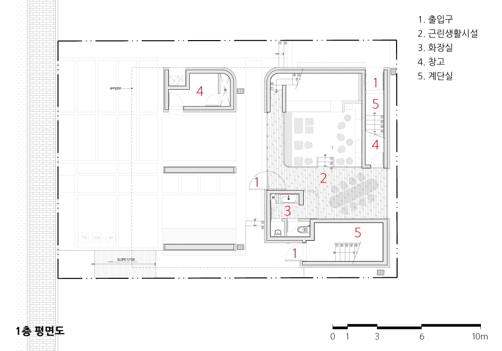
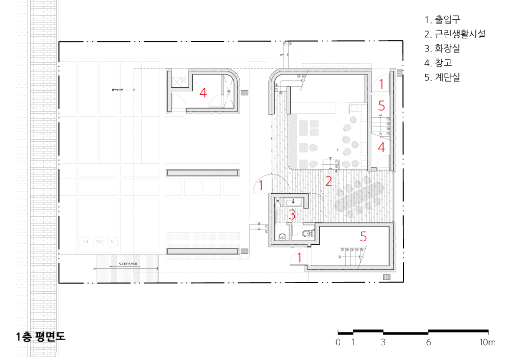
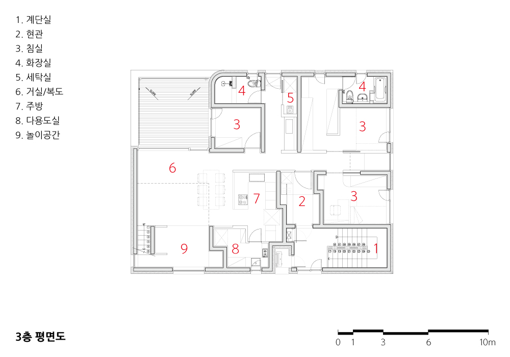
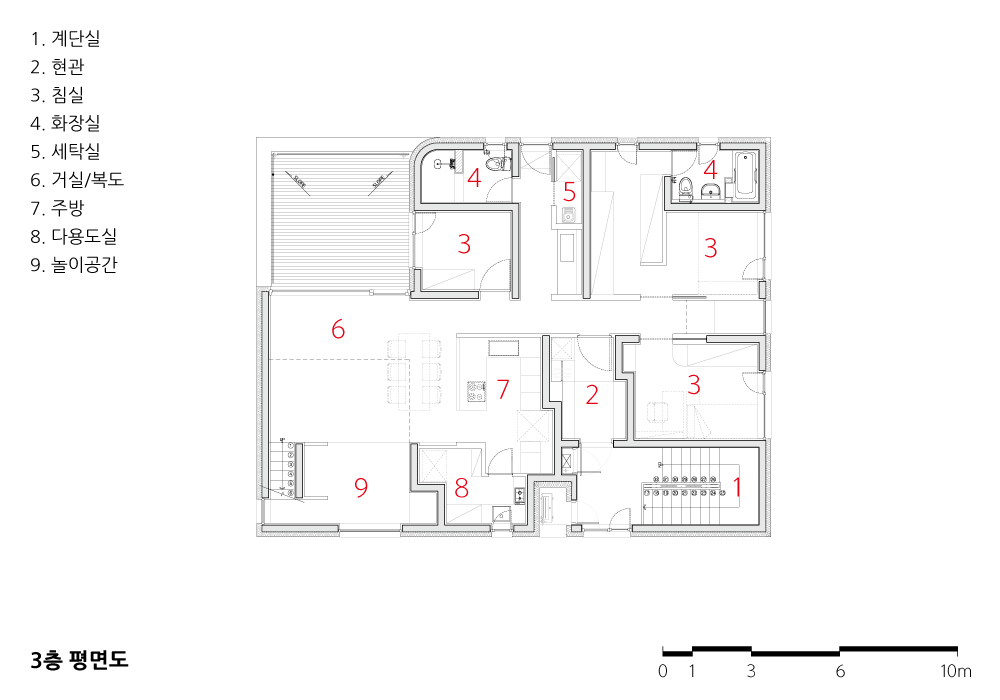
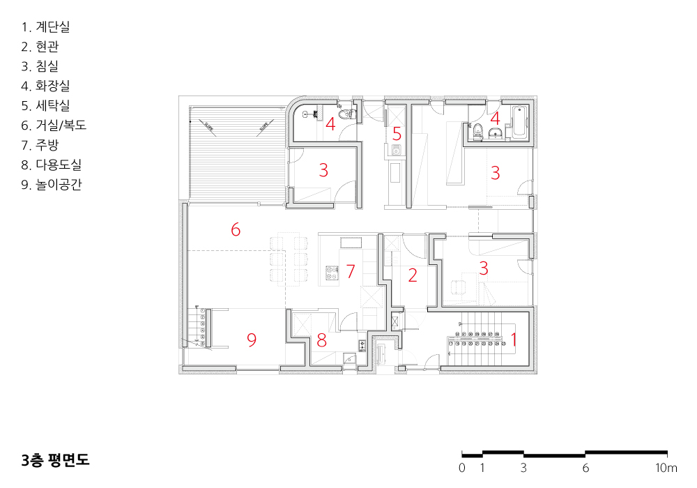
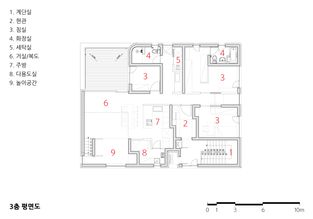
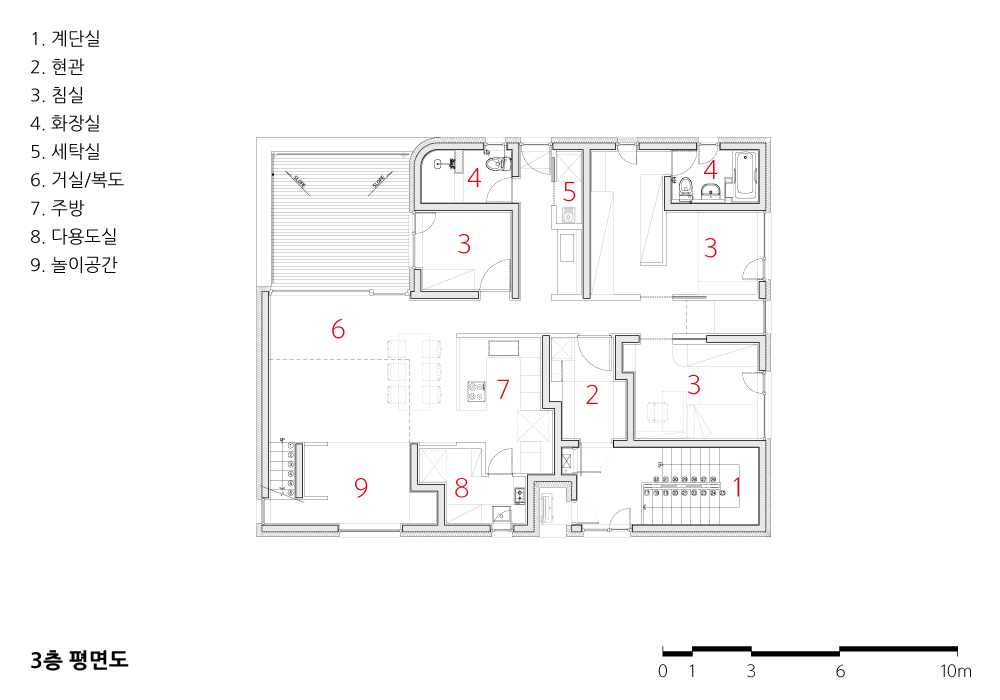
건축물은 대부분의 상가주택이 그러하듯 1층 상가 / 2층 임대세대 / 3층 주인세대의 정형화된 층별 조닝을 가지고 있다.
보통의 임대를 위한 상가 주택의 경우 최대한의 임대면적을 확보하도록 계획한다. 면적=수익이라는 것이 일반적인 생각이기 때문이다. 그렇기에 평면구성 혹은 공간구성의 중요성보다는 최대한의 면적 확보를 우선시하게 되지만, 우리는 그 점을 버리기로 했다. 그런 논리로 지어진 건축물이 좋은 정주환경으로 연결이 된다고 보지 않기 때문이다. 전용면적은 조금 작더라도 쾌적한 생활환경이 되었으면 했고, 각각의 일상이 보장되길 바랐다.
그리하여 중요하게 생각한 부분은 진입동선과 내외부의 중간공간인 발코니이다.
소스다는 계단실이 두 개, 즉 임대세대의 전용면적이 줄어드는 평면을 가지고 있다. 계단실이 두 개이니 1층 메인현관 역시 두 개가 된다. 임대세대에서 생활하게 될 이들이 1층 현관부터 나의 공간이라는 생각을 가질 수 있도록 하여 조금 더 편안하게 집을 드나들 수 있도록 했고, 주인세대와의 동선 겹침으로 발생할 수 있는 불편한 상황을 만들지 않고자 했다.
또 주차장 출입구와 동선을 분리하여 주차공간과 진입공간의 개방감과 쾌적성을 높였다. 뒤편 배밭을 바라보는 계단실은 이동의 기능만을 갖는 공간이 아닌 조망을 위한 감상의 공간이 되었다.
임대세대들은 발코니, 즉 각자의 외부공간을 갖는다. 이 외부공간이 소위 까대기라는 단어로 만들어지는 내부공간의 확장이기를 원치 않는다. 발코니는 각 세대가 갖는 그들만의 외부공간이며 일상의 환기의 공간이 되길 바란다.
소스다는 전주에서 만들어진 두 번째 상가주택 프로젝트이며, 소스다를 포함해 준공이 된 두 개의 상가주택과 공사 중인 한 개의 상가주택 역시 두 개의 계단실과 각각의 발코니를 갖고 있다.

Saseuda is located in the new town formed in Deokjin-gu, Jeonju-si, and is made from the relocation of the military and is called an Eco-city. Most detached houses here have the shape of a commercial building + house. Some of the roof surfaces should be made of garble roof due to the influence of the district and can be planned for up to 3 households.
The couple, who has enjoyed the merit of the apartment to the fullest, is accepting they should give up many things from the change into the different shaped multi-household house, but I think minimizing such a part in our role.
Like most flats with shops, the building has the typical floor zoning of the shop on the first floor/ tenant on the second floor/ building owner on the third floor.
In the case of typical flats with shops for rental, they are planned to secure the rental area as much as possible. That’s because of the general thinking that the area = profits. Therefore, ensuring the maximum size is prioritized rather than flat or spacial composition, we decided to waive it. That’s because the building, based on such logic, deems not to be connected with a good residential environment. Instead, I intended a comfortable living environment even if the exclusive area is a little small, and the daily life of each one is guaranteed.
Therefore, we focused on the balcony, an intermediate space between the entrance and the outside.
Saseuda has two staircases, which reduce the exclusive area of the rental household. Because the staircases are 2, the main entrance on the 1st floor is also two. By allowing those who will be living in the rental home to feel it is their space from the entrance on the first floor, I made them feel a little more comfortable entering and exiting the house. I tried not to create an uncomfortable situation that could occur due to overlapping movement lines with the owner. In addition, I increase the openness and the comfort of parking space and entrance by separating the traffic from the parking lot entrance. The staircase looking down the back pear field became the space of appreciation for the movement and the view.
The rental household has a balcony, their own external space. I don’t want this space to be the expansion of internal space created by the words of so-called temporary side shelter. The balcony is its own external space, and I wish it would be the space to refresh daily life.
Saseuda is the second flat with shop project created in Jeonju, two apartments with shop completed and one ongoing flat with shop including Saseuda also have two staircases and each balcony.








| 소스다 설계자 | 최정인 _ 일상 건축사사무소 감리자 | 최정인 _ 일상 건축사사무소 시공사 | 두영종합건설 설계팀 | 김헌, 주유나 설계의도 구현 | 일상 건축사사무소 대지위치 | 전라북도 전주시 덕진구 송천동 2가 주요용도 | 상가주택 대지면적 | 279.50㎡ 건축면적 | 166.11㎡ 연면적 | 370.62㎡ 건폐율 | 59.43% 용적률 | 132.60% 규모 | 3층 구조 | 철근콘크리트구조 외부마감재 | 1층 _ STO시그니쳐 linear10 / 2층, 3층 _ 아이코트 료와 안센트 타일 / 3층일부 _ 이페 / 지붕 _ 에코렉스 내부마감재 | 마모륨, STO, 자작나무합판 설계기간 | 2019. 11 – 2020. 04 공사기간 | 2020. 05 – 2020. 12 사진 | 노경 전문기술협력 - 구조분야 : 시너지구조 - 기계설비분야 : (주)GM엔지니어링 - 전기분야 : (주)GM엔지니어링 |
SOSDA Architect | Choi, Jungin _ ILSANG ARCHITECTS Supervisor | Choi, Jungin _ ILSANG ARCHITECTS Construction | Dooyoung Construction Project team | Kim, Hun / Ju, Yuna Design intention realization | ILSANG ARCHITECTS Location | Songcheon-dong 2-ga, Deokjin-gu, Jeonju-si, Jeollabuk-do, Korea Program | Commercial House Site area | 279.50㎡ Building area | 166.11㎡ Gross floor area | 370.62㎡ Building to land ratio | 59.43% Floor area ratio | 132.60% Building scope | 3F Structure | RC Exterior finishing | STO, Tile Interior finishing | Marmoleum, STO, birch plywood Design period | Nov. 2019 – Apr. 2020 Construction period | May 2020 – Dec. 2020 Photograph | No, Gyeong Structural engineer | Synergy Mechanical engineer | GM engineering Electrical engineer | GM engineering |
