2022. 12. 1. 11:14ㆍ회원작품 | Projects/Competition
2nd Chungbuk Dormitory

제2충북학사는 새로운 공간적 커뮤니티를 형성하여 학사생들의 유대감을 향상하고, 개인에게는 집과 같은 편안함을 제공한다. 각자의 사생활을 수용하는 수직공동체 마을로 도시의 새로운 활력소가 될 것이다.
프로젝트 대지는 기숙사가 위치하기에는 불합리한 주변 대지 여건을 갖추고 있어 합리적인 방법으로 해결해야 했다. 대지의 남측으로는 경의·경춘선과 35미터 도로가 위치하고 있어 소음문제 해결을 위해서는 다양하고 구체적인 방법으로 접근이 필요했다. 또한 상습침수지역이기에 계획홍수위를 반영한 계획이 요구됐다.
이와 같은 대지의 두가지 문제를 해결하기 위하여 공공영역과 사적영역을 수직적으로 분리했다. 측벽 이용과 부유하는 매스디자인을 통해 소음 문제를 해결하며, 상징적인 건물이 될 수 있도록 계획했다.
공공영역은 내·외부가 연계되는 커뮤니티 공간으로 계획했다. 이 공간은 사용하는 학생들이 여러 활동을 하면서, 충북인의 유대감을 향상시킬 수 있는 다양하고 특화된 커뮤니티 공간이 된다. 그리고 부족한 옥외공간을 수직으로 끌어들여 내부와 외부를 넘나들고 풍부한 녹지공간을 제공하는 친환경적 공간을 계획했다.
사적영역은 남, 여학생의 프라이버시를 위하여 두 개의 매스로 분리했다. 모듈화된 두 매스를 수직적으로 분절해 입면을 디자인했다. 소음, 향, 프라이버시가 고려된 입면의 요소들은 패턴화되어 매스의 디자인 컨셉을 시각적으로 드러내 준다.



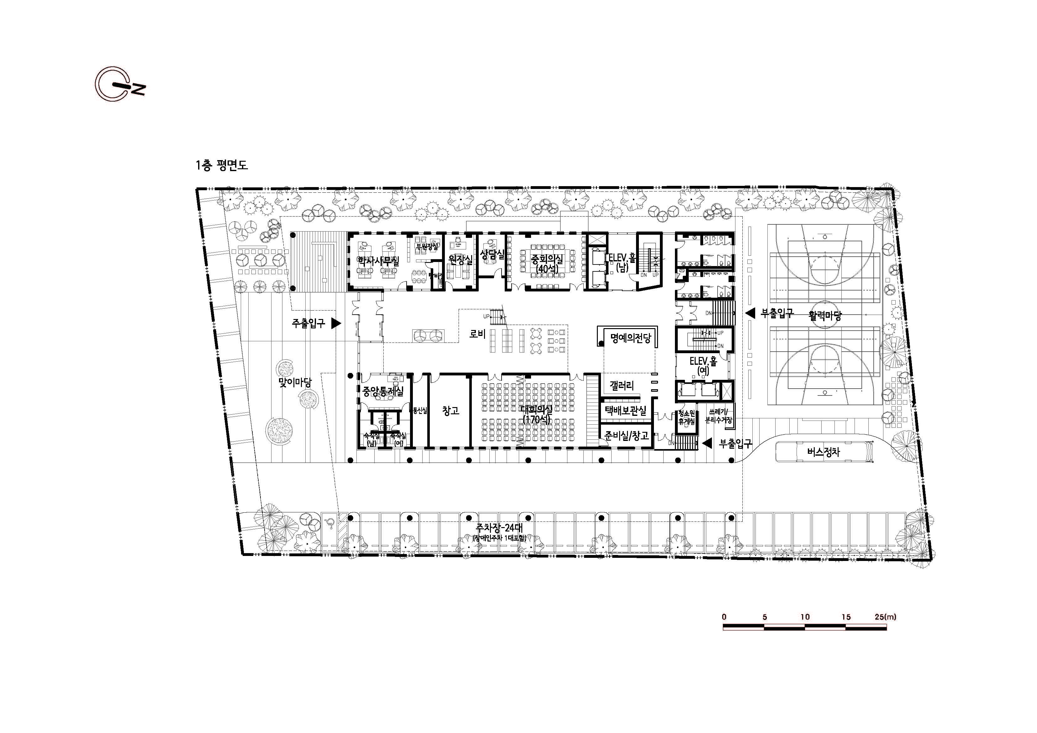
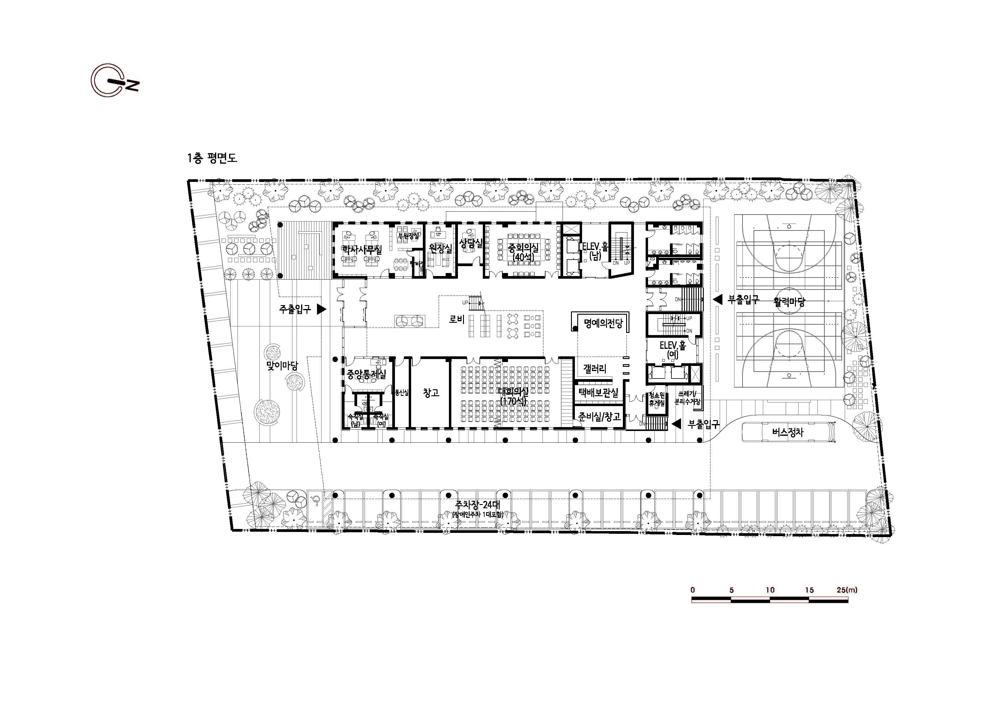
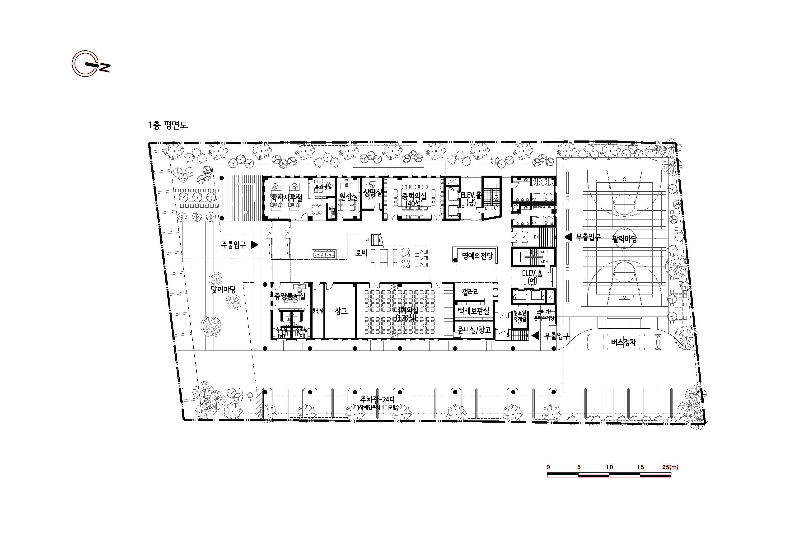
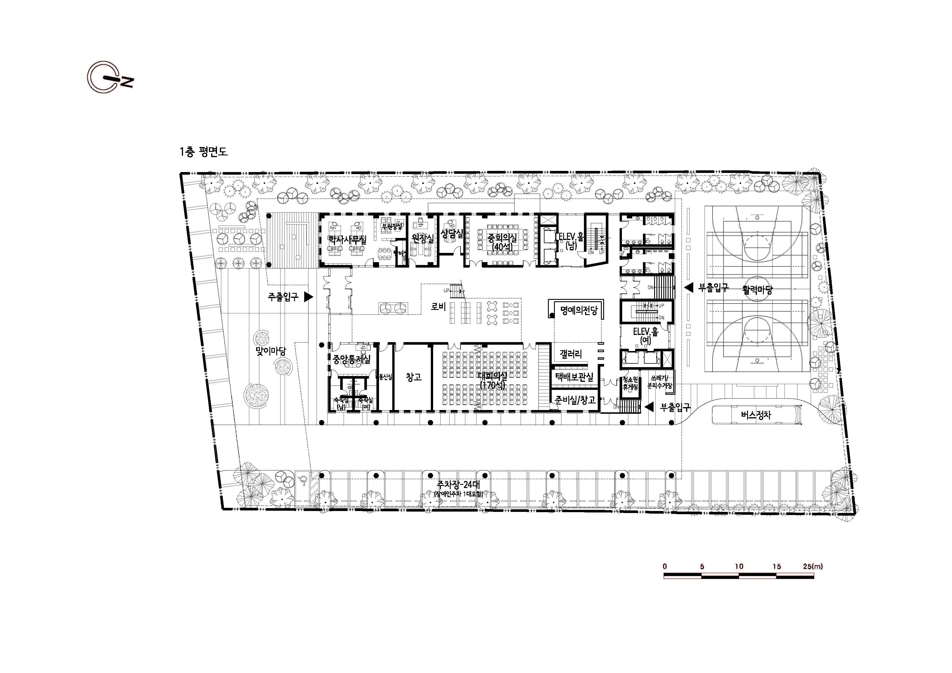
| 2nd Chungbuk Dormitory 발주자 | 충청북도 설계자 | 오선교·정용현 KIRA _ (주)선엔지니어링 종합건축사사무소 설계팀 | 송웅룡, 장동훈, 한준환, 임성민, 박병현, 임소리 대지위치 | 서울특별시 중랑구 망우로 175 대지면적 | 3,746.00㎡ 건축면적 | 1,868.99㎡ 연면적 | 9,514.18㎡ 건폐율 | 49.89% 용적률 | 241.43% 규모 | 지상 11층, 지하 1층 구조 | 철근콘크리트조 마감 외부마감재 : AL 허니컴판넬, 화강석물갈기 내부마감재 : 인조대리석, PVC타일, PVC시트, 고급벽지, UBR SYSTEM |
'회원작품 | Projects > Competition' 카테고리의 다른 글
| [설계공모] 세종시 장애인형 국민체육센터 (0) | 2022.12.02 |
|---|---|
| [설계공모] 청주산업단지 행복주택 (0) | 2022.12.01 |
| [설계공모] 유성종합스포츠센터 (0) | 2022.12.01 |
| [설계공모] 홍성군 노인회관 신축 (0) | 2022.11.30 |
| [설계공모] 계룡소방서 (0) | 2022.11.30 |