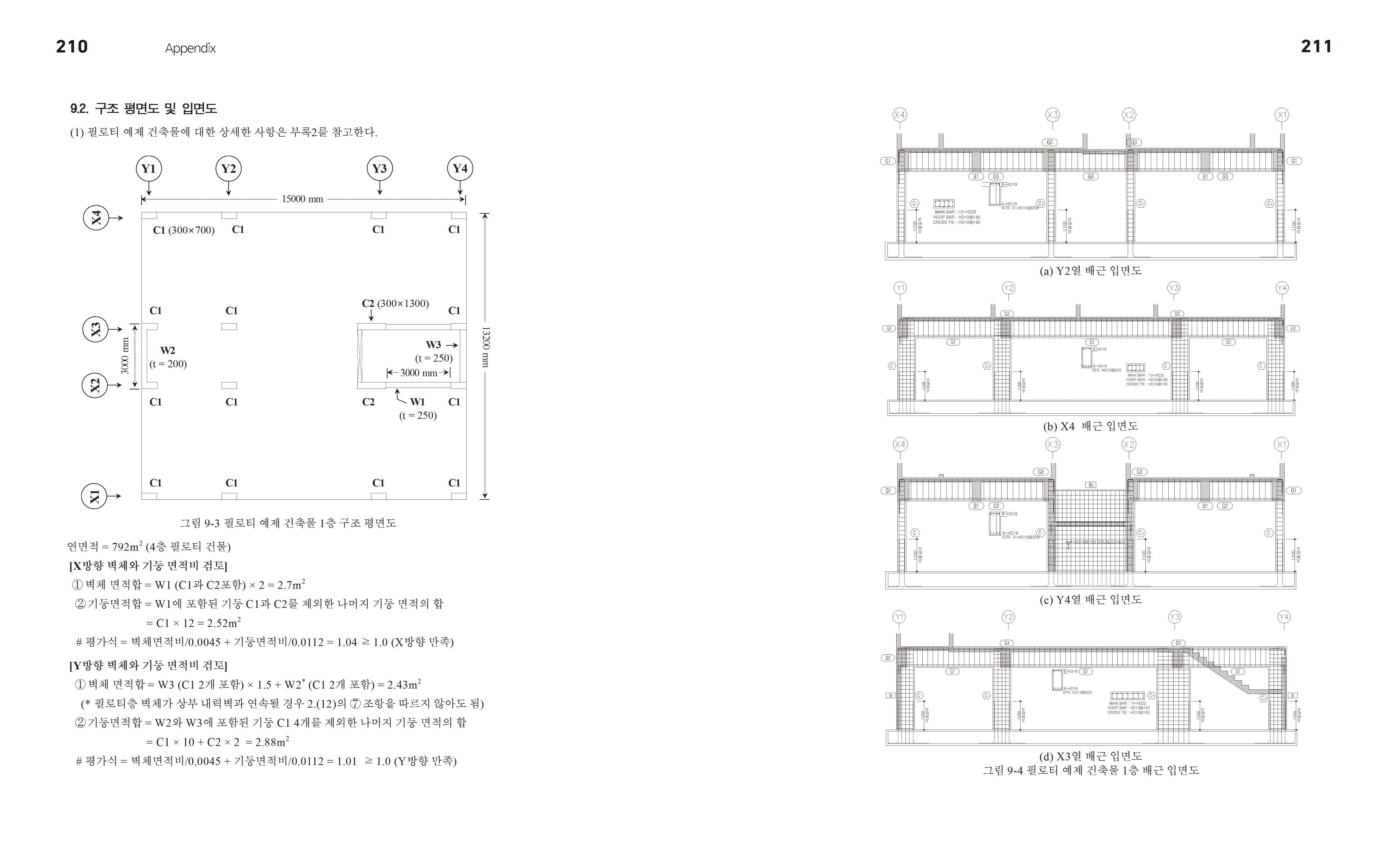
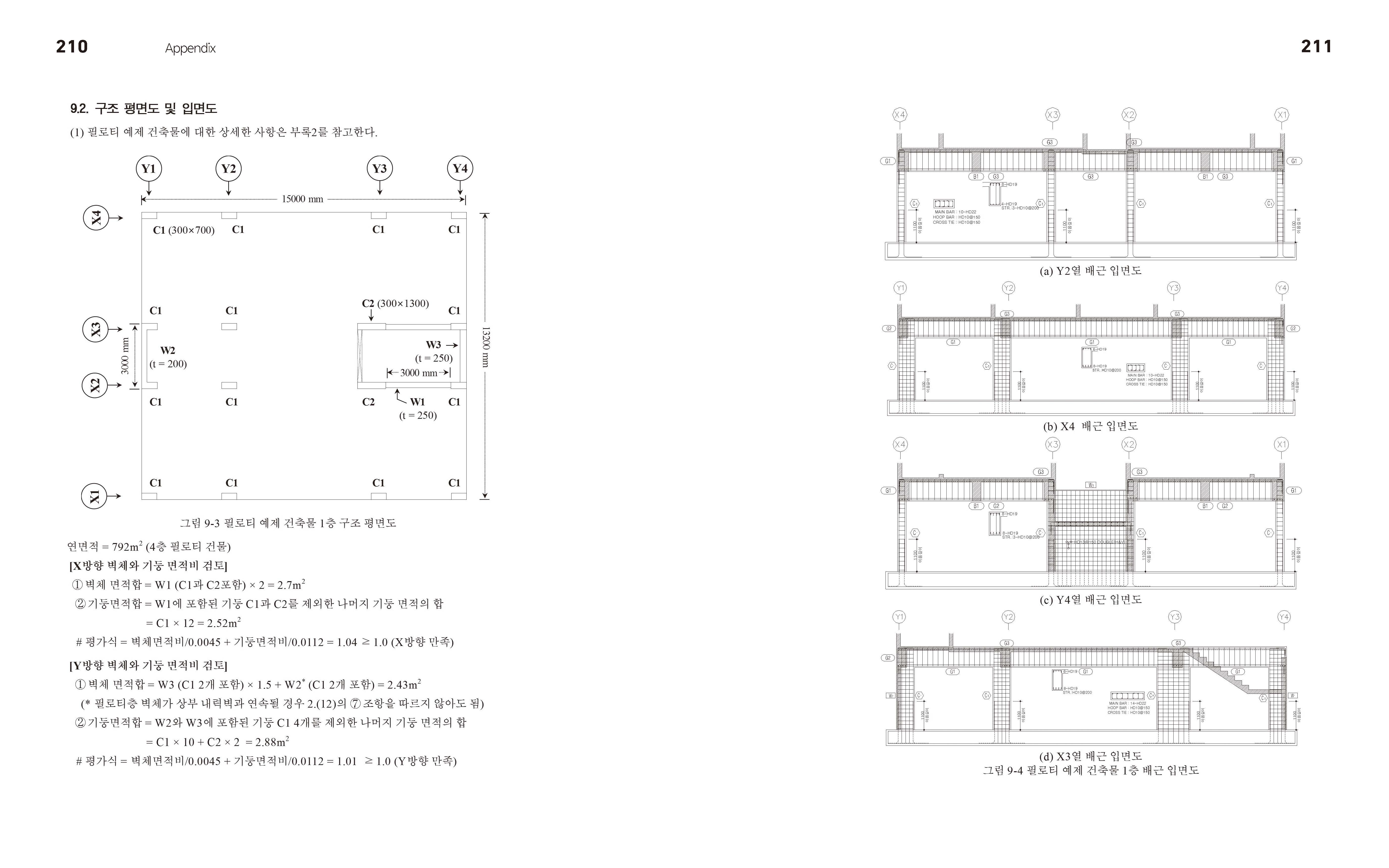
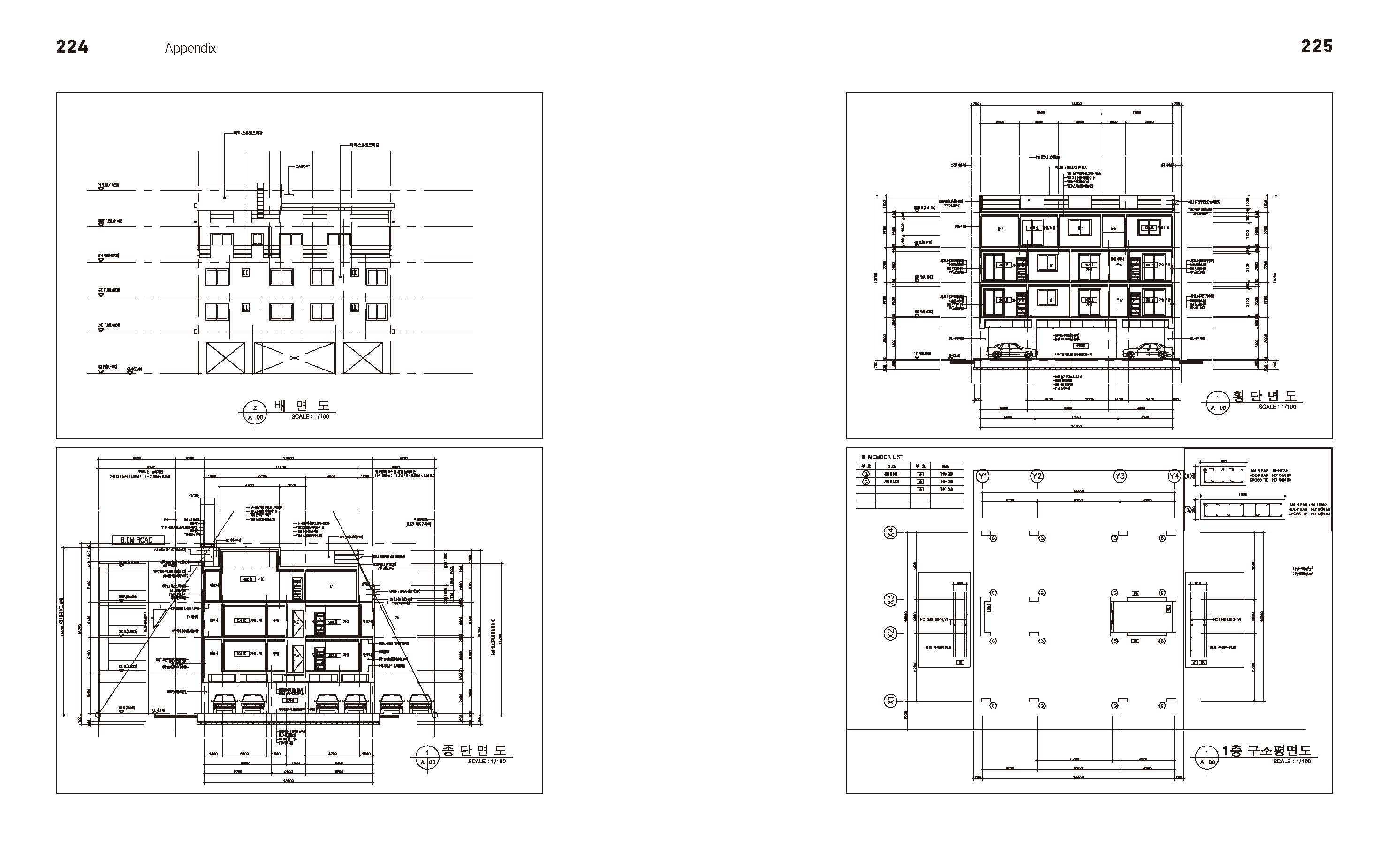
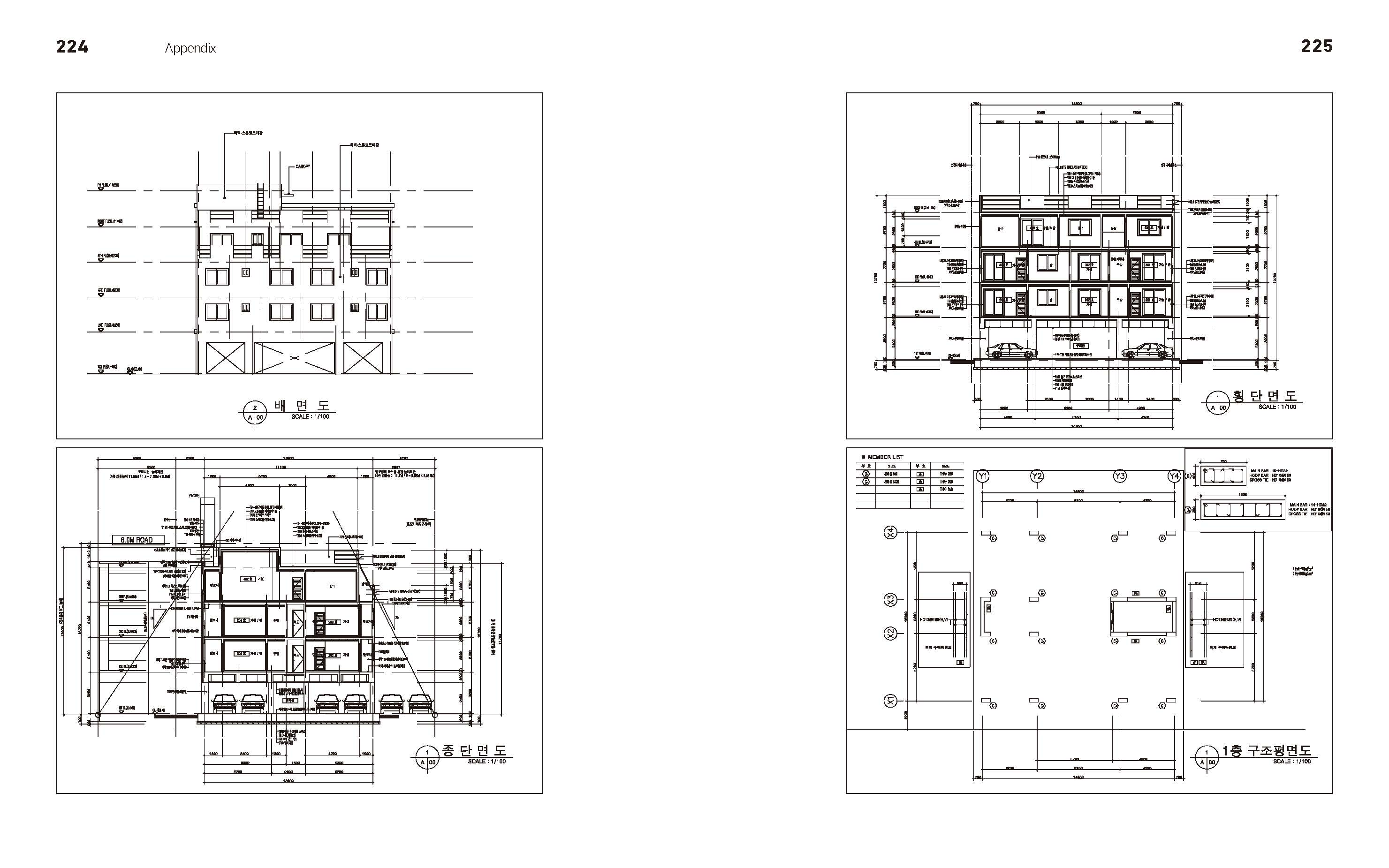
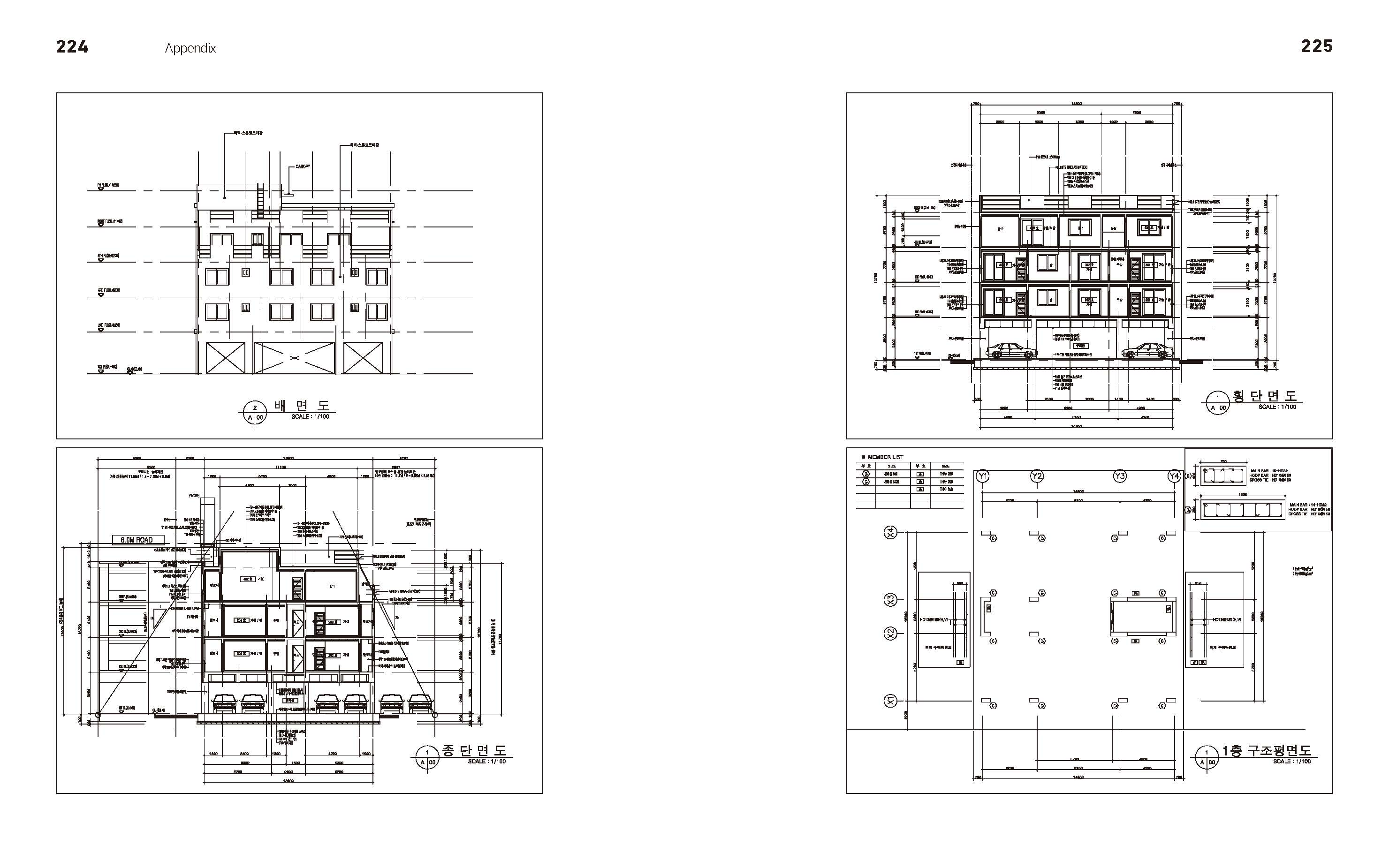
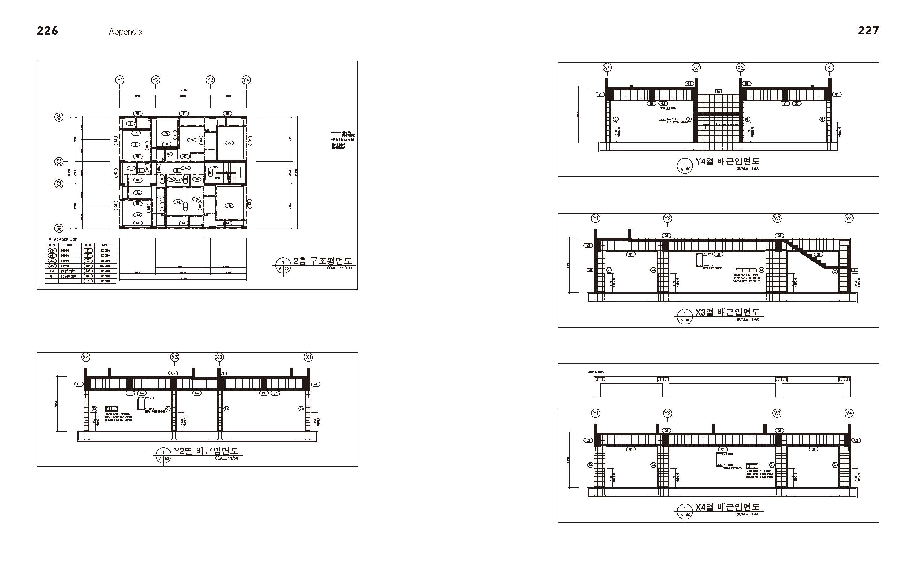
[부록]필로티 건축물 구조설계 가이드라인 국토교통부 2018.08
2022. 12. 6. 09:01ㆍ아티클 | Article/부록 | Appendix

























'아티클 | Article > 부록 | Appendix' 카테고리의 다른 글
| [부록1]제3차 희망건축학교 2018.09 (0) | 2022.12.07 |
|---|---|
| [부록2]도시개발법령 관련주요 질의 · 회신 사례집 2018.09 (0) | 2022.12.07 |
| [부록] 도시개발법령 관련주요 질의 · 회신 사례집 Part.3 2018.07 (0) | 2022.12.05 |
| [부록] 도시개발법령 관련 주요질의ㆍ회신 사례집 Part2 2018.06 (0) | 2022.12.02 |
| [부록] 도시개발법령 관련 주요 질의ㆍ회신 사례집 2018.05 (0) | 2022.12.01 |