2022. 12. 12. 10:28ㆍ카테고리 없음
Gaehwa G HOUSE

꽃피는 산발치
나지막히 깔려있는 개화산 끝자락에 오랜 시간 옛 마을의 정취가 고스란히 담겨있는 개화 동 마을. 개화동 456-22번지는 개화산 끝자락에 마주하며 골목길에 둘러쌓인 대지이다.
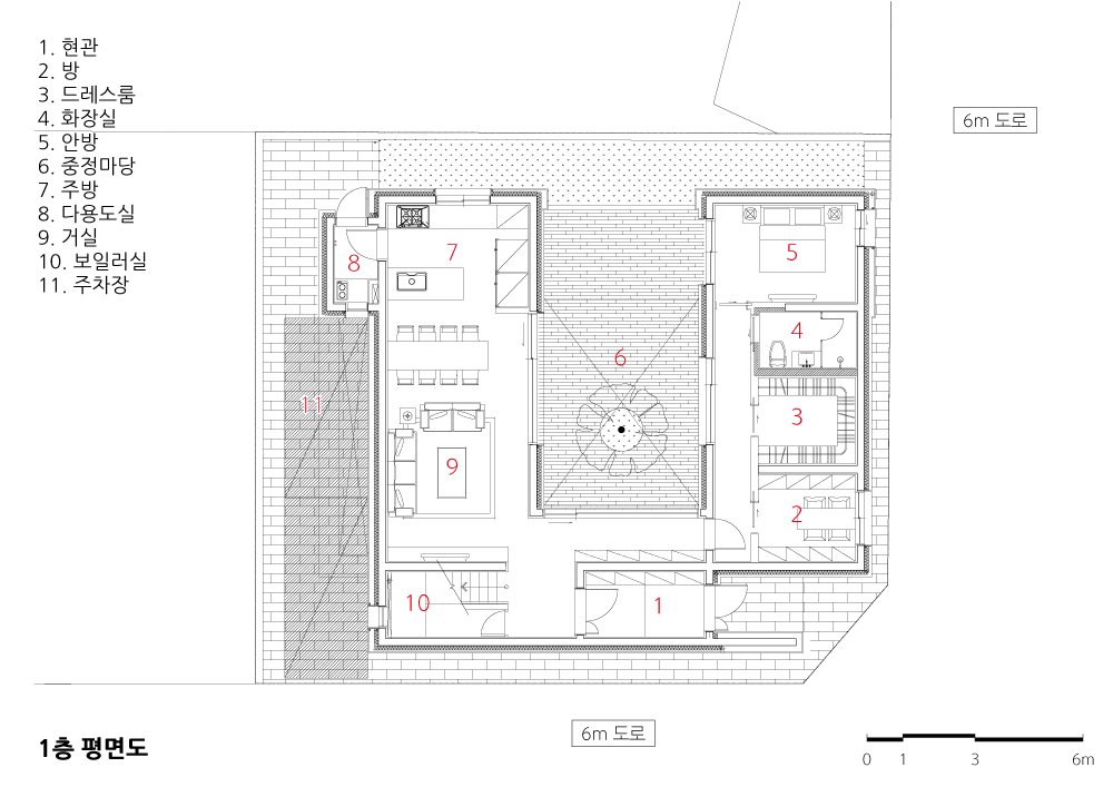
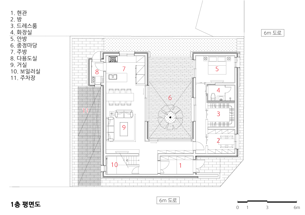
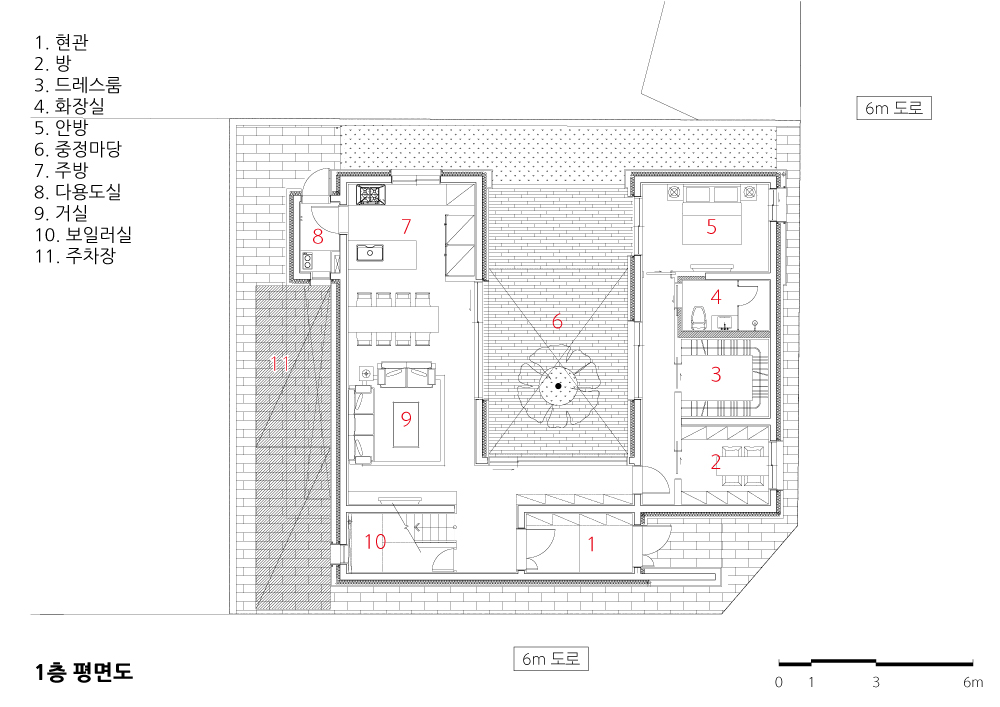
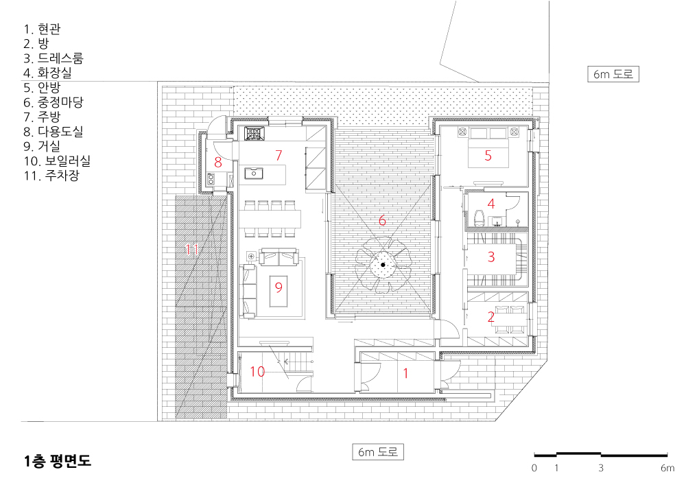
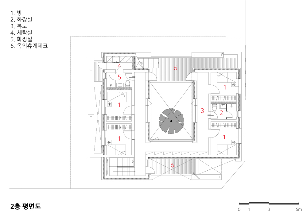
아파트라는 주거공간에서 벗어나 3대가 모여 살게 될 이 집은, 자연과 더불어 편안하고 행복한 공간을 만드는 것이 무엇보다 중요했다. 산발치 끝자락으로 흘러내려오는 자연 의 아름다움을 담아내기 위해 중정 마당공간을 형성한 것은 이런 이유에서이다. 중정마 당은 자연을 즐기는 풍요로운 공간으로서 가치를 만들어냄과 동시에, 다양한 삶의 행태 를 담아내는 공간이기도 하다.
내부 실들은 프라이버시와 조망을 고려해 중정 쪽으로 개방되면서 외부 쪽으로는 상대 적으로 닫힌 구조를 가진다. 2층에 구성된 테라스, 브릿지등 작은 외부공간은 외부와의 공간적인 연계의 취약성을 극복하면서 적극적으로 마을과 자연에 소통 하고자 한 것이 다. 크고 작은 외부공간들은 수직적으로 적층되면서 내 외부 계단을 이용해 연속된 공 간을 이루게 된다. 이를 통해 소규모 대지에서 나타나는 협소한 외부공간의 문제를 극 복하면서 다양한 공간 활용도를 갖게 된다.
거주자의 삶의 패턴을 만들어내고 담아낼 수 있도록 내부의 공용공간이나 외부의 작은 마당, 내외공간들의 연계를 통한 공간의 연속성을 만들어 냈다.
앞으로 3대가 모여 살며 가족들의 풍부한 이야기들이 하나 둘씩 공간 구석구석에 채워 지길 기대해 본다.











| 개화동주택 설계자 _ Architect. 박성현 _ Park, Seonghyun (주)씨드아키텍 건축사사무소 _ Seeddesign Architects & Planners 건축주 | 박영규 감리자 | 박성현 _ (주)씨드아키텍 건축사사무소 시공사 | 와이재이건설 설계팀 | 김정년, 김현기, 김남선 대지위치 | 서울특별시 강서구 개화동로9길 27 주요용도 | 단독주택 대지면적 | 266.00㎡ 건축면적 | 131.82㎡ 연면적 | 233.43㎡ 건폐율 | 49.56% 용적률 | 87.76% 규모 | 지상 2층 구조 | 철근콘크리트조 외부마감재 | 인조화강석, 하드우드, 알미늄쉬트패널 내부마감재 | 친환경 페인트, 천연벽지+플레인벽지, 강마루+을보타일 설계기간 | 2016. 08 ~ 2016. 12 공사기간 | 2016. 10 ~ 2017. 04 사진 | 윤준환 전문기술협력 구조분야 : 엔자인 구조 - 기계설비분야 : 덕수이엔지 전기분야 : 덕수이엔지 소방분야 : 덕수이엔지 |
Gaehwa G HOUSE Client | Park, Younggyu Supervisor | Park, Seonghyun _ Seeddesign Architects & Planners Construction | YJ construction Project team | Kim, Jeongnyun / Kim, Hyunki / Kim, Namsun Location | Gaehwadong-ro 9-gil 27, Gangseo-gu, Seoul, Korea Program | House Site area | 266.00㎡ Building area | 131.82㎡ Gross floor area | 233.43㎡ Building to land ratio | 49.56% Floor area ratio | 87.76% Building scope | 2F Structure | RC Exterior finishing | Stone, Hardwood, Aluminum pannel Interior finishing | Eco-friendly paint, Nature wallpaper, Wood floor+tile Design period | Aug. 2016 ~ Dec. 2016 Construction period | Oct. 2016 ~ Apr. 2017 Photograph | Yun, Junhwan Structural engineer | Engain Structure Mechanical engineer | Ducksu-Eng Electrical engineer | Ducksu-Eng Fire engineer | Ducksu-Eng |