2022. 12. 14. 10:19ㆍ회원작품 | Projects/Public
Geumjeong-gu Creative Plant for youngmen

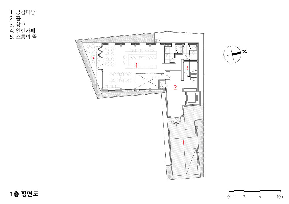
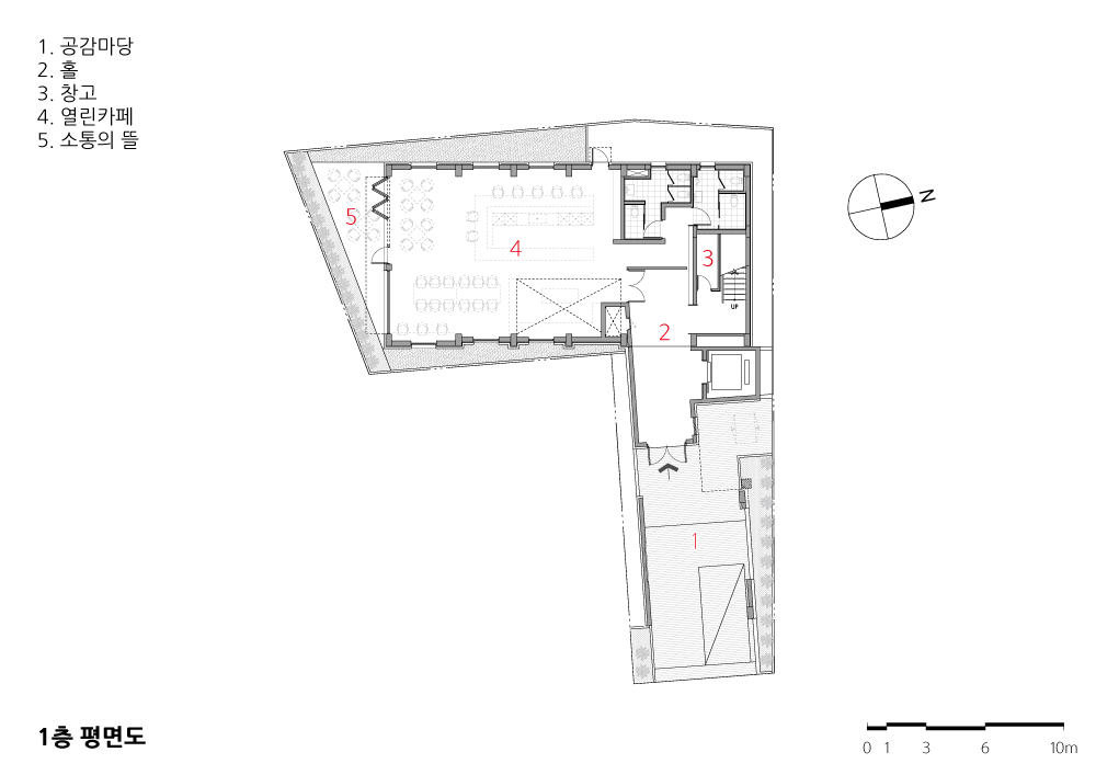
금정구 청년창조발전소는 부산대학교 인근의 32년 전 건축된 근린생활시설을 매입하여 증축과 리모델링을 통해 청년들의 다양한 활동과 창업을 지원할 목 적으로 건축됐다.
내부는 소규모 스타트업 기업들의 상호 교류와 소통을 돕는 코워킹 스페이스 와, 이를 지원하기 위한 강당, 열린카페, 스튜디오, 메이커스페이스 등으로 구 성되어 있다.
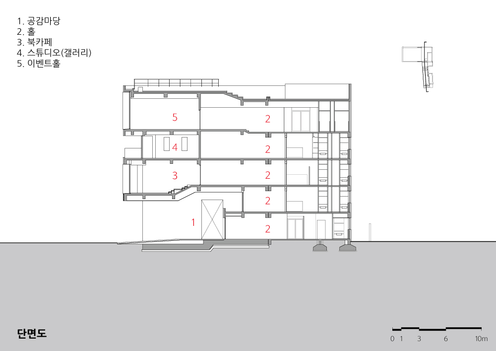
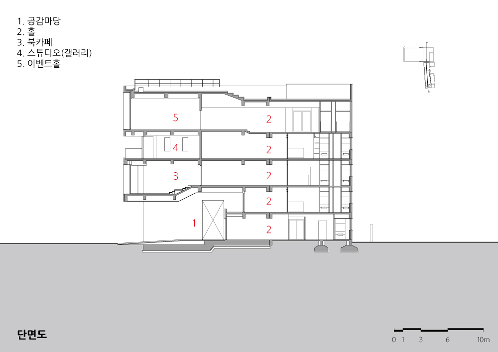
기존 건물의 구조안전을 고려해 5층의 벽돌조 주택을 철거하고 철골조로 강당 을 증축했다. 또 기존 건물과 증축건물이 만나는 지점에 승강기를 설치했다. 2016년 12월 설계공모 참가등록부터 이듬해 12월 개소식까지 설계와 공사를 통틀어 사업기간은 고작 1년이 주어졌다. 예산도 턱없이 부족하여 수도 없이 도면과 내역서를 수정해야 했다.
어려운 여건 속에서도 기존 건물을 잘 살려 설계와 감리업무를 성실히 수행하 였다는 점을 인정받아 작년 부산다운 건축상 대상이라는 큰 상을 받았다. 설계 하면서 직원뿐만 아니라 발주청 담당자들과 같이 고민하고 아이디어를 나누었 던 기억이 떠오른다. 서울과 부산 일대를 누비면서 유사 사례 건축물을 찾으며 같은 꿈을 꾸었던 이들의 응원과 신뢰가 없었다면 결코 이런 영광은 얻지 못했 을 것이다.
결과물에 비해 무척 과분한 상이지만, 지금까지의 건축작업을 돌아보고 방향 을 재점검하는 기회가 되었음은 틀림없다. 그리고 건축의 공공성을 화두 삼아 도시와 시민에게 기여할 방법을 찾는 것이 다시 숙제로 남았다.

The neighborhood living facility built 32 years ago near Pusan National University was purchased, and extended and remodeled into Geumjeong-gu Youth Creation Power Plant for the purpose of supporting young people's various activities and start-up.
The inside consists of a coworking space that helps small start-up companies to interact and communicate, an auditorium to support it, an open cafe, a studio, a maker space, etc.
Considering the structural safety of the existing building, we demolished a five-story brick house and extended an auditorium with steel frames. In addition, the elevator was installed at the point where the existing building and the extension building meet.
From the registration of a design bid in December 2016 to the opening ceremony in December of the following year, the project period was only one year from design to construction. The budget was far from enough, so we had to revise drawings and statements so many times.
In recognition of our faithful performance in design and supervision by utilizing the existing building well in difficult circumstances, we were awarded the Grand Prize of The Busan Architecture Award last year. During design, I am reminded of when we worried and shared ideas together with the officials of Project Agency as well as the staff. Without the support and trust of those who had the same dream while wandering around Seoul and Busan to find similar case architecture, we would never have won this glory.
Although it is an undeserved prize compared to the product, it is surely an opportunity to look back on the construction works so far and recheck the direction to go. Then, in terms of publicness of architecture, finding how to contribute to cities and citizens has remained an unsolved issue.







| 금정구 청년창조발전소 설계자 _ Architect. 정민교 _ Jeong, Mingyo (주)에스티에이 건축사사무소 _ STA Group Co., Ltd. 건축주 | 부산광역시 금정구청장 감리자 | 정민교 _ (주)에스티에이 건축사사무소 시공사 | 최우진 _ (주)영이건설 설계팀 | 안현, 최만억, 이채린, 김두현 대지위치 | 부산광역시 금정구 금정로 63-1 주요용도 | 제1종 및 2종 근린생활시설 대지면적 | 394.40㎡ 건축면적 | 253.80㎡ 연면적 | 975.67㎡ 건폐율 | 59.79% 용적률 | 247.38% 규모 | 지상 5층 구조 | 철근콘크리트조, 철골조 외부마감재 | 외단열미장마감(스터코), 폴리카보네이트, 우레탄판넬 내부마감재 | 에폭시코팅 , 비닐타일, 친환경수성페인트 설계기간 | 2016. 12 ~ 2017. 05 공사기간 | 2017. 06 ~ 2017. 12 사진 | 문종욱 전문기술협력 구조분야 : (주)대한구조안전기술 기계설비분야 : 종건축설비설계사무소 전기분야 : (주)동지종합엔지니어링 소방분야 : (주)동지종합엔지니어링  | 
Geumjeong-gu Creative Plant for youngmen Client | Geumjeong-gu Supervisor | Jeong Mingyo _ STA Group Co.,Ltd. Construction | Choi Ujin _ Young Yi Construction, inc. Project team | Ahn, Hyun / Choi, Maneok / Lee, Chaerin / Kim, Duhyeon Location | Geumjeong-ro 63-1, Geumjeong-gu, Busan, Korea Program | Neighborhood living Facility Site area | 394.40㎡ Building area | 253.80㎡ Gross floor area | 975.67㎡ Building to land ratio | 59.79% Floor area ratio | 247.38% Building scope | 5F Structure | RC, Steel Structure Exterior finishing | Stucco, Polycarbonate, Urethane panel Interior finishing | Epoxy coating, Vinyl tile, Water Paint Design period | Dec. 2016 ~ May 2017 Construction period | Jun. 2017 ~ Dec. 2017 Photograph | Moon Jonguk Structural engineer | Daehan Structural Engineering, Inc. Mechanical engineer | Jong Facility design office Electrical engineer | Dongji Total Engineering, Inc. Fire engineer | Dongji Total Engineering, Inc.  | 
'회원작품 | Projects > Public' 카테고리의 다른 글
| 건축사 강석원 2019.4 (0) | 2022.12.19 | 
|---|---|
| 아욱실리움센터(근로여성복지센터) 2019.4 (0) | 2022.12.17 | 
| 어반카펫 2018.12 (0) | 2022.12.11 | 
| 대전 나눔숲 자연휴양림 2018.12 (0) | 2022.12.11 | 
| 의왕시 다목적 체육관 2018.12 (0) | 2022.12.11 |