R씨 주택 2019.4
2022. 12. 17. 15:49ㆍ회원작품 | Projects/House

노영진 건축사
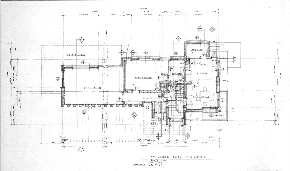
위치 서울특별시 마포구 공덕동
건축면적 124.06㎡
연면적 282.08㎡
구조 조적 및 철근콘크리트조




'회원작품 | Projects > House' 카테고리의 다른 글
| 삼청동 S씨집 2019.4 (0) | 2022.12.17 |
|---|---|
| 젊은 건축사의 집 2019.4 (0) | 2022.12.17 |
| J씨 주택 2019.4 (0) | 2022.12.17 |
| 평창동 K씨댁 2019.4 (0) | 2022.12.17 |
| 남천동 H씨댁 2019.4 (0) | 2022.12.17 |