2023. 1. 16. 09:13ㆍ카테고리 없음
Bangbae Multi Housing

방배동은 서울의 밀집 주거지 중 하나다. 이 오래된 구역은 주거 공급을 위해 재탄생의 과정을 거치는 중이다. 주변에서는 임차인의 확실한 월세를 보장하고자 많은 거주자들을 수용하기 위한 재건축들이 행해지고 있다. 현 부동산 현상을 토대로 건축주 또한 효율적이면서 임대가 수월한 공간을 디자인하길 의뢰했다.
서울의 거의 모든 주거지가 그렇듯이 사각형 모양의 대지는 제한된 면적을 갖고 있었다. 주변 건물들과의 거리는 1∼2미터 정도에 불과해 프라이버시를 침해할 우려가 있었다. 일조권은 법적으로 상당히 규제를 하고 있는 부분인데, 건물 상부 모양은 그에 영향을 받을 수밖에 없었다. 건축주가 제시한 어려운 조건 중 하나는 엘리베이터 설치에 관한 내용이었다.
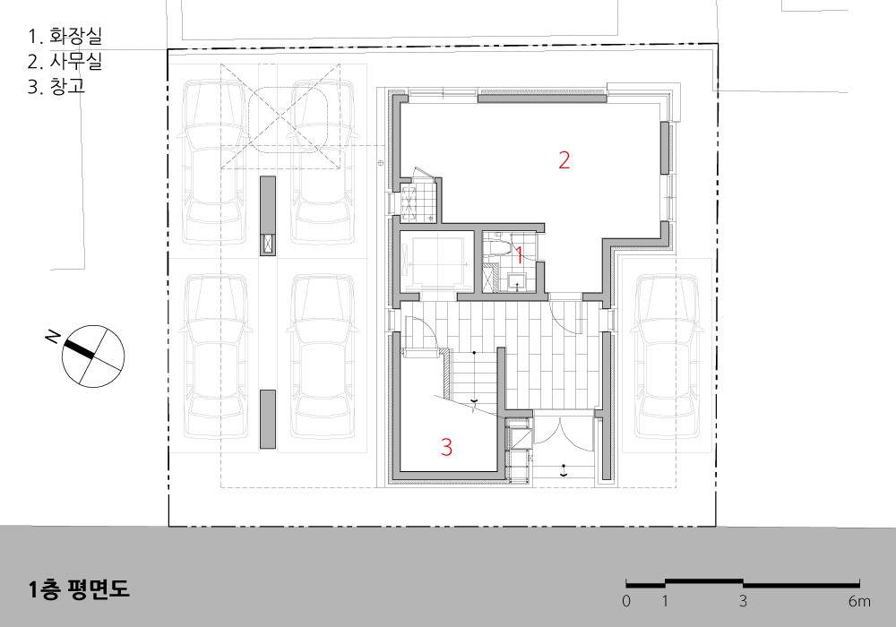
결국 우리는 최적화된 평면과 단면 구성을 통해 버리는 공간을 최소한으로 하고, 되도록 모든 곳을 사용할 수 있도록 구성했다. 건물은 2-3층에 각각 두세 대, 4-5층 중 1개는 복층 세대로 만들어 건축주가 총 5세대의 주거를 임대할 수 있도록 했다.
하나의 오브제로 서 있는 매스는 오직 각 층의 높이와 보이드 공간(창문) 요소만으로 그 비율을 완성했다. 콤팩트하면서도 모든 공간을 사용할 수 있는, 도심지에 최적화된 건물로 완성하고자 했다. 금색 테두리는 주 창호를 부각시키는 동시에 포인트가 되어 재료의 반복으로 지루하게 구성된 주변부를 생기있게 변화시켰다.
4-5층에 난 커다란 복층 구조의 코너 창은 적당량의 채광을 가능하게 한다. 계단을 오가는 사람들의 움직임은 동네에서 하나의 상징적인 그림 또는 프레임으로 투과될 수 있다. 2-3층의 각 코너 창 또한 프라이버시를 침해하지 않고 최대한의 뷰와 채광을 확보할 수 있다. 3단 테라스 형태의 벽돌 건물은 꽉 채워진 밀집된 공간이 아니라 개방감과 쉼터의 역할을 한다.

Bangbae is one of the highly densified residential districts of Seoul. This old district is in progress of rehabilitation due to the lack of housing supply. Neighbors are reconstructing to accommodate more residents which might guarantee the rigid income of real estate for the leaseholder. Through the present phenomenon of real estate market, the client also wanted efficient space that would guarantee the easy lease for the residents.
First of all, as most of residential districts do in Seoul, the site has limited area with almost squared shape. Adjacent buildings around were only 1-2m apart which might effects the privacy of the housing. And also right to sunlight is hardly protected by the law which influence the upper part of the building mass. Another difficult requirement of the client was to install an elevator.
So we had to figure out the optimized configuration of plans and sections minimizing the dead spaces and vitalizing all spots as usable space. The building finally contains 2 housings each 2-3F and 1 duplex housing through 4-5F. That would give the client to lease 5 housings in this small building.
The mass stand like an single objet where the heights of each floor and voids(windows) are only elements that balancing the proportion of the total mass that would stand as an iconic feature in this district. That would give the full usage of floor area without any loss and also a compact urban optimized housing in Seoul. The gold stainless edges emphasized the presence of main windows tries to vitalize the banality of surrounding materials of this district.
The large corner window of 4-5F allows a sufficient amount of sunlight through the duplex housing. The inner stair through this corner window gives a movement of people that reflects as an iconic frame in the middle of the neighbor. And every corner windows of 2-3F protects the privacy but fulfill the sunlight and the view for the residents.
The three terraced brick mass allows the openness and pausing area in this highly densified and max filled sequence of neighbor.







| 방배동 다세대주택 설계자 | 신명숙정동일_슬로프트 건축사사무소,HMONP 건축주 | 홍지운, 문춘경 감리자 | 송주정 _ (주)건축사사무소 다림건축 시공사 | 준아트종합건설 주식회사 대지위치 | 서울특별시 서초구 방배로13길 41-15 주요용도 | 공동주택(다세대주택) 대지면적 | 173.30㎡ 건축면적 | 100.92㎡ 연면적 | 334.26㎡ 건폐율 | 58.23% 용적률 | 192.87% 규모 | 지상 4층 구조 | 철근콘크리트조 외부마감재 | 치장벽돌, 스테인레스 스틸발색 내부마감재 | 벽 : 친환경페인트 도장 / 바닥 : 원목마루 설계기간 | 2017. 05 ~ 2017. 11 공사기간 | 2017. 11 ~ 2018. 08 사진 | 노경 전문기술협력 - 구조분야 : (주)오푸스펄구조기술사사무소 - 기계설비분야 : (주)주성이엔지 - 전기분야 : (주)한길엔지니어링 |
Bangbae Multi Housing Architect | Shin, Myungsook,Chung, Donil_SLOFT Architects, (HMONP) Client | Hong, Jiun / Moon, Chungyeong Supervisor | Song, Jujeong _ Dalim Architects Construction | Junart Construction, Inc Location | 41-15, Bangbae-ro 13-gil, Seocho-gu, Seoul, Korea Program | Multi-family housing Site area | 173.30㎡ Building area | 100.92㎡ Gross floor area | 334.26㎡ Building to land ratio | 58.23% Floor area ratio | 192.87% Building scope | 4F Structure | RC Exterior finishing | Brick, Stainless Steel Interior finishing | Wall : V.P. Paint / Floor : Wood Flooring Design period | May 2017 ~ Nov. 2017 Construction period | Nov. 2017 ~ Aug. 2018 Photograph | Roh, kyung Structural engineer | Opus pearl structural Mechanical engineer | Jusung Engineering Electrical engineer | Hangil Engineering |
