2023. 2. 21. 09:27ㆍ회원작품 | Projects/Culture
ST Songeun Building

강남권의 대표적 상업지구인 청담동에 무료로 개방하는 문화예술공간과 함께 그 재단을 지원하는 기업의 사옥을 디자인하는 프로젝트다. 협소한 대지의 최고 용적률과 도산대로 최고 높이 제한(지정) 60미터로 생성된 매스는 그 자체만으로도 가로, 세로, 높이의 비율이 좋은 매스로서 도산대로에 면하는 주변 경관과 잘 어우러진다. 후면부의 주거지역을 보호하기 위한 정북 방향 일조권사선제한은 사각의 평범한 매스에 직각 삼각 형태의 독특함을 부여한다. 일조권에 대한 법규를 극대화하여 디자인한 매스는 최소한의 지역적 여건을 최대한 활용한, 도산대로의 정체성을 부여한 건물이 된다.
입면의 각 부분의 기능과 구조를 직설적으로 여과 없이 보여주는 디자인이다.
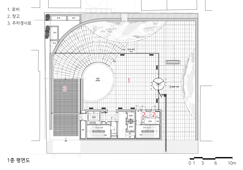
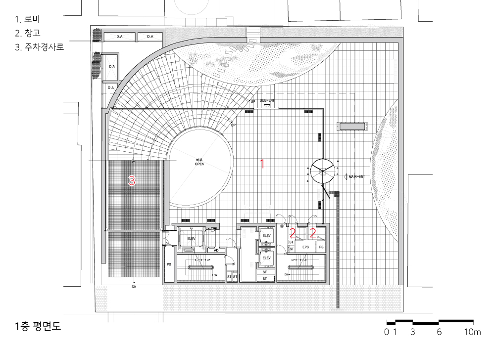
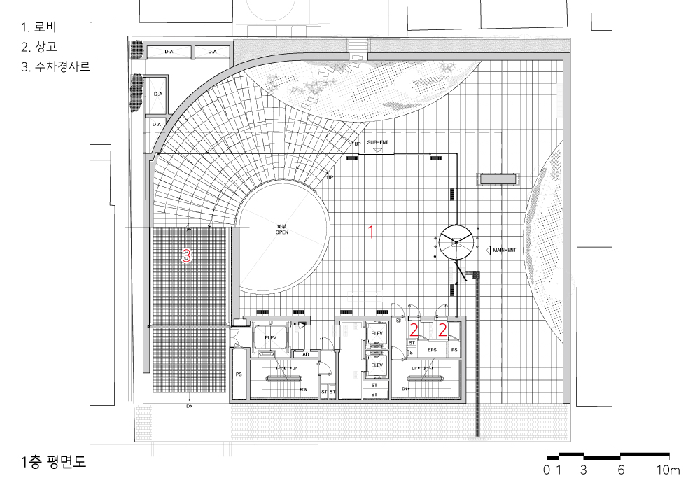
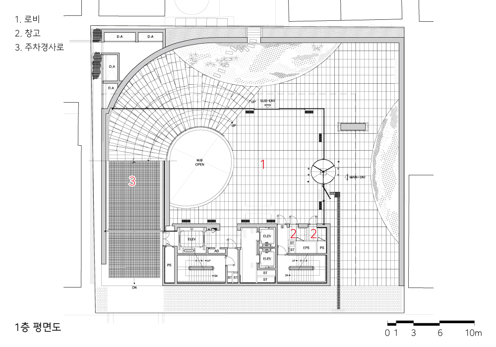
도산대로 측에는 최소한의 창으로 매스의 상징성을 보여주고, 후면의 주거지역에는 발코니와 창을 둬서 위협적이지 않게 대응하는 입면계획이다. 지상층은 일반인에게 개방된 오픈스페이스로 이 공공성의 성격은 커다란 계단과 보이드 공간을 통해 갤러리가 위치한 지하 2층, 지상 2층과 3층까지 연결된다.
바닥에서 띄워진 삼각형 형태의 육중한 매스를 온전히 보여주는 측면은 상업지역과 주거지역의 성격에 직설적으로 대응하는 동시에, 기둥이 없는 삼각형 창이 전체 건물의 구조미를 담당한다.
건축물은 대로변에서의 접근이 용이한 출입구, 건물 1층 뒤편에 있는 공개공지와 조경시설, 다양한 크기의 전시장, 슬라이드 램프를 통한 자동차 지하 출입구, 사각형 건물 상부층의 전망 좋은 사무실과 최상층 이벤트 홀 등이 모두 유기적인 형태를 띠고 있다. 소나무 패턴을 담은 독특한 콘크리트 매스인 이 건축물은 서울의 새로운 랜드마크로 자리 잡을 것이며, 건축과 예술에 많은 영감을 불러일으키는 촉매제가 될 것으로 예상된다.

It is a project to design the office building of a company supporting the foundation along with a cultural and artistic space that is open for free in Cheongdam-dong, a representative commercial district in the Gangnam area. Created with the maximized floor area ratio of the narrow site and the maximum height limit (designated) of 60 meters in Dosan-daero, the mass itself has a good balance of the width, length, and height. It blends well with the surrounding landscape facing Dosan-daero.
Sectional restriction for daylight that lies due north to protect the residential area in the rear part introduces the unique form of a right-angled triangle to the average square mass. The mass design by maximizing the law on the right to have sunlight allows for a building that has given the identity of Dosan-daero by making the best use of the minimum local conditions.
It is a design that directly shows the function and structure of each part of the facade. It is an elevation plan that shows the symbolism of mass with a minimum number of windows on the side of Dosan-daero and responds without threat by placing balconies and windows in the residential area at the rear. The ground floors are open to the public, and this publicness continues to the second basement and the second and third floors above the ground, where a gallery flows through a large staircase and void space. The floating triangle shape with massive volume represents the characteristic of commercial and residential area, while the triangle window without structure expresses the entire volumes’ structural beauty.
This building is an organic structure: the easy-to-access entrance from the roadside, open space and landscaping facilities at the back of the first floor, exhibition halls of various sizes, underground car entrances through slide ramps, offices with a good view of the upper floors of the square building, and event halls on the top floor. With a unique concrete mass with a pine pattern, this building will establish itself as a new landmark in Seoul and catalyze to inspire architecture and art.















| ST송은빌딩 설계자 | 김기한_(주)정림건축종합건축사사무소 공동설계 | 자크 헤르조그, 피에르 드 뫼롱 _ Herzog & de Meuron 건축주 | 에스티인터내셔널 코퍼레이션, 송은문화재단 감리자 | (주)한미글로벌건축사사무소 시공사 | 장학건설(주) 설계팀 | 정림 _ 류승렬, 박민주, 이수진, 조민현, 이상기, 전수진, 박규혁 설계의도 구현 | (주)정림건축종합건축사사무소, Herzog & de Meuron 대지위치 | 서울특별시 강남구 도산대로 441 주요용도 | 업무시설, 문화 및 집회시설 대지면적 | 1,179.10㎡ 건축면적 | 642.73㎡ 연면적 | 8,151.78㎡ 건폐율 | 54.51% 용적률 | 373.65% 규모 | 지하 5층 - 지상 11층 구조 | 철근콘크리트구조 외부마감재 | 노출콘크리트(송판무늬), THK62.56 로이복층유리 내부마감재 | 콘크리트 면정리, 우드 플루어링, 은박지 설계기간 | 2017. 02 - 2021. 06 공사기간 | 2018. 12 - 2021. 08 사진 | 김현수 / 심기섭(드론) 전문기술협력 - 구조분야 : (주)창민우구조컨설탄트 - 기계설비분야 : (주)비드이앤씨 - 전기분야 : (주)정우디씨 - 소방분야 : (주)남도티이씨 |
ST Songeun Building Architect | Kim, Kihan_JUNGLIM ARCHITECTURE Collaborative design | Jacques Herzog, Pierre de Meuron _ Herzog & de Meuron Client | ST International, SONGEUN Art and Cultural Foundation Supervisor | Hanmiglobal Construction | Janghak E&C Project team | JUNGLIM _ Yoo, Suengyoul / Park, Minju / Lee, Sujin / Jo, Minhyun / Lee, Sanggi / Jeon, Sujin / Park, kyuhyuk Design intention realization | JUNGLIM, Herzog & de Meuron Location | 441, Dosan-daero, Gangnam-gu, Seoul, Korea Program | Office / Cultural Facility Site area | 1,179.10㎡ Building area | 642.73㎡ Gross floor area | 8,151.78㎡ Building to land ratio | 54.51% Floor area ratio | 373.65% Building scope | B5F - 11F Structure | RC Exterior finishing | Exposed Concrete(Wooden Pattern), THK62.56 LOW-E PAIR GLASS Interior finishing | Conctete Treatment, Wood Flooring, Silver Leaf Design period | Feb. 2017 - Jun. 2021 Construction period | Dec. 2018 - Dec. 2021 Photograph | Kim, Hyunsoo / Shim, Giseop(drone) Structural engineer | CHANG MINWOO Structural Consultants Mechanical engineer | BID E&C Electrical engineer | JUNGWOO DC Fire engineer | Namdo TEC |

'회원작품 | Projects > Culture' 카테고리의 다른 글
| 밀락더마켓 2023.5 (0) | 2023.05.19 |
|---|---|
| 아트홀 마당 2023.5 (0) | 2023.05.19 |
| LG아트센터 서울 & LG디스커버리랩 서울 2023.2 (0) | 2023.02.17 |
| 성동아이사랑복합문화센터 2022.1 (0) | 2023.02.15 |
| 양림동 공예특화거리펭귄마을 2020.9 (0) | 2023.01.19 |