2023. 5. 19. 13:57ㆍ회원작품 | Projects/Culture
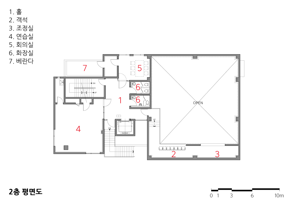
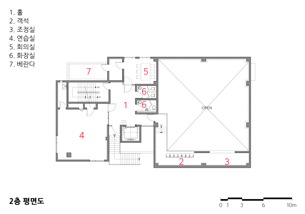
Arthall Madang


동네문화공간 ‘아트홀 마당’
아트홀 마당은 30년 동안 지방의 연극 무대에서 활동하고 있는 어느 연극인의 신념으로 시작되었다. 척박한 환경 속에서도 함께해 온 연극인들을 위한 무대와 창작의 공간, 그리고 그 길을 걷고 있는 후배 연극인을 위한 어느 연극인의 바람은 동네의 일상적 문화공간으로 자리 잡게 되었다.
낯선 지방의 연극 문화공간
연극이 일상의 여가 또는 문화활동의 한 부분으로 자리한 지역과 달리, 지방의 연극 문화는 시 또는 전국단위의 문화행사를 통해 이루어지는 경우가 대부분이다. 울산의 성안동이라는 문화공간과 거리가 있는 동네에 일상적이지 않은 문화인 ‘연극’이라는 프로그램이 일상의 장소와 관계해 구축되어 가는 과정에서 ‘연극’이라는 키워드를 건축에 드러나게 하여 동네 주민들의 일상에 자연스레 스며들게 하는 것이 우리가 아트홀 마당에서 지향하는 가치이다.
우리가 지향하는 가치를 아트홀 마당 프로젝트에 구현하기 위해 건축물이 들어설 장소가 지닌 다양한 일상적인 가치를 발견하고 건축물이 담아낼 프로그램과 장소, 일상의 관계를 건축으로 구축하여 제안했다.
낯선 건축, 일상의 동네길
건축물이 들어선 성안동은 동네길과 자연의 둘레길이 이어지고 마주하는 장소이다. 건축물 역시 동네길의 일부분이기를 바랐다. 낯선 연극의 공간에 일상의 길이 자연스레 연결되도록 하여 주민들이 연극 공연장과 연극인의 연습 공간으로 자연스레 진입할 수 있도록 하여, 연극 공연장은 일상적인 공간이 되어 연극과 일상이 늘 친밀하게 마주할 수 있는 일상의 문화공간이 된다.
일상과 마주한 연극 공연장, 장면화된 건축
자연과 일상을 마주하는 연극적인 건축. 동네의 작은 단위 건축을 배려하여 커다란 덩어리를 분절하고, 다양한 층위에서 일상과 마주하는 무대와 같은 외부공간을 제안하였다. 안에서 이뤄지는 공연은 밖으로 확장되어 일상과 마주하는 상상의 무대를 만들어내고, 다층의 돌출된 외부공간은 자연과 일상, 장소를 마주하는 다양한 장면의 가능성을 실험하는 연극의 무대가 된다.
건축을 구성하는 투명성은, 건축이 하나의 연극 무대로서 건축을 이용하는 주민의 모습과 연극인의 다양한 활동이 장면화되어 건축물 안에서 이루어지는 행위들이 연극 공연처럼 외부로 투영되기를 바랐다. 연극 공연처럼 흐르는 장면화된 파사드를 상상했다.
연극이란, 장소와 시간, 관객이 마주하는 질감의 건축
마주하며 호흡하는 공간, 연극은 시간과 관객을 담아내는 예술 활동이다. 건축 역시도 장소와 일상 그리고 시간 속에서 마주하는 것들이 스며들기를 바라며, 건축의 질감도 연극의 질감을 닮았으면 했다. 다양한 미장센으로 과장되지 않은 시간의 흐름만이 건축의 특수효과를 만들어내는 일상적 질감의 건축을 위해 노출콘크리트의 물성을 사용하여 장소의 매 순간을 담아내고자 했다.






‘Art hall Madang’, A Local Cultural Space
Art hall Madang is a product of a theater woman’s belief. The woman has been active on stage for 30 years. The stage is a creative space for theater artists who have been working together even in a barren environment, and for younger artists who are walking on the same path. It has become a daily cultural space in the neighborhood.
Cultural Theatrical Space in an Unfamiliar Region
Unlike regions where theater is a part of daily leisure and cultural activities, local theater culture mostly happens only through citywide or nationwide cultural events. The intended value and goal of Art hall Madang are for it to naturally permeate the daily lives of local residents with the keyword "drama" that was revealed in the architecture during the process of establishing a program related to daily life, which is a culture that is not ordinary and distant from the neighborhood of Seongan-dong in Ulsan.
In order to implement the values we aim for in Art hall Madang project, we discovered the various daily values of the place where the building will be constructed. And, we proposed how program, space, and daily relationships should be expressed architecturally as the major elements of the building.
Unfamiliar Architecture, an Everyday Neighborhood Road
Seongan-dong, where the building is built, is a place where the local streets and natural trekking courses are connected and meet each other. Hopefully, the building would also become a part of the local street. By connecting daily paths to unfamiliar theater spaces naturally, residents can easily enter the theatrical venue and the practice space in the theater. This will make the theater venue a daily cultural space where plays and daily life can always be intimately connected.
The Theater that Comes in Touch with Everyday Life, a Scenic Architecture
It is a theatrical architecture that touches nature and daily lives. In consideration of the construction of small units in the neighborhood, a large chunk was divided, and an external space such as a daily life stage was proposed for multiple floors. The performance inside expands to the outside to create an imaginary stage that meets people’s everyday lives, and the multi-layered protruding outer space becomes the stage of a play that experiments with the possibility of various scenes touching nature, daily life, and space.
We hope that transparency, a major element of the building, projects the scenes of residents using it as a theater stage. It is where various other activities of people in theater can be filmed and the actions that happen in the building can be projected outside like theater performances. We imagined a scenic facade that flows like a theater performance.
Theater, a Building of Space, Time, and Architectural Textures that Touch the Audience
This is a space where people breathe and meet face to face, and a play is an art activity that captures time and audience. We hope that the architecture permeates things encountered in place, daily life, and time, and that the texture of architecture resembles the plays’ textures. To create an architecture that has everyday textures, and various mise-en-scènes, in which only the flow of time that is not exaggerated creates the special effects of the architecture, the physical properties of exposed concrete are used with consideration of capturing every moment in the space.



| 아트홀 마당 설계자 | 고영주 _ 알오엠건축사사무소 건축주 | 공연제작소 마당 감리자 | (주)엠피티종합건축사사무소 시공사 | 굿모닝토건(주) 설계팀 | 김임주, 윤혜진 설계의도 구현 | 알오엠 건축사사무소 대지위치 | 울산광역시 중구 성안1길 101(성안동) 주요용도 | 제2종근린생활시설(공연장, 사무소, 휴게음식점) 대지면적 | 655.50㎡ 건축면적 | 375.21㎡ 연면적 | 898.75㎡ 건폐율 | 57.24% 용적률 | 137.11% 규모 | 4F 구조 | 철근콘크리트구조 외부마감재 | 노출콘크리트 내부마감재 | 노출콘크리트, 석고보드 위 수성페인트, 콘크리트폴리싱 설계기간 | 2020. 12 - 2021. 03 공사기간 | 2021. 04 - 2021. 11 사진 | 윤동규 구조분야 | (주)하이콘엔지니어링 기계설비분야 | 탑이앤지(주) 전기분야 | 탑이앤지(주) 소방분야 | 탑이앤지(주) |
Arthall Madang Architect | Ko, Youngju _ ROM architects & planners Client | Theatrical production studio, Madang Supervisor | MPT architect Co., Ltd. Construction | GM Construction Co., Ltd. Project team | Kim, Imju / Yoon, hyejin Design intention realization | ROM architects & planners Location | 101, Seongan 1-gil, Jung-gu, Ulsan, Korea Program | Neighbourhood living facility(Theater, office ,cafe) Site area | 655.50㎡ Building area | 375.21㎡ Gross floor area | 898.75㎡ Building to land ratio | 57.24% Floor area ratio | 137.11% Building scope | 4F Structure | RC Exterior finishing | Exposed concrete Interior finishing | Exposed concrete, Water paint on gypsum board, Concrete Policing Design period | Dec. 2020 - Mar. 2021 Construction period | Apr. 2021 - Nov. 2021 Photograph | Yoon, Dong-gyu Structural engineer | Haicon Structural Engineering Co., Ltd. Mechanical engineer | Top ENG Co., Ltd. Electrical engineer | Top ENG Co., Ltd. Fire engineer | Top ENG Co., Ltd. |
'회원작품 | Projects > Culture' 카테고리의 다른 글
| 하동 플라이웨이 케이블카 스테이션 2023.8 (0) | 2023.08.18 |
|---|---|
| 밀락더마켓 2023.5 (0) | 2023.05.19 |
| ST송은빌딩 2022.7 (0) | 2023.02.21 |
| LG아트센터 서울 & LG디스커버리랩 서울 2023.2 (0) | 2023.02.17 |
| 성동아이사랑복합문화센터 2022.1 (0) | 2023.02.15 |
