2024. 3. 31. 10:15ㆍ회원작품 | Projects/House
Sangri Energy independent housing

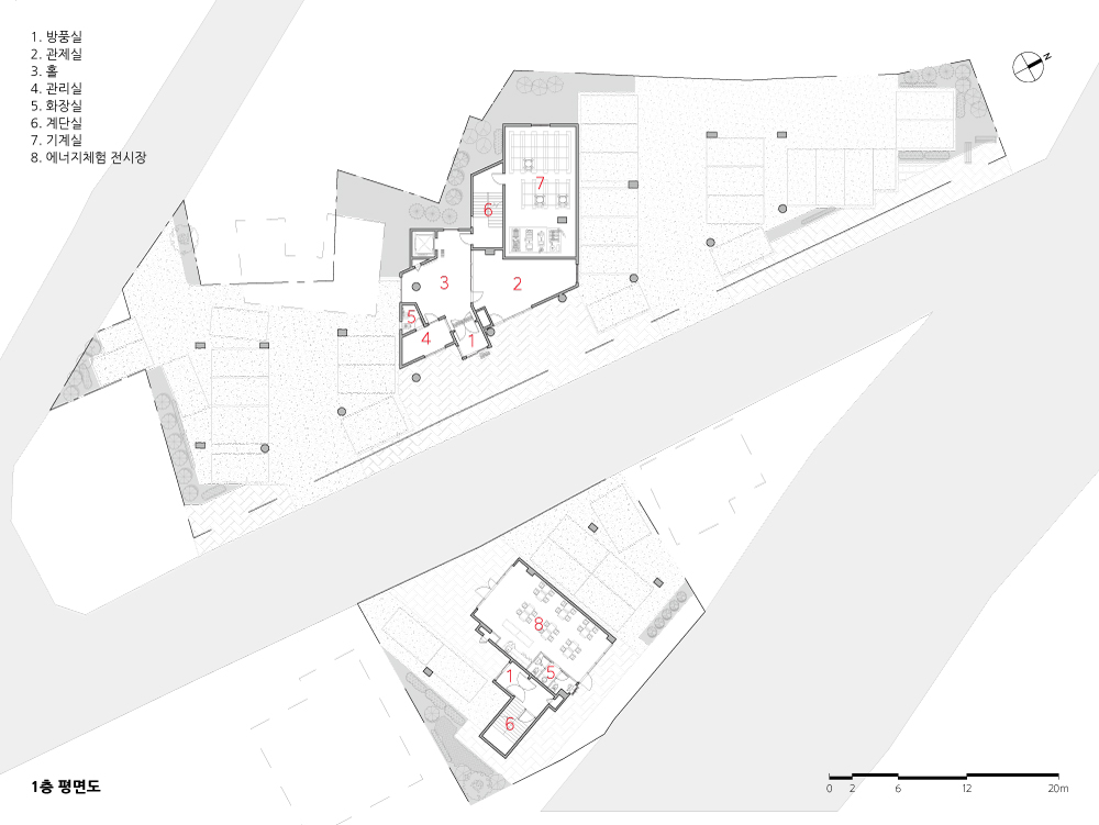
세종특별자치시 조치원의 도시재생사업 일환으로 상리 친환경에너지자립마을 사업이 진행됐다. 본 건축물은 친환경 에너지자립마을 내 임대형 공동주택으로 지상 5층의 규모로 계획됐다. 그리고 더 많은 시민들에게 제로에너지 건축의 혜택을 제공한다는 취지에서, 인접한 시 소유의 부지에 별동을 동시 개발해 5호의 임대주택과 에너지 체험관을 3층 규모로 추가 계획하게 됐다.
우리나라 에너지 사용량의 40%가량은 건설부문이 차지한다. 그래서 탄소중립도시 실현을 위해 주택의 에너지 자립률을 높이는 것이 중요 한데, 단독주택의 경우 6kwp의 태양광모듈을 지붕에 설치하면 150제곱미터(45평) 가량의 5인 가정이 에너지를 자립해 생활할 수 있다.
반면 52%의 국민이 거주하는 공동주택의 경우 태양광모듈을 설치하기 위한 지붕면이 부족해 태양에너지를 활용해 에너지 자립을 실현시키기 쉽지 않다. 이에 공동주택의 벽면 BIPV 기술 실현이 중요해졌고, 벽면 BIPV 기술을 실현시키기 위해 다양한 연구들이 진행되어 왔다.
상리 에너지자립마을은 5층 규모의 중층형 공동주택을 제로에너지 3등급의 건축물로 실현했다. 음영 분석을 통해 채광창 방향인 동서향 벽면에 컬러 BIPV를 설치했고, 벽면 BIPV 외에 지붕 BIPV 및 BEMS를 구현하고 진공단열재, 고성능 알루미늄 창호, 소형풍력발전기 등의 친환경 기술을 적용했다. 또 본동 2층에 리빙랩을 구현하여, 스마트월, 스마트 윈도우 등 주민들이 스마트 제로에너지 기술을 실생활에서 체험할 수 있게 했다.
경관적으로는 조천교 주변의 도시재생 지역과 어우러질 수 있도록 매스를 분절하고, 옥외 테라스 여백을 주어 5층 규모의 스케일이 주변 단독주택 부지에 부담이 되지 않도록 의도했다. 외장재료는 컬러 BIPV 외에 화이트징크, 청고벽돌을 사용했다.


As part of the urban regeneration project in Jochiwon, Sejong Special Self-Governing City, the Sangri Eco-Energy Self-Sufficient Village project was implemented. This building, planned as a rental multi-family housing within the eco-energy self-sufficient village, is designed as a 5-story structure. Furthermore, with the aim of providing the benefits of zero-energy architecture to more citizens, an additional building with 5 rental homes and an energy experience center on the 3rd floor was simultaneously planned on adjacent municipal land.
Approximately 40% of South Korea’s energy consumption is attributed to the construction sector. To achieve carbon-neutral cities, it is crucial to increase the energy self-sufficiency of residential buildings. For instance, a single family home equipped with a 6 kwp solar module on the roof can provide energy self-sufficiency for a family of about 5 people living in a 149-square-meter (45-pyeong) house. Despite the realization of zero-energy technology in 2-story single-family homes, achieving carbon-neutral cities remains challenging due to the fact that 51.9% of South Koreans reside in apartments. Even if solar modules are installed on the entire roof area of a multi-family housing unit, it would be insufficient to meet the energy demands of 10-30 story apartment buildings. Therefore, efforts have been made to convert solar radiation into energy using Building-Integrated Photovoltaics (BIPV) technology on building facades. However, despite continuous advancements in BIPV technology over the past decade, it has not been readily commercialized due to issues related to urban aesthetics and light reflection.
The Sangri Eco-Energy Self-Sufficient Village has realized a 5-story mid-rise multi-family housing as a zero energy Grade 3 building. Through shading analysis, color BIPV was installed on the east-west facing walls to maximize solar energy utilization. In addition to wall BIPV, roof BIPV and Building Energy Management Systems (BEMS) were implemented, along with eco-friendly technologies such as vacuum insulation panels, high-performance aluminum window frames, and small wind turbines. Furthermore, a Living Lab was established on the 2nd floor of the main building, allowing residents to experience smart zero-energy technologies such as Smart Walls and Smart Windows in their daily lives.
Landscape-wise, the massing was segmented to harmonize with the urban regeneration area around Jocheon Bridge, and outdoor terrace spaces were provided to mitigate the scale of the 5-story structure’s impact on neighboring single-family home sites. Exterior materials include color BIPV, white zinc, and blue bricks.







| 상리 에너지자립마을 설계자 | 최현규 _ M.A.C.K 건축사사무소 건축주 | 세종특별자치시청 감리자 | M.A.C.K 건축사사무소 시공사 | 세운종합건설(주), 에스케이솔라에너지(BIPV) 설계팀 | 임우석, 이원호, 남동훈, 박영철 설계의도 구현 | MACK 건축사사무소 대지위치 | 세종특별자치시 조치원읍 터미널안길 12·13 주요용도 | 공동주택 대지면적 | 1,454㎡(본동)/477㎡(별동) 건축면적 | 552㎡(본동)/211㎡(별동) 연면적 | 1,854㎡(본동)/428㎡(별동) 건폐율 | 38%(본동)/44%(별동) 용적률 | 127%(본동)/90%(별동) 규모 | 5F(본동)/3F(별동) 구조 | 철근콘크리트구조 외부마감재 | 화이트 징크, 청고벽돌 내부마감재 | 친환경수성페인트, 테라죠타일, 륨카펫 설계기간 | 2021. 06 - 2022. 04 공사기간 | 2021. 12 - 2023. 11 사진 | 최현규 구조분야 | (주)시엘에스이엔지 기계설비분야 | 미래ENG 전기분야 | 미래ENG 소방분야 | 미래ENG 에너지컨설팅 | (주)네드 |
Sangri Energy independent housing Architect | Choi, HyunKyu _ MACK Architect’s Office Client | Sejong City Government Supervisor | M.A.C.K Architectural Office Construction | Sewoon Construction Co. /SKSE(Bipv) Project team | Lim, Wooseok / Lee, Wonho / Nam, Donghun / Park, Myungcheol Design intention realization | M.A.C.K Architectural Office Location | 12·13, Terminalan-gil, Jochiwon-eup, Sejong-si, Korea Program | Apartment house Site area | 1,454㎡(A)/477㎡(B) Building area | 552㎡(A)/211㎡(B) Gross floor area | 1,854㎡(A)/428㎡(B) Building to land ratio | 38%(A)/44%(B) Floor area ratio | 127%(A)/90%(B) Building scope | 5F(A)/3F(B) Structure | RC Exterior finishing | Whit zinc panel, Bricks Interior finishing | Vinyl tiles, Terrazo finishing, Water paint Design period | Jun. 2021 - Apr. 2022 Construction period | Dec. 2021 - Nov. 2023 Photograph | Choi, HyunKyu Structural engineer | CLS Structural ENG Mechanical engineer | Mirae ENG Electrical engineer | Mirae ENG Fire engineer | Mirae ENG Energy Consulting | NED |
'회원작품 | Projects > House' 카테고리의 다른 글
| 가로틈집 2024.3 (0) | 2024.03.31 |
|---|---|
| 화창재(和暢齋)5583 2024.3 (0) | 2024.03.31 |
| 남양주 ‘풍경을 담은 집, 풍경 속에 담긴 집’ 2024.2 (0) | 2024.03.08 |
| 유천동 판판집 2024.2 (0) | 2024.03.08 |
| 단비가(家) 2024.2 (0) | 2024.03.08 |
