2024. 3. 8. 10:20ㆍ회원작품 | Projects/House
Welcome Rain House

인연
오랫동안 업무 관련으로 알던 분의 “건축사님, 이 땅 한번 봐주세요”라는 말에 업무 파트너에서 건축주와 설계자로 새로운 인연이 시작되었다. 작은 규모에 부정형의 대지 형상으로, 긴 시간 매물로 나와 있었지만 찾는 사람이 없던 땅이라 건축주가 원하는 집의 그림이 불가능할 것 같아 만류했으나, 단독주택 위주의 조용한 동네 분위기와 함께 남측으로 초등학교 운동장과 접해있어 자연채광에 유리한 점에 건축주가 후한 점수를 주어 나도 ‘애증의 관계’로 이 땅과 인연을 맺게 되었다.
공간구성
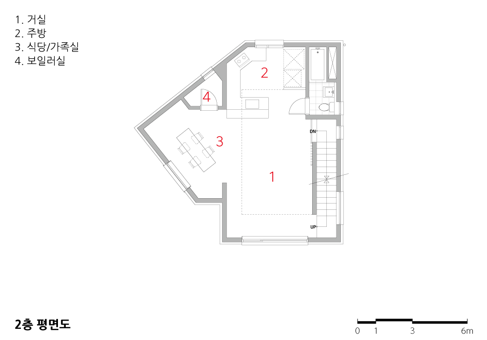
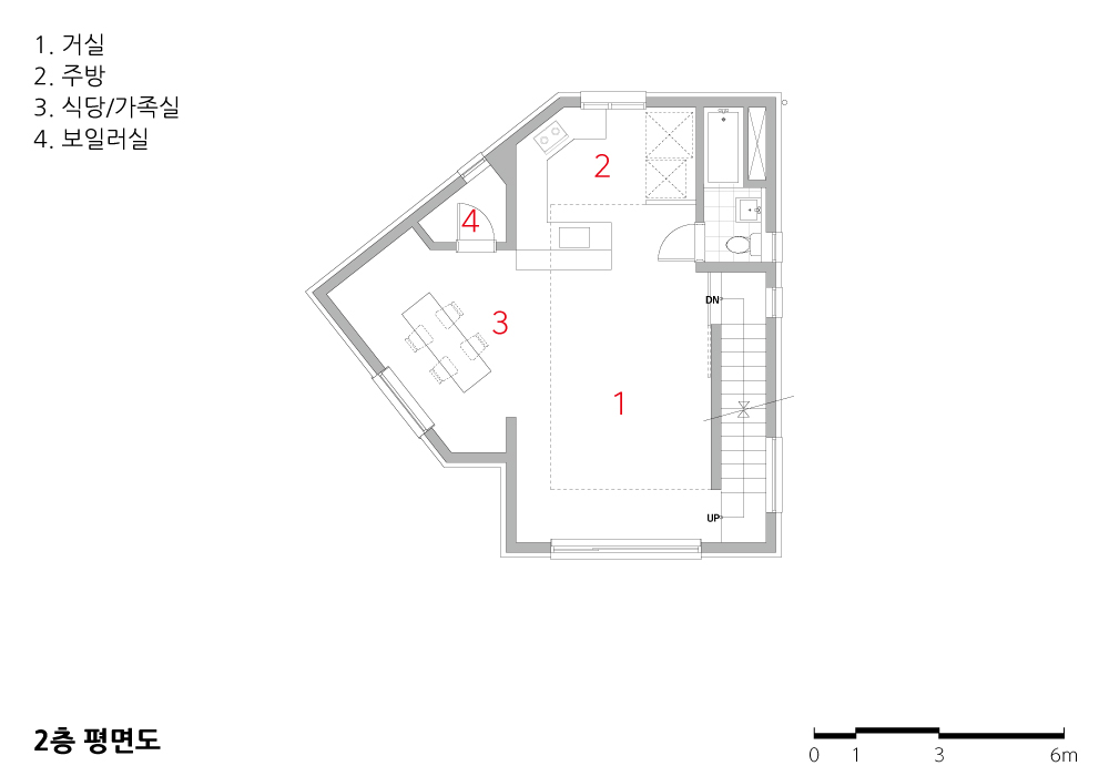
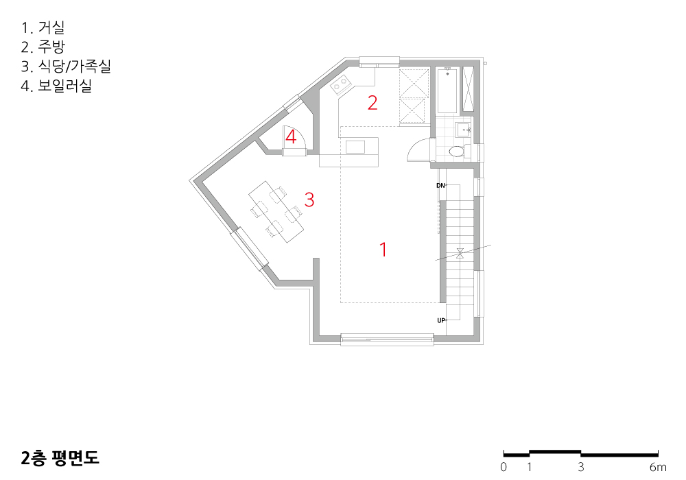
건축주는 3인 가족을 위한 주거공간과 개인 사무실을 계획하고 있었다. 1층은 사무실과 주차장, 주택의 현관으로 구성했으며 현관은 도로에서 최대한 이격하여 안전성을 확보하고 목재가벽과 목재데크로 주택의 영역성을 강조했다. 협소한 대지 규모로 인해 주거공간은 공간의 성격에 따라 2층은 거실과 가족실, 주방으로, 3층은 각자의 침실과 드레스룸, 욕실로 구성했다. 집에서는 주로 거실에서 함께하는 시간이 대다수여서 침실은 최소한의 공간만으로도 충분하다는 건축주의 의견이 있었기에 가능한 공간구성이었다.
외부공간
건축주는 공동주택을 벗어나 새로운 일상을 꿈꿨고, 그 필수 조건은 가족들 혹은 지인들과 함께 할 수 있는 외부공간이었다. 소규모 대지에서 지상의 마당은 사치스러운 공간이 되어버린 지 오래이다. 이 프로젝트 역시 약 129제곱미터(39평)의 부정형 대지에서 주차, 사무실, 마당을 함께 구성하는 건 불가능하여 옥상을 활용한 외부공간을 조성했다. 강아지의 영역인 3층 베란다와 옥상을 철제 계단으로 연결하고, 일조사선제한의 범위에서 최대한 옥상 벽체를 높여 외부의 시선에서 자유롭도록 배려했다. 옥상공간인 ‘하늘마루’의 바닥은 인조잔디와 목재데크를 적용하여 마당의 느낌을 연출하려 했다. 현재는 날씨가 좋은 날에는 사모님의 운동공간으로, 주말 저녁은 파티장으로 스케줄이 빼곡하다.
어울림
인근 주민들은 인접대지까지 매입해야 제대로 된 집이 될 거라 말했지만, 건축주와 나는 주어진 상황에서 최선의 방법을 찾으려 노력했고 건축주에게 딱 필요한 만큼의 ‘소박하지만 개성 있는 집’을 마주하게 되었다.
오래된 주택가에서 주택은 튀는 화려함보다는 주변과 조화되는 소박한 개성이 더 중요하다고 생각한다. 건물이나 우리나 모두가 함께 사는 세상이다.



Destiny
A new relationship transitioned from being business partners to becoming the owner and designer when someone I had known for a long time through work said, “Architect, please take a look at this piece of land.” The land is relatively small and has an irregular shape, lingering on the market for an extended period with no takers. The owner hesitated because they believed it would be impossible to build the house they desired on it. However, the land is situated in a tranquil neighborhood dominated by single family homes and is adjacent to a southern elementary school playground. The building owner recognized its advantage in terms of natural lighting, which earned it some favorable points. Consequently, I developed a kind of ‘love-hate relationship’ with this plot of land.
Space Composition
The client’s plan involved creating a living space and a private office for a family of three. The first floor was designated for the office, parking area, and house entrance. The entrance was strategically positioned as far away from the road as possible to prioritize safety, and the house’s territoriality was emphasized with the use of a wooden pallet and a wooden deck.
Given the limited land size, the residential space was organized on the second floor, comprising a living room, family room, and kitchen, while the third floor contained individual bedrooms, dressing rooms, and bathrooms. This spatial configuration was made feasible because the client believed that minimal bedroom space was sufficient, as most of their time at home was spent together in the living room.
Outdoor space
The client dreamed of a new daily life outside of the apartment complex, and an essential condition for that was an outdoor space where one could spend time with family or acquaintances. It has been a long time since the yard above ground became a luxurious space on a small plot of land. In this project, it was also impossible to organize parking, an office, and a yard together on an irregularly shaped site of about 129 square meters (39 pyeong), so an outdoor space was created using the rooftop. The third-floor veranda, which is the dog’s area, and the rooftop are connected by a steel staircase, and the rooftop wall is raised as much as possible within the scope of solar radiation restrictions to ensure freedom from outside views. The floor of ‘Haneul Maru’, a rooftop space, was designed to create the feeling of a yard by applying artificial grass and a wooden deck. Currently, the schedule is full as it serves as the wife’s exercise space on days when the weather is nice and as a party venue on weekend evenings.
Harmony
Neighbors in the vicinity suggested that purchasing the adjacent land would result in a more fitting house. However, the client and I sought the optimal solution within the existing circumstances, culminating in a ‘simple yet distinctive house’ that precisely met the client’s requirements.
In older residential areas, I believe that a house’s simplicity and harmonious integration with its surroundings hold greater significance than ostentation. It’s a world where both buildings and residents coexist together.







| 단비가(家) 설계자 | 이창호 _ 더솔 건축사사무소 건축주 | 김종우 감리자 | 임재훈 _ 우리 건축사사무소 시공사 | 건축주 직영 설계팀 | 정은지 설계의도 구현 | 더솔 건축사사무소 대지위치 | 대구광역시 남구 명덕로 52길 55 주요용도 | 단독주택 대지면적 | 129.00㎡ 건축면적 | 59.98㎡ 연면적 | 152.73㎡ 건폐율 | 46.50% 용적률 | 118.40% 규모 | 3F 구조 | 철근콘크리트구조 외부마감재 | 드라이비트 내부마감재 | 실크벽지, 원목마루 설계기간 | 2017. 11 – 2018. 03 공사기간 | 2018. 04 – 2018. 11 사진 | 윤동규 구조분야 | OS구조 기계설비분야 | 이도산업개발 전기분야 | 신라기술단 소방분야 | 신라기술단 |
Welcome Rain House Architect | Lee, Changho _ The S.O.L Architects Client | Kim, Jongwoo Supervisor | Lim, Jaehoon _ Woori Architects Construction | Direct construction Project team | Jeong, Eunji Design intention realization | The S.O.L Architects Location | 55, Myeongdeok-ro 52-gil, Nam-gu, Daegu, Korea Program | Single Family House Site area | 129.00㎡ Building area | 59.98㎡ Gross floor area | 152.73㎡ Building to land ratio | 46.50% Floor area ratio | 118.40% Building scope | 3F Structure | RC Exterior finishing | Dryvit Interior finishing | Wallpaper, Solid wood floor Design period | Nov. 2017 - Mar. 2018 Construction period | Apr. 2018 - Nov. 2018 Photograph | Yoon, Donggyu Structural engineer | OS Structure Engineering Mechanical engineer | IDO Eng Electrical engineer | Sinla Eng Fire engineer | Sinla Eng |
'회원작품 | Projects > House' 카테고리의 다른 글
| 남양주 ‘풍경을 담은 집, 풍경 속에 담긴 집’ 2024.2 (0) | 2024.03.08 |
|---|---|
| 유천동 판판집 2024.2 (0) | 2024.03.08 |
| 회원 첫 작품_전주 만성동 세마당집 2024.2 (0) | 2024.03.08 |
| 도곡리 단독주택 ‘다정(多庭)’ 2024.1 (0) | 2024.01.31 |
| 반짝반짝 _ 서수소 2024.1 (0) | 2024.01.31 |
