2024. 1. 31. 10:30ㆍ회원작품 | Projects/House
Garden house ‘Da-Jeong’

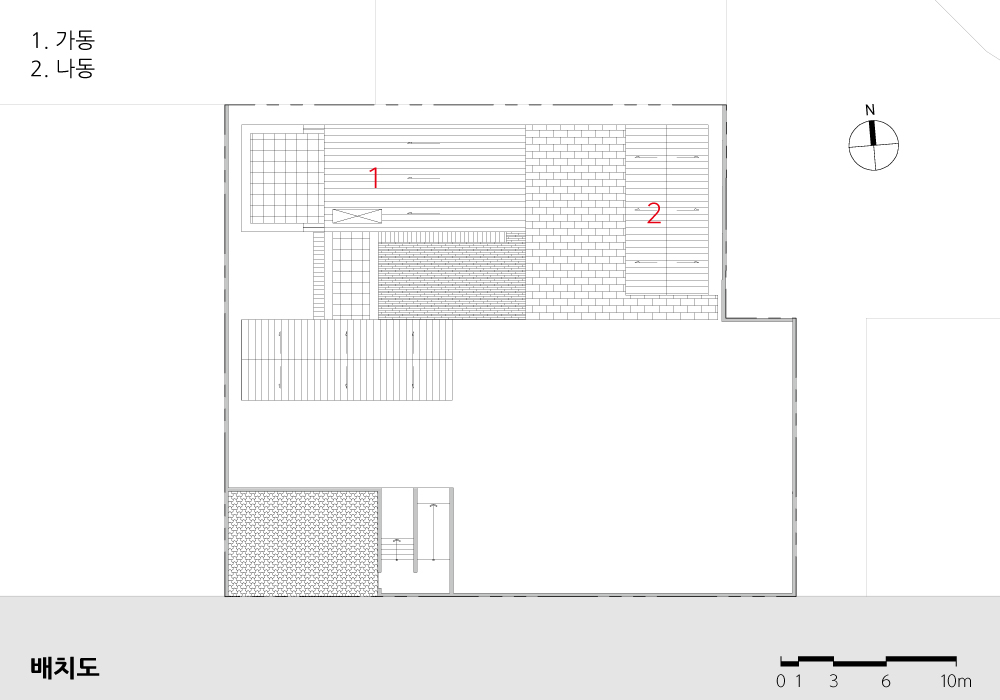
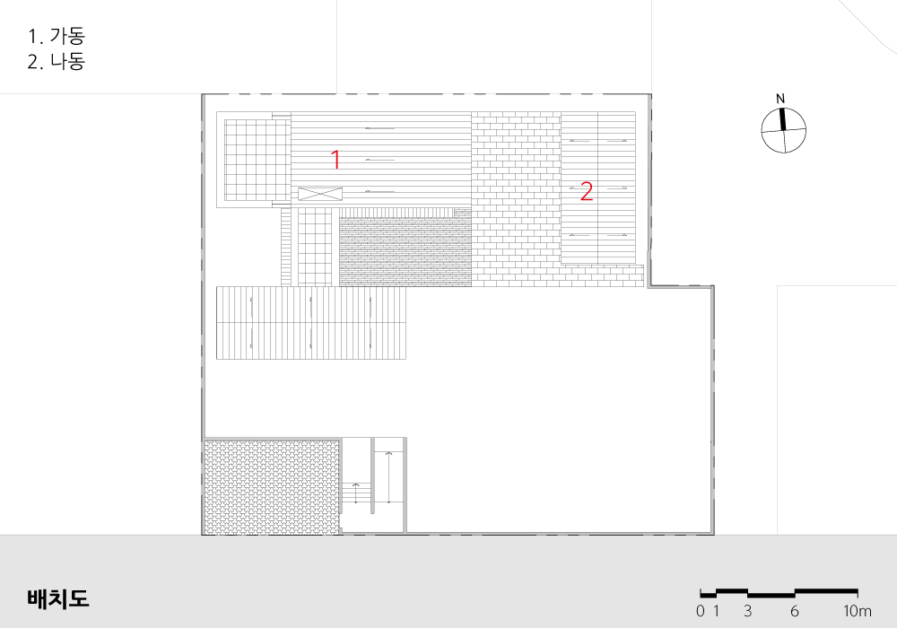
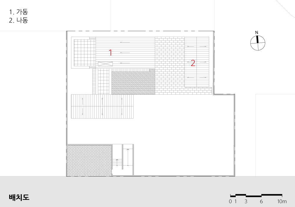
도곡리 단독주택 ‘다정’은 정원이 건물을 둘러싸는 형태의 디자인 콘셉트로 기획했다. 넓은 정원을 앞에 배치한 후 3개의 공간(부부공간·언니공간·사무공간)을 정원과 조합할 수 있는 대안을 만들었고, 부부공간과 언니공간의 수직·수평 분리가 가장 효율적인 H 형태로 매스를 배치했다. 사무동과 주거동의 연계를 통해 만들어지는 사이 공간마다 각각 다른 테마의 정원을 조성할 수 있도록 여백을 남기는 디자인으로 진행했다.
‘다정(多庭)’이라는 이름답게 H 형태의 주거동과 사무동을 구분해 배치함으로써 생겨나는 다양한 정원들을 통해 외부 공간이 완성된다.
첫 번째는 가장 넓게 조성된 메인 정원이다. 도로보다 정원 레벨을 1미터 높여 보행자 영역으로부터의 프라이버시를 확보했고. 주거동과 사무동, 담장이 감싸며 메인 정원의 영역이 만들어진다. 정원 위 여러 갈래의 보행 동선은 주거동, 사무동, 수영장 등의 개별 공간으로 연결되어 메인 정원이 중심공간으로의 역할을 할 수 있도록 한다. 주택과 사무실 사이에 만들어진 외부공간 중 하나인 수영장 데크는 지인들과의 파티 공간으로 활용할 수 있으며 근경으로의 마당, 중경으로의 정원, 원경으로의 풍경을 나누어 전망을 제공할 수 있도록 계획했다.
두 번째는 H 형태를 통한 공간 분리가 만들어내는 개인 정원이다. 한 동의 주택에서 각각의 프라이버시를 고려하면서 부부공간과 언니공간을 분리할 수 있는 최적의 방법으로 H 형태를 제안했다. 언니공간과 부부공간을 단순히 분리한 것이 아니라, 내부 연결통로를 통해 개인 정원이 만들어지며 언니만의 포켓공간으로 작용한다. 언니공간에서는 정원과 연결통로 양쪽을 개방하여 얻는 개방감과 프라이버시 두 가지를 모두 만족시키면서 공간 간의 상호작용이 가능하도록 계획했다. 활발하고 동적인 분위기의 메인 정원과 달리 개인 정원은 차분하면서 정적인 공간으로 연출된다. 공간 분리로 생기는 곳곳의 여백에 서로 다른 분위기의 정원을 조성하여 하나의 대지 위에서도 다양한 공간감을 느끼도록 했다.
마지막으로 부부공간은 2층으로 계획되어 공용 공간과 사적 공간으로 구분된다. 언니공간에서 바로 연결되는 1층에 주방, 거실 등 공용 공간이 구성되며 부부의 사적인 생활공간은 2층에 배치되었고, 주 생활공간 뒤편으로 생기는 테라스는 부부만의 사적인 외부 공간을 이루고 있다.
조경에 대한 건축주의 호기심과 열정을 느낄 수 있는 주택으로, 정원과 건축이 조화롭게 구성된 만큼 이를 반영해 ‘많을 다(多)’에 ‘뜰 정(庭)’을 사용하여 ‘다정’이라는 이름을 짓게 되었다.



The project ‘Da-jeong’ was named after the curiosity and passion of the client towards landscaping and garden so that we tried to create a home where the garden and architecture harmoniously coexist. The name incorporates the characters ‘Da / 다 / 多’ (meaning ‘many’ or ‘much’) and ‘jeong / 정 / 庭’ (meaning ‘yard’ or ‘garden’) to symbolize this harmony.
The design is based on a concept as a garden surrounding the buildings. After placing the spacious garden in the front, there was a study of combination & separation of three spaces (couple’s space, sister’s space, office building) which had to connected with the garden. The vertical/horizontal separation of the couple’s space and sister’s space was efficiently arranged in an H-shaped mass. The design progresses with the idea of leaving space to create gardens of different themes in the interstitial spaces generated through the connection between the office building and the residential buildings.
As the project name can tell, various outdoor spaces with garden are created through the arrangement of the residential and office wings in a H-shaped layout. Firstly, there is the main garden, designed on the most expansive scale. Elevating the garden level by 1m above the road ensures privacy from pedestrian areas. Multiple pathways branch through the garden, connecting to separate spaces like residential space, office building, and outdoor deck. These pathways link individual areas, making the main garden the center of the plot. Secondly, small private garden was created by separating residential space through H-form layout. The H-shaped design was proposed as an optimal way to ensure the privacy of the couple’s space and sister’s space within the same house. These areas are not merely separated, they are connected through internal pathways, creating individual gardens. The sister’s space has openings on both sides of the garden connection, satisfying both openness and privacy, allowing for interaction between spaces. In contrast to the dynamic atmosphere of the main garden, the private gardens exude a calm and serene ambiance. Utilizing the space created by the separation, different themed gardens are arranged, providing a diverse sense of space within a single plot of land.






| 도곡리 단독주택 ‘다정(多庭)’ 설계자 | 방재웅 · 장근용 · 권혁철 _ 라움 건축사사무소 건축주 | 김영주 감리자 | 라움 건축사사무소 시공사 | 바움하우스 설계의도 구현 | 라움 건축사사무소 대지위치 | 경기도 양평군 양평읍 도곡리 주요용도 | 단독주택, 사무실 대지면적 | 874.00㎡ 건축면적 | 174.03㎡ 연면적 | 228.06㎡ 건폐율 | 19.91% 용적률 | 26.09% 규모 | 2F 구조 | 철근콘크리트구조 외부마감재 | 고벽돌타일, 칼라강판 내부마감재 | 강마루마감, 실크벽지 설계기간 | 2020. 11 – 2021. 05 공사기간 | 2021. 06 – 2022. 04 사진 | 이한울 구조분야 | (주)이든구조컨설턴트 기계설비분야 | (주)코담기술단 전기분야 | (주)코담기술단 소방분야 | (주)코담기술단 |
Garden house ‘Da-Jeong’ Architect | Bang, Jaewoong / Kwon, Hyukchul / Jang, GeunYong _ RAUM Architecture Client | Kim, Youngjoo Supervisor | RAUM Architecture Construction | Baum Haus Design intention realization | RAUM Architecture Location | Dogok-ri, Yangpyeong-eup, Yangpyeong-gun, Gyeonggi-do Korea Program | House, Office Site area | 874.00㎡ Building area | 174.03㎡ Gross floor area | 228.06㎡ Building to land ratio | 19.91% Floor area ratio | 26.09% Building scope | 2F Structure | RC Exterior finishing | Brick tile, Metal Interior finishing | High density fiberboard Design period | Nov. 2020 – Mar. 2021 Construction period | Jun. 2021 – Apr. 2022 Photograph | Lee, Hanul Structural engineer | Eden Structure Mechanical engineer | Kodam Engineering Electrical engineer | Kodam Engineering Fire engineer | Kodam Engineering |
'회원작품 | Projects > House' 카테고리의 다른 글
| 단비가(家) 2024.2 (0) | 2024.03.08 |
|---|---|
| 회원 첫 작품_전주 만성동 세마당집 2024.2 (0) | 2024.03.08 |
| 반짝반짝 _ 서수소 2024.1 (0) | 2024.01.31 |
| 남산주택 2024.1 (0) | 2024.01.31 |
| 탑클라우드 포레 2024.1 (0) | 2024.01.31 |


