2025. 5. 31. 09:55ㆍ회원작품 | Projects/Competition
Restoration of the time _ Songhyeon-dong National Cultural Facility
설계자 김진화·박종대 _ Kim, Jinhwa · Park, Jaydi
(주)제제합건축사사무소 _ JEJEHAAP Architects

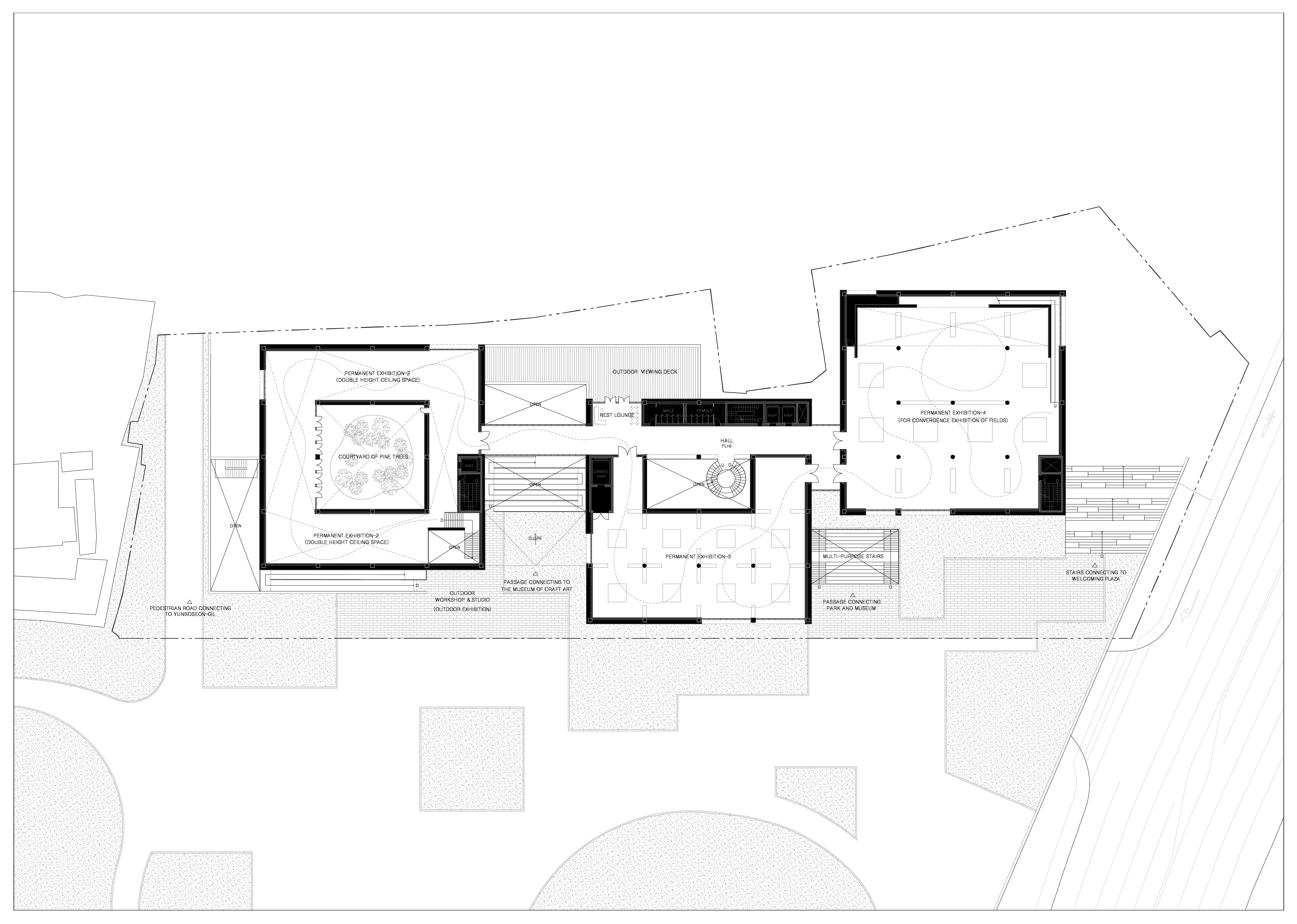
송현동 부지는 대한민국 근현대사의 변화와 그 흔적을 고스란히 목격한 장소이지만, 동시에 100년의 역사 속 온전히 우리의 것인 적이 없었던 침묵의 땅이기도 하다. 이제 그 땅을 온전한 시민들의 시간으로 채워놓고자 한다. 대상지 주변 경복궁과 한옥마을 등 역사적인 도시 패턴을 연장하여 공원과 기증관을 디자인하고 인접한 장소들의 연결을 통해 기증관을 지역의 일부로 만드는 것이 배치의 개념이다. 이를 위해 전통적인 중정 패턴을 적용하여, 3개의 매스로 기증관을 구성하고, 이격 배치하여 사이 공간을 계획한다. 분절된 매스들의 연결 공간은 도시와 공원, 인왕산을 향해 열리도록 만들어 기증관 내부와 시각적인 교차 및 중첩을 유도한다. 그리고 사이 공간들은 도시의 흐름을 최대한 존중하는 시민들을 위한 공공공간이 된다. 세 개의 절제된 매스는 경직되지 않은 경관을 위해 적절한 리듬감과 변화감을 갖고 송현 땅에 자리한다. 또한 외관은 소나무 언덕이었던 대지의 기억을 담은 국내산 소나무로 만든 탄화목으로 계획했다. 이 그을린 소나무숲 외관을 통해 밝을 수 만은 없는 대한민국 근현대사를 은유하고 유물과 전시품을 감싸고 있는 기증관의 외피로 사용함으로써 오늘을 지키기 위해 감내해온 우리 역사와 시민들에 대한 헌사를 담아내고자 한다.




| 시간의 회복 _ 송현동 국립문화시설 건립사업 _ 2024. 10. 발주자 | 문화체육관광부 당선일자 | 2024년 10월 설계팀 | 김진화, 박종대 대지위치 | 서울특별시 종로구 송현동 48-24번지 일대 주요용도 | 문화 및 집회시설 대지면적 | 9,787㎡ 건축면적 | 5,808㎡ 연면적 | 25,071㎡ 건폐율 | 59% 용적률 | 121% 규모 | B2F - 3F 구조 | 철근콘크리트 구조 마감 | 탄화목, 노출콘크리트, 로이복층유리 |
'회원작품 | Projects > Competition' 카테고리의 다른 글
| [설계공모] 강릉통일공원 하늘숲전망대 2025.7 (0) | 2025.07.31 |
|---|---|
| [설계공모] 2025 APEC 정상회의 만찬장 2025.6 (0) | 2025.06.30 |
| [설계공모] 고양창릉 A-2, A-5BL 공동주택(2024. 6.) 2024.7 (0) | 2024.07.31 |
| [설계공모] 남양주 왕숙2 A-11BL 공동주택(2024. 5.) 2024.7 (0) | 2024.07.31 |
| [설계공모] 원주시 어린이 체험형 복합 미술관 _ 2021. 10 (0) | 2023.05.18 |