[설계공모]서울시 동북권 아동청소년 예술교육센터 및 강북구 종합체육센터 _ 2018.9
2022. 12. 7. 09:10ㆍ회원작품 | Projects/Competition
The Child & Youth Arts Education Center in the Northeast Region and Gangbuk-gu Comprehensive Sports Center

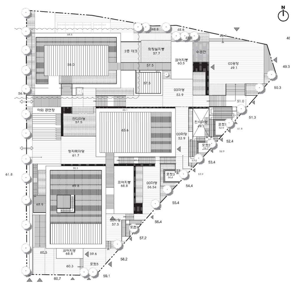
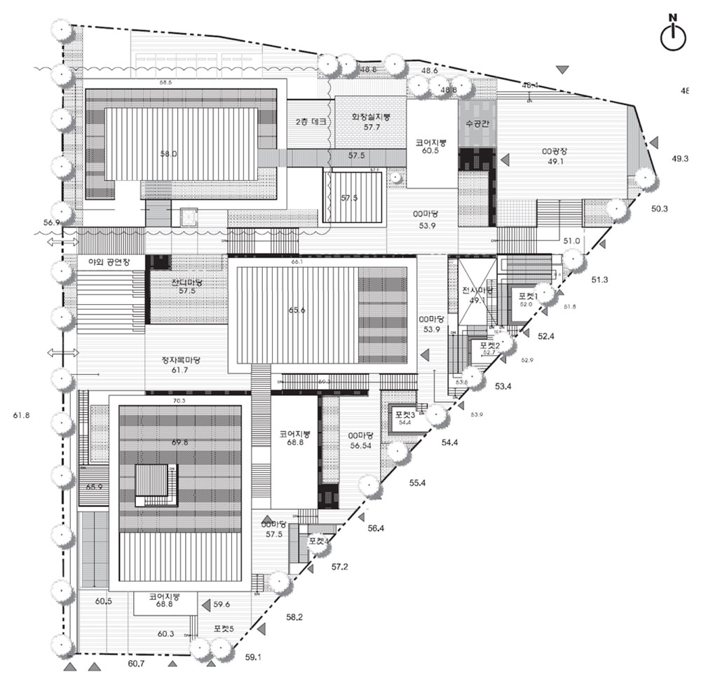
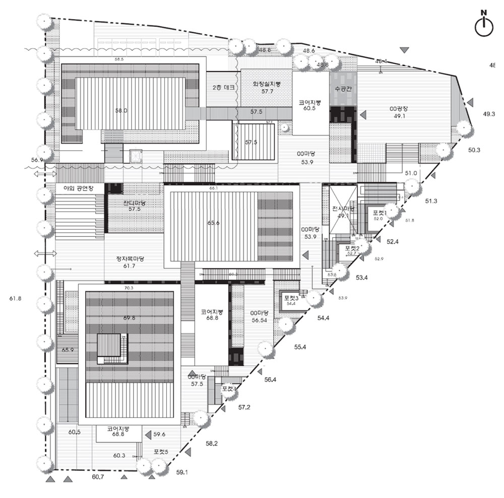
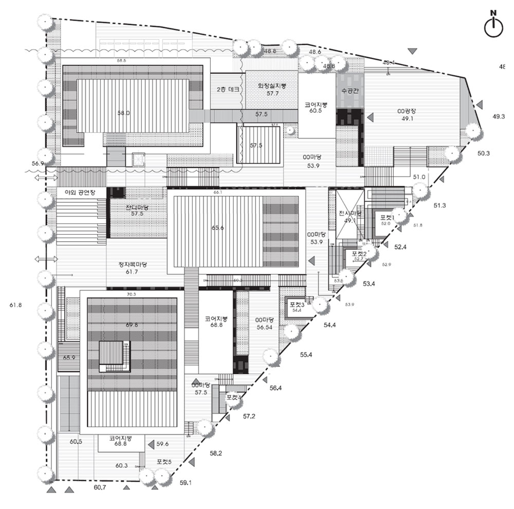
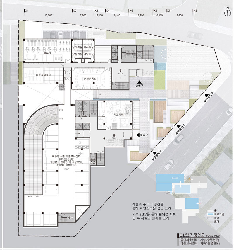
서로 다른 주변 건물들과 어떻게 관계를 맺을지를 고민하고, 한 대지 안에 예술과 체육이라는 두 개의 프 로그램이 연계 공간을 공유 할 수 있도록 계획했다. 건물은 주변과 조화되도록 낮은 규모로 계획됐다. 입 체적인 가로 구성을 통해 시각적 흐름이 쉽게 인지되며, 주변 경관, 물길들을 따라 흐름이 이어진다. 레벨 차로 자연스럽게 발생된 단은 앞마당, 사랑마당, 뒷마당으로 구분된다. 건물의 파사드는 하얀색 매스와 풍부한 녹지, 빛 세 가지 요소로 표현됐다. 하얀색 파사드는 깨끗한 이미지와 함께 낮에는 반사되어 자연 을 돋보이게 한다. 풍경아래 사람들이 모이고 공동의 마당에서 경험을 공유하며, 호기심을 자극하는 다양 한 이야기들로 서로 소통하는 미아동의 새로운 장소가 될 것이다.







| 서울시 동북권 아동청소년 예술교육센터 및 강북구 종합체육센터 발주자 서울특별시 도시공간개선단 설계자 유영모 KIRA | (주)건축사사무소 유앤피 · 김경남 KIRA | (주)본 종합 건축사사무소 설계팀 유앤피 - 오세숙, 이승훈, 김혜중, 조윤미, 최혜빈, 정윤희, 김태영 · 본 - 남재현, 김예지 대지위치 서울특별시 강북구 미아동811-2 대지면적 문화시설 - 2,100㎡ · 운동시설 - 1,704㎡ 건축면적 1,951.94㎡ 연면적 문화시설- 4,768.95㎡ · 운동시설 - 2,441.72㎡ 건폐율 51.31% 용적률 111.21% 규모 문화시설 - 지하 2층, 지상 3층 · 운동시설 - 지하 1층, 지상 2층 구조 철근콘트리트조(장스팬 합성보) 외부마감재 화이트 글라스, 로이복층유리, 송판무늬 콘크리트, 금속판넬 내부마감재 친환경수성페인트, THK3 데코타일, THK22 플로링 보드 |
'회원작품 | Projects > Competition' 카테고리의 다른 글
| [설계공모]창동·상계 창업 및 문화산업단지 (0) | 2022.12.07 |
|---|---|
| [설계공모]동작구 종합행정타운(복합청사) 2018.9 (0) | 2022.12.07 |
| [설계공모]부천 문화예술회관 (0) | 2022.12.06 |
| 부평2동 행정복지센터 _ 2018. 07 (0) | 2022.12.05 |
| [설계공모] 세종시 장애인형 국민체육센터 (0) | 2022.12.02 |