[설계공모]창동·상계 창업 및 문화산업단지
2022. 12. 7. 09:12ㆍ회원작품 | Projects/Competition
Changdong-Sanggye Establishment & Cultural Industrial Complex

Conversion Platform
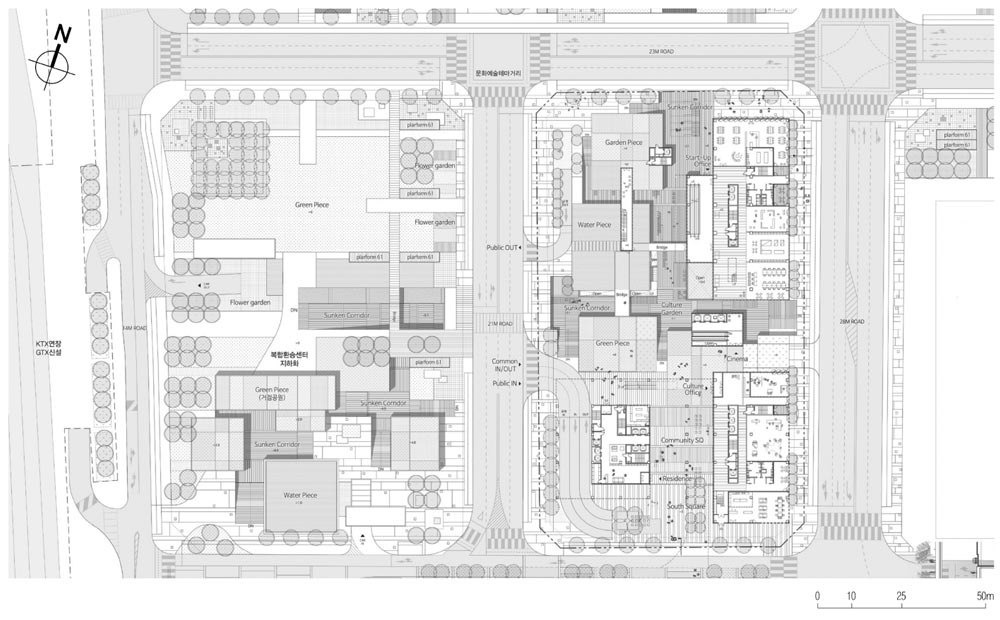
조각난 도시공간을 연결하기 위해 열린 공간를 제안한다. 복합환승 센터와 서울 아레나를 연결하는 지 하 선큰 계획, 지하통합개발 및 차로 지하화를 통한 보행광장 조성 및 남측 기존 상업시설 군 연계계획, 폐고가 재생을 통한 입체보행로 계획, 창동 도시 재생구역을 순환하는 도로 체계 제시를 통해 도시를 단 계적으로 연계한다.
열린 벽(open wall) 내부에는 문화와 창업을 담은 다양한 공유공간들이 연속적으로 배치되어 있다. 기 존의 획일화된 구분(sorting)된 프로그램의 분리에서 벗어나, 이용자 동선 중심의 라이프 스타일과 연결 된 프로그램 배치로 새로운 창작문화 생태계를 계획한다. 문화 산업 종사자의 레지던스 앞에는 음악 창 작 동아리 실이, 청년 창업 오피스 사이에는 공동작업실과 창작 실습실이 위치한다. 서로 다른 프로그램 의 혼합 재배치는, 새로운 세대(generation)의 프로그램과 문화, 커뮤니티를 만들고 창업 문화 생태계 를 형성한다.






| 창동·상계 창업 및 문화산업단지 발주자 서울특별시, 서울주택도시공사 설계자 조주환 KIRA | (주)시아플랜 건축사사무소 설계팀 전성주, 윤지운, 곽원철, 이유진, 함기웅, 목현수, 유웅선, 민경선 대지위치 서울시 도봉구 마들로 17길 74 대지면적 10,746㎡ 건축면적 5,697.46㎡ 연면적 156,263㎡ 건폐율 53.02% 용적률 760.35% 규모 지하 8층, 지상 45층 구조 철골철근콘크리트조, 철근콘크리트조 외부마감재 테라코타블럭, THK24 로이3중유리, 폴리카보네이트 |
'회원작품 | Projects > Competition' 카테고리의 다른 글
| [설계공모]정관 아쿠아 드림파크 조성사업 _ 2018. 8 (0) | 2022.12.11 |
|---|---|
| [설계공모]남양주 북부장애인복지관 (0) | 2022.12.08 |
| [설계공모]동작구 종합행정타운(복합청사) 2018.9 (0) | 2022.12.07 |
| [설계공모]서울시 동북권 아동청소년 예술교육센터 및 강북구 종합체육센터 _ 2018.9 (0) | 2022.12.07 |
| [설계공모]부천 문화예술회관 (0) | 2022.12.06 |