[설계공모]정관 아쿠아 드림파크 조성사업 _ 2018. 8
2022. 12. 11. 15:04ㆍ회원작품 | Projects/Competition
Jeonggwan Aqua Dream Park

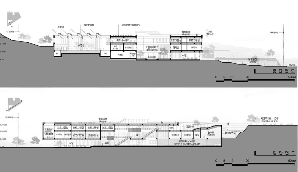
정관 아쿠아 드림파크를 단순한 체육 공간의 기능을 넘어, 정관 시민들의 삶의 휴식처이자 다양한 일상 의 이벤트가 있는 도심의 명소로 만들고자 했다.
향후 이어질 3단계 마스터플랜과 연계한 진입부에 열린 광장을 조성하여 주변과 소통하며 지역민 누구 나 쉽게 접근이 가능한 ‘공원 같은 수영장’이 되었으면 했다. 그리고 경사지인 사업부지의 레벨을 활용 한 ‘입체적 로비’를 중심으로 명확한 영역별 조닝계획과 효율적인 관리 및 동선계획을 했다. 또한 31개 레인구성인 대규모 수영장 운영을 고려한 ‘분리 및 통합계획’을 통해 이용자의 안전과 효율적인 유지관 리가 가능토록 구성했다.


■ Urban Platform




| 정관 아쿠아 드림파크 조성사업 발주자 부산광역시 기장군 설계자 김안경 KIRA | (주)아이엔지그룹 건축사사무소 설계팀 우성호, 최태훈, 강성민, 김수민, 황진성, 조하정, 김유경, 김성한 대지위치 부산광역시 기장군 정관읍 모전리 676번지 주용도 운동시설 대지면적 21,970.00㎡ 건축면적 6,487.43㎡ 연면적 11,294.50㎡ 건폐율 29.52% / 용적률 36.85% 규모 지상 2층, 지하 1층 / 구조 철골조, 철골철근콘크리트조 / 외부마감재 금속루버, 지정석재마감, 로이복층유리 / 내부마감재 친환경수성페인트, 도기질타일 |
'회원작품 | Projects > Competition' 카테고리의 다른 글
| [설계공모]새로운 광화문광장 조성 설계공모_INTERNATIONAL DESIGN COMPETITION FOR NEW GWANGHWAMUN SQUARE (0) | 2022.12.14 |
|---|---|
| [설계공모]공립어린이집 및 감성체험장 _ 2018. 10 (0) | 2022.12.12 |
| [설계공모]남양주 북부장애인복지관 (0) | 2022.12.08 |
| [설계공모]창동·상계 창업 및 문화산업단지 (0) | 2022.12.07 |
| [설계공모]동작구 종합행정타운(복합청사) 2018.9 (0) | 2022.12.07 |