2022. 12. 14. 10:18ㆍ회원작품 | Projects/Competition
위치 ┃ 서울특별시 종로구 세종로 1-67, 1-68 일대 예정
공사비 ┃ 60,000 백만원 예정
설계비 ┃ 2,764 백만원
설계범위 ┃ 사업범위_설계공모를 통해 당선된 설계자가 공사시행을 위해 실제로 설계하는 구간으로, 현재 광화문광장과 세종대로, 사직-율곡로 등 도로를 포함하여 총 면적 약 126,100제곱미터에 달하는 지역 / 계획범위_사업범위와 접한 주변 지역으로 북쪽으로는 경복궁 남측담장, 남쪽으로는 삼 청동천과 백운동천 합수지점, 동쪽으로는 삼청동천(현 종로1길), 서쪽으로는 백운동천(현 새문안로5가길)을 포함하는 지역과, 정부청사, 의정부 터 및 세종대로 하부 지하공간
공모방식 ┃ 국제설계공모
심사위원장 ┃ 승효상 건축사(주. 종합건축사사무소 이로재)
심사위원 ┃ 유홍준 명지대학교 석좌교수, 유나경 PMA엔지니어링 도시환경연구소 소장, 정욱주 서울대학교 조경·지역시스템공학부 교수, 손기민 중앙대학 교 사회기반시스템공학부 교수, 도미니크 페로 Dominique Perrault Architecture 대표, 아드리안 구즈 West8 대표
상금 ┃ 당선(1작품) 기본 및 실시설계권+작품제작비 3천만 원
2등(1작품) 상금 8천만 원+작품제작비 3천만 원
3등(1작품) 상금 6천만 원+작품제작비 3천만 원
4등(1작품) 상금 4천만 원+작품제작비 3천만 원
5등(1작품) 상금 2천만 원+작품제작비 3천만 원 가작(5작품) 작품제작비 3천만 원
새로운 광화문광장 국제설계공모 당선작 공개… 광화문 일대 재편 추진 ‘더 시민 품으로’
서울시가 오는 2021년까지 광화문광장 규모를 3.7배 넓히고 여러 곳으로 단 절돼 있던 지하공간도 통합하는 등 광화문광장 일대 공간을 대대적으로 정비 한다. 광화문역에서 시청역까지 GTX-A 등 총 5개 노선을 포괄하는 대규모 복합역사도 조성하기로 했다.
서울시는 21일 이 같은 내용의 청사진을 담은 국제설계공모 최종 당선작 을 발표했다. 당선작은 (주)CA조경기술사사무소, 김영민(서울시립대학교 조경학과 교수), (주)유신, (주)선인터라인 건축사사무소가 참여한 ‘Deep Surface(부제: 과거와 미래를 깨우다)’다.
한편 서울 광화문광장 재조성 공모전 당선작인 ‘딥 서피스(Deep Surface)- 과거와 미래를 깨우다’의 설계자들은 1월 24일 조선일보 인터뷰를 통해 이순 신 장군상 이전 여부에 대해 “이순신 장군 동상 존치도 받아들이겠다. 광장 조 성 과정에서 시민 여론에 더 많이 귀 기울일 것”이라고 밝혔다.
이번 공모는 17개국 70개팀 202명의 건축·조경 전문가가 참여한 가운데 승효 상 국가건축정책위원회 위원장, 유홍준 명지대 석좌교수 등 국내·외 전문가 7 인으로 구성된 심사위원회에 의해 최종 당선작이 선정됐다.
당선팀에게는 기본·실시설계권이 주어지며 오는 2월 중 서울시와 설계계약을 체결, 연내 설계를 마무리한 뒤 내년 초 공사에 들어가 2021년 준공을 목표로 한다.
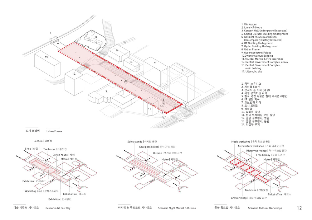
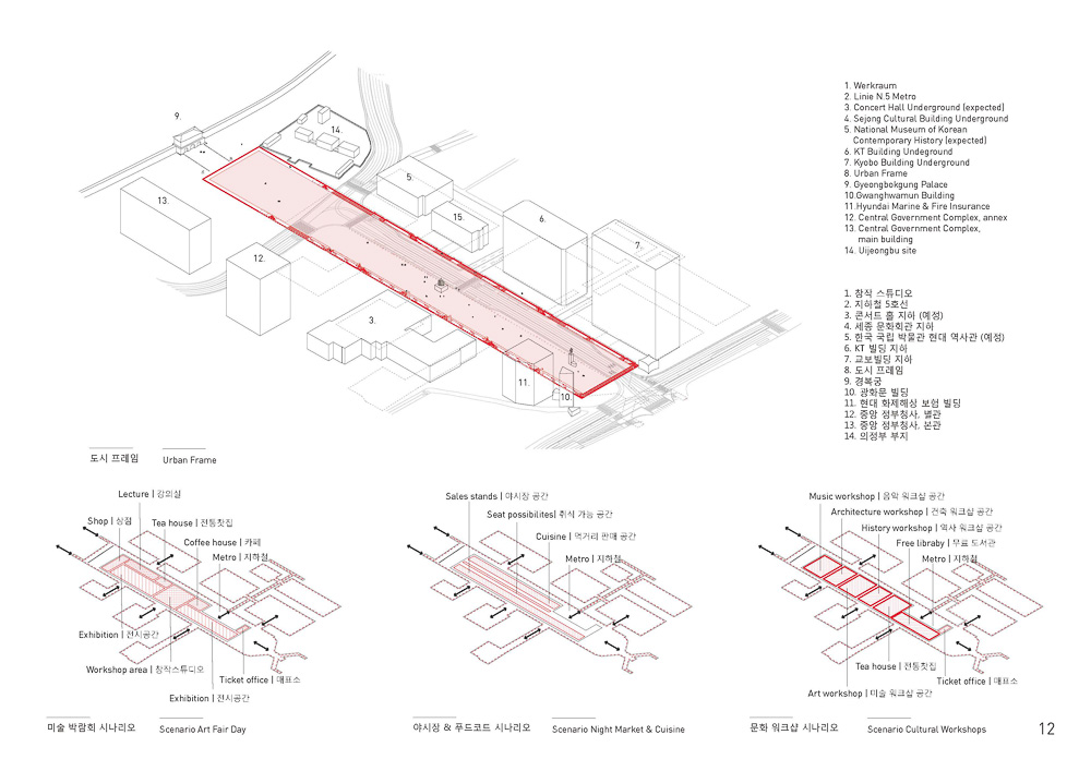
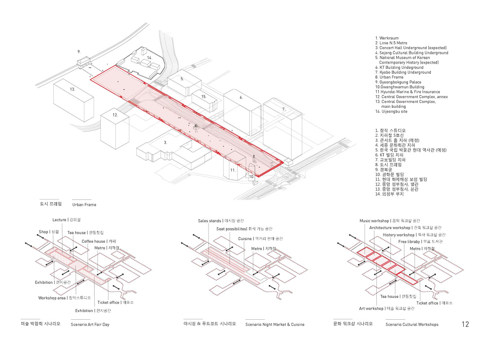
광장 규모를 대폭 확대한다는 구상이다. 이를 통해 경복궁 전면 약 3만6000제 곱미터 규모의 '역사광장', 역사광장 남측 약 2만4000제곱미터 규모의 '시민 광장'이 조성된다.
해치광장 등 세 곳으로 단절돼 있던 지하공간은 하나로 통합, 콘서트, 전시회 등 각종 문화 이벤트가 상시적으로 열리는 문화·체험 공간으로 활용된다. 지 상과 지하는 선큰공간으로 연결하고 광장과 맞닿아 있는 주변 건물도 광장에 자연스럽게 녹아들 수 있도록 카페 테라스, 바닥분수, 미니공원 등을 다채롭게 조성한다. 정부서울청사 별관 앞 세종로공원 부지에도 클래식 콘서트홀 건립 을 검토한다.
서울시는 이번 사업을 ‘새로운 광화문 프로젝트’로 명명하고 광화문 일대 공간 혁신을 추진한다는 방침이다. 광화문 일대의 역사문화 자원을 재창조하기 위 한 일환으로 의정부 터 발굴을 연내 마무리하고, 세종로 지구단위계획을 광화 문 중심으로 재정비할 계획이다.
세종대로 일대는 차량 중심에서 보행과 대중교통 중심으로 전환된다. 가장 눈 에 띄는 사업은 지하 공간을 활용한 GTX-A(파주 운정∼서울∼화성 동탄) 노 선의 광화문 복합역사 신설이다. 광화문역과 1·2호선 시청역은 물론, GTX-A 노선과 선로를 공유하는 신분당선 서북부 연장선까지 연계하는 대규모 복합역 사다. 서울시는 이를 통해 이 일대 교통수요 상당수를 철도 대중교통이 흡수해 교통, 대기질 등 도시문제를 해소할 수 있을 것으로 기대하고 있다.
이와 함께 시민들이 지하 공간을 막힘없이 걸어다닐 수 있도록 광화문에서 동 대문에 이르는 4km 지하 보행 구간도 구축한다.
이와 함께 시민들이 지하 공간을 막힘없이 걸어다닐 수 있도록 광화문에서 동 대문에 이르는 4km 지하 보행 구간도 구축한다.
이번 사업에는 총 1040억 원의 예산이 투입될 예정으로 서울시가 669억원, 문화재청이 371억원을 각각 분담한다. 서울시는 추후 주민설명회, 공청회 등 을 통해 구체적인 사업내용을 공유하고 의견을 수렴할 예정이다.
승효상 심사위원장은 “당선작은 광장 지상 공원을 비워서 강력한 도시적 역사 적 축을 형성하고, 이렇게 비워진 공간에 다양한 시민활동을 담고자 광장 주변 부 지하공간을 긴밀하게 연결하여 지하도시를 실현했다”며 “선큰공간을 적절 히 배치하여 시민의 접근성과 공간의 쾌적성을 높였다. 따라서 현재 교통섬 같 은 광화문광장이 주변 공간과 밀접하게 연결되어, 시민의 일상적인 공간을 회 복하고 역사도시 서울을 새롭게 인식시킬 수 있는 계기가 될 것”이라고 전했다.
아래 심사총평 전문을 게재한다.
“이번 국제현상공모에는 등록된 숫자가 477개에 이를 정도로 국내외에서 지 대한 관심을 모은 바 있었다. 통상 등록된 숫자의 절반 정도가 응모에 이르는 선례에 비추면 70개 안만이 응모한 것은 연말연시라는 시기적 어려움 외에 이 프로젝트가 간단치 않은 과제임을 나타낸다. 그럼에도 불구하고 대부분의 응 모작이, 도시 광장이라는 공공영역이 감당해야 하는 도시적, 건축적, 조경적 목표 외에도 특히 광화문광장이 가진 장소적 특이성과 역사적 사건들에 대해 진지한 고민과 새로운 모색을 하려 애쓴 것을 확인할 수 있었다.
당선안이 가지고 있는 가장 큰 장점은 이 공간이 가지는 도시적 역사적 축을 강렬히 형성한 점이다. 이를 위해 대부분을 비우고 그 비워진 공간에 광장에서 일어날 수 있는 모든 행위를 담고자 했으며 주변부와 광장을 면밀하게 접속시 키려 많은 장치를 설정하고 있다. 광장 주변부에 지하공간이 광범위하게 개발 되어 있거나 개발 예정인 것을 감안하여 지하공간을 재구축하고 이들을 긴밀 하게 연관시켜 지하도시를 실현하게 하였으며, 지하공간의 쉬운 접근과 채광 을 이루도록 선큰스페이스 같은 인프라시설을 적절히 배치하고 활용하였다. 광장의 일상적 활용에 대한 구체적 설명이 다소 부족했지만 특정화 되지 않은 공간인 만큼 설계진행과정에서 발전가능성이 있을 것으로 짐작하였다.
당선안은 기존의 동상 위치를 바꾸었으나 심사위원단은 이순신동상은 그대로 둘 것을 권고하였고 세종대왕 동상은 당선작의 계획대로 이전을 검토할 가치가 있다고 판단하였다. 더불어 의정부 터의 발굴은 복원보다는 발굴된 터를 온사이 트뮤지움으로 만들어 역사광장의 진정성을 나타내고 광장으로서도 더욱 가치가 있는 것으로 의견을 모으고 그 복원계획을 재고하도록 권고하기로 하였다.
광화문광장은 서울의 중심축일 뿐 아니라 한국인들에게 한국의 상징적 공간이 다. 도시의 공공영역은 시민이 주체가 되어야 건강한 도시공동체가 형성된다. 기존의 교통섬같은 광화문광장을 일상성을 회복한 시민의 광장과 역사도시 서울을 새롭게 인식시킬 역사광장으로 바꾸는 일은 시대적 소명임을 심사위원 단은 인식하고 이 당선안이 보다 발전된 모습으로 실현될 때까지 관심과 협력 을 아끼지 않기로 의견을 모으며 심사를 마쳤다.”
심사위원단을 대표해서 승효상
정리 장영호 기자
당선작
Deep Surface : Awakening of Past and Future
(주)CA조경기술사사무소 · (주)유신 · (주)선인터라인 건축사사무소 · 김영민(서울시립대학교 교수)

광화문광장은 단일한 표현이 아니다. 그 곳에는 역사의 깊은 시간적 지층이 있고, 서로 충돌하며 보완하는 상징적 의미가 담겨 있으며, 일상과 비일상을 연결하는 삶의 장이 존재한다. 이제 광화문광장의 표면은 깨어나 손실되었던 깊이를 회복해야 한다. 무감각했던 경직된 시간에서 깨어나 역사의 깊은 내면을 드러내고, 기 능에 종속된 도로의 표피에서 벗어나 진정한 시민의 장소로서 다시 태어나야 한다. 깊은 표면은 과거와 미래를 공존하는 사람을 위한 다양성의 시간과 장소이다









2등
수백만의 사람들을 위한 수백만의 장소들
Millions of Places for Millions of People
(주)엠엠케이플러스 · 이든도시건축사사무소 · Taewook Cha(Supermass Studio) · 조재모(경북대학교 조교수) · (주)교우엔지니어링



3등
A PLACE OF REFLECTION AND A VISION OF THE FUTURE 반추의 공간 그리고 미래상
MLADEN JADRIC(JADRIC ARCHITEKTUR)


반추의 공간 그리고 미래상
"공간을 만드는 것은 수천년 전에 시작되어 현재까지 이어지는 교향곡을 작곡하는 것과 같다. 각 건물과 공간은 전반적인 줄거리와 조화를 이 루어야한다" _ Juha Leiviska, academician, 오늘의 건축(L'Architecture d'AuJourd'hui)
기하학적 이상과 동양의 개념을 혼합한 광화문 광장 신축 제안 : 목적성이 없는 공간 - 새롭게 해석된 전형적인 학국적인 공간(마당)의 상부와, 하부의 '창작 스튜디오'공간은 시민들로 하여금 서울의 미래를 창의적으로 바꿀수 있는 자유를 준다.






'회원작품 | Projects > Competition' 카테고리의 다른 글
| 건축물부문 2022.12 (0) | 2022.12.21 |
|---|---|
| 신진건축사부문 2022.12 (0) | 2022.12.21 |
| [설계공모]공립어린이집 및 감성체험장 _ 2018. 10 (0) | 2022.12.12 |
| [설계공모]정관 아쿠아 드림파크 조성사업 _ 2018. 8 (0) | 2022.12.11 |
| [설계공모]남양주 북부장애인복지관 (0) | 2022.12.08 |