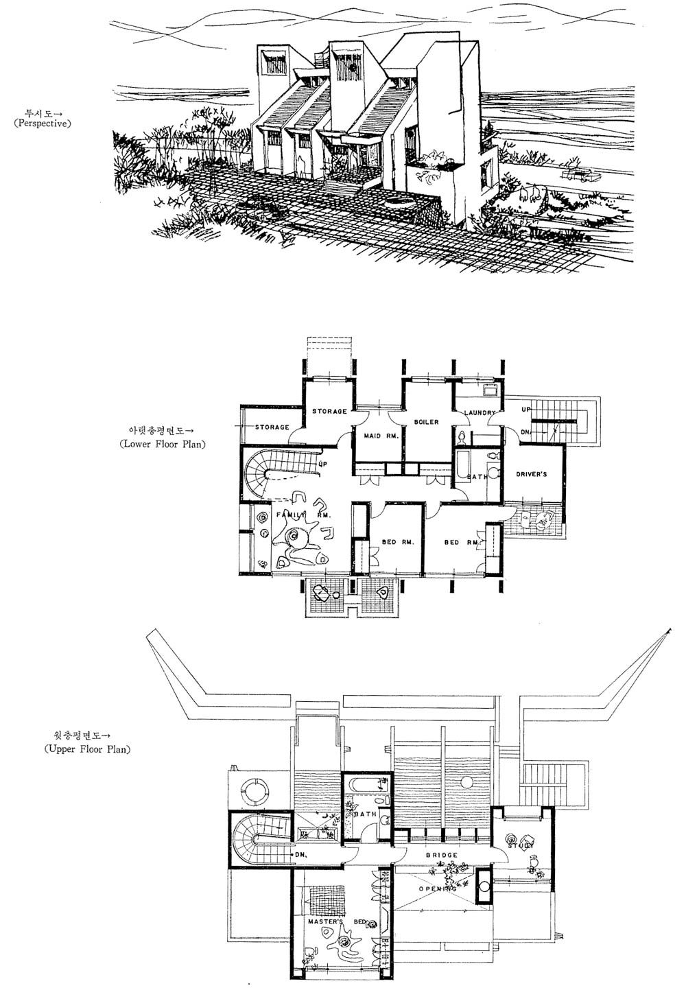
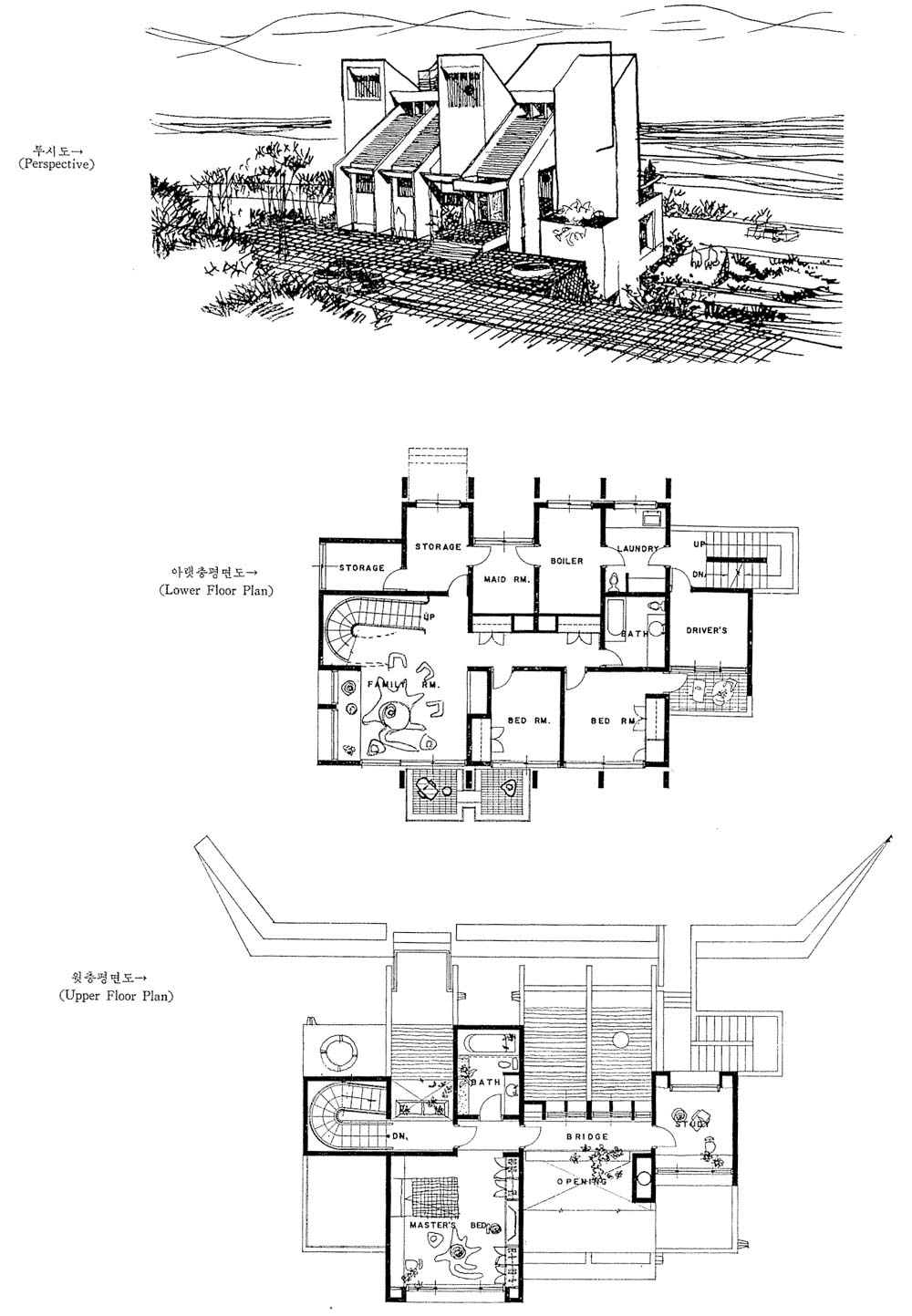
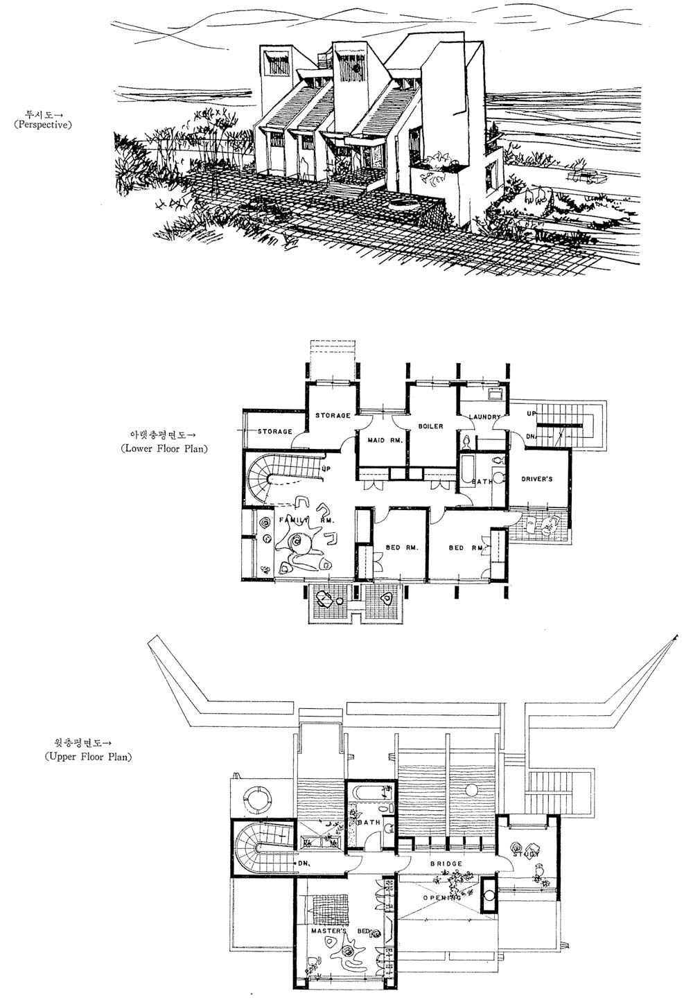
김씨 주택 2019.4
2022. 12. 17. 15:53ㆍ회원작품 | Projects/House

송기덕 건축사
위치 서울특별시 성동구 광장동
건축면적 96.53㎡
연면적 279.01㎡


'회원작품 | Projects > House' 카테고리의 다른 글
| 건축사 홍철수 2019.4 (0) | 2022.12.19 |
|---|---|
| 건축사 공일곤 2019.4 (0) | 2022.12.19 |
| L씨 주택 2019.4 (0) | 2022.12.17 |
| 삼청동 S씨집 2019.4 (0) | 2022.12.17 |
| 젊은 건축사의 집 2019.4 (0) | 2022.12.17 |