건축사 공일곤 2019.4
2022. 12. 19. 10:17ㆍ회원작품 | Projects/House
Architect
GONG, ILGON
건축사 공일곤
1970 _ L씨 주택
1973 _ 장씨 주택
1977 _ O씨댁

공일곤 건축사(1937)
서울대학교 건축학과 졸업. 1962~1966년 ‘김수근 건축연구소’ 근무. 1966~1969년 ‘한국종합기술개발공사 건축부’ 근무. 1969년 공일곤 건축 연구소 설립.
1985년 ‘향 건축사사무소’로 사무소명 변경.
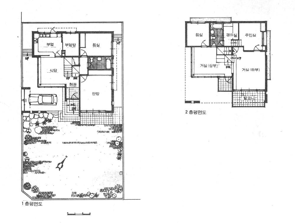
L씨 주택







장씨 주택

위치 서울특별시 서대문구 홍은동
대지면적 337.19㎡ 건축면적 79.34㎡
연면적 171.90㎡
규모 지하 1층, 지상 2층
구조 벽돌쌓기, 슬라브 설비 온수난방





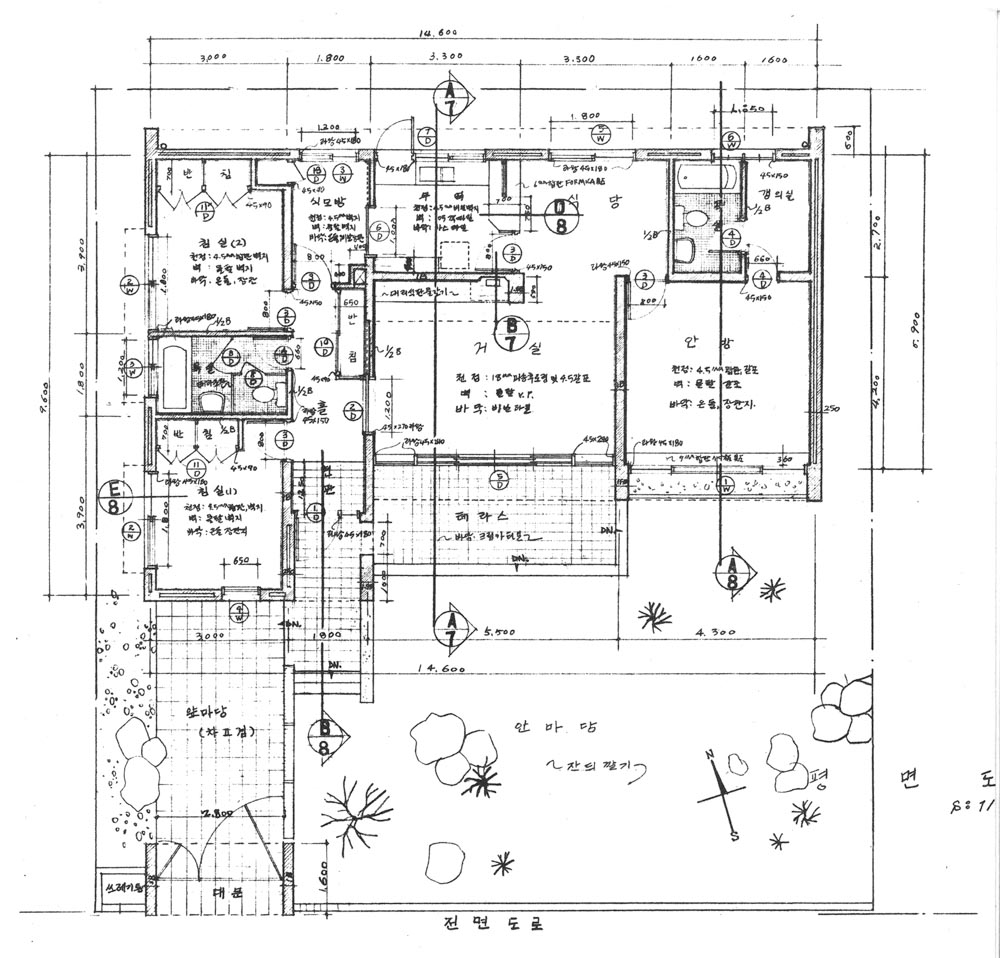
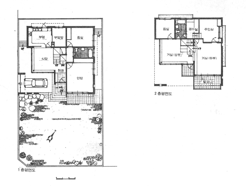
O씨댁

위치 서울특별시 강남구 반포동
대지면적 287.60㎡
건축면적 100.83㎡
연면적 144.13㎡
규모 지상 2층
구조 벽돌조



'회원작품 | Projects > House' 카테고리의 다른 글
| 세종 Ye’s House 2019.5 (0) | 2022.12.20 |
|---|---|
| 건축사 홍철수 2019.4 (0) | 2022.12.19 |
| 김씨 주택 2019.4 (0) | 2022.12.17 |
| L씨 주택 2019.4 (0) | 2022.12.17 |
| 삼청동 S씨집 2019.4 (0) | 2022.12.17 |