[설계공모] 청소년 문화의 집 건립공사
2022. 11. 7. 11:51ㆍ회원작품 | Projects/Competition
Daegu Youth Center








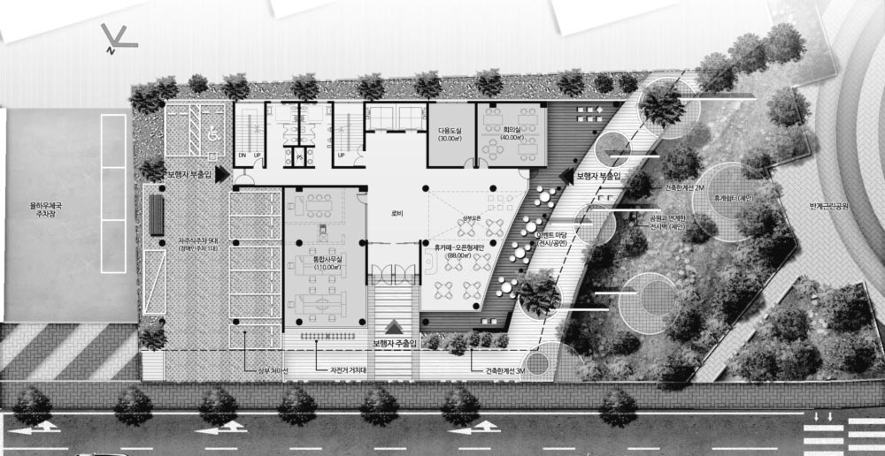
| Daegu Youth Center 발주자 | 대구광역시 동구청 설계자 | 금창영 KIRA _ (주)기단 건축사사무소 설계팀 | 손만영, 류충일, 박동훈, 김형석, 문경동 대지위치 | 대구광역시 동구 율하동 1446번지 대지면적 | 1,300.00㎡ 건축면적 | 776.00㎡ 연면적 | 2,998.00㎡ 건폐율 | 59.69% 용적률 | 221.62% 규모 | 지하 1층, 지상 5층 구조 | 철근콘크리트조, 철골조 마감 | 외부마감재 : 테라코타판넬, 테라코타루버, 드라이비트 외단열 내부마감재 : 화강석, PVC타일, 불연타공흡음보드, 타공흡음천정재, 목재루버 |
'회원작품 | Projects > Competition' 카테고리의 다른 글
| [설계공모] 유성종합스포츠센터 (0) | 2022.12.01 |
|---|---|
| [설계공모] 홍성군 노인회관 신축 (0) | 2022.11.30 |
| [설계공모] 계룡소방서 (0) | 2022.11.30 |
| [설계공모] 강원디자인센터 2018.02 (0) | 2022.11.09 |
| [설계공모] 시끌벅적 봉화구시장 조성사업 (0) | 2022.11.07 |