[설계공모] 강원디자인센터 2018.02
2022. 11. 9. 18:06ㆍ회원작품 | Projects/Competition
Gangwon Design Center

강원도만의 특성 있는 디자인 연구, 사업, 정책 등을 종합적으로 추진할 수 있는 시스템과 인프라 조성이 시급한 상황 속에서 강원 디자인센터 건립을 통해 강원도 디자인 역량강화와 지역산업의 고부가가치 실현에 기여할 수 있는 기회를 마련하고자 한다.
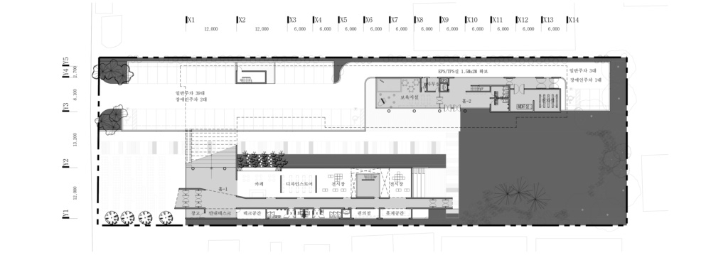
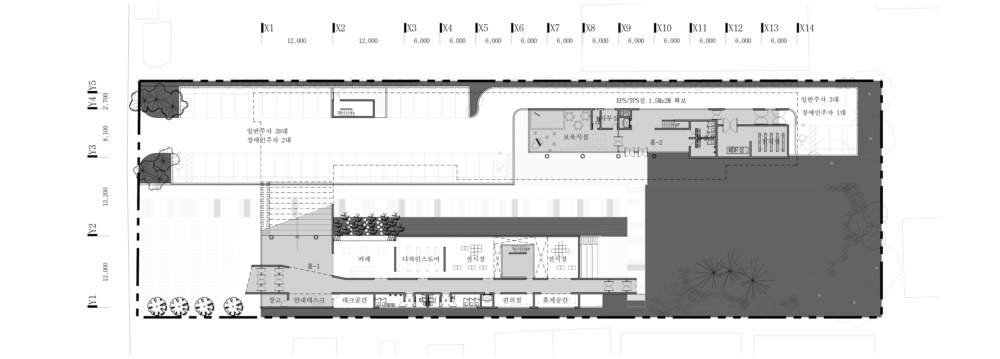
배치계획
- 주변대지와 건물들의 형상을 따라 매스 형성
- 대지의 성격을 나누어 녹지와 건물 배치
- 대지 전면부 진입마당 형성
- 두 가지 성격의 진입마당과 옥외 강원 디자인마당 형성
- 입체적 공간구성이 가능한 배치계획
동선체계
- 다층적 접근체계 구축 및 보행동선과 차량동선의 분리
- 마당을 통한 보행 주출입구 진입성 확보
- 다양한 공간과 간결한 동선체계 형성
- 장애인·노인·임산부·어린이 등을 위한 보행편의시설마련







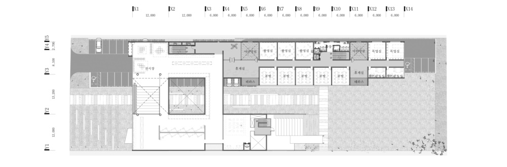
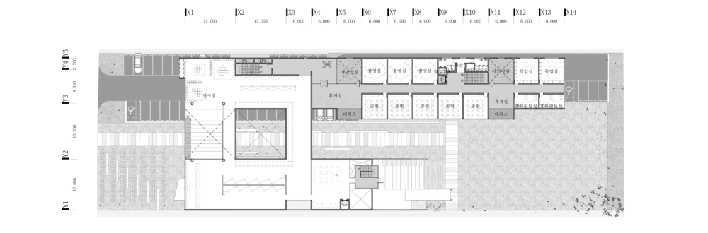
| Gangwon Design Center 발주자 | 강원도청 설계자 | 박호창 KIRA _ (주)예송 종합건축사사무소 설계팀 | 김영래, 홍준의 대지위치 | 강원도 춘천시 삭주로145번길 46 (후평동) 대지면적 | 4,958.00㎡ 건축면적 2,074.24㎡ 연면적 | 4,102.05㎡ 건폐율 | 41.84% 용적률 | 82.74% 규모 | 지상 3층 구조 | 철근콘크리트조 마감 | 외부마감재 : 구로강판, 무늬목노출콘크리트, 유글라스, 알루미늄 루버 내부마감재 : 석고보드, 친환경수성페인트, 흡음텍스, 화강석 등 |
'회원작품 | Projects > Competition' 카테고리의 다른 글
| [설계공모] 유성종합스포츠센터 (0) | 2022.12.01 |
|---|---|
| [설계공모] 홍성군 노인회관 신축 (0) | 2022.11.30 |
| [설계공모] 계룡소방서 (0) | 2022.11.30 |
| [설계공모] 시끌벅적 봉화구시장 조성사업 (0) | 2022.11.07 |
| [설계공모] 청소년 문화의 집 건립공사 (0) | 2022.11.07 |