2022. 12. 22. 10:43ㆍ회원작품 | Projects/House
Guggi-dong Residence

시작
3대는 십수년 간 구기동에 자리를 잡고 살았다. 기존의 주택은 아들에겐 학창시절의 기억이 담긴 공간이자, 부부에겐 주변 자연 경관을 즐기며 생활의 안정을 가져다 준 공간이다. 이런 가족에게 즐거운 변화가 생겼다. 성장한 아들의 반려자가 생기고, 결 혼식을 앞두고 있었다. 새 식구가 된 아들 부부, 안락한 공간이 필요한 건축주 부부, 연로하신 어머니를 위해 기존의 주택을 허물고 새로운 집을 짓기로 했다. 프로젝트 의 진행은 두 세대(건축주 부부와 예비 아들부부)와 함께 진행했다. 가족 간, 서로에 대한 배려가 집을 풍성하게 만드는 동력이 되었다. 공유하는 공간은 가족들의 의견 을 자유롭게 수렴하고 조율하는 과정을 통해 계획했고, 개별의 공간은 각 세대별 취 향을 반영하여 계획을 진행했다. 이렇듯 구기동 3대가 사는 집은 새로운 가족을 맞 이하는 변화, 그리고 5년, 10년 뒤에 점차 변해갈 가족의 모습을 그리며 계획했다
대지/ 배치
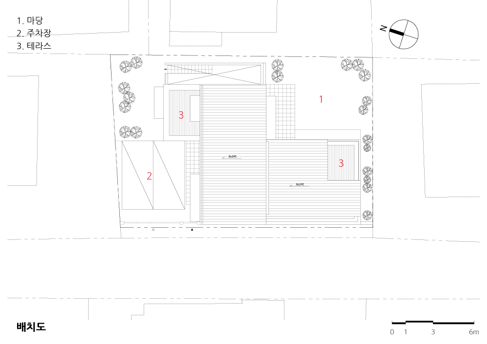
대지는 북한산 산자락에 위치한다. 북한산 봉우리가 펼쳐지는 경관을 최대한 많은 공 간에서 즐길 수 있도록 하기 위한 개별 공간의 구성·배치가 가장 중요했다. ‘ㄱ’자로 놓 인 건물의 배치로 외부 공간은 바깥마당과 안마당으로 나뉜다. 바깥마당은 대가족의 넓은 주차공간과 진입공간으로 쓰인다. 그리고 안마당은 거실 및 식당, 주방 등과 연결 되는 가족의 휴식공간이자 반려견의 놀이공간이다. 기존의 주택은 겹집으로 넓은 마 당이 있는 장점이 있었으나, 주택 내부로의 채광이 원활하지 않거나 경관을 가지지 못 하는 실들이 발생했다. 이에 ‘ㄱ’ 자의 배치 형식을 통해 얇은 켜의 내부공간 구성이 가 능했고, 개별의 방들은 북한산의 서로 다른 풍경을 향해 열려 있게 했다. 결과적으로 거실, 주방, 각각의 침실 등에서 창을 통해 바라보는 북한산의 풍경은 시시각각으로 변 화하여 내부 공간에서의 경험을 더욱 풍성하게 만들어주었다.
공간구성
3대의 가족에게 필요한 공간을 구성하기 위해 지하 1층부터 지상 3층까지의 용적을 최대한 활용해야 했다. 현관에 들어서면 지하로 내려가는 계단과 집안으로 들어가 는 두 개의 입구가 있다. 지하 1층은 홈바와 운동실 등의 유희공간으로 이용하는 데, 외부 손님들이 방문할 경우 집안을 통하지 않고 바로 지하 1층으로 진입할 수 있도 록 계획했다. 지하 1층에는 두 곳의 선큰을 계획했다. 한 곳은 데크를 설치하여 유희 공간에서 잠시 나와 쉴 수 있도록 했으며, 다른 한 곳은 도로에 면해 있기에 차폐 식 재로 대나무를 심어 시각적 간섭을 차단하는 동시에 가로에 녹색 풍경을 만들어 주 었다. 또한 이러한 선큰 공간을 통해 지하 공간의 단점인 채광과 환기 문제를 해결할 수 있었다. 현관의 다른 한편으로 들어가면 처음 만나게 되는 공간은 주방이다. 대가 족이 사는 집에서 가장 사용빈도가 높은 주방을 현관 앞에 배치해 편리한 동선 구조 로 만들었다. 대지의 고저차로 인해 주방보다 높은 바닥에 거실을 배치했고 마당과 연결되도록 했다. 2층은 건축주 세대와 어머님의 공간으로, 3층은 신혼인 자녀부부 의 공간으로 계획됐다. 신혼 부부의 공간은 독립적인 사용이 가능하도록 작은 거실 과 주방 공간을 갖추었다. 2∼3층의 개인공간은 욕실 및 드레스 룸으로 구성된 방으 로 계획해, 세대별 사적 공간의 독립성을 확보하도록 했다. 방의 출입 측에는 복도식 드레스 룸을 배치하고, 침대가 놓이는 공간은 입구로부터 깊숙하게 배치하여 짜임 새 있고 안정된 개인공간으로 구성했다.

The three generations hav e settled and lived in Gugi-dong for a long time. For the son, the existing house was a space with the memories of the schooldays t o the son, and for the couple, it was a space where the peripheral natural landscape was enjoyed as well as a space that brought the stability of life. A pleasant change occurred t o this family. The grown up son found a companion, and they had an upcoming wedding. The decision t o demolish the existing house and build a new house was made for the son’s couple who became new family members, the owner couple who needed a cozy space and for the aged mother.
The project underwent with the two families (the owner couple and the soon-to-be married son’s couple). The consideration for each other and amongst families became a power that enriched the house. The shared space was planned through the process of freely gathering and mediating between the opinions of the families, and the individual spaces wer e planned b y reflecting the tastes of each household. Thus, the plan was made while picturing the change of welcoming a new family, as well as picturing the family’s appearance that will gradually change after five, ten years. The sit e is located at the slope of the Bukhansan. The formation and placement of the individual rooms were the most important t o make it possible for the landscape, where the summit of Bukhansan is stretched out, t o be enjoyed from as many spaces as possible. With the arrangement of the building placed in an L-shape, the exterior space is divided int o the outer yard and courtyard. The outer yard is used as the large family’s wide parking space as well as an entrance space. Also, the courtyard, which is connected t o the living room, dining room an d kitchen, etc., is a resting space of the family and a play space for the pet dog.
In order t o form the necessary spaces for the family of three generations, the utilization of the volumes from the basement level t o the thir d floor above ground had t o be maximized. When entering the front door, there is a staircase going down to the basement and two entrances into the house. The basement level is used as an amusement space such as the homebar, gym, etc., and i t was planned s o that when guests visit, they can enter directly t o the basement without passing through the house. In the basement level, two sunken areas were planned. A deck was installed in one t o allow resting, and since the other adjoins the road, bamboos were planted, blocking visual interferences while creating a green scenery in the streetscape at the same time. Furthermore, through such sunken spaces, the problem o f lighting and ventilation, which are flaws o f basements, could be solved.
The second floor was planned as the owner’s household as well as the mother’s space, and the third floor was planned as the space of the newly wed son’s couple. A small living room and kitchen space were prepared in the space o f the newly married couple t o independent use. B y planning the individual spaces on the second t o third floors as rooms made up of bathrooms and dress rooms, the independence o f the private spaces o f each household wer e made t o be procured. Corridor-type dress rooms were placed at the entrance side of the rooms, and the spaces for the beds were deeply arranged from the entrance, constituting stable and well organized personal spaces. In this house, which is constituted of four 19- to 23-pyeong (62.8m² t o 76.0m²) stories, ther e ar e four bedrooms, two living rooms, two kitchens, six bathrooms as well as the family’s amusement space. I n the amusement space i n the basement, there i s a home bar where various alcoholic beverages are displayed, an exercise area where a ping pong table and fitness machines are installed, as well as a karaoke machine and drums. Although the designing process was complicated since diverse spaces, each of different characteristics, had t o be included, the house that was completed through the process of organizing the various opinions and contents became simple and concise. This house, made up of several households, contains various lifestyles. Over time, the members and lifestyle of the families will change once again, and they will grow old along with a house that can be a good background even in new situations.









| 구기동 三代가 사는 집 설계자 _ Architect. 오승현 _ Oh, Seunghyun (주)건축사사무소 서가 _ Seoga Architects 건축주 | 유진순 감리자 | 오승현 _ (주)건축사사무소 서가 시공사 | 유진순 설계팀 | 박혜선, 정상호 대지위치 | 서울특별시 종로구 구기동 주요용도 | 단독주택 대지면적 | 236.32㎡ 건축면적 | 85.83㎡ 연면적 | 296.4㎡ 건폐율 | 36.32% 용적률 | 93.39% 규모 | 지하 1층, 지상 3층 구조 | 철근콘크리트조 외부마감재 | 치장벽돌(삼한C1 황토토담) 내부마감재 | 석고보드 위 수성페인트 도장, 이건 원목마루 설계기간 | 2017. 09 ~ 2018. 03 공사기간 | 2018. 04 ~ 2018. 10 사진 | 신해수 _ Studio texture on texture 구조분야 : (주)은구조 기계설비분야 : 수양엔지니어링 전기분야 : 수양엔지니어링 소방분야 : 수양엔지니어링 |
Guggi-dong Residence Client | Yu, Jinsoon Supervisor | Oh Seunghyun Construction | Yu, Jinsoon Project team | Park, Hyesun / Jeong, Sangho Location | Gugi-dong, Jongno-gu, Seoul, Korea Program | Residence Site area | 236.32㎡ Building area | 85.83㎡ Gross floor area | 296.4㎡ Building to land ratio | 36.32% Floor area ratio | 93.39% Building scope | B1F - 3F Structure | RC Exterior finishing | Brick Interior finishing | Water paint finish above Gypsum board, Wood flooring Design period | Sep. 2017 ~ Mar. 2018 Construction period | Apr. 2018 ~ Oct. 2018 Photograph | Shin, Haesu _ Studio texture on texture Structural engineer | Eunkujo Mechanical engineer | Suyang Engineering Electrical engineer | Suyang Engineering Fire engineer | Suyang Engineering |

'회원작품 | Projects > House' 카테고리의 다른 글
| 오손도손家 2019.7 (0) | 2022.12.23 |
|---|---|
| 위례 C 주택 2019.6 (0) | 2022.12.22 |
| 상도동 삼각집 2019.6 (0) | 2022.12.22 |
| 산수간(山水間) 2019.5 (0) | 2022.12.21 |
| 서향각 2019.5 (0) | 2022.12.21 |