2022. 12. 22. 10:47ㆍ회원작품 | Projects/Public
Annex building of Yeongdeungpo-gu Office

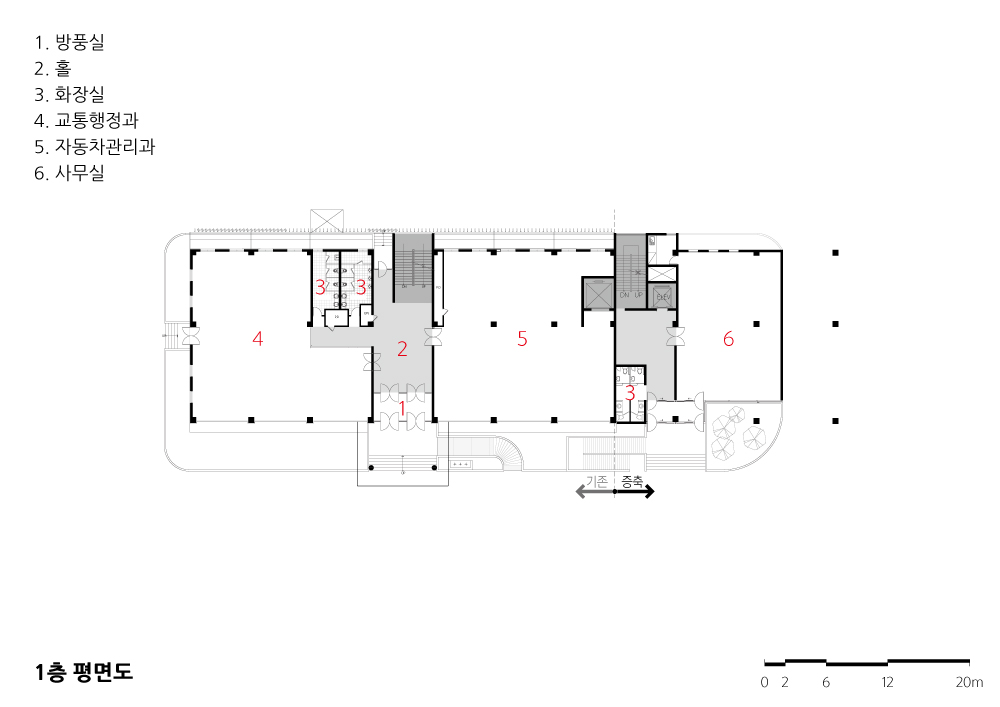
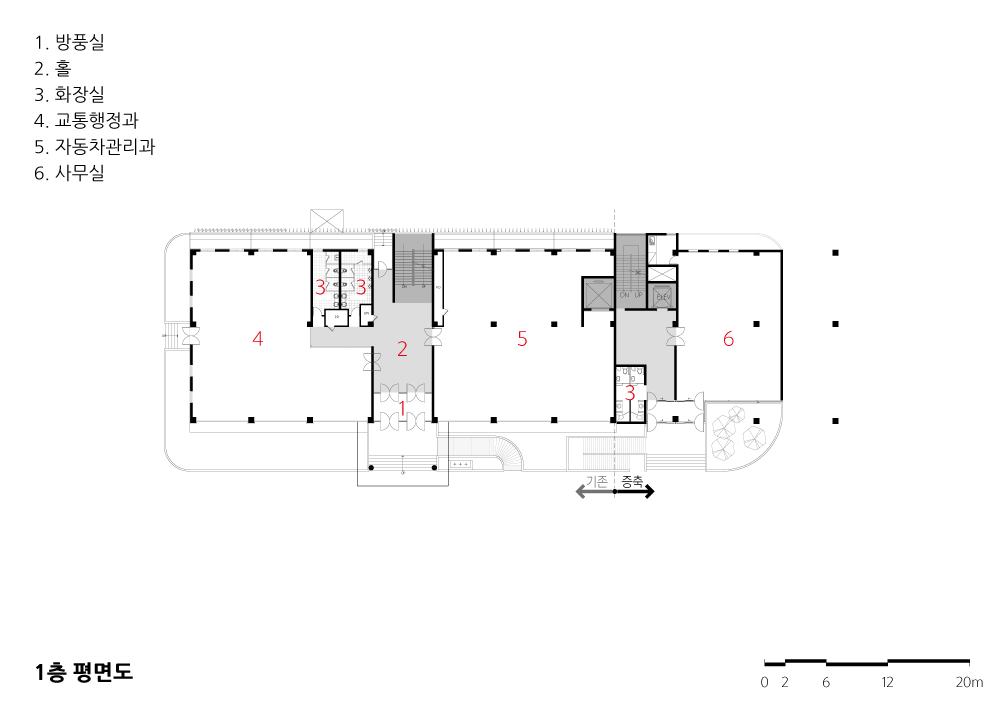
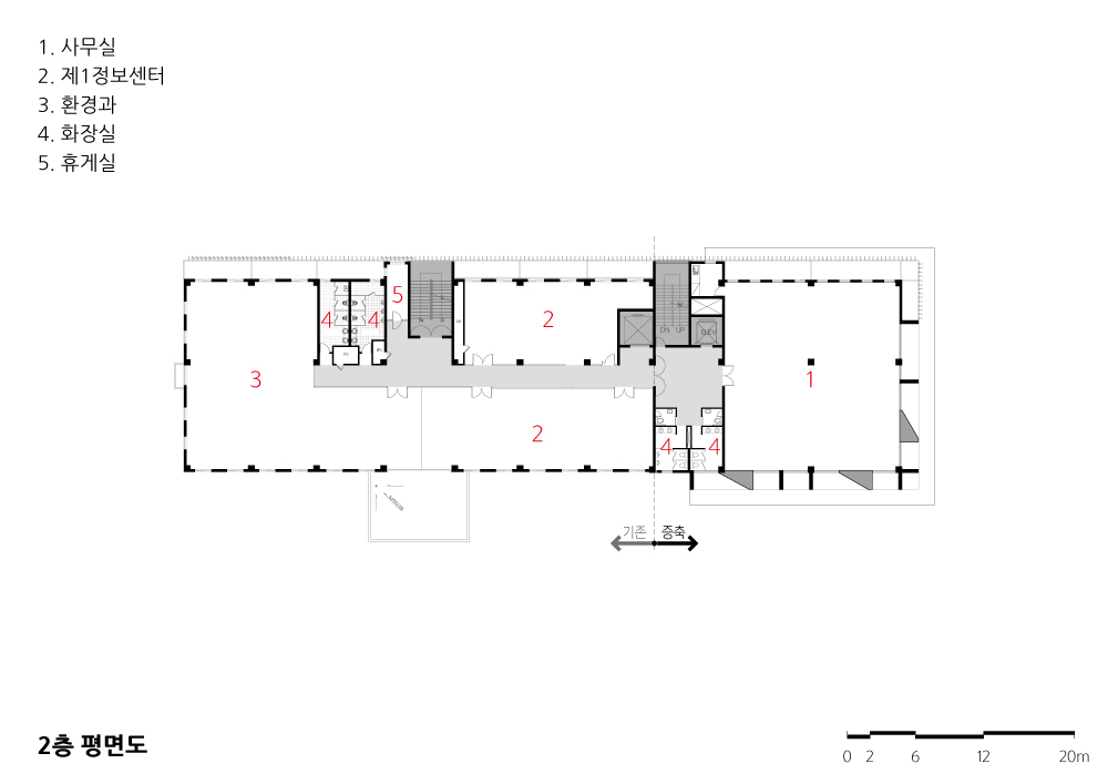
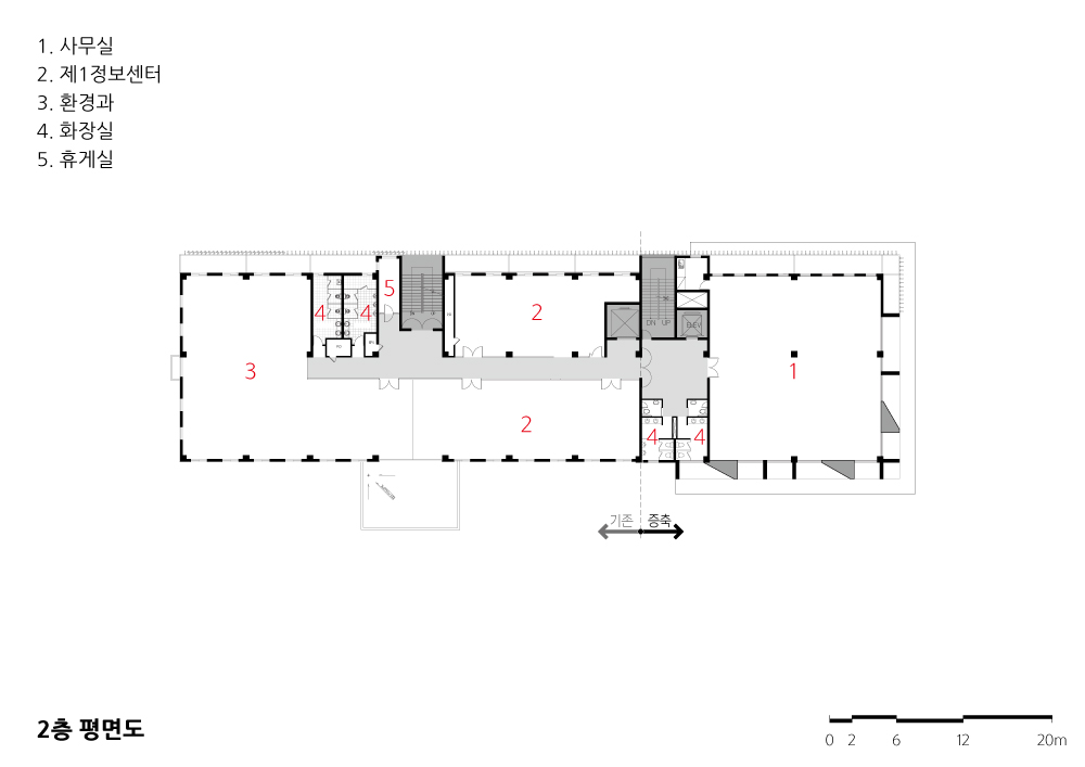
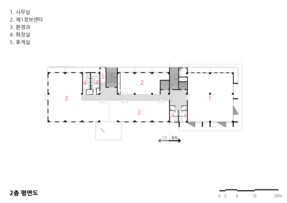
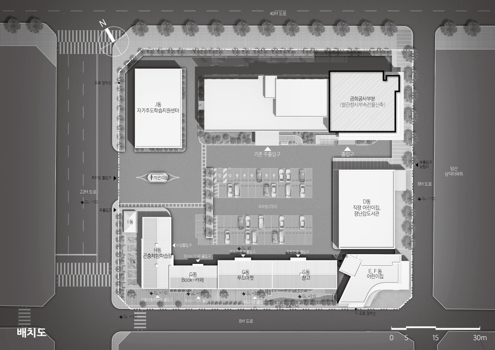
영등포구청 별관청사 부속건물은 영등포 구청의 별관에 연결되어 증축된 업무 시설이다. 기존 건축물과 관계 맺기와 더불어 새로운 업무공간으로서의 장소 만들기, 그리고 사용자·이용자 중심의 계획을 설계 주안점으로 삼았다. ▲기존 별관의 피난계단 철거 ▲새로운 계단과 엘리베이터 설치 및 홀을 형성하면서 업무시설을 연속 배치했다. 대지 남측 및 동측 가로변으로의 입면은 현재 영등 포구청의 입면 루버를 재해석하여 과거와 연속되지만 새로운 재료와 느낌, 장 소성을 갖도록 했다.
입면의 분할은 다양함 속에 일정한 패턴을 형성하여 공공청사로서의 인지성을 가지도록 했다. 그러면서도 주변과 조화를 이루고 빛을 조절하면서 외부 풍경 을 다양한 모습으로 내부로 끌어들이도록 계획했다.
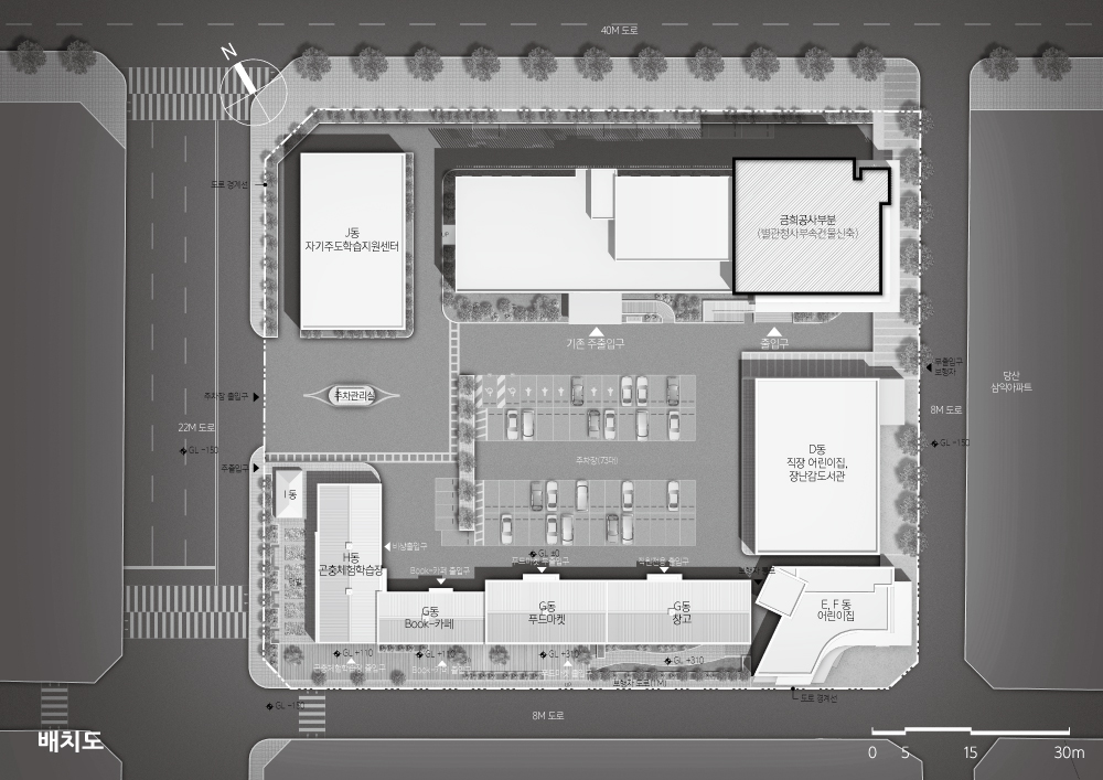
공공성의 극대화를 위해 대지 동측의 기존 담장을 철거하고 대지내의 메타세 콰이어를 가로변으로 드러냄으로써 보행자에게는 그늘과 쉼을 제공하고 가로 공간에는 활기를 더하게 했다.
공공성의 극대화를 위해 대지 동측의 기존 담장을 철거하고 대지내의 메타세 콰이어를 가로변으로 드러냄으로써 보행자에게는 그늘과 쉼을 제공하고 가로 공간에는 활기를 더하게 했다.

Yeongdeungpo-gu Office Annex Building is connected and extended to Yeongdeungpo-gu Office Annex. In addition to establishing relationships with the existing building, we focused on designing a place as new work space and making a user·visitor-oriented plan. ▲Removal of the emergency stairway of the existing annex ▲New stairway, elevator and hall installation, and the continuous layout of office facilities. The elevation to the south and east roadside of the site is now connected with the past by reinterpreting the entrance louver of Yeongdeungpo-gu office, but it was also designed to have a new material, feel, and placeness.
The division of the elevation forms a certain pattern in diversity, so that it can be perceived as a public office. In the meantime, we planned to apply the outside scenery to the building in many different shapes, while blending in with the surroundings and adjusting the light. In order to maximize the publicness, the existing fence of the eastern side of the site was demolished and the metasequoia in the site was revealed on the roadside, providing shade and rest to pedestrians and activating street space.
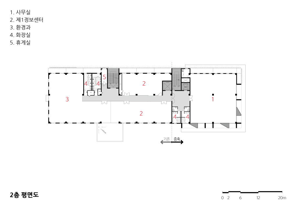
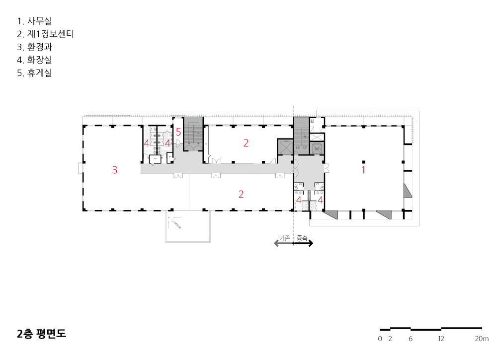
The north elevation of the site was to ensure continuity with the existing annex, and galvanized plates were continuously arranged in a vertically changing manner so as to respond positively to the flow of the street.







| 영등포구청 별관청사 부속건물 설계자 _ Architect. 김시원 _ Kim, Shiweon (주)종합건축사사무소 시담 _ SIDAM Architects Co., Ltd. 건축주 | 서울특별시 영등포구 감리자 | (주)선진엔지니어링 종합건축사사무소 시공사 | 홍용종합건설(주) 설계팀 | 김태호, 박문수, 이웅재, 정유진, 전병철, 임제균, 김수연, 이민경 대지위치 | 서울특별시 영등포구 선유동1로 80 주요용도 | 공공업무시설 대지면적 | 8,730.50㎡ 건축면적 | 3,062.30㎡ 연면적 | 8,553.77㎡ 건폐율 | 35.08% 용적률 | 85.33% 규모 | 지하 1층, 지상 5층 구조 | 철근콘크리트조 외부마감재 | 외단열 시스템(실리콘계 입자마감) 내부마감재 | 친환경 수성페인트 설계기간 | 2016. 09 ~ 2016. 12 공사기간 | 2017. 04 ~ 2018. 06 사진 | 이한울 _ 나르실리온 전문기술협력 구조분야 : (주)씨지스플랜 기계설비분야 : (주)성우이엠이 전기분야 : (주)성우이엠이 소방분야 : (주)성우이엠이 |
Annex building of Yeongdeungpo-gu Office Client | Seoul Yeongdeungpo-gu District office Supervisor | Sunjin engineering & architecture Construction | Hongyong construction Co., Ltd. Project team | Kim, Taeho / Park, Munsu / Lee, Ungjae / Jeong, Yujin / Jeon, Byeongcheol / Im, Jegyun / Kim, Suyeon / Lee, Mingyeong Location | 80, Seonyudong 1-ro, Yeongdeungpo-gu, Seoul, Korea Program | Public service facilities Site area | 8,730.50㎡ Building area | 3,062.30㎡ Gross floor area | 8,553.77㎡ Building to land ratio | 35.08% Floor area ratio | 85.33% Building scope | B1 - 5F Structure | RC Exterior finishing | External insulation system Interior finishing | Eco-friendly paint finish Design period | Sep. 2016 ~ Dec. 2016 Construction period | Apr. 2017 ~ Jun. 2018 Photograph | Lee, Hanul _ Narsilion Structural engineer | CGS PLAN Co., Ltd. Mechanical engineer | Sungwooeme Co., Ltd. Electrical engineer | Sungwooeme Co., Ltd. Fire engineer | Sungwooeme Co., Ltd. |

'회원작품 | Projects > Public' 카테고리의 다른 글
| 화순 만연산 치유의 숲 치유센터 2019.7 (0) | 2022.12.23 |
|---|---|
| 의정부시 종합관광안내소 2019.7 (0) | 2022.12.23 |
| 건축사 김원석 2019.4 (0) | 2022.12.19 |
| 건축사 강석원 2019.4 (0) | 2022.12.19 |
| 아욱실리움센터(근로여성복지센터) 2019.4 (0) | 2022.12.17 |