2022. 12. 19. 10:20ㆍ회원작품 | Projects/Public
Architect
KIM, WONSEOK
건축사 김원석
1978 _ 아리장
1971 _ 공간사옥(김수근 건축사 협업)
1981 _ 아르코예술극장(김수근 건축사 협업)
1984 _ 잠실 올림픽 주경기장(김수근 건축사 협업)
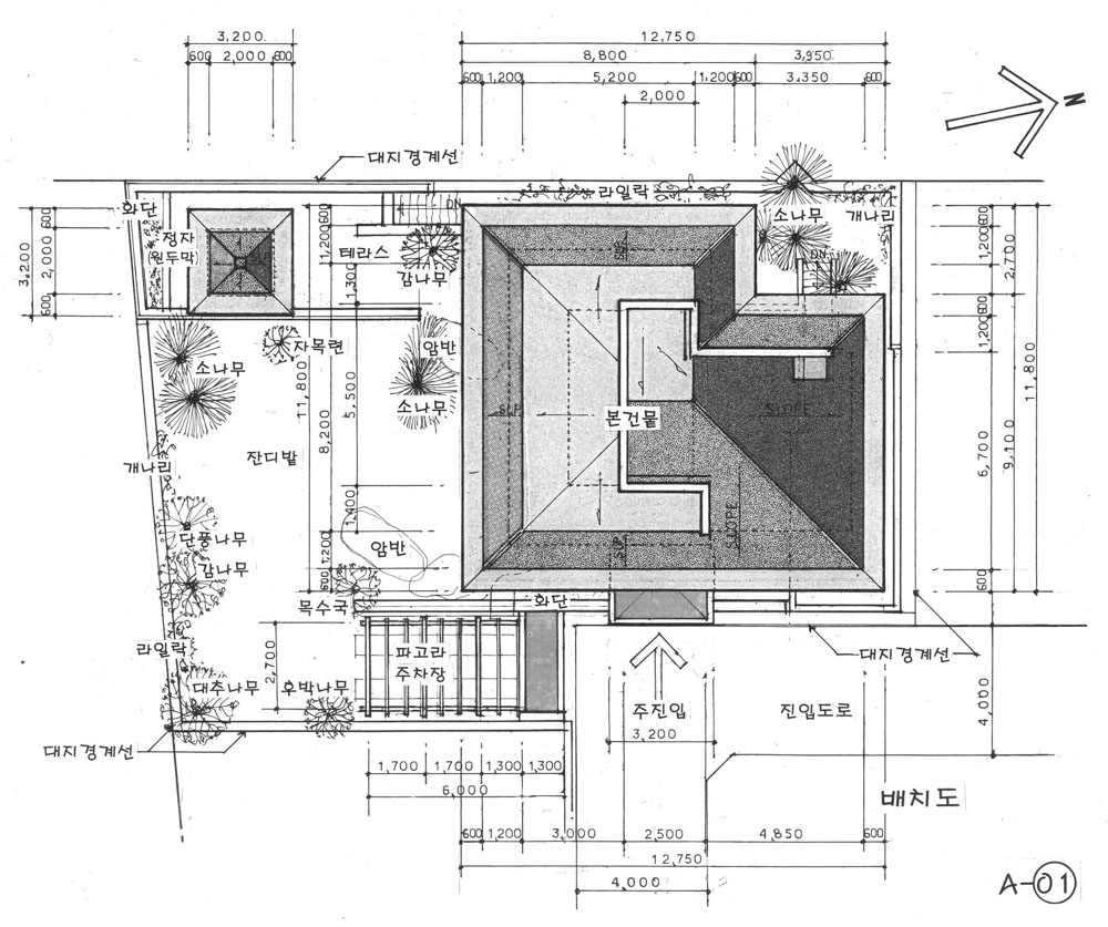
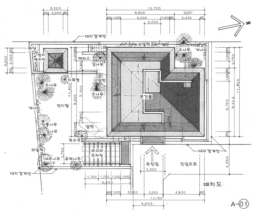
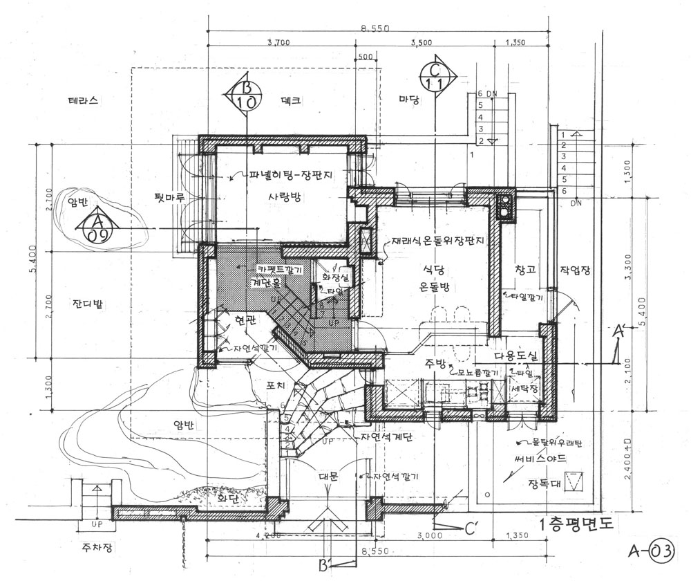
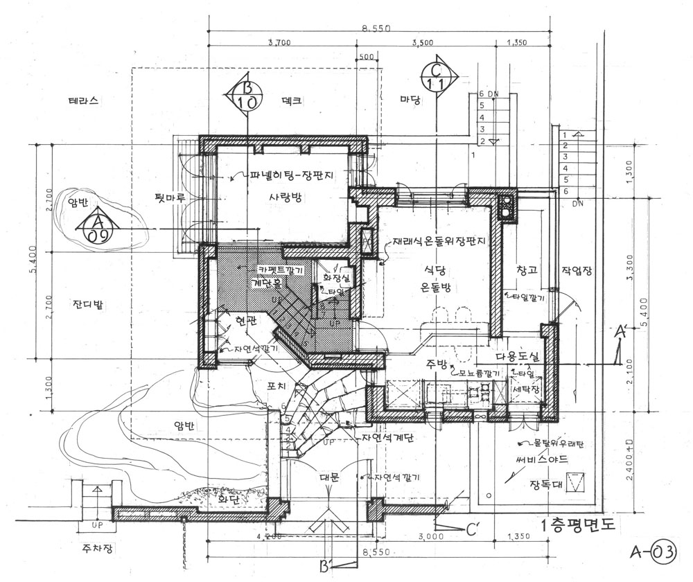
아리장

나의 공간-아리장
한국, 한국인, “우리의 멋” 은 우리만이 갖고 있는 고유의 전통문물에서 많은 것을 전해주고 있다. 한 예로 여인의 옷-한복에서도 쉽게 찾아볼 수 있듯이 저 고리 소매선과 옷고름의 매듭, 땅에 끌릴 듯 한 치마, 이 모두가 멋을 풍기는 여 유를 말해 주고 있다.
편하고 기능적이라면 단추를 채우거나 지퍼를 채우는 바지 같은 것을 입으면 되겠지만 다소 거추장스럽더라도 한복을 입고 길게 늘어뜨린 옷고름은 행동거 지를 단정하게도 할뿐더러 마음가짐도 순박하고 여유를 갖는 자연스러운 소박 한 멋을 즐기는 우리 한국인의 모습이기 때문에 현재와 같은 경쟁사회생활 속 에서 자칫 성급하게 모든 것을 해결해 나가다 보면 때로는 인간미(美)가 결여 되는 경우가 많다. 한 번 더 생각하고 한순간 한 호흡 크게 숨을 쉬면서 살아감 이 여유로운 우리의 삶이 아닐까 생각한다.
이것은 건축사가 도시를 설계하고 건축을 설계하는 전문인으로 주변 환경과 이웃을 의식하는 배려 또한 중요한만큼 어떤 조형물을 창조할 때 기본적인 요 구조건을 우선 만족 시키고 따라서 예술성이 곁들어진 조형물이 탄생된다면 아름다운 삶의 그림이 그려져 행복을 누릴 수 있을 것이다.
이러한 모든 행위가 아리장 설계에 총 망라된 꿈의 실현으로 이어지기를 기대 하며 나와 나의 가족 그리고 주변 동조자들이 함께 합심하여 이룬 작품으로 우 리의 것이 요소요소에 담긴 생활공간을 만들어 낸 현장이었다고 술회한다.

위치 서울특별시 강북구 미아동
대지면적 334.00㎡
건축면적 76.84㎡
연면적 144.75㎡
규모 지하 1층, 지상 2층
구조 조적조




공간 사옥

비원 옆 원서동에 위치한 공간사옥은 1차 1971년에 구관(대지 130m², 연건 평 360m²)이 완성되었고, 2차 1977년에 현재의 건물이 완성되었다. 공간구 성의 기본원칙은 우리에게 친밀감을 주고 창작환경을 새롭게 조성한다는 의미 에서 한국인의 체형에 맞는 human scale을 적용, 좁고 넓음, 높고 낮음, 막힘 과 열림으로 다양한 공간을 연출해 냈으며, 내외장 피부형성에도 재료 그 자체 가 주는 질감을 그대로 표출하여 낯설지 않은 친밀감 또한 더해 주도록 하였다.

위치 서울특별시 종로구 원서동
대지면적 660.00㎡
연면적 1,350.00㎡
규모 지하 1층, 지상 5층
구조 철근콘크리트, 조적, 일부 목조
자료 김수근문화재단
잠실 올림픽 주경기장

위치 서울특별시 송파구 잠실동
건축면적 111,792.00㎡
자료 김수근문화재단



'회원작품 | Projects > Public' 카테고리의 다른 글
| 의정부시 종합관광안내소 2019.7 (0) | 2022.12.23 |
|---|---|
| 영등포구청 별관청사 부속건물 2019.6 (0) | 2022.12.22 |
| 건축사 강석원 2019.4 (0) | 2022.12.19 |
| 아욱실리움센터(근로여성복지센터) 2019.4 (0) | 2022.12.17 |
| 금정구 청년창조발전소 2019.2 (0) | 2022.12.14 |