제주장애인종합복지회관 _ 2018. 6
2023. 1. 4. 09:09ㆍ회원작품 | Projects/Competition
Jeju general Welfare Center for the Disabled

이도이동
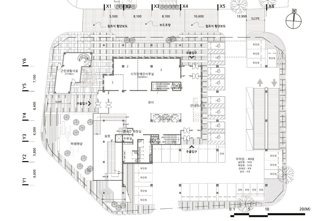
대지는 제주의 구도심인 광양로터리의 이면에 위치한 상업지역과 주거지역의 경계에 있다. 독사천 방향으로 파사드를 두고 조망과 오픈스페이스를 적극적으로 계획하여 독사천 복원의 도심재생에 적극 대응했다. 탐라장애인복지관과 마주하여 출입구와 보행회랑으로 장애인 클러스터를 형성하고, 주차장과 오름마당으로 버퍼존을 형성하여 주거지역과의 상생을 도모했다.
쉼팡과 독사천
1층과 2층의 로비를 경사로와 계단을 이용하여 복층화하여 ‘쉼팡’이라 이름한다. 지상 주차장설치로 인한 내부공간의 협소함을 극복하고 공간의 확장과 다양한 프로그램의 수용이 가능한 복합공간이다.
오픈스페이스의 유기적 연결과 유니버셜 디자인
중앙의 아트리움은 내부의 공용공간은 물론 외부의 오름마당과도 연계되어 공간의 질을 높힌다. 집중된 코어계획으로 접근성과 인지성을 확보하고 각층에서 옥외로의 대피가 가능하도록 했다.
샛도와 오름마당
내부 동선 외에 각층으로 진입이 가능한 외부 동선을 추가하여 ‘샛도’라 이름하였다. 이어지는 강당 지붕을 이용한 오름마당은 남측으로 도시의 실루엣 너머 한라산을 조망하는 개방된 도심의 오름이다.
제주체
제주집의 입면은 돌담이다. 상층부 이중외피는 열린 공간으로서 들어올린 돌담을 은유하고 밝은색으로 새로움을 더한다. 제주의 독특한 지형인 응회한 층리를 모티브로한 저층부는 오랜 제주시간의 켜를 담는다.







| 제주장애인종합복지회관 발주자 제주도청 노인장애인 복지과 설계팀 (주)종합건축사사무소 그룹케이 _ 박남용, 안선영, 김범수, 조채원, 박정현 · 케이케이파트너스 건축사사무소 _ 강성인, 공윤제, 민경준 대지위치 제주특별자치도 제주시 이도일동 1660-6번지 주용도 노유자시설, 문화 및 집회시설 | 대지면적 3,048.00㎡(제2종 일반주거지역 : 1,444.00㎡ / 일반상업지역 : 1,604.00㎡) 건축면적 1,945.03㎡(제2종 일반주거지역 : 848.97㎡ / 일반상업지역 : 1,096.06㎡) 연면적 6,687.30㎡(제2종 일반주거지역 : 2,990.97㎡ / 일반상업지역 : 3,696.33㎡) 건폐율 제2종 일반주거지역 : 58.79%(법정 60%이하) / 일반상업지역 : 68.33%(법정 80%이하) | 용적률 제2종 일반주거지역 : 164.66%(법정 250%이하) / 일반상업지역 : 176.67%(법정 1000%이하) 규모 지하 1층, 지상 5층 구조 철근콘크리트구조, RC철골조 마감 외부마감재 : 고밀도 합성목재판넬(7.5RO120,버건디레드), 제주석켜쌓기(N3,검회색), 테라코타 루버판넬(5Y0364,밝은아이보리) 내부마감재 : 친환경PVC바닥재(중보행용), 화강석 버너구이, 경질단풍나무후로링 |
'회원작품 | Projects > Competition' 카테고리의 다른 글
| 준공건축물부문 2019.12 (0) | 2023.01.07 |
|---|---|
| 신진건축사부문 2019.12 (0) | 2023.01.07 |
| 건축물부문 2022.12 (0) | 2022.12.21 |
| 신진건축사부문 2022.12 (0) | 2022.12.21 |
| [설계공모]새로운 광화문광장 조성 설계공모_INTERNATIONAL DESIGN COMPETITION FOR NEW GWANGHWAMUN SQUARE (0) | 2022.12.14 |