2023. 1. 4. 09:10ㆍ회원작품 | Projects/House
CHEONGRANGJAE

중정(中庭)과 밝은(朗) 공간으로 가득한 집
청랑재(淸朗齋) 주택의 중요한 설계조건은 사생활 보호였다. 단독주택 설계에서 사생활 보호는 매우 중요한 이슈이고 주택계획의 핵심이지만, 지나치게 폐쇄적인 주택은 주변 도시 환경과는 완전히 단절된 형태를 취하게 된다. 이에 청랑재는 완전히 닫힌 공간이기 보다는 개방감 있고, 주변 환경과 관계를 맺는 중정형 주택이 되길 바랬다.
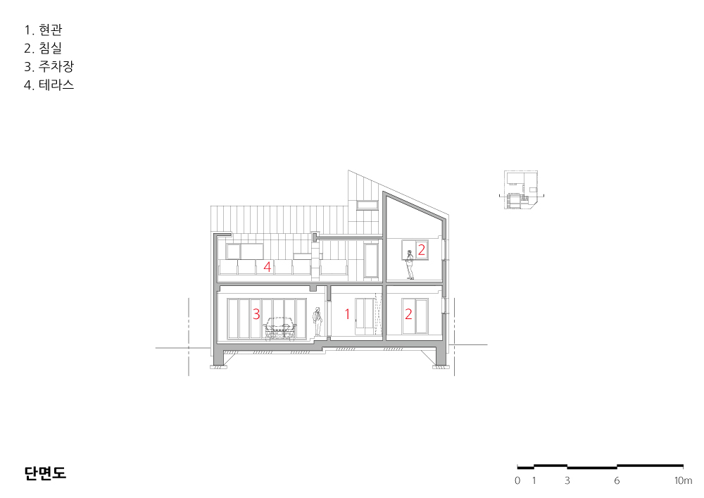
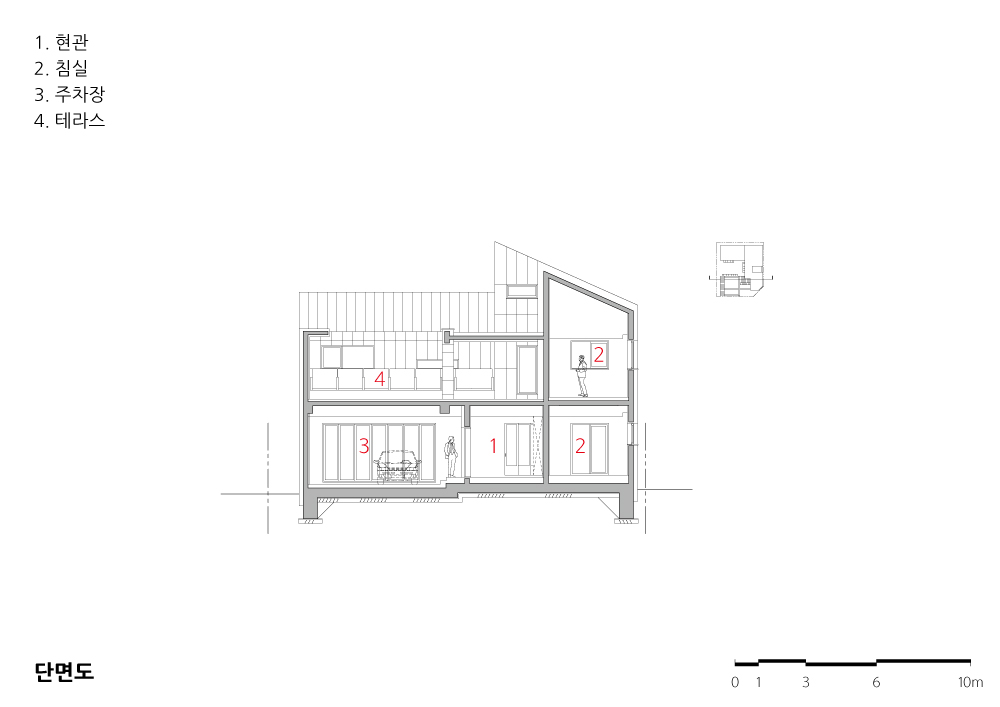
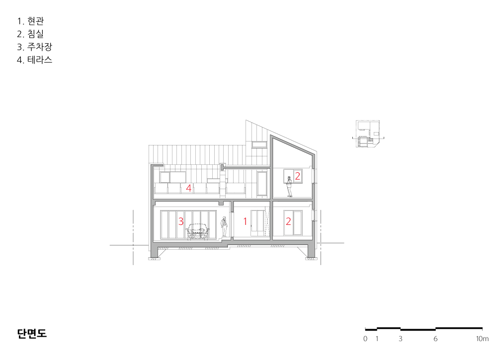
우선 중정 남측의 2층 볼륨을 덜어내고, 외부 테라스로 계획했다. 중정과 1층의 채광 환경은 훨씬 좋아졌고, 개방감 역시 확대됐다. 2층의 테라스는 가족의 휴게, 담소의 공간이면서 주변 가로와 소통할 수 있는 공간이다. 테라스로 비워진 입면은 자칫 폐쇄적일 수 있던 가로변 입면에 변화감을 준다.
청랑재의 중정은 주차장과 연계하면 확장되고 개방된다. 오버헤드 도어와 중정에 면한 폴딩도어를 열면 주차장은 내부공간이면서 외부인 공간이 되고, 반半공적인 공간으로 활용될 수 있다. 전면의 공공도로, 주차장, 그리고, 중정으로 이어지는 공간은 단독주택에서는 생각지 못한 거대한 이벤트 공간이 된다. 이 공간은 때에 따라서는 마을의 행사가 이뤄질 수 있는 가라지마켓(Garage Market) 등으로 활용될 수 있다.
청랑재는 도심 중정형 주택에서 사생활 보호와 열린 공간이라는 두 가지 주제가 적절히 조화된 주택에 대한 제안이다.

A House Full of a Courtyard and Bright Spaces
One of the important design requirements for Cheongrangjae House was privacy. Privacy is a very important issue in the design of a single-family house. However, overly closed houses would look completely disconnected from the surrounding urban environment. We intended Cheongrangjae to be a courtyard house which is open in a relationship with the surroundings rather than completely reclusive.
First, the southern part of the volume on the second floor was carved out to make an outside terrace, which provides drastic improvements on daylight and openness in the courtyard and the first floor. The surrounding streets are connected with the second-floor terrace where the family rests and chats. The facade with the void by the terrace varies the street-facing elevation that could have been closed otherwise.
The courtyard of Cheongrangjae is expanded and opened by connecting to the parking lot. Opening the parking lot with the overhead door and the folding door to the courtyard blurs the inside and outside, which makes it a semi-public space. The street in front of the house, the parking lot, and the courtyard make together a huge event space that is not easily achievable and conceivable in a single-family house. This space can be used as a garage market where village events take place occasionally.
Cheongrangjae is a proposal for an urban courtyard house which harmonizes privacy and openness.








| 청랑재(淸朗齋) 설계자 | 고원준_시우 건축사사무소 건축주 | 김혜랑 감리자 | 고원준 _ 시우 건축사사무소 시공사 | 우리마을A&C 설계팀 | 안기현 대지위치 | 경기도 성남시 수정구 위례한빛로 11-1 주요용도 | 단독주택 대지면적 | 288.50㎡ 건축면적 | 144.08㎡ 연면적 | 249.99㎡ 건폐율 | 49.94% 용적률 | 73.24% 규모 | 지상 2층 구조 | 철근콘크리트조 외부마감재 | 화강석(고흥석, 마천석) 내부마감재 | 강마루, 수성페인트, 도배지 설계기간 | 2017. 11 ~ 2018. 04 공사기간 | 2018. 07 ~ 2019. 01 사진 | 홍석규 전문기술협력 - 구조분야 : 라임 - 기계설비분야 : (주)라인이엔씨 - 전기분야 : (주)라인이엔씨 |
CHEONGRANGJAE Architect | Ko, Wonjoon_ Siwooo Architects Client | Kim Hyerang Supervisor | Ko, Wonjoon _ Siwooo Architects Construction | Woorimaeul A&C Project team | Ahn, Kihyun Location | 11-1, Wiryehanbit-ro, Sujeong-gu, Seongnam-si, Gyeonggi-do, Korea Program | House Site area | 288.50㎡ Building area | 144.08㎡ Gross floor area | 249.99㎡ Building to land ratio | 49.94% Floor area ratio | 73.24% Building scope | 2F Structure | RC Exterior finishing | Granite stone Interior finishing | Polywood floor, Wall paper, Water Paint Design period | Nov. 2017 ~ Apr. 2018 Construction period | Jul. 2018 ~ Jan. 2019 Photograph | Hong, Seokgyu Structural engineer | LAIM Mechanical engineer | LINE ENC Electrical engineer | LINE ENC |

'회원작품 | Projects > House' 카테고리의 다른 글
| 달_놀이집 2019.9 (0) | 2023.01.04 |
|---|---|
| 우주(宇宙) 2019.9 (0) | 2023.01.04 |
| 산청 C 주택 2019.8 (0) | 2022.12.24 |
| 퍼블리베이트 하우스 2019.8 (0) | 2022.12.24 |
| 어반테라스 2019.7 (0) | 2022.12.23 |