2023. 1. 9. 09:08ㆍ회원작품 | Projects/Public
Apple blossoms Jangsu-gun Office

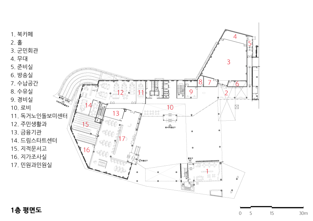
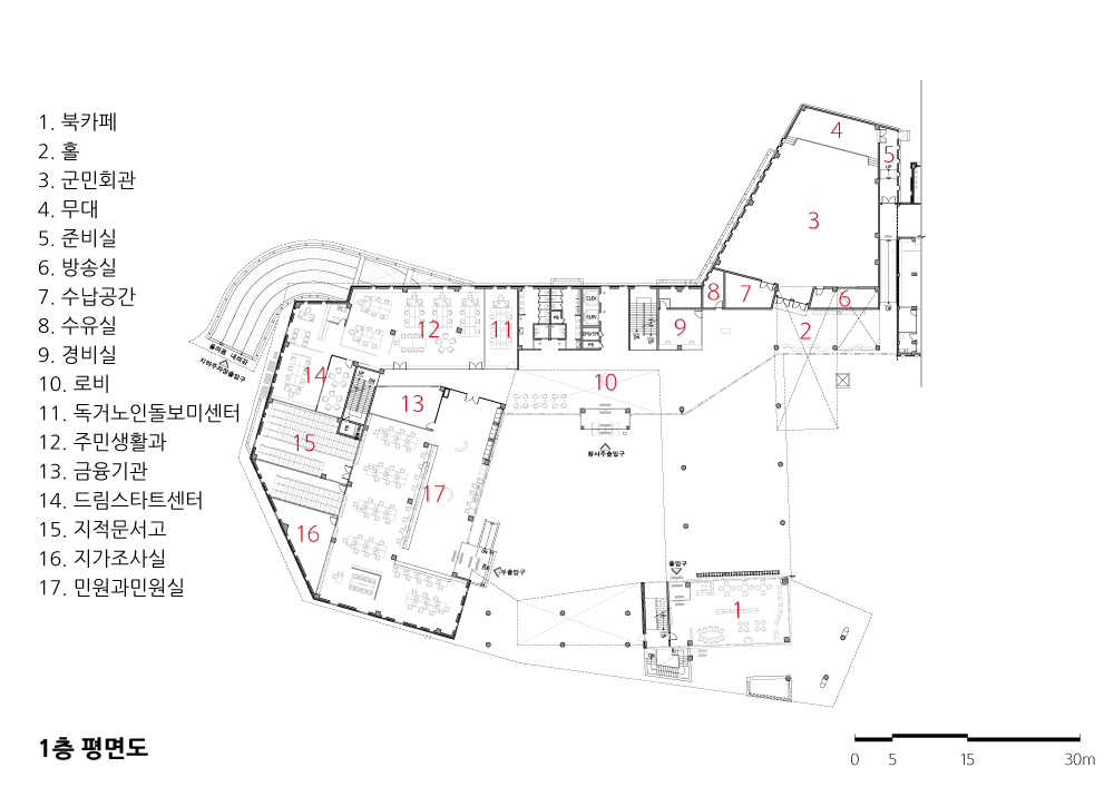
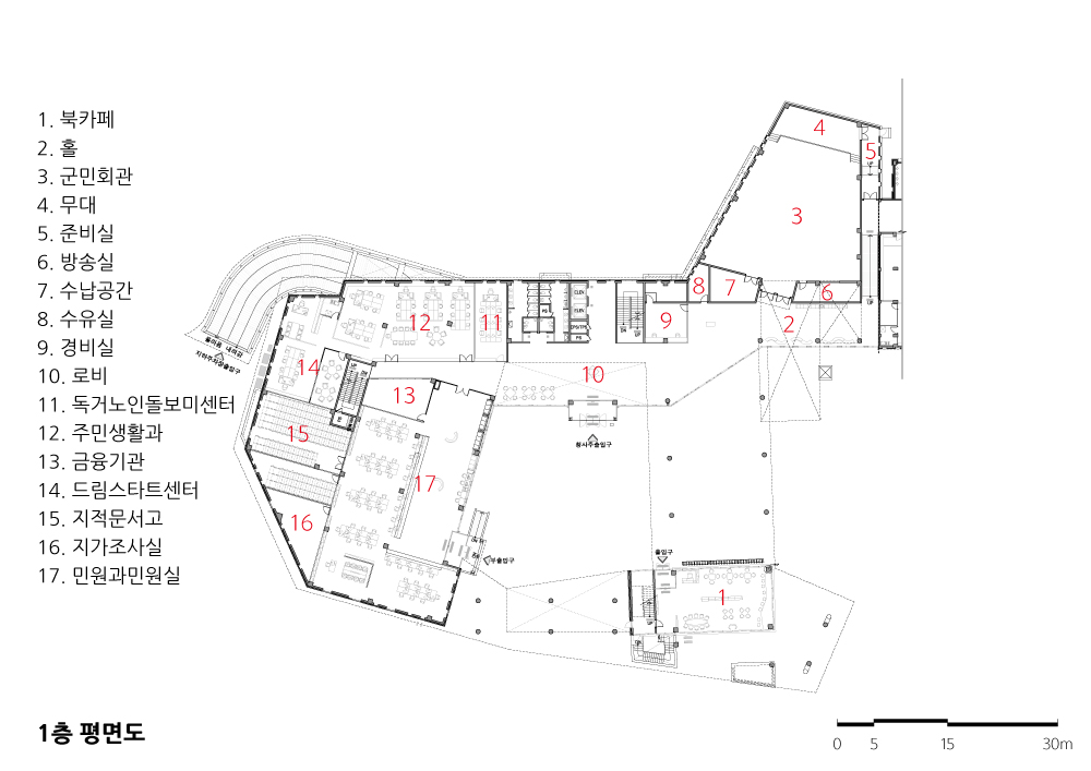
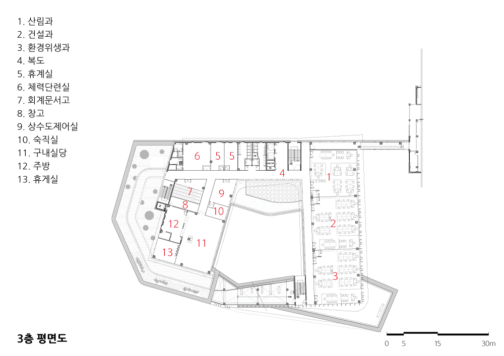
1968년 건립 후 46년이 경과된 장수군청사는 안전진단 결과 노후결함이 발견되어 사업이 추진됐고, 무질서하게 분산된 기존 건물을 하나의 통합된 청사로 모아 군민의 불편해소와 지방행정의 효율적 개선을 도모하려는 목적을 갖고 있다.
전체적인 배치계획은 장수의 상징인 사과꽃을 의인화 했고, 2면 도로에서의 출입을 고려한 누하진입, 공간과 공간의 매개와 소통이 원활하도록 1층 필로티가 제시됐다. 각 동선은 유기적, 기능적 공간으로 연계되며, 파사드는 장수군민이 친근감을 느낄 수 있는 향토적 이미지를 부각시켰다. 중정을 중심으로 위요된 평면은 남북으로 긴 대지를 효율적으로 이용했고, 전면 필로티 상부는 브리지로 연결, 원활한 동선 및 피난이 이루어질 수 있도록 계획했다. 입면에서 4면 모두 외부 조망을 극대화했고 외부데크는 중정데크, 옥상데크와 연계되어 최상의 휴게 및 식사, 조경공간이 되게 했다.
장수군청사 증축 건립사업은 사과와 한우의 고장 장수군민의 화합과 소통의 공간이자 400년 절개와 기상으로 자리한 천연기념물 397호 의암송과 더불어 조화, 친환경 등 지속가능한 공간으로 자리매김하도록 했다. 적절한 곡선과 수직 루바, 저층형 친근감 있는 재료와 색채는 군민을 위한 군민의 공간으로 거듭날 것이다.

46 years old after the construction in 1968, Jangsu-gun Office was found to have decrepitude as a result of the safety diagnosis, and the project was conducted to unite the existing buildings that were chaotically scattered into one, to ease the locals’ inconvenience and improve the efficiency of local administration.
The overall layout plan is a formal interpretation of apple blossom, a symbol of longevity. The first-floor piloti was presented to facilitate the mediation and communication between spaces, considering the entrance from side streets. Each flow of movements is connected organically to functional spaces, and the facade highlights the local image as the Jangsu-gun people can feel friendly. The encircled massing centered on the courtyard efficiently utilizes the long land from north to south, and the upper part of the façade piloti was connected to bridges to help smooth movement and evacuation. All four sides of the elevation maximized the exterior view, and the external deck was connected with the courtyard deck and the rooftop deck to provide the best rest, dining and landscape space.
The extension of the Jangsu-gun Office building was designed to become a space for harmony and communication with the people of Jangsu-gun, the home of the apple and Korean beef, and to become a sustainable space as eco-friendliness and also in harmony with Uiamsong (Tree), Natural Monument No. 397 which has been recognized as a symbol of integrity and spirit for 400 years. Modest curves, vertical louvers, low-floor friendly materials, and colors will transform it into a space for the county residents.








| 전라북도 장수군청사 설계자 | 이길환_(주)길 종합건축사사무소 이엔지 건축주 | 장수군청 감리자 | (주)삼우공간 건축사사무소 시공사 | 웅진종합건설주식회사 설계팀 | 최문규, 설형진, 김대진 대지위치 | 장수군 장수읍 호비로 10 일원 주요용도 | 업무시설(공공청사) 대지면적 | 11,255.00㎡ 건축면적 | 4,466.54㎡ 연면적 | 13,867.50㎡ 건폐율 | 39.84% 용적률 | 84.75% 규모 | 지하 1층, 지상 3층 구조 | 철근콘크리트조, 철골조 외부마감재 | 징크판넬(주.해원에스비엠), 치장벽돌, THK24로이복층유리(원진알미늄), 점토벽돌(웅진) 내부마감재 | THK15흡읍텍스, 화강석, OA Floor, SGP패널, 포세린타일 설계기간 | 2014. 01 ~ 2014. 11 공사기간 | 2015. 01 ~ 2018. 10 사진 | 박인용 전문기술협력 - 구조분야 : 대들보구조 - 기계설비분야 : (주)부윤엔지니어링 - 전기분야 : (주)부윤엔지니어링 - 소방분야 : (주)부윤엔지니어링 |
Apple blossoms Jangsu-gun Office Architect | Lee, Gilhwan_ Gil Architects & Engineers Co., Ltd Client | Korea Nationl JangSu Contry Office Supervisor Supervisor | SamwooSpaceArchtecture Co. ,Ltd Construction | Woong Jin Construction Co. ltd Project team | Choi, MoonKyu / Sul, Heongjin / Kim, Daejin Location | 10, Hobi-ro, Jangsu-eup, Jangsu-gun, Jeollabuk-do, Korea Program | Business facility(Public Building) Site area | 11,255.00㎡ Building area | 4,466.54㎡ Gross floor area | 13,867.50㎡ Building to land ratio | 39.84% Floor area ratio | 84.75% Building scope | B1 - 3F Structure | RC, Steel frame construction Exterior finishing | Clay blick(Red), Zink matal pannel, Roy Laminated Glass Interior finishing | Thk15 Sound absorption, Porcelain tile, O.A floor, Granite, SGP pannel Design period | Jan. 2014 ~ Nov. 2014 Construction period | Jan. 2015 ~ Oct. 2018 Photograph | Park, Inyong Structural engineer | Dedlbo Structure Technical eng. co. Mechanical engineer | Buyoun Eng. co. Electrical engineer | Buyoun Eng. co. Fire engineer | Buyoun Eng. co. |

'회원작품 | Projects > Public' 카테고리의 다른 글
| 평화공원 파라다이스 추모관 2020.2 (0) | 2023.01.10 |
|---|---|
| 남사 도서관 2020.2 (0) | 2023.01.10 |
| 시안추모공원 ‘천의바람’ 2019.11 (0) | 2023.01.06 |
| 화순 만연산 치유의 숲 치유센터 2019.7 (0) | 2022.12.23 |
| 의정부시 종합관광안내소 2019.7 (0) | 2022.12.23 |