2023. 2. 9. 09:08ㆍ아티클 | Article/에세이 | Essay
Building American house

벌써…!
시간을 한참 거슬러 올라간다. 아들이 국내 대학원을 다니다 잠깐 쉬는 동안(?), 국내의 중견기업에서 영업직 근무를 경험하도록 했다. 약 1년을 다니며 스스로 느낀 것이 있던지, 하루는 “아빠, 나 미국 유학하겠습니다!” 하길래 아들의 미래를 생각해 장학금 혜택을 받을 수 있는 대학을 지원해 보라고 하여 아들의 미국 생활이 시작되었다.
미국 교육과정을 마치며… 캔자스 주립대에서 석·박사학위를 받고, 결혼도 하고, 지도 교수를 따라 네브래스카 대학으로 이사도 했으며, 연구원 활동을 하다가 지금의 휴스턴 ‘베일러 의과대학’ 연구직으로 옮겨 지난해 Neuro Scientist 종신교수로 임명을 받게 되었다.


아이들의 생활도 정착 단계이다 보니, 주택을 구매할 겸 많은 현지 ‘오픈 하우스(Open House)’를 방문하며 발품을 팔았다. 그러다가 한 번은 교외의 주택단지가 마음에 든다며 토지를 매입해 집을 짓기로 하였다. 그 과정에서 이제껏 몸담았던 설계와 감리 측면에서 지원을 하려고 생각하여 미국에 주택 한 채를 짓는 일련의 건축 과정을 정리해 보기로 한다.
코로나 이전에는 아들이 사는 곳에 며칠 머물면서 기존 주택의 오픈 하우스를 둘러보며 논의도 했었지만, 코로나19가 심각해지면서 해외여행이 막혀 SNS로 현지에서 아들 내외가 보내온 사진을 보며 통화를 하던 중 유력한 토지를 선정하게 되었다. 물론 몇 개 사이트(Site)의 자료를 비교해 그중 우수한 곳으로 선정하도록 상의를 해가며 결정을 내렸다.





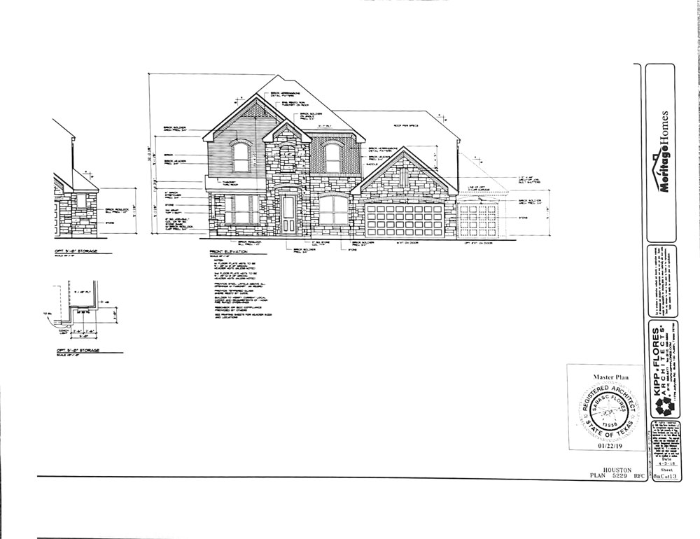
단지화된 빌리지(village) 내 토지로써 단지 디벨로퍼(Developer)와 토지를 계약하고, 디벨로퍼가 추천하는 주택 타입 4~5개의 자료를 전송받아 나름 검토해 조언과 협의를 해가며 Type ‘B’를 선정하기로 했다. 각 타입마다 장단점 그리고 본인들의 취향을 고려하고, 또 향후 매각 시 상품성까지 고려해가며 결정한 타입으로 설계 및 공사계약에 이르렀다.
계약 후 설계도서를 작성하여 시청에 인허가를 득하는 데는 약 8주의 시간이 소요되어 미국 행정업무가 꽤 시간을 요구한다고 보았다. 인허가 승인이 나고도 실제 착공까지 수주일이 지체되기에 상황을 물어보니, 시공사 측에서 자재구입과 공정계획을 한다며 여러 날을 보냈다.
아마도 우리들의 빨리빨리 문화와 서구의 원칙에 입각한 기준에 따른 시간 사이에 ‘사고의 차이’가 있다고 생각했다. 시공사의 수준을 확인하기 위해 아들한테 시공사의 신용도, 실적 등을 물어보니 그 도시에 여러 단지 내의 주택을 지었으며 당시도 바로 건너편에 다른 주택 한 채를 동시에 짓고 있다고 하여 필자가 집을 짓는 동안에 인근 현장과 자주 비교해 가며 공사 진행을 점검하면 보완 및 검토를 할 수 있겠다는 생각을 갖게 되었다.
참고로 휴스턴 지역은 지형이 낮아 비에 침수되는 곳이 다수 있으나, 본 대지는 다행히도 침수지역보다는 레벨이 높아 걱정하지 않아도 된다고 했다. 아시다시피 미국 주택은 2×4 목조 주택이 대세이고, 건축비 규정이며 작업자들이 숙련되어 있기에 현지 시장 상황에 따르도록 하였다. 어떤 때에는 평면 레이아웃(Lay-out)에 수정이 좀 필요해 아들한테 이런 식으로 바꾸면 기능이 좋아질 것이라 조언을 했으나, 시공사와의 Standard DWG으로 이미 계약이 되었기에 시공자가 난색을 표하고 또 생각보다 높은 추가 공사비를 요구하기에 ‘미국식으로 따라가지’ 하며, 계속 공사 진행 상황을 카톡으로 전해 받아 공정률을 지켜보며 틈틈이 조언을 해주었다. 어느 때에는 아들의 강의 스케줄로 현장 확인을 건너뛸 때도 있어 현장의 작업 진행에 관해 조언하는 데 한계가 있기도 하였고, 미국 사회가 코로나19로 심각한 상황이라 현장 확인을 무리하게 요구하기도 어려운 상황도 있었지만 인내하며 잘 진행되기를 기도하면서 지켜봐 왔다.





목조 골격이 세워지고 내부에 전기 배관이 설치된 것을 사진으로 지켜보며 틈틈이 조언을 아끼지 않았으나, 전문가로서 보기에 목조 골격이 경험치에 비해 허술하였기에 역시 미국 시장에서도 경제논리가 우선되어 정통 시공법보다는 목조 골격이 좀 허술하게 세워진다는 것을 피부로 느꼈지만, 걱정을 안기는 소식일 것 같아 아들한테는 차마 말도 못 하고 인근에 짓고 있는 다른 주택의 골조와 비교해 허술함이 없는지를 상대평가하도록 조언을 해주었다. 참고로 필자는 주한 미8군 설계 경험이 많아서 당시에 2×4 목조 건축설계를 많이 경험했다. 필자가 설계했던 목조건물들이 2×4 Standard DWG에 의거한 정통 건축물 설계였다면, 이들 현지 업체는 미국 시장에서 비교적 소규모 건설회사가 경제논리를 우선하여 제작한 설계로 목조 골격이 엉성하게 보이게끔 적용되어 있어 전체적으로 좀 부실해 보이는 것이 경험자로서 무척 아쉬움이 남는다.
외관 공사가 진행되면서는 아들과 며느리가 열심히 여타 건축물을 조사해 재료마감표를 만들어 보내오면, 재료의 특성과 장단점을 조언해주며 본인들의 마음에 드는 입면 재료를 결정하도록 하여 외부 마감도 잘 진행되었다. 소소한 조언이지만, 본인들도 만족해하니 이런 행위에서 상당한 만족감을 얻을 수 있었기에 안심이 되었다.
실내 마감을 하면서 자재 선정(카펫, 타일, 페인트, 주방가구 등)에 틈틈이 조언해 주었고, 당사자들이 좋아하는 의견을 위주로 결정하도록 하니 하나하나 현장에서 완성되어가는 것을 보며 본인들의 주택에 애착이 더 가겠구나 하는 생각이 들었다.




주택의 향이 동서로 배치돼 저녁 햇살로 인한 더위가 걱정되어 강한 햇살을 가릴 수 있는 수목식재를 조언하였으나, 본 주택단지의 방침이 주택 전면에 나무가 집을 가리는 것을 허락지 않는다는 규정이라 하길래 오후의 석양빛을 어떻게 막아줄지를 고민하고 있는 중이다. 또한 넓은 잔디밭은 물끄러미 보기에는 좋으나 실제로 살아가며 잔디관리를 하려면 힘든 일이라서 입주 후 잔디관리와 주거의 조화를 어떻게 함이 현실적으로 현명할지를 고민하게 한다.
상기 현장의 작업자들을 보니 대부분이 멕시코 이민자들로 구성되었다고 했다. 외부 공사가 마무리될 즈음에 잔디를 입히는데, 아들 내외가 조그마한 맥주파티를 해주었더니 그 다음날까지 넒은 잔디밭을 재빠르게 덮어놓았다고 했다. 그곳도 작업자에게 조그만 선심공세를 하니 진도가 훨씬 빠르게 나가더라고 한다.
작업의 각 공정마다 주요한 체크리스트(check list)를 보내주며 확인하도록 하였고, 아들도 틈틈이 현장에 나가 확인하는 번거로움을 아끼지 않았다.


이렇게 지난겨울부터 시작해 이제 7월 중순쯤이 되니 주택 한 채 탄생 과정의 마무리가 끝나가고 있다. 원래 계약했던 날짜보다는 약 1개월 늦게 준공을 보게 되었기에, 공사 지연에 따른 지체보상금보다는 현장의 책임자에게 석양빛을 가릴 수 있는 나무 몇 그루를 심어달라고 협상하도록 조언했다. 또 곧 입주를 하면 그동안 놓쳤던 하자나 마감 처리가 되지 않은 부분이 차차 발견될 것이기에, 이런 하자에 따른 보수공사 요구를 원만하게 처리할 방법을 고민하고 있다. 작업자와 다투지 않고 입주해 살아가며 불편 없이, 그리고 행복하게 살 수 있는 상생의 방안을 마련하기 위해서….

끝으로, 머나먼 미국에서 대학교수로 부임 받고 꿈에 그리던 아담한 주택을 짓고 곧 입주하는 아들 현택, 며느리 유진, 귀여운 손녀 라엘이 모두가 새 집에서 행복하게 그리고 건강하게 잘 살기를 서울에 있는 우리 부부는 두 손 모아 기원한다.
글. 오근석 Oh, Kunsuk (주)유진인터내셔날 종합건축사사무소

오근석 (주)유진인터내셔날 종합건축사사무소·건축사
한양대학교 건축공학과를 졸업하고 아도무 건축사사무소, 주한미8군 설계실, 종합건축사사무소 담을 거쳐 현재 유진 인터내셔날 종합건축사사무소를 공동운영하고 있다. 약 10 여 년간 대한건축사협회 이사 및 위원회 위원으로서 활동을 했다. 1999년 대한건축사협회 회관 설계공모에 당선되어 현 재의 협회 회관을 설계하였고, 2002년 산업자원부 장관 표 창, 환경부장관 표창을 수여받은 바 있다. 최근 IT산업의 메 카인 구로디지털 산업단지 내 지식산업센터 설계를 수행했 다. 대표작으로는 에이스 하이엔드타워, 군산자유무역지역 청사 표준형 공장, 대불자유무역지역청사 표준형 공장, 개 성 Kicox 지식산업센터 및 주한 미 8군 사령부, Shopping Center, Army Barracks, WareHouse 등이 있다. 최근에 는 중규모 개발사업을 공동으로 이끌어가고 있다.
'아티클 | Article > 에세이 | Essay' 카테고리의 다른 글
| 메신저 2021.12 (0) | 2023.02.14 |
|---|---|
| 건축사(Architect)로 산다는 것은 2021.11 (0) | 2023.02.13 |
| 복도, 그 아련한 시작과 끝 2021.8 (0) | 2023.02.08 |
| 건축물의 활력소 ‘계단’ 2021.6 (0) | 2023.02.06 |
| 불씨 2021.5 (0) | 2023.02.03 |