2023. 2. 16. 09:14ㆍ회원작품 | Projects/Neighborhood Facility
DE COLABO

SITE
활력 있는 망원시장의 메인 줄기 곁에 있는 대지이다. 오랜 세월 다양한 삶의 궤적들이 축적된 도시조직 안에 새로운 숨결로 깊고 견고한 뿌리를 내리게 하기 위해 디자인하였다. 인근에는 다가구와 다세대 주택의 생활권이 존재하고, 선형의 망원시장 허리춤의 진입부 바로 옆이기에 밀도 있는 유동인구의 흐름을 받아줄 수 있는 대지이다. 그만큼 인지성이 높은 대지이며, 관문의 기수로서 역할할 수 있고, 이정표로서 자리할 수 있는 가치 있는 대지이다.
PROGRAM and SPACE
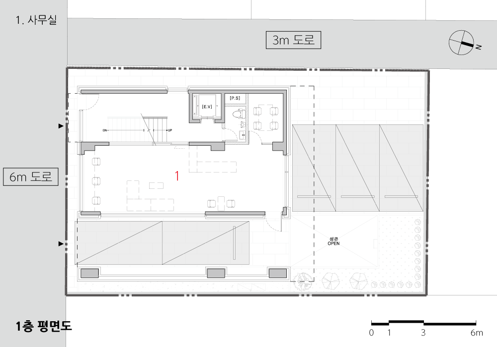
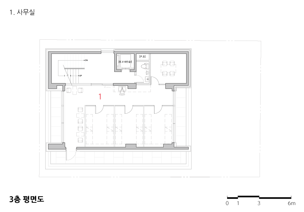
본 건물에 담긴 프로그램은 디자인 공유 오피스이다. 사회적 현상으로서의 여러 공유오피스들 중 디자이너들만을 위해 특화된 공유오피스는 유례가 없었다. 다양한 층위의 디자이너들이 모여서 함께 소통하고 협력하여, 창발적인 창작 활동을 통해 강한 시너지 효과를 내기 위한 여백의 공간이다. 공간이 사고와 감정의 다양한 면모를 담아내고, 젊은 디자이너들의 다양한 역학관계를 통하여 창의적인 가치들을 발아시킬 수 있는 캔버스를 만들어 주기 위해 곳곳에 자유로이 확장할 수 있는 공간들을 구성하였다. 지하층에서는 다양한 유니버설 프로그램들을 수용할 수 있기 때문에 숨 쉴 수 있는 경로로서 썬큰 정원을 마련하였고, 지상에서는 전후면과 측면 곳곳에 외부공간을 마련하였다. 그러한 공간에서 디자이너들이 자유로이 사고를 전개하고, 창의적인 작업들을 해나갔으면 하는 바람을 가져본다. 지하 1층부터 3층까지 디자이너들의 양적·질적 구성의 변수들을 수용하기 위한 여러 스케일의 사무공간과 회의공간, 여유공간들을 구성하였다.
MATERIAL
인근 건물은 대부분이 1980~1990년대에 지어진 건물들이다. 노후도가 높고, 채도가 낮은 회색도시이다. 시장이라는 프로그램의 성격상 도시인들의 패턴의 활력은 있지만, 도시 하드웨어의 시각·지각적인 활력요소는 존재하지 않는다. 그러한 맥락을 고려하여 흔히 쓰이지 않는 자주색 수제벽돌을 외장 주재료로 사용하여 도시의 채도를 고양시키고자 하였고, 좁은 도로에서 매스의 육중함을 덜어주기 위해 3층 부위를 분할하여 백색의 엔지니어 스톤으로 마감하였다. 그리하여 두 개 층씩 분절하여 거리 스케일에 어울리는 시지각적 양감의 밸런스를 구현하려 하였다.
건축주는 오랜 시간 디자이너로서 살아오며, 디자이너들에게 필요한 공간과 시설, 삶의 패턴에서 어떠한 것이 중요한 가치인가에 대한 깊고 밀도 있는 연구를 해왔고, 2년이 넘는 시간 동안 끊임없는 상호 교감을 통해 오늘의 결과물을 도출하기에 이르렀다. 이 공간을 기점으로 디자이너들의 창의적 사고와 감성이 도시 속에 자연스레 젖어들고, 망원동의 자생적인 여러 가치들과 상호작용하여 더욱 의미 있는 도시문화적 현상으로 발아될 수 있기를 기대해 본다.

SITE
It is a site next to the main area of the lively Mangwon Market. The design is deeply and strongly rooted as a new breath in an urban system, where various life trajectories have been accumulated over the years. There is a living zone for multi-family and multi-unit houses in the vicinity. This site can accommodate a dense floating population because it is right next to the central area of the linear Mangwon Market entrance. Therefore, it is a highly recognizable land, valuable as a gatekeeper and a milestone.
PROGRAM and SPACE
The main program is a shared office for designers. There was no such thing as a shared office specialized only for designers among many shared offices built as a social phenomenon. It is a blank space for different designers to gather, communicate and collaborate to generate a significant synergy effect through creative activities. Spaces are designed to freely expand to capture various aspects of thinking and emotions while making a canvas that creates creative values through the diverse dynamics of young designers. Since it can accommodate a variety of universal programs on the basement floor, a sunken garden is provided as a breathing path. On the ground floor, outdoor spaces are provided on the front, the back, and the sides. We hope that designers can freely develop their thoughts and do creative work in these spaces. From the first basement floor to the third floor, different scales of office space, conference space, and extra space are designed to accommodate the designers' quantitative and qualitative composition variables.
MATERIAL
Most of the nearby buildings were built in the 1980s and the 1990s. It is a gray city with high deterioration and low chroma. Due to the nature of the market program, there is vitality in the patterns of urban people, but there is no visual and perceptual vitality factor in urban hardware. Considering that context, we intended to raise the city's chroma by using purple handmade bricks, which are rarely used, as the primary material for the exterior. In addition, the 3rd-floor area was divided and finished with white engineered stone to relieve the weight of the mass on the narrow road. So we tried to realize a balance of visual and perceptual volume suitable for the distance scale by dividing it into every two layers.
The client has been living as a designer for a long time and has done in-depth research on necessary spaces and facilities for designers. What values are essential in life patterns, which eventually brings the client to today due to his constant interaction for more than two years. With this space as a starting point, we hope that designers' creative thinking and sensibility will naturally permeate the city and develop into a more meaningful urban cultural phenomenon while interacting with many spontaneous values of Mangwon-dong.







| 디콜라보 설계자 | 이근식 _ (주)엘케이에스에이 건축사사무소 건축주 | 고강민 감리자 | 이근식 _ (주)엘케이에스에이 건축사사무소 시공사 | 디에이치종합건설 주식회사 설계팀 | 조승욱, 조명선 대지위치 | 서울특별시 마포구 망원동 주요용도 | 근린생활시설 & 다가구주택 대지면적 | 263.70㎡ 건축면적 | 137.27㎡ 연면적 | 647.90㎡ 건폐율 | 52.06% 용적률 | 189.51% 규모 | 지하 1층 - 지상 5층 구조 | 철근콘크리트구조 외부마감재 | 치장벽돌, 세라믹타일 내부마감재 | 페인트, 노출콘크리트 설계기간 | 2019. 08 – 2020. 04 공사기간 | 2020. 05 - 2021. 10 사진 | 구의진 전문기술협력 - 구조분야 : 옵티마엔지니어링 - 기계설비분야 : 주신MEC - 전기분야 : 엘림전설 - 소방분야 : 주신MEC / 엘림전설 |
DE COLABO Architect | Lee, Keunsik _ LEE KEUN SIK Architects Client | Ko, Kangmin Supervisor | Lee, Keunsik _ LEE KEUN SIK Architects Construction | Dream History Construction Project team | Jo, Seungwook / Jo, Myeongseon Location | Mangwon-dong, Mapo-gu, Seongnam-si, Seoul Program | Neighborhood facility & Multifamily house Site area | 263.70㎡ Building area | 137.27㎡ Gross floor area | 647.90㎡ Building to land ratio | 52.06% Floor area ratio | 189.51% Building scope | B1F - 5F Structure | RC Exterior finishing | Brick, Ceramic tile Interior finishing | Paint, Exposed concrete Design period | Aug. 2019 – Apr. 2020 Construction period | May 2020 - Oct. 2021 Photograph | Gu, Uijin Structural engineer | Optima Engineering Mechanical engineer | JUSIN MEC Electrical engineer | ELLIM Fire engineer | JUSIN / ELLIM |

'회원작품 | Projects > Neighborhood Facility' 카테고리의 다른 글
| 은행나무(誾烆娜廡) 2023.2 (0) | 2023.02.17 |
|---|---|
| cafe trigo 2022.3 (0) | 2023.02.17 |
| 황학동 h.2153 2022.1 (0) | 2023.02.15 |
| 빌딩B 2022.1 (0) | 2023.02.15 |
| 비나채 2021.11 (0) | 2023.02.13 |