2023. 2. 15. 09:18ㆍ회원작품 | Projects/Neighborhood Facility
BLDG.B

택지 개발 지구의 대지에 상가주택을 짓는 프로젝트이다.
블록의 모서리에 위치한 대지는 조형적으로 부각이 되는 매스의 형태를 계획하는 당위를 제공하였다. 붉은 벽돌이 갖는 강인한 채도의 상부 매스에 상대적인 부유감을 고양시키기 위해서 1층 부에 밝은 화강석을 배치하였다. 개구부의 창대와 인방은 포디움과 같은 화강석을 사용하여, 입면에 활기 있는 리듬을 부여하려고 하였다. 적벽돌과 화강석의 조합이 자아내는 안정적이면서도 생동감 있는 풍경을 만들고자 하였다. 그리고 가각된 평면적 모서리와 경사지붕의 수직적 변위를 조합하여, 마치 붉은 보석처럼 다각 다면체의 형상을 만들고자 하였다.
택지 개발 지구라는 일정의 획일된 법규들이 태생적으로 내재된 대지이지만, 계획된 공간 안에서 다채로운 삶의 이야기들이 풍요로운 향기를 내뿜으며 펼쳐지기를 기도해 본다.

It is a project building income property on the land of the housing site development district.
The land at the corner of the block gave reason for planning the shape of a mass that emerged in form. Bright granite was placed on the first floor to enhance the relative sense of richness on the upper solid mass of the red brick. We used the same granite on the podium for the window sill and lintel of the opening to give a lively rhythm to the façade. We tried to make a stable but vivid scene through the combination of red brick and granite. In addition, we intended to form a polygonal polyhedron like a red jewel, combining a flat cut edge and a vertical displacement of a pitched roof.
Although it is a land with an inherent limitation that it is located in a housing site development district, we hope to unravel diverse stories of lives with a rich scent.







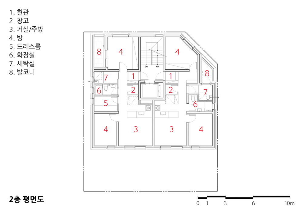
| 빌딩B 설계자 | 이근식 _ (주)엘케이에스에이 건축사사무소 건축주 | 백명진 감리자 | 이근식 _ (주)엘케이에스에이 건축사사무소 시공사 | (주)떼오하우스종합건설 설계팀 | 김성주, 조승욱, 배춘근 대지위치 | 경기도 성남시 수정구 고등동 주요용도 | 근린생활시설 & 다가구주택 대지면적 | 251.30㎡ 건축면적 | 149.17㎡ 연면적 | 401.81㎡ 건폐율 | 59.36% 용적률 | 159.89% 규모 | 지상 4층 구조 | 철근콘크리트구조 외부마감재 | 치장벽돌, 사비석 내부마감재 | 페인트, 실크벽지 설계기간 | 2019. 11 - 2020. 04 공사기간 | 2020. 06 - 2021. 08 사진 | 구의진 구조분야 : 라임구조 기계설비분야 : 주신MEC 전기분야 : 엘림전설 소방분야 : 주신MEC / 엘림전설 |
BLDG.B Architect | Lee, Keunsik _ LEE KEUN SIK Architects Client | Baek, Myungjin Supervisor | Lee, Keunsik _ LEE KEUN SIK Architects Construction | TOHAUS Architecture Interior Design Project team | Kim, Sungjoo / Jo, Seungwook / Bae, Chungeun Location | Cheonggyesan-ro 3-gil, Sujeong-gu, Seongnam-si, Gyeonggi-do, Korea Program | Neighborhood facility & Multifamily house Site area | 251.30㎡ Building area | 149.17㎡ Gross floor area | 401.81㎡ Building to land ratio | 59.36% Floor area ratio | 159.89% Building scope | 4F Structure | RC Exterior finishing | Brick, Stone Interior finishing | Paint, Silk wallpape Design period | Nov. 2019 - Apr. 2020 Construction period | Jun. 2020 - Aug. 2021 Photograph | Gu, Uijin Structural engineer | LAIM Mechanical engineer | JUSIN MEC Electrical engineer | ELLIM Fire engineer | JUSIN MEC / ELLIM |
'회원작품 | Projects > Neighborhood Facility' 카테고리의 다른 글
| 디콜라보 2022.2 (0) | 2023.02.16 |
|---|---|
| 황학동 h.2153 2022.1 (0) | 2023.02.15 |
| 비나채 2021.11 (0) | 2023.02.13 |
| 인왕3분초-숲속쉼터 2021.10 (0) | 2023.02.10 |
| 오조리-빌레꼿 2021.10 (0) | 2023.02.10 |
