2023. 2. 13. 09:15ㆍ회원작품 | Projects/Neighborhood Facility
Vinacha

비우고 나누고 채우다
새로운 주택을 지으면서 건축을 통해 진정한 시월드(?)를 구축하려는 의뢰인이 찾아왔었다. 아직 건강하고 활동량이 많으신 시아버지와, 남편과 어린 아들을 둔 건축주 가족, 그리고 남편의 누나인 시누이 가족들이 함께 살 집을 지어야 한다고 했다. 대한민국 사회에서 출가한 며느리가 시댁 식구들과 함께 살 다가구 주택을 짓는다는 것은 정말 흔치 않은 일이기에 호기심이 발동하였다. 집이 지어질 곳은 남편이 나고 자란 곳이자 남편의 추억이 담겨 있는 곳이었다. 집터는 시부모님이 정착하여 오랜 시간을 지내던 동네가 시에서 추진하는 산업단지조성으로 인해 기존의 원주민들이 이주할 곳으로 마련된 새로운 택지였다. 1층은 상가를 둘 수 있는 여건으로, 건축주는 인접한 큰 도로변에 직접 작은 카페를 운영할 수 있는 상가 공간을 두기를 바랐다. 건축주는 집을 짓고자 마음먹고 개인적으로 다양한 정보를 수집했던 것 같았다. 함께 여러 가족이 살아야 하는 다가구주택임에도 각 세대별로 집 내부에서 단독주택의 풍취를 가지고 싶어 했다. 서로가 조금씩 양보하면서 집을 짓는다면 가능할 거라고 생각한 것 같았다. 집의 이름이 ‘비나채’인 이유는 ‘비우고 나누고 채운다’는 의미를 담은 말을 줄인 것이다. 이 콘셉트는 주변의 다른 필지에 지어지는 집들과 차이를 둘 수 있는 큰 원동력이 되었다. 대부분 법이 허용하는 최대의 가구 수와 상가를 두고 임대소득을 최대로 하고자 하는 욕구로 인해 집의 형태나 주거환경이 제약을 받을 수밖에 없는 다른 집들과 다를 수 있었기 때문에 이 단지에서 가장 독특한 집이 될 수 있었던 것 같았다. 이 집에서는 각자의 주거환경을 유지하면서도 기회가 될 때마다 층을 옮겨 다니면서 가족식사 자리나 모임을 갖는다고 한다. 설계하는 과정도, 집을 짓는 과정도 즐거웠고, 입주 후의 삶도 행복할 것이라는 건축주는 집을 지어준 관계자들과 한자리에서 식사할 수 있는 날이 오기를 기다리고 있다.
편견에 맞서다
한국 여성에게 ‘시댁’은 쉽게 좁혀지지 않는 간극이다. 가족이라는 한 울타리에 있지만 보이지 않는 위계와 형식이 서로를 밀어내기 때문이다. 건축주 부부는 대지면적 329제곱미터(100평)에 ‘시’ 자만 들어가도 질색하는 우리 사회의 편견을 깰 수 있는 작업을 의뢰하였다. 1층에는 홀로된 시아버지가, 2층에는 며느리 부부 가족이, 3층에는 시누이 부부와 조카가 사는 보기 드문 현대판 ‘시월드’다. ‘부담 주는 건 딱 싫다’는 시아버지를 설득하였고, ‘불편하고 힘들다’며 고민하던 시누이의 손을 잡았다. 건축주는 “책임감이나 부담감에 같이 살자고 했다면 하루도 못 살았겠지만, 가족들이 모인 복작복작한 삶을 원해서 함께 모여살기로 했다”고 하였다.
층마다 마당, 세 채 같은 한 채
건축주는 설계를 의뢰하면서 구체적인 집의 형태보다는 꿈꾸는 삶의 풍경을 빼곡하게 적어 냈다. ‘이웃에 위세 부리지 않고 주변을 비웃지 않는 집’, ‘아이가 햇빛에 달궈진 마당의 돌을 맨발로 밟으면서 뛰노는 집’, ‘아버님이 일군 밭에서 딴 오이와 고추를 다듬을 작은 수돗가’, ‘동네 아이들이 놀다 가는 집’, ‘가족만을 위한 것이 아닌 명절, 모임 등을 위한 주방’, ‘아버님과 앉아 멸치를 다듬으며 이런저런 이야기를 나눌 툇마루’ 등 가족들이 사는 삶의 모습이 머릿속에 떠오르게 만드는 문장들로 집에 대한 그림을 그려주었다. 집이 지어질 택지는 지구단위계획구역으로서 3층 이하의 층수제한이 있었고, 다가구주택 전용택지이기 때문에 앞으로 지어질 집들의 규모와 그 밀도가 예측이 되었다. 보통 다가구주택들은 가구 수를 최대로 늘려 임대수익을 높이려는 목적성을 갖기 때문이다. 하지만 건축주가 요청한 집은 임대수익이 목적이 아니기 때문에 우리는 최대한 공간을 비워낼 수 있었다. 건축주가 그려준 집에 대한 이야기로 볼 때, 다가구주택이지만 단독주택에서나 느낄 수 있는 집을 원했기 때문에 많은 부분을 비워내야 했다. 물리적인 덩어리를 비워내고 그 자리에 다양한 삶의 방식이 채워질 수 있도록 하는 것이 계획의 중요한 포인트였다. 주변에 집들이 채워지더라도 채광에 방해되지 않게 배치하고, 세 가구가 각자의 집에서 단독주택의 정취를 느낄 수 있게 하기 위해 층마다 마당을 두었다. 최대의 용적률, 최대의 가구 수를 만들기 위해 지어지는 일반적인 다가구주택의 네모반듯한 집과는 달리 주택가에 숨통을 틔우듯 군데군데 비운 비정형의 집을 계획할 수 있었다. 외부에서 출입이 되는 출입구는 3개다. 팔순의 시아버지가 머무는 1층과 자녀들이 수시로 오가는 2, 3층의 동선을 분리하여, 다가구주택이지만 단독주택의 접근 방식을 따를 수 있게 하기 위해서이다. 건축주 부부와 아들이 사는 2층과 시누이 부부와 조카가 사는 3층도 마당을 가로지르지 않는 외부 계단으로 이어지기 때문에 서로의 출입에 영향을 받지 않는다. 하나의 출입구에서 하나의 계단을 따라 각자 현관으로 연결되는 다가구주택은 사생활을 보호받기 어렵기 때문에 아예 출입구를 달리해서 외부 계단을 통해 집으로 들어갈 수 있게 제안하였다. 그래서 층마다 각각 세 개의 마당이 생겨났다. 1층 담장 역할을 하는 긴 슬라이딩 목재문을 열면 주차장 겸 마당이 나온다. 시아버지의 집 거실 앞에 툇마루를 내 마당과 연결했다. 활동적인 가족들이 사는 2층 마당엔 잔디를 깔았다. 아이는 마당에 텐트를 치고, 공놀이를 한다. 때로는 다 같이 모여 김장도 하고 빨래도 널어놓는다. 3층은 집 내부를 통해 나가는 사적인 베란다를 두었다. 하나의 마당을 공유하기보다 각자의 생활 방식에 맞춘 세 개의 마당을 만듦으로써 한 채의 집안에 독립된 세 채를 짓고자 하였다.
달라진 공간, 풍성해진 삶
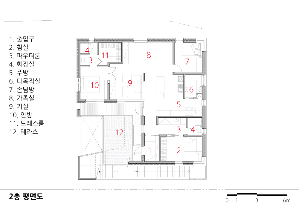
층마다의 내부 구조와 규모도 각 구성원의 생활 방식과 채광, 환기 등에 따라 달리했다. 팔순인 시아버지가 홀로 지내는 1층은 작지만 알차다. 거실과 주방, 방을 일렬로 배치해 동선을 단순하게 만들었다. 집의 중심 공간은 건축주 부부 가족이 생활하는 2층이다. 세 가구가 한데 모일 수 있게 주방을 크게 만들었다. 거실보다 더 넓다. 집을 지으면서 의뢰인이 가장 신경 쓴 공간이다. 한 집에 산다는 것은 자주 모여서 함께 밥을 먹고 시간을 보내는 것이기 때문에, 사소한 일에도 자주 모여서 파티를 열기를 원했다. 2층 주방은 온 가족들을 한자리에 모이게 하는 집의 중심이다. 거실 한편의 평상 같은 공간, 외부 시선을 가리면서 햇빛이 온종일 은은하게 들어오도록 하는 창, 잔디마당 등은 2층에서만 누릴 수 있다. 아이는 평상에서 거실을 지나 마당으로 내달린다. 기존에 살았던 아파트에는 없는 공간들이 생겨났고, 층간 소음 때문에 친구들 데려오기를 꺼렸던 아이가 이젠 마음껏 친구들과 뛰놀 수 있게 되었다. 건축주가 처음에 원했던 것처럼 마당이 있으니 김장을 할 수 있게 됐고, 밭에서 가꾼 농작물을 말리기도 하고 다양한 활동을 할 수 있게 됐다.
배치가 만들어낸 공간, 그리고 집의 모양
2, 3층의 가장 큰 차이는 방향이다. 서남향인 집에서 2층은 좀 더 동쪽으로, 3층은 좀 더 서쪽으로 배치됐다. 방향이 살짝 틀어진 덕에 풍성한 외부공간을 만들 수 있었고, 집에서 밖을 보는 풍경도 완전히 다르다. 같은 구조로 층층이 쌓아 올려 층마다 앞뒤로 비슷한 풍경을 보여주는 아파트와의 차이다. 방이 두 개인 3층에는 박공 모양의 다락을 두고, 천창을 냈다. 공간이 달라지면서 삶도 바뀌었다. 이전엔 명절이나 생신 등 특별한 날 만나 식사하고 헤어지곤 했지만, 한집에 살면 함께하는 시간이 많이 늘어날 수밖에 없다. 건축주는 “사람들이 모이는 게 불편했다면 모여 사는 게 싫었겠지만, 사람들이 복작거리면서 사는 게 좋았다”고 했다. 집의 이름은 ‘비나채’다. ‘비우고 나누고 채운다’는 의미로 독실한 크리스천인 건축주가 직접 지었다. 집 이름의 뜻을 물었을 때 건축주는 다음과 같이 말했다.
“집을 지으면서 욕심이 많았지만 가족을 위해 비웠고, 집을 통해 주변과 나누고 싶었고, 비우고 나눔으로써 얻어지는 행복에 감사함으로 집을 채운다는 의미를 담았어요.”

Empty, share and fill
A client who wants to establish the actual world of her husband’s family through architecture by building a new house visited. The client said the house for the father-in-law who is still healthy and active, and the building owner family of husband and young son and the sister in law’s family to live should be built. It is not common for the daughter-in-law to build a multi-household house to live with the husband’s family, which stimulated my curiosity. The place where the house will be built is a place where the husband was born and grown, and the husband’s memory is contained. The target site is a new site that existing residents of the old village where the parents settled down and lived a long time will be moved due to an industrial complex project by the city. 1st floor has the condition of building the store, and the building owner desired to own the store space, which can operate a small cafe on the adjacent big roadside. It seems the building owner collected various information after deciding on the building construction. The client wanted to have the detached house by each household despite a multi-household place where many families live together. It seems that it would be possible if they conceded a little to each other. The house is named “Binachae” because of the abbreviation of words meaning ‘empty, share, and fill.’ This concept functions as the significant driving force which can differentiate this building from other houses built nearby. It seems this building can be the unique house in this complex because it may differ from other houses of which shape and residential environment are inevitably restricted due to the desire to maximize rental income based on the maximum number of households and stores allowed by law. It is said that each family moves between the floor and has dinner and meeting whenever they have chances while maintaining their residential environment. The building owner said she was happy during the building and will be happy after moving in. She is looking forward to the day when she can have dinner with the related persons in a place.
Fight against the prejudice
‘Family in law’ is a gap that cannot be easily narrowed for Korean women. That’s because the invisible Hierarchy and formality push each other even if they are in a family fence. In the site area 329 m2 (100 pyeong), the building owner couple requested the work that can break the prejudice of our society in which people hate when a single word of ‘family in law’ is involved. It is a rare modern version of a family in law where a single father-in-law lives on the first floor, a daughter-in-law couple lives on the second floor, and a sister-in-law couple and nephew live on the third floor. She persuaded her father-in-law, saying, “I don’t want to put pressure on others,” and held his sister-in-law’s hand, who was worried, saying, “It’s uncomfortable and difficult.” Finally, the building owner said, “If I had asked to live together under responsibility or pressure, I would not have lived a day, but I wanted a crowded life with my family, so I decided to live together.”
Yard on the each floor, a building like 3 buildings
The building owner listed the scenery of dreaming life in detail rather than the specific shape when requesting the design. She depicted the image of the house with the sentence that reminds the look of life, such as “A house that doesn’t give influence to neighbors and laughs at the surroundings,” “A house where a child plays barefoot on stones in the sun-heated yard,” “A small tap where his father trims cucumbers and peppers,” “A house where children play,” “A kitchen for holidays, gatherings," and “Toetmaru that can share this or that talk while trimming anchovy with father." The site in which the house will be built is subject to the floor number restriction to 3rd floor or less due to district unit planning zone, and it is a multi-household dedicated site, so the scale and the density of future housing can be estimated. In general, the multi-household house aims to maximize the rental profit by expanding the numbers of a householder. However, the house requested by the client doesn’t aim at the rental income. We can empty the maximum space. When considering the story depicted by the building owner, she wanted to feel detached house. We should empty many things. The important point of the plan is to empty physical mass but fill the various lifestyles in it. It is arranged so that it doesn’t interfere with lighting even if the surrounding houses are filled, and the yard is set up on each floor so that three households can feel the atmosphere of detached houses in their respective homes. Unlike square houses in typical multi-family houses built to create the maximum floor area ratio and the maximum number of households, I planned out non-typical houses partially emptied as if they were breathing in the residential area. The entrances approached externally are 3. The 1st floor, where the father in his 80s stays, and the 2nd and 3rd floor, where children frequently come and go, are separated, which follows the approach method of the detached house even if it is a multi-household housing. Because the 2nd floor where the building owner couple stays and the 3rd floor where sister in law’s couple and nephew don’t cross the yard but lead to the external stairs, not influencing the access of each other. Because the multi-household housing in which one entrance is connected to each porch along with a stair can’t protect the privacy, it proposes to enter the house through external stair by separating the entrance from the beginning. So, three yards were created on each floor. You can see the parking lot and yard when you open the long sliding wooden door that acts as a fence on the first floor. Totmaru in front of my father-in-law’s living room is connected with my yard. The second-floor yard, where active families live, is covered with grass. The child pitches a tent in the yard and plays ball. Sometimes we all gather together to make kimchi and hang laundry. The third floor has a private veranda that leads out through the interior of the house. Rather than sharing one yard, I tried to build three separate yards in one house by making three yards tailored to each person’s lifestyle.
A different space, a richer life.
The internal structure and scale of each floor also differed depending on each member's lifestyle, lighting, and ventilation. The first floor, where the 80th-old father-in-law lives alone, is small but fruitful. The living room, kitchen, and room were arranged in a row to simplify the movement. The central space of the house is the second floor, where the family of the owner couple lives. The kitchen was made large so that three households could gather together. It's broader than the living room. It is the space that the client paid the most attention to while building the house. Since living in a house is to gather often, eat together, and spend time together, she wanted to gather often and have a party even in trivial matters. The kitchen on the second floor is the center of the house that brings the whole family together. The space-like flat bench on the side of the living room, the window, and the lawn yard covering the outside gaze and letting the sunlight come all day long can be enjoyed only on the second floor. The child usually runs through the flat bench and into the yard. There were spaces not found in the existing apartments, and the child who was reluctant to bring friends because of the noise between the floors could now play with his friends. As the owner wanted at first, there was a yard, so she could make kimchi and dry the crops and do various activities.
The space created by the layout and the shape of the house.
The most significant difference between the second and third floors is the direction. From the southwest house, the second floor was placed more eastward, and the third floor was placed more westward. Due to the slight change in direction, I created a rich outer space, and the scenery from home is completely different. It is the difference from apartments stacked in the same structure and showing similar scenery front and back on each floor. A gable attic was placed on the third floor with two rooms, and a ceiling was built. Life changed as space changed. Previously, they used to meet on special days such as holidays and birthdays, eat and leave, but living in one house will inevitably increase our time together. The building owner said, “If it were uncomfortable for people to gather, I wouldn’t want to live together, but it was good for people to live in a crowded way. “ The house’s name is ‘Binachae.’ It means ‘empty, share and fill,’ and named by the building owner who is a sincere Christian she was asked the meaning of the name, the building owner said like this. “I was greedy when building the house, but I emptied it for family, and the meaning of the name is about filling the house with gratitude for the happiness obtained by emptying, sharing with people around us through the house.







| 비나채 설계자 | 조한준_ (주)조한준 건축사사무소 건축주 | 최영옥, 박상택 시공사 | (주)시스홈종합건설 대지위치 | 경기도 시흥시 매화마을1길 13 주요용도 | 제1종근린생활시설 대지면적 | 329.00㎡ 건축면적 | 196.56㎡ 연면적 | 424.49㎡ 건폐율 | 59.74% 용적률 | 109.27% 규모 | 지상 3층 구조 | 철근콘크리트라멘조 + 벽식구조 외부마감재 | 지붕 _ 외단열+리얼징크 / 외벽 _ 적고벽돌(브리코) / 데크 _ 방킬라이 천연데크재 내부마감재 | 천장 _ 석고보드위 도장 / 내벽 _ 석고보드+도장, 노출콘크리트 표면 연출 마감 / 바닥 _ 2층 원목마루(지복득마루) / 그 외 합판마루 설계기간 | 2018. 11 – 2019. 03 공사기간 | 2019. 04 – 2019. 12 사진 | 노경 |
Vinacha Architect | Jo, Hanjun_ JoHanjun Architects Client | Choi, Youngok / Park, Sangtaek Construction | SYSHOME Construction Location | 13, Maehwamaeul 1-gil, Siheung-si, Gyeonggi-do, Korea Program | Commercial Facilities, Single Family House Site area | 329.00㎡ Building area | 196.56㎡ Gross floor area | 424.49㎡ Building to land ratio | 59.74% Floor area ratio | 109.27% Building scope | 3F Structure | RC Exterior finishing | Real zinc, Red Brick, Bangkirai natural deck Interior finishing | Painting finish above gypsum board, Exposed concrete, Wood flooring, Birch plywood Design period | Nov. 2018 – Mar. 2019 Construction period | Apr. 2019 – Dec. 2019 Photograph | Rohspace |
'회원작품 | Projects > Neighborhood Facility' 카테고리의 다른 글
| 황학동 h.2153 2022.1 (0) | 2023.02.15 |
|---|---|
| 빌딩B 2022.1 (0) | 2023.02.15 |
| 인왕3분초-숲속쉼터 2021.10 (0) | 2023.02.10 |
| 오조리-빌레꼿 2021.10 (0) | 2023.02.10 |
| 수연목서(修硏木書) 2021.9 (0) | 2023.02.09 |
