2022. 11. 2. 13:16ㆍ회원작품 | Projects/Office
Janka Dream Tower Knowledge Industry Center

잔카 드림타워_‘나의 발걸음이 역사가 된다’
서울 가산디지털단지는 다양한 지식산업센터가 즐비한, 이른바 국내 최대 IT 벤처기업의 중심지이다. 그 가운데 ‘잔카 드림타워’의 대지는 가산디지털단지에서도 접근성과 지리적 상징성을 갖추고 있는 곳이다. 유동 인구와 배후 수요가 많은 디지털단지의 이점과 금천구를 따라 흐르는 안양천과 서부간선도로를 마주하고 있어 도시뷰와 자연뷰 모두 가능한 최적의 대지다. 이러한 대지에서 우리는 흔한 지식산업센터의 개념에서 벗어나, ‘잔카’라는 기업의 이미지를 한눈에 알아볼 수 있는 유니크함을 콘셉트로 프로젝트에 임했다.
‘잔카’는 고대 페르시아인들이 신던 장화를 일컫는 단어로, 고대 신발의 기원에서 의미를 가져와 ‘나의 발걸음이 역사가 된다’는 기업이념으로 설립했다. 우리는 이러한 기업이념에서 잔카의 아이덴티티를 표현하고자, 신발의 기본이 되는 밑창을 디자인 요소로 활용했다. 건축물 외부는 전부 커튼월로 선정했고, 커튼월 위로 멀리언과 일체형인 수직 루버를 반영하여 자칫 단순할 수 있는 외부 입면 디자인에 ‘잔카’만의 도전적이고 진취적인 상징성을 부여했다. 특히, 서측으로 서부간선도로를 따라 흐르는 안양천의 조망과 도로에서 바라보는 잔카 드림타워의 독특한 디자인은, 대중들로 하여금 시선을 고정시켜 ‘잔카’의 상징적인 요소가 될 것이다.
용적률을 고려해 건축물의 규모는 총 15개 층으로 주위에 비해 비교적 낮은 층수지만, 수평적인 요소를 저층부에 적용하여 안정감을 부여했다. 4층부터 시작되는 수직적인 요소는 강조하되, 위로 갈수록 수평적인 요소와 조화롭게 이루어져 입주자들의 프라이버시와 건축물의 상징성 강조라는 목적성을 달성할 수 있었다.
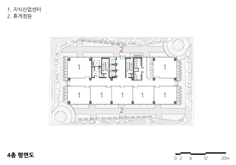
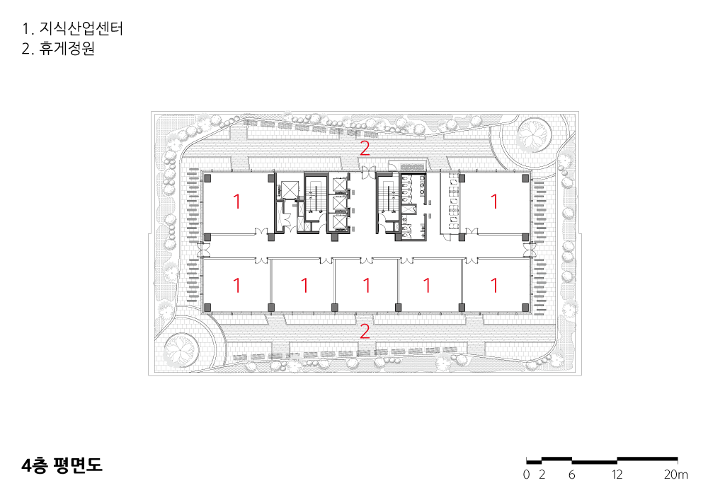
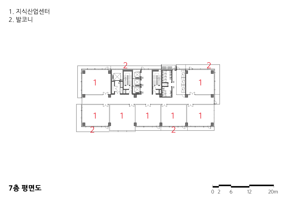
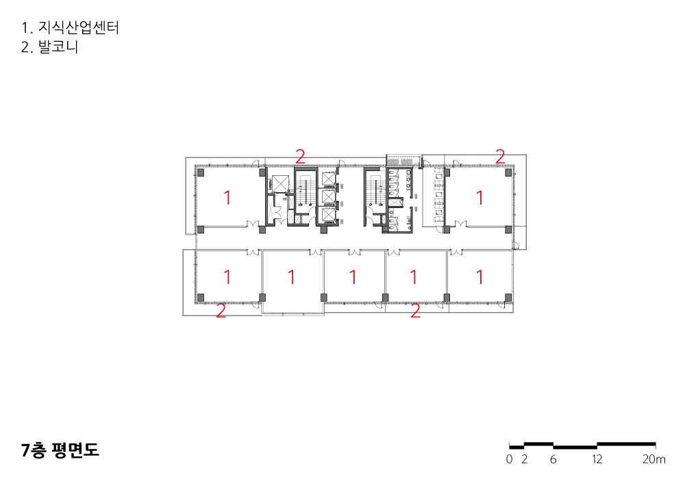
저층부는 3개 층으로, 근린생활시설과 지식산업센터로 배치되어 있다. 금천구 도시기반시설 지침에 따라 넓은 공개공지를 통해 건물에 진입이 가능하다. 1층 전면 상가는 필로티로 되어 있어 악천후 시 이용자들의 편의성을 고려했고, 주 진입 동선과 하역공간, 그리고 지하주차 진입 동선을 분리해 안전성과 편리성을 확보했다.
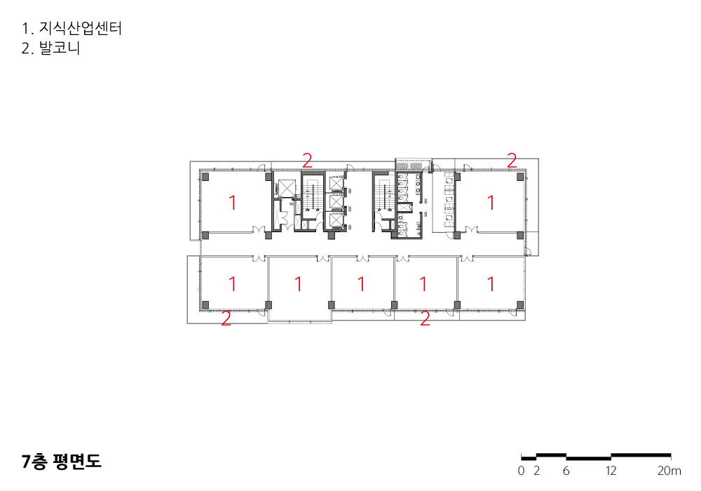
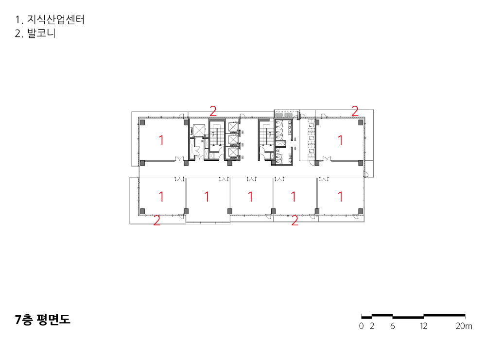
상층부는 12개 층으로 4층부터 기준층이 시작된다. 기준층은 ‘잔카 드림타워’의 핵심 디자인이라고 말할 수 있는데, 입체적인 설계로 층마다 외부로 돌출되는 평면과 입면으로 발생한 자연 발코니를 통해 내·외부의 연계성을 부여해 입주자들의 개방감을 더했다. 그로 인해 기존 지식산업센터에서는 볼 수 없었던 독특한 파사드를 보여준다.
층별로 보이드 공간과 솔리드 공간이 적절히 배치된 파사드는 마치 젠가의 모습을 연상시키기도 하는데, ‘잔카’의 아이덴티티인 신발의 밑창 패턴을 디자인 모티브로 ‘잔카’가 걸어온 발걸음의 역사와 도전을 위한 발걸음을 형상화했다. 서울 가산디지털단지의 다른 지식산업센터에서 볼 수 없었던 독특한 디자인이 도출되기까지 건축주의 결단력이 상당한 영향을 주었다. 일반적인 지식산업센터처럼 박스 형태가 아닌 개성 넘치는 매스의 돌출과 그에 따른 독특한 파사드의 디자인을 제시했을 때 공사비와 더불어 실현 가능성을 고민할 수도 있었지만, 건축주는 일말의 고민 없이 우리의 디자인을 선정했다. 그런 측면에서 본 프로젝트는 건축주를 잘 만난 케이스라고 할 수 있겠다.
서울시 녹색건축 기준으로 고효율 설비구성과 친환경 건축자재를 비롯하여 곳곳에 도심 속 자연을 만끽할 수 있는 스페이스를 배치하였는데, 4층과 지붕에 입주자들을 위한 휴게공간으로 옥상정원을 계획했다. 휴게공간을 통해 업무에 지친 입주자들에게 편안한 휴식처를 제공하며, 각 층에 설계된 자연 발코니를 통해 다양한 위치에서 주변 경관과 호흡할 수 있는 기회를 제공한다.

‘My steps become history’
Gasan Digital Complex in Seoul is the center of Korea’s most significant IT venture district, with various knowledge industry centers. One of the centers, ’ Zanca Dream Tower,’ is a place with accessibility and geographical symbolism in Gasan Digital Complex. In addition to the advantage of a digital complex with a large floating population and high demand, it is the best site to enjoy the views of the city and nature because it faces Seobu Arterial Road and Anyangcheon Strea flowing along Geumcheon-gu. Therefore, we carried out this project on this site with the concept of uniqueness that can recognize the company ‘Zanca’ image at a glance instead of adopting the general idea of shared knowledge industry centers.
The word ‘Zanca’ refers to the boots worn by the ancient Persians. The company was established with the corporate philosophy of ‘My footsteps become history’ that originates from the old shoes. To express Zanca’s identity in this corporate philosophy, we used the sole, the bottom part of a shoe, as a design element. In addition, the curtain walls were used for the entire building exterior, and integrated vertical louvers with mullions were installed on the curtain wall to embody the challenging and promising symbolism of ‘Zanca’ in the exterior facade design, which could be simple. In particular, the view of Anyangcheon Stream flowing along the Seobu Expressway in the west and the unique design of the Zanca Dream Tower viewed from the road will become a symbolic element of ‘Zanca’ while catching the public eye.
Considering the floor area ratio, the building has a total of 15 floors which is relatively low compared to the surrounding area. Still, a horizontal element is applied to the lower floors to give a sense of stability. The vertical aspects starting from the 4th floor are emphasized. Still, as it goes up, it is harmonized with the horizontal elements that can achieve the purpose of securing both the occupants' privacy and the building's symbolism.
The lower level consists of three floors: a neighborhood living facility and a knowledge industry center. Under the guidelines for urban infrastructure in Geumcheon-gu, the building can be a public open space. The front shops on the first floor are made of piloti for user convenience in the case of bad weather. In addition, the main entry movement flow, loading space, and underground parking entry movement flow are separated from securing safety and convenience.
The upper level consists of 12 floors: the typical floor starts from the 4th. The standard floor is regarded as the critical design of the ‘Zanca Dream Tower.’ The three-dimensional structure adds a sense of openness to the occupants by connecting the inside and the outside through the natural balconies made from the elevation and the plane that protrude outward on each floor. Therefore, it features a unique façade that could not be seen in existing knowledge industry centers.
The façade, where space and solid space are appropriately arranged for each floor, is reminiscent of Jenga. Using the sole pattern of a shoe as a motif in its design, it embodies the history of ‘Zanca’ and the path it has followed for the challenge. The client’s determination was incredibly influential for us to create a unique design that is rare in other knowledge industry centers in Gasan Digital Complex in Seoul. When we suggested the unique façade design and the exciting mass protrusion, unlike typical box-shaped knowledge industry centers, the client could have considered practicability and construction cost but selected our design without hesitation. In that respect, it was a project in which we met a great client.
According to Seoul Green Building Design Guide, it was designed to have high-efficient facilities and eco-friendly building materials and spaces where you can enjoy nature in the city. For example, a roof garden was planned as a resting space for residents on the 4th floor and the rooftop. The rest area provides a comfortable resting place for the occupants who are tired of work, and the natural balconies on each floor enable them to enjoy the surrounding scenery from different positions.








| 잔카 드림타워 지식산업센터 설계자 | 이성원 _ 주.창조 종합건축사사무소 건축주 | 주.지엔텍 감리자 | 주.창조 종합건축사사무소 시공사 | 동문건설.주 설계팀 | 조창희, 김대웅, 조성훈, 임수빈 설계의도 구현 | 주.창조 종합건축사사무소 대지위치 | 서울특별시 금천구 가산디지털2로 35 주요용도 | 지식산업센터[공장, 운동시설, 제1, 2종 근린생활시설] 대지면적 | 3,305.00㎡ 건축면적 | 1,898.32㎡ 연면적 | 23,402.08㎡ 건폐율 | 57.44% 용적률 | 465.21% 규모 | B3F - 15F 구조 | 프리캐스트콘크리트[PC], 철근콘크리트 구조 외부마감재 | 화강석, 알루미늄패널, 컬러로이삼중유리, 녹색건축 우수등급[그린2등급] 내부마감재 | 화강석, 친환경 수성페인트, 무석면 텍스 설계기간 | 2018. 04 – 2019. 07 공사기간 | 2019. 10 – 2022. 05 사진 | 주.창조 종합건축사사무소 구조분야 : 주.하이브릭스 기계설비분야 : 주.대명기술단 전기분야 : 주.대명기술단 소방분야 : 주.대명기술단 |
Janka Dream Tower Knowledge Industry Center Architect | Lee, Seongwon _ Changjo General Architects Client | G&TECK Co, Ltd. Supervisor | Changjo General Architects Construction | Dongmun Construction Project team | Cho, Changhee / Kim, Daewoong / Cho, Seonghoon / Im, soobin Design intention realization | Changjo General Architects Location | 35, Gasan digital 2-ro, Geumcheon-gu, Seoul, Korea Program | Knowledge Industry Center Site area | 3,305.00㎡ Building area | 1,898.32㎡ Gross floor area | 23,402.08㎡ Building to land ratio | 57.44% Floor area ratio | 465.21% Building scope | B3F - 15F Structure | PC, RC Exterior finishing | Granite stone, Aluminum panel, Clored triple galss Interior finishing | Granite stone, Eco-friendly water paint, Asbestos-free Tex Design period | Apr. 2018 - Jul. 2019 Construction period | Oct. 2019 - May 2022 Photograph | Changjo General Architects Structural engineer | Hibricks Co, Ltd. Mechanical engineer | Daemyung Co, Ltd. Electrical engineer | Daemyung Co, Ltd. Fire engineer | Daemyung Co, Ltd. |
'회원작품 | Projects > Office' 카테고리의 다른 글
| 퀸즈파크나인 2018.10 (0) | 2022.12.08 |
|---|---|
| 런커사옥 2018.08 (0) | 2022.12.06 |
| 역삼동 현성빌딩 2018.08 (0) | 2022.12.06 |
| WYM 아카이브 사옥 리노베이션 2022.10 (0) | 2022.11.02 |
| JYA HOME 2022.10 (0) | 2022.11.02 |
