2022. 12. 8. 09:15ㆍ회원작품 | Projects/Office
QUEENS' PARK 9

‘끊임없는 변화’, ‘흐름’을 가진 상업시설 ‘FLUX' STREET MALL _ URBAN FABRIC
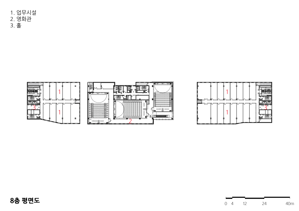
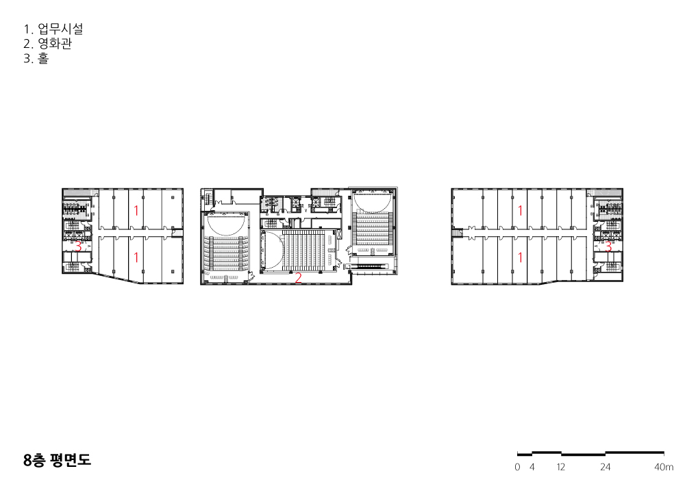
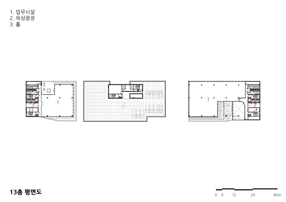
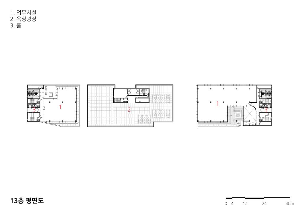
퀸즈파크9은 전면 45미터의 공항대로, 발산역 부근, 마곡지구의 끝자락에 입지하여 도시의 끝 이자 첫 이미지의 일부이다. 판매시설, 업무시설, 문화시설(멀티플렉스)이 있는 복합시설로서 도시와 다양하게 어우러지고, 그 속에서 자연스러운 흐름을 가지는 공간을 계획했다. 도로를 따 라 긴 형태의 대지 내부에 흐름을 가지는 오픈 스트리트형 상가계획을 통해 깊은 공간감, 실내 외 다채로운 동선을 제공한다.
각각의 날실과 씨실이 엮어져 하나의 얼개를 이루는 직물처럼 다양한 동선과 시설들이 하나의 URBAN FABRIC이 되고, 입면 또한 엮어진 직물패턴으로 마곡의 조용한 아이덴티티를 가진다.

Commercial facility with 'continuous change' and 'flow' ‘FLUX' STREET MALL _ URBAN FABRIC
Queens Park 9 is the end of the city and part of the first image, located at the end of the Magok district, near Balsan Station, Gonghang-daero, 45 meters from the facade. As a complex facility with sales facilities, business facilities, and cultural facilities (multiplex), I planned the space that has a natural flow in the environment. The open street type shopping street with the flow inside the long-shaped site along the road provides a deep sense of space and colorful movement lines inside and outside.
As each warp and weft are woven together to form a single fabric, various movement lines and facilities become URBAN FABRIC, and the elevation also has a quiet identity of Magok in a fabric pattern.








| 퀸즈파크나인 설계자 ┃ 이병철 KIRA ┃ (주)이가플랜 건축사사무소 건축주 | (주)문영종합개발 감리자 | (주)이가플랜 건축사사무소 시공사 | (주)문영엔지니어링 설계팀 | 이유철, 박경수, 정다혜, 김병국, 이민지, 위지현 대지위치 | 서울특별시 강서구 공항대로 247 주요용도 | 업무시설, 근린생활시설, 문화 및 집회시설 대지면적 | 6,992.00㎡ 건축면적 | 4,193.56㎡ 연면적 | 69,223.38㎡ 건폐율 | 59.98% 용적률 | 598.82% 규모 | 지하 5층, 지상 13층 구조 | 철근콘크리트조, 철골철근콘크리트조 외부마감재 | 인조 라임스톤, 압출성형 시멘트 판넬 내부마감재 | 무석면비닐타일, 친환경 수성페인트, 비닐페인트, 무석면텍스 설계기간 | 2014. 04 ~ 2015. 05 공사기간 | 2015. 06 ~ 2017. 08 사진 | 남궁선 전문기술협력 - 구조분야 : 승구조 기술사사무소 - 기계설비분야 : (주)정도이앤씨 - 전기분야 : (주)유원이앤씨 - 소방분야 : (주)남도티이씨 - 조경분야 : (주)솔토조경 |
QUEENS' PARK 9 Architect | Lee, Byeongchul _ EGAPLAN Architects & Engineers Client | Munyoung Developmet Co., Ltd Supervisor | EGAPLAN Architects & EngineersConstruction | Munyoung Engineering Co., Ltd Project team | Lee, Yucheol / Park, Kyoungsu / Jeong, Dahye / Kim, Byungkuk / Lee, Minji / Wee, Jihyun Location | 247, Gonghang-daero, Gangseo-gu, Seoul, Korea Program | Business facility, Neighborhood facility, Culture & gathering facility Site area | 6,992.00㎡ Building area | 4,193.56㎡ Gross floor area | 69,223.38㎡ Building to land ratio | 59.98% Floor area ratio | 598.82% Building scope | B5F - 13F Structure | RC, SRC Exterior finishing | Artificiality limestone, Cement panel Interior finishing | Non asbestos vinyl tile, Ecofriendly water paint, Vinyl paint, Non asbestos tex Design period | Apr. 2014 ~ May. 2015 Construction period | Jun. 2015 ~ Aug. 2017 Photograph | Nam, Gungsun Structural engineer | Seung Structure Technician Office Mechanical engineer | Jung Do ENC Co., Ltd Electrical engineer | You Won ENC Co., Ltd Fire engineer | Nam Do TEC Co., Ltd Landscape engineer | SOLTO Landscape Architecture |
'회원작품 | Projects > Office' 카테고리의 다른 글
| 빅슨커뮤니케이션 사옥 2019.1 (0) | 2022.12.12 |
|---|---|
| 와이케이에이치 본사 2019.1 (0) | 2022.12.12 |
| 런커사옥 2018.08 (0) | 2022.12.06 |
| 역삼동 현성빌딩 2018.08 (0) | 2022.12.06 |
| WYM 아카이브 사옥 리노베이션 2022.10 (0) | 2022.11.02 |