빅슨커뮤니케이션 사옥 2019.1
2022. 12. 12. 10:32ㆍ회원작품 | Projects/Office
Vixen Communication Office

빅슨 커뮤니케이션(Vixen Communication)은 광고를 제작하는 회사이다. 직원들이 사무실에서 많은 시간을 보내야하는 업종 중 하나이다. 가능한 최대 의 업무공간을 확보하면서도 직원들이 쉴 수 있는 다양한 공간을 만드는데 초 점을 두었다.
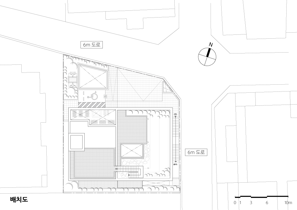
대지는 일조권 사선에 의해 계단형태로 이루어진 건물들을 많이 볼 수 있는 제 3종 일반주거지역에 위치한다. 일조권 사선을 피해 가장 단순한 형태를 의도하 기도 하였지만, 박스형태의 건물은 북측도로와 거리를 두며 충분한 오픈공간을 형성하기도 한다.
한 쪽면에 집약된 코어는 업무공간과 그 사이에 휴게공간을 구성하는데 도움이 되었다.
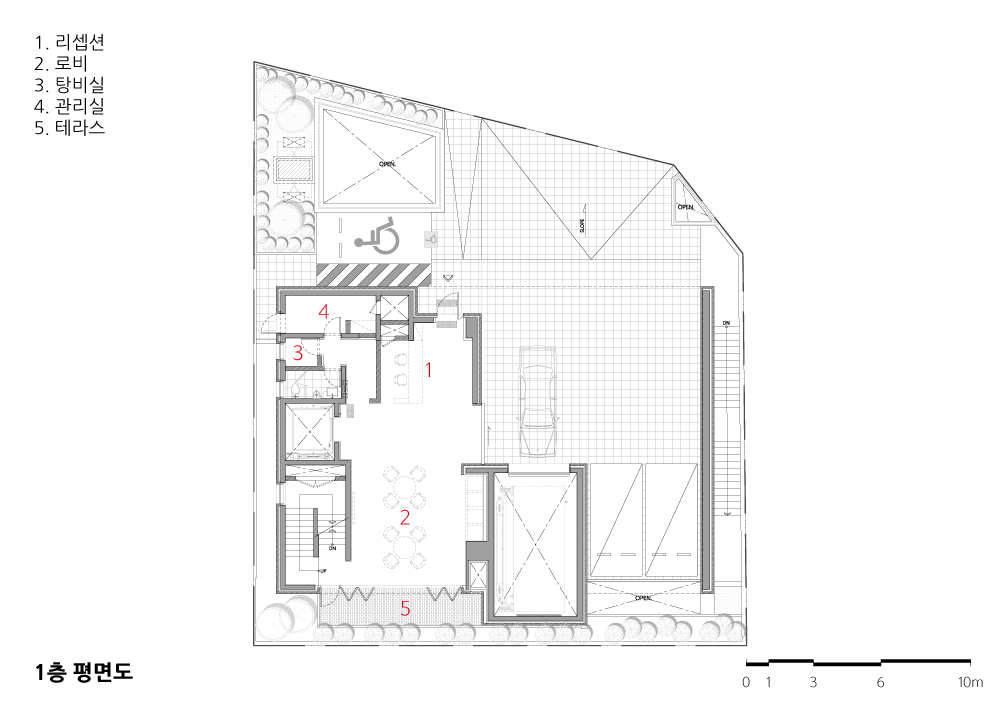
성격이 다른 각각의 업무공간의 프로그램을 층별로 나누고, 필요한 면적 외의 공간을 발코니 등의 외부공간화 하며 비워냈다. 비워낸 공간은 1.5미터 깊이의 발코니로 시작하여 서로 다른 깊이로 입면에서의 입체감을 형성한다. 특히 수 직적으로 교차된 부분을 통해 햇빛과 바람이 통하도록 계획했다. 광고업무 특 성상 보안이 중요하기 때문에 외부인의 출입여부와 업무성격에 따라 층별로 철 저하게 구분되지만 외부의 비워진 공간들을 통해 위 아래층으로의 시각적 소통 이 가능하도록 했다.








| 빅슨커뮤니케이션 사옥 설계자 _ Architect. 상대정 _ Sang, Daejung (주)와이케이에이치 건축사사무소 _ YKH Associates, Inc 건축주 | 빅슨 커뮤니케이션 감리자 | (주)와이케이에이치 건축사사무소 시공사 | 신재호 _ 도시종합건설 설계팀 | 홍태선(AIA), 황용호, 고영수, 이지훈 대지위치 | 서울특별시 강남구 논현동 54-1(강남구 학동로7길 7) 주요용도 | 업무시설 대지면적 | 504.50㎡ 건축면적 | 245.61㎡ 연면적 | 1,997.82㎡ 건폐율 | 48.68% 용적률 | 248.95% 규모 | 지하 2층, 지상 7층 구조 | 철근콘크리트 구조 외부마감재 | 고벽돌 마감 내부마감재 | 고벽돌 마감, 수성페인트 도장 설계기간 | 2016. 08 ~ 2017. 02 공사기간 | 2016. 12 ~ 2018. 03 사 진 | 유재철 전문기술협력 - 구조분야 : 황윤선 _ 윤구조 - 기계설비분야 : 반재부 _ 삼영MEC - 전기분야 : 마광민 _ SMTEC - 소방분야 : 정우열 _ 낙생도원방재 |
Vixen Communication Office Client | Vixen Communication Supervisor | YKH Associates, Inc. Construction | Shin, Jaeho _ Dosi Construction Project team | Hong, Taesun(AIA) / Hwang, Yongho / Ko, Youngsoo / Lee, Jihoon Location | 54-1 Nonhyun Dong, Gangnam Gu, Seoul, Korea Program | Office Site area | 504.50㎡ Building area | 245.61㎡ Gross floor area | 1,997.82㎡ Building to land ratio | 48.68% Floor area ratio | 248.95% Building scope | B2F - 7F Structure | RC Exterior finishing | Brick Interior finishing | Brick, Water paint Design period | Aug. 2016 ~ Feb. 2017 Construction period | Dec. 2016 ~ Mar. 2018 Photograph | Yu, Jaechul Structural engineer | Hwang, Yoonsun _ Yoon StructuralEngineering Mechanical engineer | Ban, Jaebu _ Samyoung Engineering Electrical engineer | Ma, Gwangmin _ SMTEC Engineering Fire engineer | Jung, WooYeul _ Naksaeng Fire Safety |
'회원작품 | Projects > Office' 카테고리의 다른 글
| 가회동 주민센터 리모델링 2019.3 (0) | 2022.12.16 |
|---|---|
| 서귀포 제1청사 별관 2019.3 (0) | 2022.12.16 |
| 와이케이에이치 본사 2019.1 (0) | 2022.12.12 |
| 퀸즈파크나인 2018.10 (0) | 2022.12.08 |
| 런커사옥 2018.08 (0) | 2022.12.06 |