2022. 12. 16. 17:00ㆍ회원작품 | Projects/Office
Gahoe Dong Office Remodeling

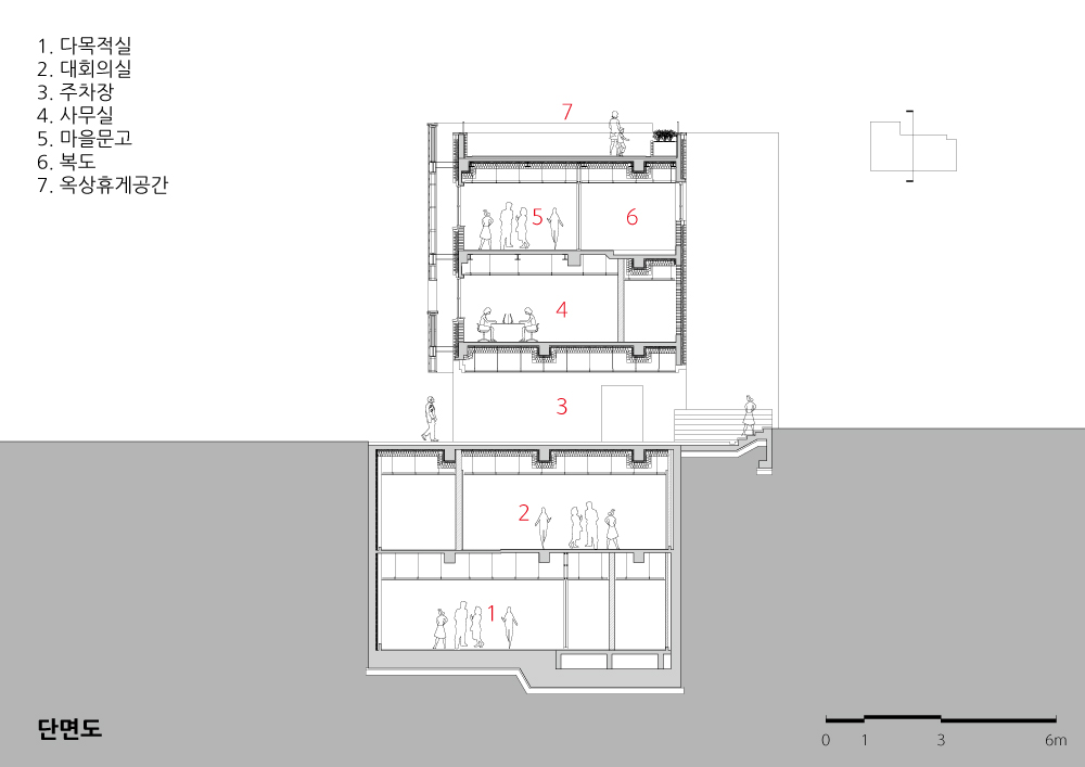
2017년 ‘찾동 사업’으로 시작된 가회동 청사의 설계는 몇 차례 협의를 거치며 전면 리모델링으로 변경됐다. 기존 청사는 공간건축에서 설계하고 1995년 완 공되어 20년 넘게 사용된 건물이다. 신축 당시 길의 연장으로서의 필로티, 2층 민원실 설치, 2∼3층의 오픈 공간 등 많은 건축적 아이디어를 가진 건축이었으 나, 노후화된 설비, 비효율적인 공간 배치, 장애인 엘리베이터의 부재 등으로 대대적인 개선이 필요하게 됐다.
어떻게 기존 건물의 역사를 간직한 채 새로운 건물로 탄생시킬 것인가와 주민 이용을 극대화하고 이곳이 그들의 공간임을 드러낼 것인가가 중요한 건축적 목표가 됐다.
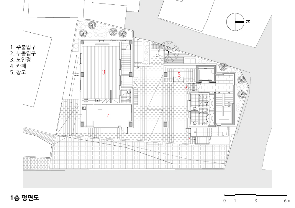
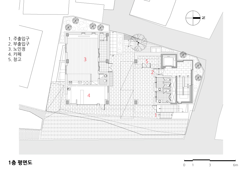
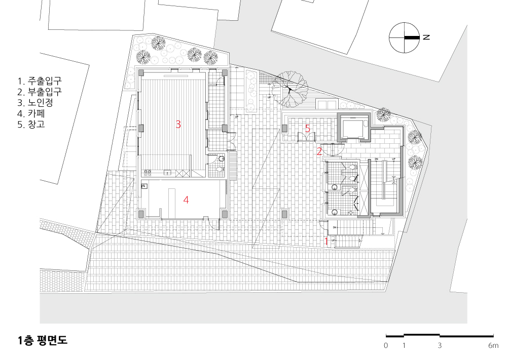
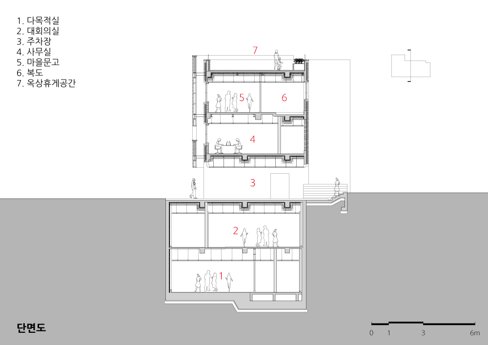
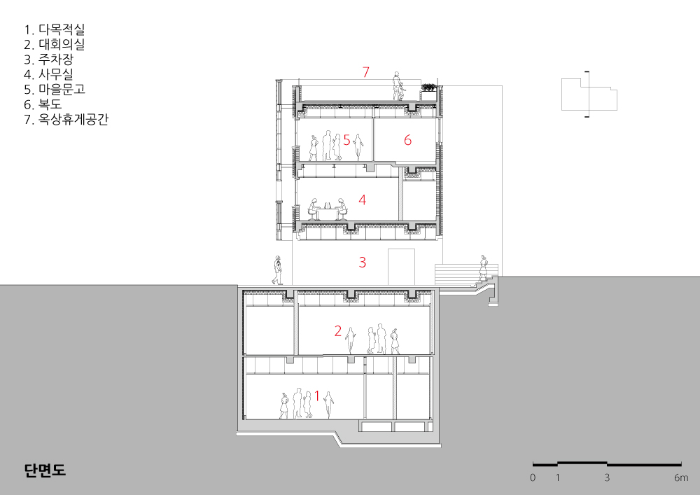
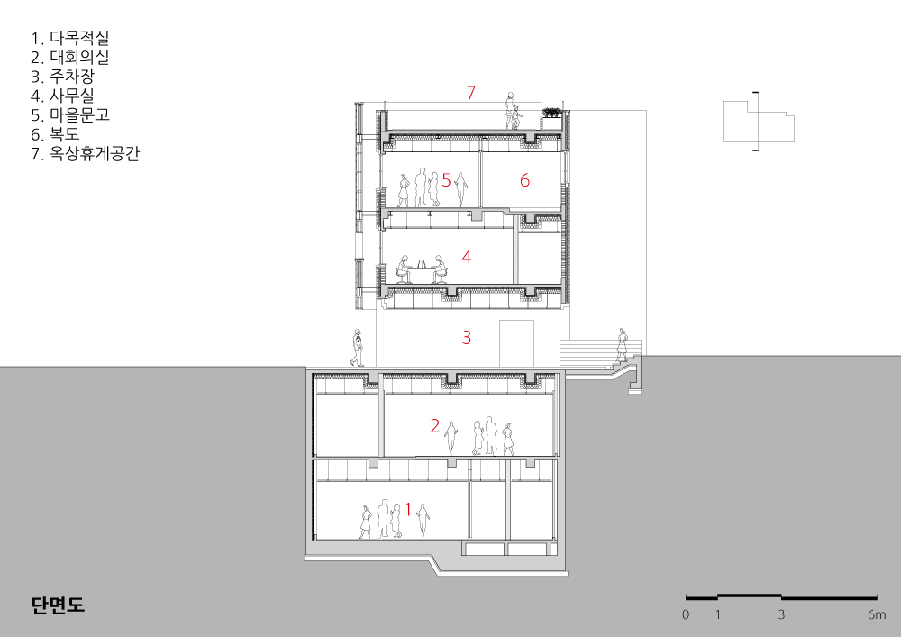
건물 전면에 가벽을 설치해 대칭이던 건물 입면에 변화를 주었다. 질감이 풍부 하고 현대적 이미지를 살릴 수 있는 테라코타 패널의 가벽을 기존 벽과 분리시 켜 설치하여 그 사이 공간을 통한 긴장감을 드러내 시간의 켜가 만나는 건물의 역사를 보여주기로 했다. 반면 건물의 후면은 최대한 기존 마감을 유지해 가벽 의 존재를 부각시켰다. 주출입구의 위치를 변경해 건물의 접근성을 높이고 관 광객과 민원인의 동선을 분리시켰다. 매 층마다 주민들이 이용할 수 있는 프로 그램 공간을 만들고 3개의 주민이용 공간은 투명한 유리의 볼륨으로 돌출시킴 으로써 가회동의 길을 건물내부로 확장시켰다.

The design of the Gahoe-dong Government Building, which started in 2017 as a "Chat-Dong Project," has been changed to full-scale remodeling through several consultations. The existing government building was designed bythearchitecturefirmSPACE and was completed in 1995 and used for over 20 years. At the time of construction, it was a building with many architectural ideas, such as Piloti as an extension of the road, installation of Public Service Center on the second floor, and open space on the second and third floors. However, extensive repairs were required due to old facilities, inefficient space layout, and lack of elevators for the disabled.
The important architectural goal is how to create a new building while keeping the history of the existing building, and maximize the residents’ use, and reveal that it is their space.
We installed a fake wall in the facade of the building and changed the symmetry elevation of the building. The terracotta panels, which can provide rich textures and a modern image, are installed separately from the existing wall to reveal the tension through inbetween spaces and show the history of the building where the layers of the time meet. On the other hand, the rear of the building maintained the existing finish as much as possible to highlight the existence of the fake wall. The location of the main entrance was changed to improve the accessibility of the building and to isolate the movement circulation of tourists and civilians. The program spaces were made for residents every floor, and three spaces for residents protrude through the volume of transparent glass to expand the road of Gahoe-dong into the building.







| 가회동 주민센터 리모델링 설계자 _ Architect. 이재혁 _ Yi, Jaehyuk (주)에이디모베 건축사사무소 _ Admobe Architec 건축주 | 종로구청 감리자 | 이재혁 _ (주)에이디모베 건축사사무소 시공사 | (주)레스빠스 설계팀 | 이정민, 이주화, 김재덕, 석나래, 김현종, 황명철 대지위치 | 서울시 종로구 가회동 북촌로 35 외 3필지 주요용도 | 업무시설 중 공공업무시설 대지면적 | 435.00㎡ 건축면적 | 244.14㎡ 연면적 | 1,032.08㎡ 건폐율 | 59.63% 용적률 | 140.01% 규모 | 지하2층, 지상3층 구조 | 철근콘크리트구조, 철골구조 외부마감재 | 테라코타 패널, 점토벽돌, 전벽돌, 구로철판 위 우레탄페인트 내부마감재 | 수성페인트, 흡음보드 설계기간 | 2016. 2. ~ 2016. 12. 공사기간 | 2017. 3. ~ 2017. 11. 사진 | 윤동규 전문기술협력 구조분야 : (주)허브구조 기계설비분야 : 유영설비기술연구소 전기분야 : (주)조은기술단 |
Gahoe Dong Office Remodeling Client | Jongno-gu Office Supervisor | Yi, Jaehyuk _ Admobe Architect Construction | L'espace Project team | Lee, Jungmin / Lee, Joohwa / Kim, Jaeduck / Seok, Narae / Kim, Hyunjong / Whang, Myungchul Location | 35, Bukchon_ro, Gahoe Dong, Jongno Gu, Seoul, Korea Program | Office Site area | 435.00㎡ Building area | 244.14㎡ Gross floor area | 1,032.08㎡ Building to land ratio | 59.63% Floor area ratio | 140.01% Building scope | B2F - 3F Structure | RC Structure, Steel Structure Exterior finishing | Teracota, Brick, Steel Interior finishing | Water paint, Accoustic panel Design period | Feb. 2016 ~ Dec. 2016 Construction period | Mar. 2017 ~ Nov. 2017 Photograph | Yoon, Donggyu Structural engineer | HUB Structure Engineering Mechanical engineer | U-Young Engineers & Consultants Electrical engineer | Joeun Engineering |
'회원작품 | Projects > Office' 카테고리의 다른 글
| 퀸즈파크 11 2019.7 (0) | 2022.12.23 |
|---|---|
| 양산 디온플레이스 2019.7 (0) | 2022.12.23 |
| 서귀포 제1청사 별관 2019.3 (0) | 2022.12.16 |
| 빅슨커뮤니케이션 사옥 2019.1 (0) | 2022.12.12 |
| 와이케이에이치 본사 2019.1 (0) | 2022.12.12 |