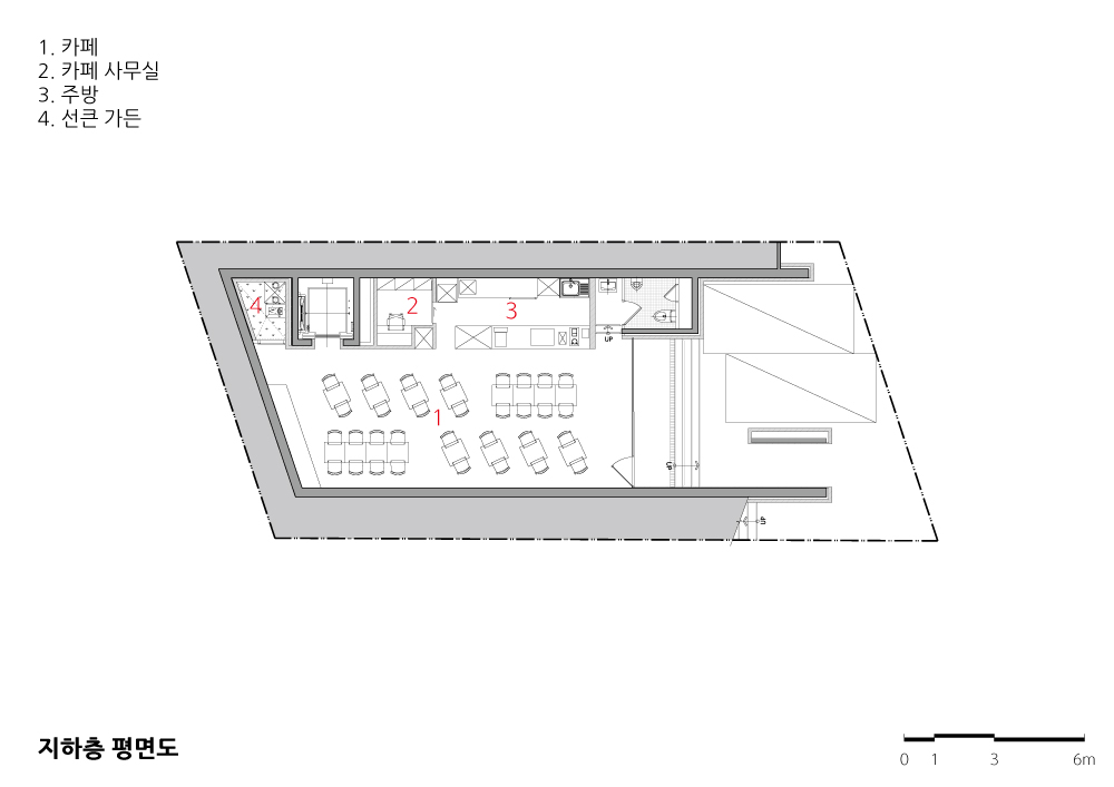
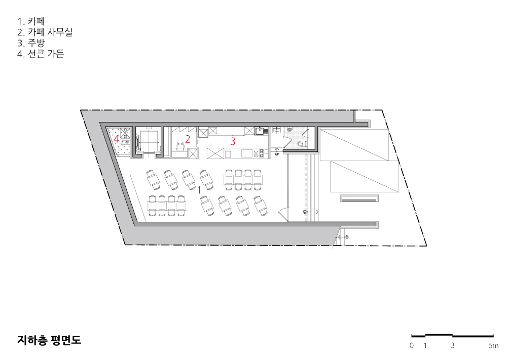
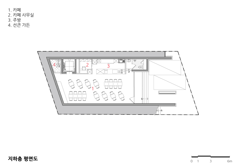
와이케이에이치 본사 2019.1
2022. 12. 12. 10:31ㆍ회원작품 | Projects/Office
YKH headquarter

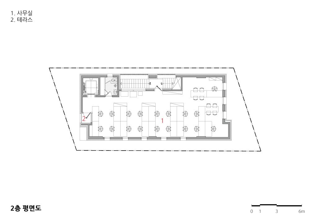
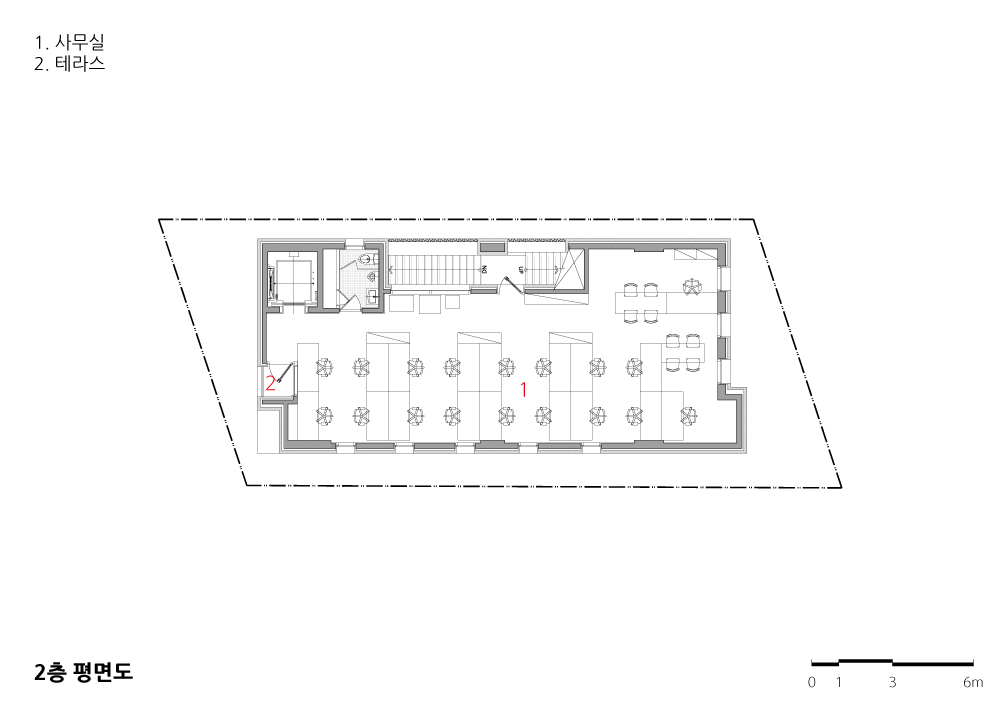
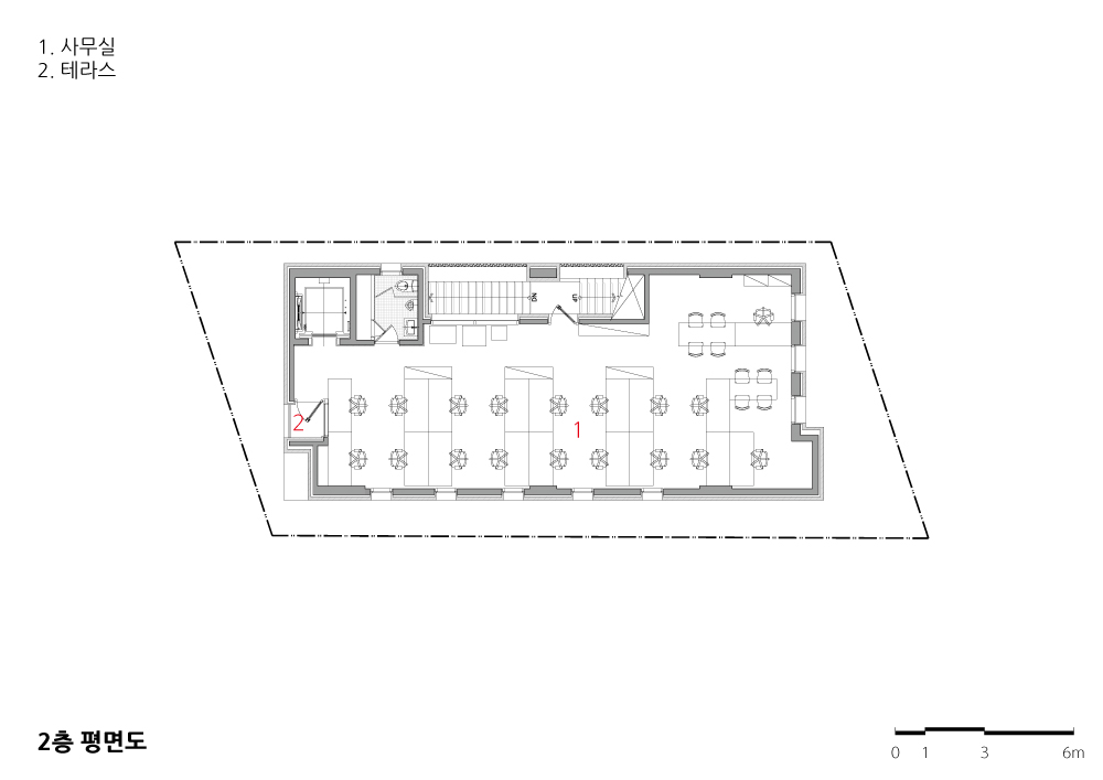
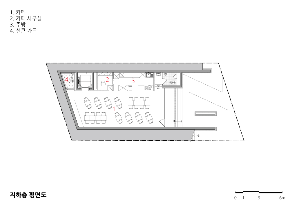
제한된 공사여건을 효과적으로 풀기 위해서 단순한 박스 형태의 매스와 통 일된 마감 재료를 계획했다. 또한 사무실 면적을 최대한 확보하고 유지관리 비를 줄이기 위해서 계단실을 건물 외부로 배치했다. 덕분에 동선을 간결하 게 정리할 수 있었을 뿐만 아니라, 층별로 개별보안을 적용할 수 있게 되면서 보안에도 더 유리해졌다. 건물 전체에 적용된 8만장이 넘는 벽돌들은 한장 한장 직접 선별하여 세척하고 갈아내서 사용했고, 백색몰탈을 사용하여 줄 눈을 최대한 깊게 파냄으로써 고벽돌만의 자연스러운 느낌을 살렸다. 또한, 계단실 외피에 영롱쌓기를 한 백고벽돌들을 활용함으로써 원활한 환기를 가 능하게 함과 동시에 독특하면서도 정갈한 건물 분위기를 연출하고자 했다.












| 와이케이에이치 본사 설계자 _ Architect. 상대정 _ Sang, Daejung (주)와이케이에이치 건축사사무소 _ YKH Associates, Inc. 건축주 | (주)동훈도스 감리자 | (주)와이케이에이치 건축사사무소 시공사 | 도시건축 종합건설 주식회사 설계팀 | 홍태선(AIA), 김소연, 신재호, 이세호, 이종민, 박영묵, 김용기 대지위치 | 서울특별시 강남구 도산대로 102길 14-9 주요용도 | 사무실 대지면적 | 218.8㎡ 건축면적 | 126.60㎡ 연면적 | 556.26㎡ 건폐율 | 57.86% 용적률 | 198.56% 규모 | 지하 1층, 지상 5층 구조 | 철근콘크리트조 외부마감재 | 백색 고벽돌(삼우교역) 내부마감재 | 시멘트 몰탈 위 수성페인트 설계기간 | 2016. 02 ~ 2016. 08 공사기간 | 2016. 09 ~ 2017. 06 사진 | 유재철, 이정규 전문기술협력 구조분야 : (주)하모니 구조엔지니어링 기계설비분야 : 주식회사 삼영엠이씨 전기분야 : (주)에스엠 티이씨 소방분야 : (주)낙생도원방 |
YKH headquarter Client | DONG HOON D.O.S. Supervisor | YKH Architects Construction | Dosi Construction Project team | Hong, Taesun(AIA) / Kim, Soyeon / Shin, Jaeho / Lee, Saeho / Lee, Jongmin / Bak, Yeongmuk / Kim, Yongki Location | 14-9, Dosan-daero 102-gil, Gangnam-gu, Seoul, Korea Program | Office Site area | 218.8㎡ Building area | 126.60㎡ Gross floor area | 556.26㎡ Building to land ratio | 57.86% Floor area ratio | 198.56% Building scope | B1F - 5F Structure | RC Exterior finishing | White antique brick Interior finishing | Cement mortar and water paint Design period | Feb. 2016 ~ Aug. 2016 Construction period | Sep. 2016 ~ Jun. 2017 Photograph | Yu, Jaechul / Lee, Jungkyu Structural engineer | Harmony Engineeering Mechanical engineer | Samyoung Engineering Electrical engineer | SMTEC Engineering Fire engineer | Naksaeng Fire Safety |
'회원작품 | Projects > Office' 카테고리의 다른 글
| 서귀포 제1청사 별관 2019.3 (0) | 2022.12.16 |
|---|---|
| 빅슨커뮤니케이션 사옥 2019.1 (0) | 2022.12.12 |
| 퀸즈파크나인 2018.10 (0) | 2022.12.08 |
| 런커사옥 2018.08 (0) | 2022.12.06 |
| 역삼동 현성빌딩 2018.08 (0) | 2022.12.06 |