2022. 12. 6. 09:22ㆍ회원작품 | Projects/Office
Lunker building

대지는 경부 고속도로와 영동 고속도로가 만나는 신갈인터체인지를 바라보고 있는 곳이다.
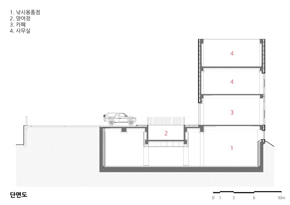
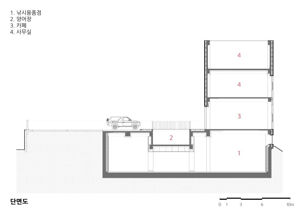
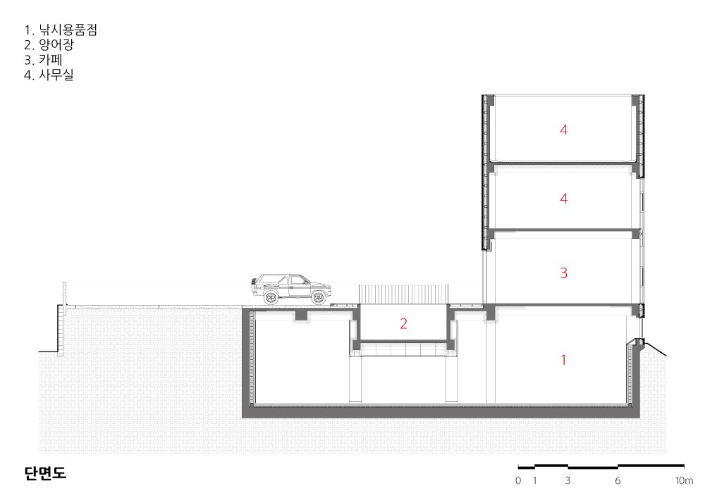
낚시용품 도·소매점 사옥으로 지하층은 매장, 1층은 카페겸 전시장, 2층은 사무실, 3층은 창 고용도로 사용한다. 본 건축계획의 가장 큰 특징은 건물앞에 놓인 수공간이다. 수공간은 낚 시 시연을 할 수 있는 일종의 연못으로 건물정면으로 길게 평행하게 배치했다. 출입구 앞으 로는 가벼운 다리를 놓아서 수공간 위로 건너서 건물에 진입하는 극적인 공간을 연출했다.
수공간과 건축물이 상호 대응하는(대화하는) 느낌을 위해 건축물의 외장은 지극히 단순하 게 벽돌로만 처리 했다. 그래서 수면위로 비치는 건물의 모습도 보기 괜찮다.

The site overlooks Shingal Interchange where Gyeongbu Expressway and Yeongdong Expressway meet.
As a fishing-tackle wholesale retail store building, basement is used as a store, the first floor is where a cafe and exhibition hall are located, with the second floor being used as an office and the third floor is a warehouse. The biggest feature of this structure is the water feature in front of the building. The water feature is like a pond that can be used for fishing demonstrations and it runs parallel to the facade of the building. In front of the entrance, a light bridge is placed to cross the water feature, which in turn creates a dramatic entry to the building.
To give the impression that the water feature and the building are in harmony, the exterior of the building is treated simply with bricks which are reflected on the surface of the water, making them appear as one.









| 런커사옥 설계자 ┃ 이재하 KIRA 이재하 건축사사무소 건축주 | 김태한 _ (주)런커 감리자 | 이재하 _ 이재하 건축사사무소 시공사 | 선석건설 설계팀 | 김덕호 대지위치 | 경기도 용인시 기흥구 신정로 270-68 주요용도 | 업무시설 대지면적 | 1,570.00㎡ 건축면적 | 306.53㎡ 연면적 | 606.87㎡ 건폐율 | 19.52% 용적률 | 38.65% 규모 | 지하 1층, 지상 3층 구조 | 철근콘크리트조 외부마감재 | 검정고벽돌 내부마감재 | 노출콘크리트 설계기간 | 2016. 09 ~ 2017. 12 공사기간 | 2016. 12 ~ 2017. 09 사진 | 박완순 전문기술협력 구조분야 : SDM 기계설비분야 : (주)이래엠이씨 전기분야 : (주)성지이엠씨 소방분야 : (주)이래엠이씨 |
Lunker building Architect | Lee, Jaeha _ LeeJaeHa Architects Client | Kim, Taehan _ Lunker Supervisor | Lee, Jaeha _ LeeJaeHa Architects Construction | SunsukConstruction Project team | Kim, Duckho Location | 270-68, Sinjeong-ro, Giheung-gu, Yonginsi, Gyeonggi-do, Korea Program | Office facility Site area | 1,570.00㎡ Building area | 306.53㎡ Gross floor area | 606.87㎡ Building to land ratio | 19.52% Floor area ratio | 38.65% Building scope | B1F - 3F Structure | RC Exterior finishing | Black great talent bricks Interior finishing | Exposed concrete Design period | Sep. 2016 ~ Dec. 2016 Construction period | Dec. 2016 ~ Sep. 2017 Photograph | Park, Wansoon Structural engineer | SDM Mechanical engineer | IREH MEC Electrical engineer | Sungji EMC Fire engineer | IREH MEC |
'회원작품 | Projects > Office' 카테고리의 다른 글
| 와이케이에이치 본사 2019.1 (0) | 2022.12.12 |
|---|---|
| 퀸즈파크나인 2018.10 (0) | 2022.12.08 |
| 역삼동 현성빌딩 2018.08 (0) | 2022.12.06 |
| WYM 아카이브 사옥 리노베이션 2022.10 (0) | 2022.11.02 |
| JYA HOME 2022.10 (0) | 2022.11.02 |